A zsúfolt közintézményekben megszokott orvosi várók helyett az előtér itt a kertbe néz. Erről szóló cikkünk a 195-ös, 2024/7-es lapszámunkból közöljük.
A ’90-es években számos kistelepülés jelentős változáson ment keresztül. A beköltöző új lakók és az ebből fakadó középületi igények megjelenése erősen átalakította az addig álomban szendergő agglomerációs települések karakterét. Helyet kellett találni ezeknek a funkcióknak, összefüggésben a használattal és a településszerkezettel.
Etyek nagytelepüléssé válása magával hozott egy morfológiai váltást, ami a telekstruktúrában sajátos hangsúlyokat eredményez. A meglévő, jellemző településkarakter egy sűrű, szoros épületállományt jelent, amiben az újonnan megjelenő középületek néhol csak korlátozott teret tudnak maguk körül létrehozni. Egyfajta belső tartalékterületként ebben hoz váltást a fő tengelyre merőleges Körpince utca mély teleksora, mely követi a településszövetet jellemző haránt-utcairányt.

Az utca ugyan a 19. század óta létezik, azonban az ezt körülvevő telekstruktúra nem igazodott a létrejövő utcához egészen a 20. század második feléig: sokáig csak a hátsó kerteket láthatták a református templom felé igyekvők. A hosszú telkek a későbbiekben feldarabolódtak és kisebb léptékű pavilonszerű közfunkciók jelentek meg rajtuk. A Körpince utca ekkor vált a „főutca” egyenlőtlen párjává, mely a mai napig egyfajta nyugodtabb belső utcaként működik Etyek életében.
Látszólag ellentmondás jön létre a tömbbelsőben elhelyezett számos közfunkció pozíciója miatt, azonban a település fő tengelyének meglévő sűrű településszerkezete nem teszi lehetővé sem nagyobb léptékű épületek, sem az épületekhez tartozó jelentősebb közterek létrehozását nagyobb beavatkozás nélkül. Ennek okán ide kezdenek sűrűsödni a közületi építések, változatos – közel sem homogén – koncepciót követve.

A többféle funkció és karakter településszöveti heterogenitása olyan összetett helyzetet eredményez, ami nem segíti az egységes utcakép és térfal kialakítását sem. A szolgáltatóház és patika felnyitja ugyan a városi fő tengely zártsorú karakterét, azonban ezek sűrűsége még inkább egyszintes tömör térfalat alkot, amit később az utcában már nem folytat egyetlen épület sem. A feljebb megjelenő lakó- és közfunkciók váltakozása nehezen teszi értelmezhetővé a településléptékű szándékot: a szemlélő egységesen közfunkciókat várna egy rendezett köztéri helyzettel együtt. A rendezetlenséget talán oldaná egy fasor, ehelyett az utca mentén telepített díszszőlőt látunk, mely nem értelmezhető térfalként, így a hátsó kertek teljes élete megfigyelhető. A kistelepülések átalakulásának azonban ez természetes velejárója, lassan történnek a változások, ezért ritkán vannak teljes területeket azonnal rendező átalakulások.
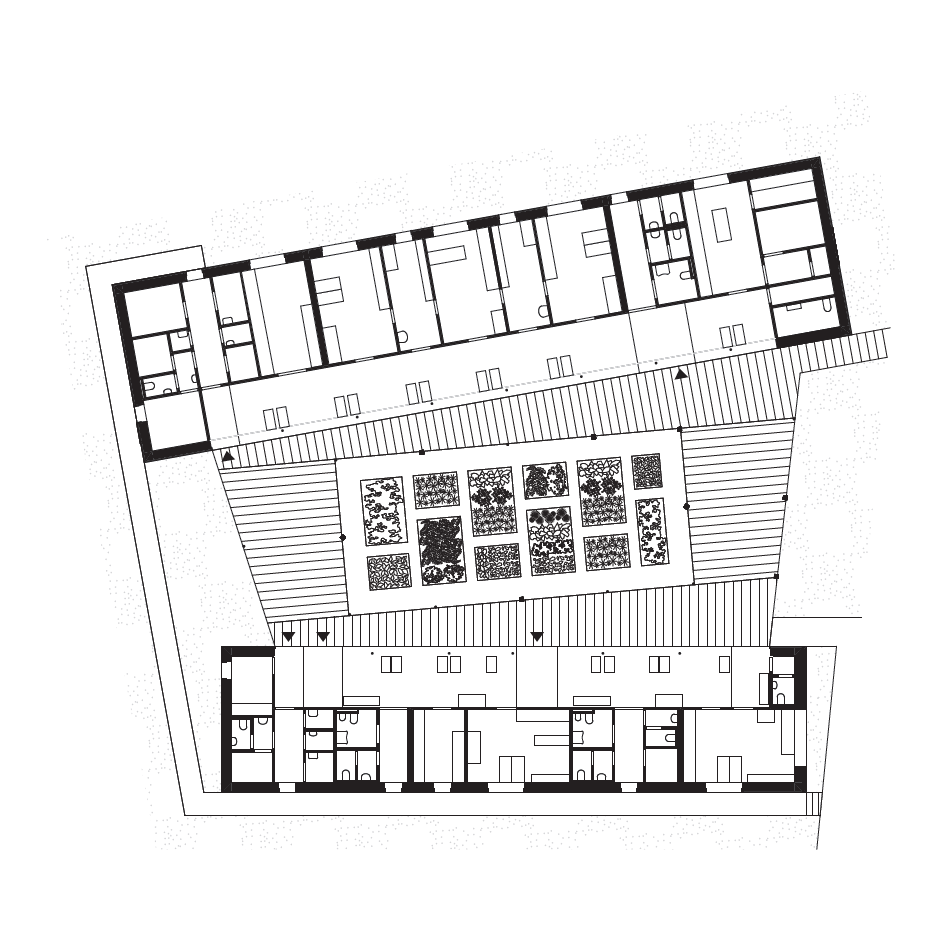
Ebben a környezetben – középületek és lakóházak sorában – jelenik meg az új rendelőintézet, mely még a felületes személőnek is azonnal feltűnik a minőségi többlet okán. De miben rejlik ez a többlet? Egyszerre jelen van az épületlépték, a telepítés és formálás szintjén is. A létrehozott épületkettős sokkal oldottabban kapcsolódik a közterülethez. Az átmeneti tér (gyógynövényes udvar) révén nem frontális megérkezést kapunk egy rideg intézménybe, hanem egy meghitt, barátságos udvart.

A kettős tömeg lehetővé teszi, hogy az Etyekre jellemző épületléptéket ne haladja meg jelentősen az intézmény. A kettős házforma közel ház–nyárikonyha-távolságban foglal helyet egymáshoz képest. A hátrahúzott építési vonal teret ad egy kis léptékű köztérnek, amely a melléhelyezett parkolók révén szükség esetén tovább bővíthető. Azáltal, hogy nem kizárólag parkoló készült az épület előterében, a létrejövő mikro-tér valóban fontos eleme a közterület-kapcsolatnak: megfelelő rangot ad a megérkezésnek, érzékelhetőbbé válik a középület jelleg. Egyedül az állandó padok hiányolhatóak a süllyesztett szökőkút körül.
Az épület térszervezése racionális, de egyben kellemesen nyitott. Az udvar felé fordított váróterek karaktere szinte már hívogató környezet hatását sugározza. A zsúfolt közintézményekben megszokott végtelen orvosi váró helyett az előtér itt – az egyik oldalon végig megnyitva – a kertbe néz, belátható térfallal a kert túloldalán: védett, de nyitott közeget eredményezve. Ez a karakter sokkal empatikusabb, mint a legtöbb városi vagy kistelepülési rendelő. Nemcsak a kert által sugárzott természetközeliség, de a zártságot ügyesen oldó kilátás többrétegűsége is segíti a nyugodt várakozást. Az egész közeg egy olyan emberi megközelítést sugároz, ami nem oldja ugyan közvetlenül a fájdalmat, de otthonossága révén eltereli az ember figyelmét. Talán már mondhatni, valamelyest szívesen is érkezik meg a beteg ebbe a váróba.

A kerttel szemben rendelők sorakoznak egymás után a folyosó mellett, átjárható rendszerük nagyfokú rugalmasságot és gyors ellátást tesz lehetővé. A folyosóról üvegfallal leválasztott fogorvosi rendelő és a különbejáratú nyilvános mosdó megléte túlmutat egy hagyományos kistelepülési helyzeten. A túloldali tömbben a gyermek rendelő és védőnői szolgálat finoman eltérő előteret kapott. A tér itt észrevehetően mélyebb, valamint játszósarokkal és kedvesebb belső formálással hívogat.
A személyzeti helyiségeken kívül mást nem helyez a földszintre a terv, a teljes gépészet és légtechnika a tetőtérben kap helyet. Ennek izgalmas következménye, hogy a nyugati oldal bütüje hagyományosabb karakterű, lécburkolatos, átszellőztetett oromzatot kapott. A két épülettömeg által határolt teret egy előtető keretezi, így az udvar körüljárható marad annak ellenére, hogy a teljes belső kert gyógynövényekkel van feltöltve. Az előtető jellegében idézi meg a fatornácokat, azonban csak finoman formálva. Pont annyira van módosítva az oszlopraszter, a tetőkinyúlás és a festés, hogy ne legyen népiesen elemi a formaképzés.

Ez a tervezői megközelítés egyébként az egész épületet meghatározza: a településre jellemző anyaghasználatú és léptékű elemek – jó érzékkel – úgy kerülnek egymás mellé, hogy ne didaktikusan hagyományos eredményt kapjunk: így nem értelmezhetjük közvetlenül díszítésként az építőelemek többségét. A részletek játékában egyedül a főhomlokzat kőburkolatában elhelyezett, ornamenssé szerkesztett kőlamella jelent kivételt. Arányaival, felületi játékával és kidolgozottságával középületté emeli az egyszerű házformát. Ez persze nem működne önálló gesztusként, ebben a telepítés és az udvarra nyitott előtér is fontos szerepet játszik.
Ezekben a momentumokban látom a többletet, a minőség létrehozásának képességét egy viszonylag takarékos alakítás mellett. Etyek esetében az orvosi rendelőnél szerencsés módon találkozott a települési szándék a tervezői igényességgel. Így a megépült alkotásból is kiolvasható az a jövőkép, ami egyre magasabb minőségi szintre emeli a közösség rangját a megépült középületek és közterületek gondos alakítása révén. Talán bízhatunk benne, hogy az új rendelő elvei mintává válhatnak a későbbi építések során, ezzel is tovább javítva a település élhetőségét.
Kivitelezés: 2024
Nettó alapterület: 500 m2
Vezető építész tervező: Láris Barnabás
Építész munkatársak: Bors Eszter, Fix Dalma, Zalai Tamás
Tájépítészet: Nemcsok Márton
Megbízó: Etyek nagyközség önkormányzata
További képek a cikk végén található galériában!
Ha tetszett a cikk, és szeretnél előfizetni magazinunkra, itt teheted meg.


