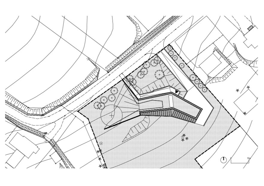
A Besszádok hegységében, a lengyel-ukrán határ közelében épült fel ez az egyszerre nagyvonalú, mégis rejtőzködő, különleges vadászház.
Besszádok hegység (lengyelül Bieszczady) Lengyelország délkeleti részén, kisebb részben pedig Ukrajnában és Szlovákiában terül el, vadregényes vonulatait jávor- és lucfenyőkkel tarkított nagy kiterjedésű bükkösök borítják. A hegység természetes szépsége révén népszerű turistacélpont, bőséges vadállománya miatt pedig a vadászok is előszeretettel látogatják. A lengyel határon a Medusa Group építészstúdió olyan házat tervezett, ami szinte eggyé válik a hegy látványával, és aminek határait maga a természet jelöli ki, nem pedig egy kerítés.


Az építésziroda leírása szerint a természet néhány helyen behatol a szerkezetbe, máshol a kettő kiegészíti egymást. A földszerkezettel és gyepréteggel borított tető kontextusba helyezi a házat, és csökkenti annak túlzott jelenlétét a festői, dombos Ortyt-hegyláncon.
A tulajdonos vadászszenvedélyét szem előtt tartó ház formavilága a hely szépségét hivatott kihangsúlyozni, anélkül, hogy túlzottan beavatkozna abba.
A corten acéllal borított épület bekeretezi a látványt, sőt hatalmas üvegfelületeinek visszatükröződései révén helyenként még duplikálja is azt. A házból, ami bár megbújik a fák között, remek kilátás nyílik a Besszádok hegycsúcsaira.
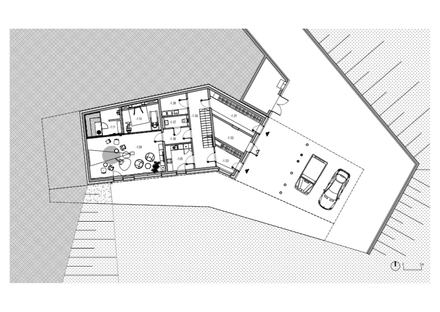
A szomszédok irányából a ház egy hegyvonulatra hasonlító, íves formát kapott, és csak észak felől tárulkozik fel szembetűnően mérete és tömege. Formájának „ketté tört” jellege révén kialakult szárnyak ugyanakkor funkcionálisan tökéletesen megfeleltek a megrendelő elképzeléseinek, az így kialakult privát- és vendég részek által.
A rozsdás corten acél burkolat és vastag zöldtető révén az épület gyakorlatilag beleolvad a tájba, csak az épület letisztult vonalú építészeti jegyei jelennek meg hangsúlyosan a környezetben.


![]() ![]() |
Funkcióját tekintve az épület két részre oszlik, az egyik a privátzóna, amiben a tulajdonos lakrésze és dolgozószobája, valamint a nappali-étkező közösségi tere találhatók, valamint a vendégszárnyra, amiben a spa, az edzőterem és a vendégszobák kaptak helyet. A kihívást az jelentette, hogy a ház különböző funkcióit a telek morfológiája mentén el tudják helyezni.

A belső terek melegségét a mennyezeten és a falakon is megjelenő rengeteg faburkolat, falécezés adják, melyeket helyenként megjelenő betonfalakkal, szürke cementlap padlóval egészítettek ki, melyek a szerkezet látszó acél részeivel is harmóniát alkotnak. A letisztult összképben az otthonosságot a modern bútorok, a melegséget sugárzó anyagok, az aprólékosan megtervezett világítás vagy éppen a kandalló látványa adják meg. A belső terek kialakításánál látszólag nagyon fontos szempont volt a természet beengedése a belső terekbe. Az épület vadászház jellegére pedig mindössze egyetlen szarvasagancs emlékeztet a kandalló felett.
![]() ![]() |

![]() ![]() |
Vezető tervezők: Przemo Łukasik, Łukasz Zagała
Építészek: Jarosław Przybyłka, Anna Gołyga, Michał Sokołowski, Michał Laskowski
Hasznos terület: 352,58 m2
Tervezés éve: 2019
Kivitelezés éve: 2020
Helyszín: Lengyelország
Ha tetszett a cikk, és szeretnél előfizetni magazinunkra, itt teheted meg.








