A nagy múltú Ilcsi kozmetikai cégnek mindezidáig nem volt saját üzlete. Exkluzív előzetes a friss OCTOGON (2015/04) magazinból.
Bár az idehaza is népszerű Ilcsi kozmetikumokat több mint negyven országban forgalmazzák, a nagy múltú cégnek mindezidáig nem volt saját üzlete. Májusban megnyílt szépségmanufaktúrájukról a Hatvani-Korompay tervezőpáros egyik tagja, Hatvani Ádám mesélt.

Érdekes márka az „Ilcsi”, mert úgy lett világhíres, hogy még ma is jobbára csak a szakma és a közvetlen felhasználók ismerik. Ilcsi néni, Molnár Dánielné a múlt század ötvenes éveitől keverte csodakrémjeit, ma már több száz termékből álló professzionális natúrkozmetikai termékcsaládot forgalmaznak, tanfolyamokat szerveznek kozmetikusoknak, továbbá referencia szalonokban az alapító módszereivel kényeztetik a vendégeket. Sok évtizedes munkája elismeréseként Ilcsi nénit kitüntették a Magyar Köztársasági Érdemrend Kiskeresztjével, a márka többszörös Superbrands-díjas és a Magyar-brands listára is felkerült.

Hogyan választ egy ilyen illusztris cég építészt, amikor saját üzletet szeretne nyitni? Csakis a legjobb referenciában bízva. A tulajdonos felfigyelt arra a hírre, hogy a sporaarchitects kategória győztesként 2014-ben elnyerte az Architizer A+ Awards Zsűri és Közönség díját – az M4 két szenzációs metróállomásáért. Mivel ő is valamilyen különleges megoldásban gondolkodott, megkereste az építészeket. Hatvani Ádám (sporaarchitets) és Korompay Attila (térhálózat) olyan formabontó üzletet terveztek, amely magában hordozza az Ilcsi Szépítő Füvek minden alapértékét és filozófiáját. Tradíció és modernitás, manufakturális módon készített berendezés, minőségi anyaghasználat, funkcionalitás és ergonómia – mindez együtt a szemnek is kellemes, megnyugtató, luxus színvonalú környezetet teremt.

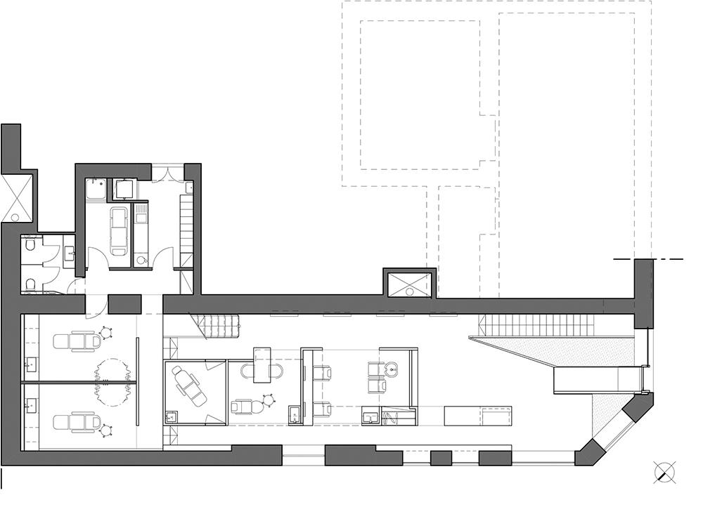
A budai Vár tövében álló, több mint száz éves polgári bérház utcai üzlethelyiségében korábban öltönybolt működött. A jelentősen leromlott helyiséget minden fölösleges szerkezettől, vakolattól, szerelvénytől megtisztították, hogy kihasználhassák a régi ház strukturális szépségét. Ebbe az egyszerű, hosszú, nagy belmagasságú térbe helyezték bele a kozmetikai szalont úgy, hogy megteremtsék a funkció megkívánta intimitást, lehatároltságot, mégis megmaradjon a tér egységes, csarnokszerű jellege.

A Vérmező felől délután „végigsöpör” a napfény az üzlet első részén. A hatalmas üvegfelületeken át akadálytalanul áramlik be a fény. A bejáratot (ami korábban a sarkon volt) áthelyezték az Attila út felé, a fogadótérbe egy süllyesztett kert fölötti hídon lehet bejutni. A kertben az Ilcsi kozmetikumokban is felhasznált növények nőnek. A tágas szalon téglaboltíves alsó szintjére a sokféleképpen kihasználható előadótér került. Az üzlet hátsó részébe galériát építettek, ahol a vizes blokkok, öltözők és más kiszolgáló funkciók kaptak helyet. Az építészeti koncepció a meglévő épület nyers brutalitásában rejlő szépség, a téglafalak, valamint a beépített fa-, és világító plexidobozok kontrasztjára épül. Rusztikus, ipari esztétika találkozik a térelválasztó bútorok letisztult geometrikus egyszerűségével. Színeket szándékosan nem használtak, hiszen a természetes alapanyagokból készülő Ilcsi krémek szép színesek, így jobban kiragyoghatnak a natúr környezetből.

A belső térben a szépségápolás összes műveletének és teljes arzenáljának megfelelő helyet alakítottak ki. Fogadótér bemutatóteremmel, fodrászat, masszázs, manikűr, pedikűr, arcpakolás, kozmetikai kezelések. Mindez komplex térbeli elhelyezést kíván, de egyszerű szervezési elv mentén. A fodrászat például nyitottabb, hiszen ott a hölgyek szeretnek nézelődni, egymással csevegni, az infraszauna és a masszázs viszont teljesen zárt terület. Az építészek a különböző mértékű lehatárolást ötletes és mutatós berendezéssel, a „ház a házban” elvet követő mini épületegyüttessel oldották meg. Ezek az egységek fából és plexiből, lineárisan kialakított funkciódobozokba kerültek úgy, hogy az egyes tevékenységek jól elkülönüljenek, ne zavarják egymást. A dobozok mellett két oldalt lehet közlekedni, a szélesebb útvonal a vendégeké. Aki ide betér, azt exkluzív, kellemes környezet és vendégszeretet fogadja. Az itt dolgozók nagyon szeretik új munkahelyüket, amely harmonikus, kényelmes környezetet teremt az általuk nyújtott magas színvonalú szolgáltatásokhoz.

Építész tervezők: Hatvani Ádám (sporaarchitets), Korompay Attila (térhálózat)
Építész munkatárs: Németh Nóra
Kertterv: Varga Tibor, Kiss Blanka
Tervezés éve: 2014-2015
Kivitelezés éve: 2015
Projekt bekerülés: 150M Ft
Szöveg: Petrik Rita
Építész: Hatvani Ádám, Korompay Attila
Fotó: Bujnovszky Tamás
Ez a cikk nyomtatásban is megjelent az Octogon magazin 120 - 2015/04. lapszámában
A lapszám tartalmából:
Séta Milanóban, Leiviskä-interjú, villák és családi házak
Megnézem Előfizetek
Ha tetszett a cikk, és szeretnél előfizetni magazinunkra, itt teheted meg.


