Családi ház Kovács Péter építész és munkatársai tervei alapján.
Az építészet egyik megfejthetetlen misztériuma a téri dimenzióhoz kötődik. Prózaibban szólva, a jó építész képes megfelelő válaszokat adni, képes megfelelő színvonalon kézben tartani a túlzónak ható téri programokat, a méretből fakadó túlzásokat is. Debrecenben nemrégiben elkészült egy ház, ami ebbe az építészeti misztériumba vezet be minket, a megértés és megoldás fokozataiban.

Debrecen északnyugati határán, a Köntöskertnek nevezett, szakadozott telekosztású, zömében jellegtelen, csúnyácska családi házas hosszú utcájában épült fel egy ház. Vezető tervezője ugyanaz az építész, akinek debreceni stúdióját nemrégiben az elragadtatás hangján mutattunk be az OCTOGON 2014/7. számában. Lenyűgözött minket a helyszín értő analízisén nyugvó magabiztos, autonóm teremtő erő, ami az épület formálása során egy megkapó poétikai rendszerré állt össze. Ott az építész tulajdonképpen a maga szabta keretek között, magának tervezve, teljes mérnöki repertoárját felvonultatva bontakozhatott ki.

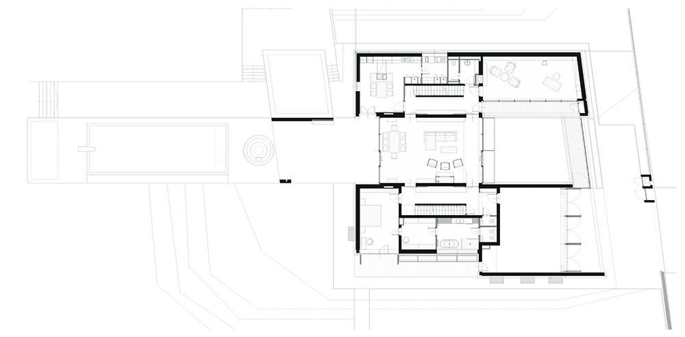
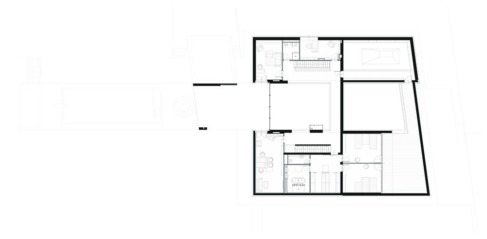
Más a kiindulási pontja ennek az előbbivel szinte párhuzamosan épülő családi háznak. Itt a megrendelő szabta program 750 négyzetméterre vonatkozott, ami több kérdést is felvet, ugyanakkor az új épület szerkesztése csak e felől a volumen felől érthető meg pontosan. Napjaink városi embere számára a tér nagysága, úgymond a tér luxusa, varázsos erővel bír. Ugyanakkor egy kortárs családi ház esetében az intimitás, a személyesség elvesztésével járhat, könnyen egy kisebb középület, irodaház formáját öltheti a nagyocska villa. Ennél a léptéknél már pusztán a tető mérete torz összképet eredményezhet, miközben az épület belső téri problémáival, ekkor még számot sem vetettünk.

Látogatásunk alkalmával az első benyomás, tapasztalat egyfajta megkomponált bevezetésként hatott. Lamellaként nyíló faelemekkel oldott, zárt látványú, fehér fal síkok fogadtak, amik rétegről rétegre tárultak fel. Különféle magassági viszonyaikkal ezek a síkok finoman vezették át a látogatót a kerítés vonalán, az előkerten, majd egy lenyűgöző, ugyancsak zárható-nyitható átrium felé. A tagozatok arányai a ház téri dimenzióit így csak fokozatosan, lépésről lépésre tárták fel. Valódi kiterjedés csak az épületet megkerülve, a medencés kert felől érezhető. Itt viszont az építész egy szinte kapuzattá formált teraszfedéssel őszintén tárja a szemlélő elé azt a szerkesztést, aminek eredményképpen a három fő tömegosztásból a középső, ami „kiharapásában” a belső átrium létrejöhetett, a kert felé, a részben zárt oldalfalú terasszal fut ki. A terasz mögött két szintet átfogó üvegsávval teremt a ház belső világa – nagy belmagasságú nappalija –, kapcsolatot a kerttel.

Az üvegmezőt látva tudatosul tulajdonképpen, hogy körbejárva a házat szinte nem látunk ablakot. A ház síkjai, akár egy absztrakt festmény esetében letisztult, feszes képletet mutatnak, elrejtik a bevilágítókat. A falmezők úgy takarják ki az ablakokat, hogy közben felülről a fényt az épület belső terébe terelik. Tudatos döntés volt a lakók részéről, amit az építész is támogatott, hogy ez a ház, mintegy elfordulva a jellegtelen környezettől, befelé koncentrál. Némiképpen paradox módon ebből a jó értelembe vett befelé fordulásból születik meg az a vágyott intimitás, amiből egy kortárs családi ház esetében az otthonosság fakad. A fentről betörő fény pulzálóvá teszi a különféle, egymás mellett lévő terek atmoszféráját és oldják a méretviszonyokból fakadó esetleges aránytalanságokat. Fénnyel átjárva, fénybe mártva a belső terek, a kétszintnyi nappali, az azt keretező galériaközlekedő, a kisebb szobák szoros téri kapcsolatba kerülnek egymással.

Átöblögeti, átmossa a kontúrokat, a határokat és az arányokat a fény. Van még egy zseniális építészeti fogás, ami csak később tisztul le látogató fejében. A „térfény játék” dramaturgiáját, a pulzáló terek kapcsolatát, méret és térviszonyait, a határoló síkok szerepét egy „ház a házban” modellezik Kovács Péterék.

A könyvtárszoba léptéke, kupolájának felülvilágítós áttörése, polcrendszere, falmezői, illetve ablakos kapcsolata az átriumos belső kerttel mindent elmond kicsiben, amit a teljes program nagyban valósít meg. Itt érünk a ház legbelső rétegéhez, a leglényegesebb dimenziójába. A tervezők itt szinte újramesélik a házat. Rendkívül intellektuális, újabb poétikai rendszert létrehozni képes, csodálatos megoldás ez. Gratulálunk!

Építész tervező: Kovács Péter DLA
Építész munkatársak: Ferenczi Ottó, Hajdú Barna, Kazamér György
Belsőépítész tervezők: Frank György, Tatár Balázs
Statikus tervező: Dezső Zsigmond, Kocsis Attila
Környezetrendezés: Sándor Tamás
Átadás éve: 2014
Bruttó alapterület: 750 m2
A cikk nyomtatásban megjelent az OCTOGON magazin 2015/4-es lapszámában.
Ha tetszett a cikk, és szeretnél előfizetni magazinunkra, itt teheted meg.


