Két fiatal pályakezdő tervező gondolt egy merészet, és példát mutattak, hogyan lehetne újrahasznosítani az óbudai BUSZESZ gyár területét a fenntarthatóság jegyében. (x)
Két fiatal pályakezdő tervező gondolt egy merészet, és egy igazán figyelemreméltó, a legapróbb részletekig kidolgozott tervben példát mutattak, hogyan lehetne újrahasznosítani az óbudai BUSZESZ gyár területét a fenntarthatóság jegyében, az „okos” otthon elvárásoknak megfelelve. Szénássy Péter és Kovács Zsolt Kristóf a „Jövő Otthonai” pályázaton mutatták be várostervezési és ingatlanfejlesztési szempontból is kiemelkedő munkájukat.

Finn inspiráció a Duna-parton
„Varga Imre Zoltán városépítészeti mestertanárunktól hallottunk a pályázati lehetőségről, ő ajánlotta fel, hogy akit érdekel, az bátran nevezzen be, mert mentorként segíti a munkát. Mivel az akkori tananyagunk és a pályázati kiírás szorosan kapcsolódott egymáshoz, csapatban is kellett dolgozni, ezért mi úgy döntöttünk, belevágunk. Kicsit elrugaszkodtunk a jelentől, a legnagyobb kihívást az urbanista vonal és a jövőbeli vízió összehangolása jelentette. Nagyon sok előzetes kutató-munkát végeztünk, a területet, amelynek jelentős természeti eleme a Duna, és így még értékesebb, többször is bejártuk.” – mesélték a fiatal tervezők a pályamunkájuk hátterét.

A beépítés és a tömegképzés megalkotásakor a Helsinki városában található Arabianranta negyed beépítési modellje volt az inspiráció. Itt a tömbök U alakot formálva a közeli vízpart felé néznek. Ezt az analógiát alkalmazva az újragondolt BUSZESZ-terv két alapfeltevése egyszerre teljesülhetett. Egyrészről a folyó felé fordulás lehetőséget adott a lakásoknak a Duna látványának esztétikai felhasználására, másrészt a lakások jelentős része délre tájolt, így a nap energiája télen is aktívan hasznosítható.
Fenntarthatóság, energetika U alakban – az okosváros új modellje
A tervező-páros célja egy olyan okos város létrehozása volt, amely okos otthonokon alapszik. A lakások fűtő, szellőztető, árnyékoló rendszere egy hálózatba van kötve egymással. A gondolat leginkább a szőlőfürt analógiájával szemléltethető, amikor is a szemek függetlenül attól, hogy a fürt melyik oldalán helyezkednek és milyen mértékű napsugárzás éri őket, mégis képesek egyenletesen fejlődni. Így, ha a lakásokat a számítógépes hálózatokhoz hasonlóan összekötik, az ellátásuk is összehangoltabban, gazdaságosabban működhet.

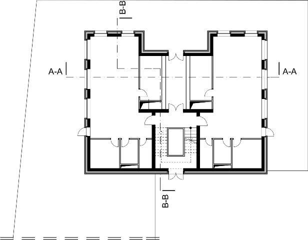
A Duna-partra tervezett „BUSZESZ okosház” 7 szintes, 10 lakórészes. A garázsos pinceszint a talajba félig besüllyesztett. A pince padlója víz-záró vasbeton. A garázs burkolata műgyanta. A pinceszint fölött az úgynevezett iroda-szint helyezkedik el, nagy üvegfelületekkel. Erre jön öt lakószint, szimmetrikus elrendezésben. A tető extenzív lapostető, napkollektorokkal és napelemekkel. Egy szint lehet akár egyetlen lakás is. A lépcsők előre gyártott, vasbeton kétkarú szerkezetek, a lépcsőkarok burkolata kopásálló kerámia. Az akadálymentes lift a lépcső orsóterében kapott helyet.
A tervezők energiatudatos elveinek megfelelően a déli oldalon van a legtöbb ablak, nagy üvegfelületekkel. Keleti és nyugati oldalon mérsékelten, a lakószinteken franciaerkélyekkel. Az északi oldalon csak a lépcsőház kapott ablakokat, a természetes megvilágítás miatt.

A parkolók egy tömbben, fél-szinttel a talajba süllyesztve kaptak helyet, létrehozva a felszínen egy kiemelt sétányt, ami a közelben elhaladó HÉV és az út kellemetlen zajától is véd. A sétány ugyanakkor lehetőséget ad arra, hogy az itt elhelyezett épületek földszintjén egy magasabb minőségű szolgáltatósor legyen elérhető. Egy másik hasonló sétány a terület nyugati szélén is található.
A termékválasztásánál is az energiatudatosság volt a fő szempont, így Hörmann hőszigetelt, szekcionált garázskapuk bizonyultak a legjobb megoldásnak, az okos lakások pedig különösen ellenálló, biztonságos működésű és különböző követelményeknek (tűz-; füst-; hang-gátlás) megfelelő Hörmann bejárati acéljatót kaptak.
Az alkotók az épületet, mint térben elhelyezkedő testet vizsgálták, amit egyenetlen mértékű külső hatások érnek. Éppen ezért, az egyenletes belső működés érdekében egy olyan kiegyensúlyozott rendszer kiépítésére volt szükség, amelyik képes a külső és belső hatásokat felvenni, kezelni, és egyenletesen szétosztani. Az egyes lakások, amelyek a legkorszerűbb technológiákat ötvözik magukban, egy vezérlőpanelről működtethetők. Ezek a vezérlőpanelek rákapcsolódnak egy olyan szerverre, amely lépcsőházanként kerül kialakításra, így a tömbön belül olyan okos otthonok jönnek létre, melyek képesek együtt működni, mind fizikailag, mind virtuálisan is.
„Mi magunk is szívesen laknánk ebben az általunk tervezett okos házban, nagy élmény lenne, biztos újabb tervekre inspirálna.” – összegezte munkáját a fiatal tervező-páros. Mindketten már gyermekkorukban házakat, terveket rajzolgattak, maketteztek, tudták, hogy az építészet lesz az útjuk. Az egyetemen ismerkedtek össze, barátság köti őket össze. Hamarosan diplomáznak, szeretik a szakmát, felkészültek a jövőre, amelyet tudatosan terveznek. Keresik a „Jövő Otthonai” pályázathoz hasonló lehetőségeket, hogy megmérettessenek, és másoktól is tanulhassanak. Az egyetem mellett folyamatosan képezik magukat, nyitottak az új megoldásokra. Úgy érzik, a jövő építészeiként nagy felelősség hárul rájuk, a fenntarthatóságot komolyan veszik, az energiatudatos tervezés a jelszavuk. Amióta a fiúk beadták a pályázatukat, valami készül az óbudai Duna-rakparton…
forrás: sajtóközlemény
Ha tetszett a cikk, és szeretnél előfizetni magazinunkra, itt teheted meg.



