Erős karakterrel rendelkezik ez a diósdi családi ház, amelynek tervezésekor a környezeti lábnyom csökkentése is fókuszban volt. Erről szóló írásunkat a 194-es, 2024/6-os lapszámunkból közöljük.
Nagyjából 15 éve formálódik Diósdon az Árpádház-lakópark önálló családi házakkal, szabadon állókkal, zártsorú beépítésűekkel, az új lakóközösségi terület minden előnyével és gyerekbetegségével. Bizakodásra adhat okot, hogy a tucatházakon kívül most már építőművészeti példát is találunk a parkban. Nincsenek sokan, egy kezemen megszámolom őket. Köztük van az Emília-ház.
Az Emília-ház pozicionálásában, megformálásában a szűkebb értelemben vett helyszínnek is lényegi szerep jutott. A tervezők munkája nem a terv- és meeting-asztal mellett kezdődött: már a telek kiválasztásában jelen voltak. A megbízók az agglomerációban kerestek építési telket, és mivel a tervezők tudták, hogy vannak eladók az Árpádház-lakóparkban, ezért más telkek mellett ajánlották, nézzék meg ezt is. A déli oldalról utcával határolt, öt házhelyes, zártsorú beépítésre kiszabályozott telek középső állását azért javasolták, mert így kiemelt, szimmetrikus kompozícióba kerülhetett az épület – ez már önmagában izgalmas –, továbbá a telek elhelyezkedésének köszönhetően épp az Emília lett az egyik örökpanorámás ház a parkban.

Bizonyára nem lenne Emília, ha nem volna Júlia, a megbízók ugyanis az Equinox több díjjal is jutalmazott (Év háza 2023, Sustainable Tulip Award 2023, Portfolio Green SME of the year 2023, PREFA Award 2023) családi házát, a Júliát megismerve kérték fel tervezésre az irodát; Júlia ráadásul sétatávolságra, Diósdliget fenyves részén található. Zavarban vagyok kicsit, amikor pusztán építészirodáról írok: miképp a hivatkozott Júlia-ház, így az Emília is az egyedi, ún. Equinox System™ fenntarthatósági elvek által vezérelt tervezési és építési rendszer eredménye, illetve hadd hozok be egy idén tavasszal publikált HVG-interjút, amiben Bakos Noémi társalapító és Lapinskas Lilla projektvezető „interdiszciplináris fenntarthatósági gyakorlat”-ként határozzák meg az Equinox-ot.
Megismerve az Emília-házat és építészeit, megfogalmazódott bennem, hogy az Equinox-szal terveztetni alapvető elköteleződést jelent a megbízók részéről arra, hogy a fentiekben idézett gyakorlat résztvevői legyenek. Az ún. mérnöki fa (Engineered Timber) épületszerkezet, esetünkben a CLT (Cross-Laminated Timber) a 21. század fenntartható építési kultúrájának egyik legmeghatározóbb technológiája, ami jelen van már itthon (több CLT épületet lehozott az OCTOGON is), de még mindig idő kell, hogy az építtetők, befektetők teljes mellszélességgel kiálljanak mellette, prózaian szólva, amíg képesek leszünk elengedni a téglát, a követ.

Sőt, akár a teljes vasbeton-alapozást, mert mint az Emília-háznál (nevét a benne lakó öttagú család egyik gyermekének keresztneve után kapta) történt: a ház környezeti lábnyomának csökkentése és a körforgásos gazdaság elveinek követése érdekében a földtől elemelt, beton pontalapokra helyezett, fa gerendavázas alapozást alkalmaztak − a tartószerkezet elemelkedett a talajtól, ezáltal nem jut be a nedvesség a szerkezetbe. Eredetileg talajcsavaros megoldásban gondolkoztak a tervezők, de a kemény terepadottságok (mészkőfennsík) és a feszített tempó (mindössze egy év állt a tervezők rendelkezésére a telek megvásárlásától a beköltözésig!) lehetetlenné tették a talajcsavarok használatát.
A földtől elemelt, egyemeletes épület két-két nyeregtetős ház között áll, a teleklejtés miatt az utcáról enyhe rámpán juthatunk a főbejáratáig. Az archetípusos felépítmények között kitűnik az alacsony hajlásszögű félnyeregtetőivel, előtetőivel, oszlopgerendás-falamellás erkélyeivel és a fekete fenyőfa homlokzatburkolatával definiálható épülettömeg. A könnyed szerkezet nagy megnyitásokkal és Shou Sugi Ban (perzseléses) technikával készült; távolról egy vizuálisan tömör, fekete burkolat – érdekes ellenpontozás.

Kezdetben a Júlia-házhoz hasonló, ún. nyílthézagos vörösfenyő-burkolatban gondolkoztak a megbízók, de a rovaroktól való félelem miatt elbizonytalanodtak a döntésükben, így felmerült, hogy a világos belső mellett legyen hófehér vakolt homlokzata a háznak, végül (jegyzem meg, szerencsére) a természetes rovarmentesség, a minimális karbantartás és a vagány megjelenés miatt beleszerettek az égetett homlokzatba, hallgattak a tervezőkre − mint a sakkjáték menetében: először a világos lépett, majd a sötét.
Kifejezetten napfényes tereket kértek a megbízók, ez is oka a nagy megnyitásoknak, az erkélyek/előtetők mélységének, valamint a nyugati házoldalon kialakított ún. pációnak. A ház nyugati oldala és a szomszédos épület tűzfala közötti területet a sorházas beépítés szokásával és logikájával szemben nem zárták le, felnyitották úgy, hogy az épület utcai és kerti homlokzatain felépített oszlopgerendás erkélyszerkezetekkel kapcsolták Emíliát a tűzfalhoz. Fent lebegő-lamellás építészeti konnexió, lent szabad átjárás az elő- és a hátsó kert között, egyúttal szellős, napjárta oldalsó terasz, innen, ezért a név: páció.

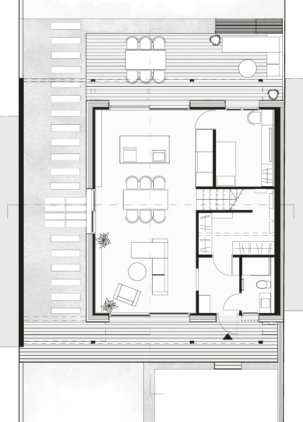
A ház tartószerkezete – így a tartófalak, födémek, tetőszerkezet is – CLT-elemekből készült. Az osztályozott, szárított, kiváló minőségű, tömör luc alapanyagú, természetes szerkezet (aminek a nyomószilárdsága például a C20/25 szerkezeti betonéval egyező) sajátos hangulatot biztosít a belső terekben. Az Emília földszintjének felét a nappali-étkező-konyha közös tere foglalja el kilátással, kijárással az utcai terasz-kert felé (a panoráma irányába), észak felé a kertre, nyugati irányba pedig a pációra. A méretes megnyitásokat az utca és a kert felé úgy pozicionálták, hogy amikor például a kert teraszán vagy a kertben állunk, akkor is szabadon rálátunk az előkertre, utcára, tájra. Kis közjáték a megnyitásokkal kapcsolatban: a család szívesen néz projektorral kivetítőn filmeket, amihez tökéletes a páció, a szomszéd ház tűzfala, a nézőteret pedig a nappali biztosítja.
A házban nincsenek „leeső terek”, ez a belépés után hamar kiderül. Az előszobából egy vendégmosdó-zuhanyzó, valamint tároló-gépészet nyílik, utóbbi a „sötét tér”, az emeletre vezető lépcső alatti terület, aminek minden centiméterét sikerült a raktárfunkcióra kialakítani. A tároló mögött, a kert felé, bejárattal a konyhából vendégszobának, dolgozószobának használt helyiséget rendeztek be. Ez a kialakítás egyenlő a fénybe való megérkezéssel, azaz a kevésbé napsütéses terekből (előszoba, dolgozó, illetve a fénykürtővel bevilágított emeleti lépcsőház), vagy épp a természetes fénnyel el nem látott tárolóból lépünk át a nappali-étkező-konyha napsütéses terébe.

Ugyanez érvényes az emeleti hálószobák és fürdők esetében is: ott a lépcsőház és közlekedő jelentik a „takarást”, a hálószobák, fürdők pedig a fényes színpadot. Lent és fönt egyaránt majd’ minden lakóhelyiség, fürdőablakot vagy teraszajtót kapott – a szobák teraszkapcsolatosak, az emeleti gyerekfürdő fénykürtővel bevilágított –, az ablakok méretét, elhelyezésüket, az erkélyek kiülését a tervezés során elvégzett dinamikus benapozás-vizsgálatok eredményei alapján határozták meg (ebben a ClimateStudio segítette a tervezőket). És hogy még világosabb legyen a nappali-étkező-konyha, szakaszonként fehér, gipszkartonos fedést helyzetek el a CLT felületén, ami ezen kívül jórészt látszó felületként van jelen a belső térben.
A fotók, az alaprajzok sok mindent elmesélnek, mégis a ház atmoszférája, a CLT-technológiából adódó sajátosságok a helyszínbejáráskor tapasztalhatók meg. Kánikulai napon toppantunk be, a környező házakon még dolgoztak. Kint úgy +38 fok, bent +26, kint kopácsolás, melózaj, bent csend, a nappaliban állva tudom, de nem hallom, hogy az emeleten jönnek-mennek a gyerekek. Úgynevezett dinamikus termikus modellezési elemzéseket végeztek el a tervezők azért, hogy az épület aktív hűtési és fűtési hőigényét minimálisra csökkentsék.

Az épületben napenergia táplálja a hűtő-fűtő levegő-víz hőszivattyút, de az épületburok, a passzív árnyékolás, az épülettömeg hőtartása, a smart-rendszerű redőnyök, a természetes szellőzés együttesen eredményezték a tapasztalatomat: nincs légkondi, mégis mindenhol egyenletesen hűvös a ház, csukott ajtók-ablakoknál csend van a belső térben, az akusztikai gátlóhatás még a szintek között is működik. Amit pedig a helyiektől tudok, hogy voltaképp az elmúlt télen szinte nem is kellett fűteniük…
…és még valami: 5 személy, 137 négyzetméteren. Tehát a „klasszikus igényekhez” viszonyítva egy kiérlelt, jó alaprajzzal, a terek használatának, a térben való mozgások, tevékenységek elemzésével az alapterület-csökkentés megoldható, a végeredmény pedig egy élhető, anyagilag is fenntartható családi ház.
Tervezés, megvalósítás: 2022 − 2023
Alapterület (nettó): 137 m2
Építészet: Kosik Péter, Bakos Bálint, Molnár Máté (Equinox International Kft.)
Belsőépítészet: Kosik Péter
Statika: Dr. Merczel Dániel
Épületgépészet: Pártl Bence
Épületvillamosság: Pihelevics Gábor
Ha tetszett a cikk, és szeretnél előfizetni magazinunkra, itt teheted meg.



