Erről szóló cikkünk a 133-as, 2017/1-es lapszámunkból közöljük.
Logikus építészeti és belső téri szervezésén, visszafogott anyaghasználatán, kubusosságán túl jóval több ez a villaépület, emóció, kapcsolat az őseivel, még ha első pillantásra nem is értenek velem egyet.
Érzelem és ihletforrás, tágabb történeti kapcsolatok nélkül nem tudok közelíteni gondolatilag egy házhoz, legyen az köz- vagy magánépület. Az, aki mérnöki leírást vár itt, kérem, ne is olvasson tovább. Nem vagyok építész vagy szakági tervező, tisztán humán tollforgatóként másra, nem a mérnöki szerkezetre, a gépészetre, az innovációra figyelek elsősorban. Talán másodsorban sem. Történetek, élmények, a már mondott emóció, mintázatok jutnak eszembe, ha egy épületet, építményt látok. Most is ez történt.

Az általam megismert, Tóth Project tervezte házakban azok karaktere, s talán a régóta együtt dolgozó tervezői csapat ízlése miatt sok hasonlóságot, „kézjegyeket” találok, mégsem beszélhetünk arról, hogy a családi házaik, villaépületeik sematikusak lennének. De pont a hasonlóság adja, hogy az eddig megépült házak között is vannak csúcspontok, kivételek, amik vagy új irányt jeleznek, mutathatnak ebben az építészetben vagy valamiféle szerencsés együttállás unikális eredményei, mint éppen ez a ház.
Óbuda külső, a Hármashatárhegy közeli területén járok, ahol bevallom, korábban még nem, vagy csak évtizedekkel ezelőtt talán. Érzésem szerint Budának ez a tája őrzi még, főként a telekadottságok folytán, utcaszerkezetében a mezőgazdasági múltat: az egykorvolt szőlőparcellák, gyümölcsösök helyét a 20. század második felétől, különösen a hetvenes évektől hétvégi házak, később családiak váltották fel. A terepviszonyok szinte állandója a nyeles telek ezen a tájon, aminél egyébként az építészi szellem és gyakorlat képes a hátrányt (keskenység) előnyre váltani.

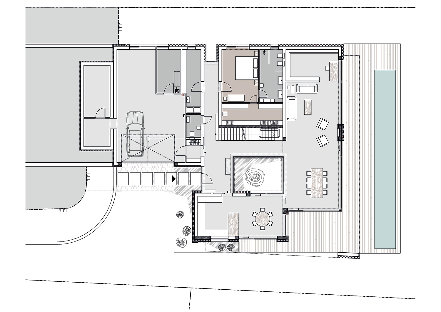
Nem mutatja magát ez a ház az utcáról, mivel a telekmegosztás miatt a telek hátsó, immár önálló részére épült. Szemérmes, mint az első bálozó lányok még akkor is, amikor az emelet önálló teraszkijáratához és a ház főbejáratához lefutó rámpák találkozásánál pillantunk a házra, a hófehér vakolt részekkel és betonlapokkal képzett homlokzatokra. És tartózkodó szintén a kerti, erős vertikalitású, nagy üvegfelületekkel felnyitott, vagy épp a zártabb, keskenyebb homlokzati szakaszok körül pásztázva. Mintha sugallna valamit.

Az előérzet a belső térbe lépve válik valósággá. Ekkor értem meg ezt a házat, a szándékot, ami a nagyon pontos igényekkel felvértezett házaspárt és a velük nagyon egyívású építészeti ízlésű architektusokat vezérelte, vezérelhette. A külső építészet kevés anyaggal, textúrával megkezdett története a belsőben éri el a cselekmény csúcspontját. Az előtérből, szinte egy lépéssel, az ajtón innen feltárul a teljes földszinti térstruktúra. Középpontjában egy, a belső térrészek felé zárt, az épület tetején nyitott, körbejárható üvegkubus, amiben száz év körüli olajfa áll. Magára vonja a tekintetet, mégsem zárja el a látványt a kert, és a transzparens elhatárolású konyha, érkező, nappali felé. Kevés, funkcionális, sok esetben egyedi a bútorzat, nem csak a közösségibb, de privát terekben, vagyis a földszinti szülői hálóban és az emeleten, a gyerekek és a vendégek szobáiban egyaránt.

A tiszta, áttekinthető enteriőrkép, a bizonytalanná váló téri határok, a növénnyel ültetett átrium jellegű központozás nem csupán a legjobb nemzetközi villaépítészeti példák közé repítik ezt a házat, de a modernsége ellenére felruházza valami archetipikussal is: a klasszikus villaépítészettel. Mert ugyan a villaépítészet forrásának mondott római villa funkciójának, működésének köze sincs ahhoz, amiről itt írok, mégis érzésem szerint távoli, familiáris kapcsolatban áll azzal. Tájba illesztett, mint a távoli rokona: mintha a dombból, a teraszokból nőne ki ez a ház; a kert, a rézsűk házzá, építménnyé válnak.
A hófehér tömb – mivel kertek veszik körül, a kerti homlokzatával pedig keskeny erdősávra néz – rügyfakadástól lombhullásig mintha egy hatalmas zöld párnán ülne. És végül, de nem utolsó sorban a ókori római villák központi, mennyezeti megnyitása, a compluvium, ami a benapozást és vízgyűjtést szolgálta, itt, modern leszármazottjánál a központi, felül nyitott üvegkubusnál pozíciójában, megformálásban immár építészeti jelként, esztétikumként köszönti a villa lakóit.
Építészeti tervezés: Tóth László, Papp László, Schalling Frigyes, Schmidt Péter (Tóth Project Építésziroda Kft.)
Tervezés éve: 2014
Átadás éve: 2016
Hasznos alapterület (nettó): 286 m2 + 165 m2 (fszt. + emelet)
További képek a cikk végén található galériában!
Ha tetszett a cikk, és szeretnél előfizetni magazinunkra, itt teheted meg.



