Cikkkünk a 149-es, 2019/1-es lapszámunkból közöljük.
Miután II. József 1784-ben feloszlatta a karmelita rendet, a budai Várban álló templomukat színházzá alakították. A legenda úgy szól, hogy a munkákat irányító Kempelen Farkas a templom homlokzatára fricskának szánt feliratot is tervezett. A „mise helyén múzsák, szentségház helyén színjáték” mottó azonban túl radikálisnak bizonyult, és végül elmaradt.
Az akkor csak tervezett helyén ma újra a karmeliták emlékét őrzi a felirat. A kormány 2014-ben jelentette be, hogy a hatalmi ágak rég esedékes szétválasztásának részeként a Parlamentből a budai várba költözteti a Miniszterelnökséget. A kinézett célhelyszínt a Sándor-palota szomszédságában ugyan kolostorként emlegetjük, de alig néhány évtizedig használták eredeti céljára. A színházi átépítéssel párhuzamosan a szomszédos tömbökbe állami és katonai hivatalok költöztek be – és ez többé-kevésbé így is maradt azóta.

A Miniszterelnökség már az 1920-as években kinézte magának az épületegyüttest, de a terv megvalósítása közel egy évszázadig elhúzódott. A feladatot 2014-ben nemzetbiztonsági szempontból minősített, meghívásos közbeszerzési eljáráson elnyerő Zoboki, Demeter és Társainak (ma már ZDA-Zoboki Építésziroda) voltaképp az eddigi hivatali funkció emelt szintjéhez kellett egy erre a célra nem különösebben alkalmas, műemléki épületet újragondolnia. A tervezési terület az utoljára a hetvenes években felújított és átépített Várszínházat, illetve a meglehetősen lepusztult egykori kolostort fedte le a Színház utca kapcsolódó szakaszával, a komoly statikai problémákkal terhelt bástyasétánnyal és többszáz méter hosszú várfalszakaszszal, illetve az északról csatlakozó Püspökkerttel, amely az ötvenes években elbontott, hajdan részint a tábori püspökség helyiségeinek otthont adó kiszolgáló épület helyén jött létre.
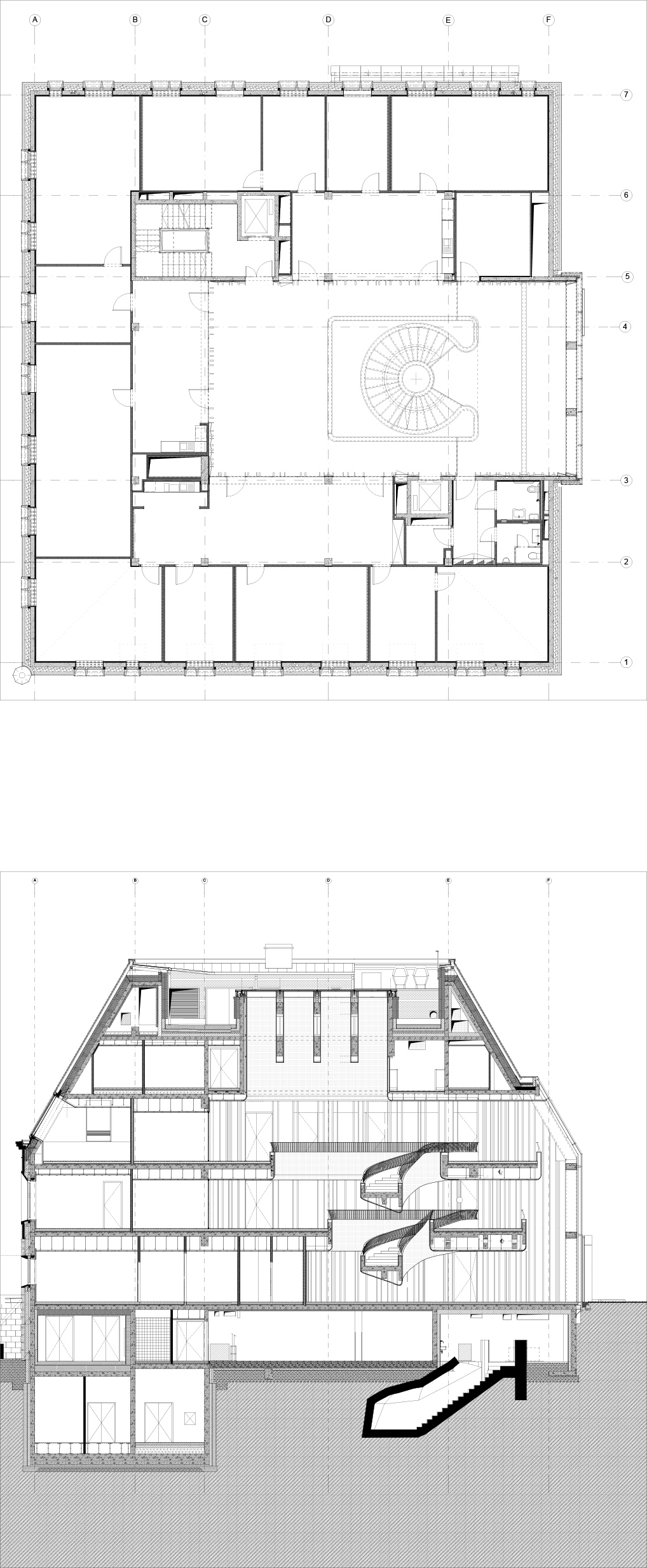
A munka a konkrét tervezési program kialakításával, azaz az igények és lehetőségek felmérésével indult. Gyorsan kiderült, hogy a szükséges reprezentatív terek elhelyezésére a kolostor felel meg a leginkább, az irodai és közösségi funkciók pedig egy új irodatömbbe férnének. Utóbbi a háború előtt a Püspökkert helyén állt klaszszicista ház léptékét és beépítési karakterét veszi át. Itt a legnagyobb kihívást a régészeti maradványok (a korábbi alapfalak, valamint az előkerült középkori pincék) megőrzése jelentette. Ennek teljesítésével is meglett a hét szint: a föld alatt kettőn garázs és raktárak, a földszinten kiszolgáló területek és menza, az elsőn és a másodikon jellemzően 2-4 fős irodák, a tetőtér két emeletén pedig kiszolgáló helyiségek, öltözők és gépészet. (A két épületben összesen 150-160 munkaállomás található.)

Megbízói elvárásra a homlokzat udvariasan illeszkedő, egy kőtömbből faragott ablakkávái középkori előképeket idéznek. A visszafogott eleganciájú belső tereket a minden részletében átgondolt, intelligens világítással ellátott átrium szervezi, amelynek puha formáit az építésziroda visszatérő motívuma: közösségi térként és esztétikai elemként is értelmezhető, húzott karú csigalépcső uralja. Ahhoz, hogy az évszázadokon át alakítgatott, mégis szűkös és kötött alaprajzú kolostorépületet a miniszterelnöki reprezentáció kereteihez igazítsák, jó szolgálatot tett a párizsi Élysée-palotához hasonlóan előudvarként átértelmezett belső kert.
A kiemelt útvonalon a vendégek a kolostor klaszszicista, oszlopos főbejáratán jutnak be az udvarra, ahonnan balra fordulva egy új erkéllyel hangsúlyozott kapun léphetnek be. Innen egy eredeti lépcsőházon keresztül érkeznek az első emeletre, a három szerzetesi cellából kialakított fogadótérbe és az abból nyíló miniszterelnöki térsorba. Az ezek elé, a dunai homlokzatra húzott erkély bevallottan reprezentatív funkciókat szolgál. Mindkét új erkély tömbkőből készült, hagyományos, csapolt módszerrel; visszafogott kiképzésük egyértelműen elárulja korukat.

A belsőépítészeti koncepciót a kolostori terek helyreállításának szándéka vezette: fehér falak és mennyezetek, csiszolt matt süttői mészkőburkolat a közlekedőkön, tölgyfapadló a szobákban. E törekvéssel magyarázható az épület legfőbb művészettörténeti érdekessége, a kaszinó-funkcióhoz készült szekkódísz szakszerű elfedése a hajdani refektóriumban, amely ma a kormányülések hófehérre vakolt helyszíne. A folytonosság illúziójának megteremtése köszön vissza a bútorokban, amelyek jellemzően magyar alapanyagokból és gyártóktól való nemes másolatai boldogabb korok valódijainak. A beépített elemek többnyire dió furnérral készültek, antikolt réz kiegészítőkkel.
A Szépművészeti Múzeumból, a Nemzeti Galériából, valamint az Iparművészeti Múzeumból kölcsönzött műtárgyak erősítik tovább az enteriőrök muzeális ízét. A helyszínből adódóan a komolyabb építészeti kihívások közé tartozott a gépészet kezelése. Az új épület esetében a felépítményeket a tető tömegében rejtették el, felülről és belülről is láthatatlan módon. A műemléki klastromba vakolatba épített, intelligens felületi hűtő-fűtőrendszer került, a szekkódíszes refektóriumba pedig padlófűtés, a belépők számára teljesen láthatatlanul. Magyarországon példa nélküliek a lépcsőkbe süllyesztett emelőliftek, amelyek szintén feltűnés nélkül biztosítják az akadálymentességet. Részben a komplex funkcióval, az átlagosnál magasabb biztonsági és gépészeti elvárásokkal, részben pedig az egységes megjelenés igényével magyarázható, hogy a hely gazdagon rétegzett históriájából viszonylag kevés válik olvashatóvá.

Az Ellyps sétány alatt viszont, ahol statikai problémák miatt többszáz tonnányi földet kellett eltávolítani az újkori bástyafal és a most fellelt középkori erődfal között, tapinthatóvá vált a történelem: érdekes, időszakosan használható földalatti rendezvénytér jött létre, amely egy kiásott korabeli sikátoron keresztül közvetlenül is elérhető. Az egykori templomtér kritikus pontja a mostani munkáknak. Itt eddig a KÖZTI-féle átalakítás Várszínháza működött, az első emelet magasságába beépült, lábakon álló, a falaktól elhúzott vasbeton kagylóban ülő nézőtérrel, az alatt levő foyer-val és a szentély helyére épült színpaddal és raktárakkal. Most viszszakerült a járószint az eredeti magasságba; a minimálisan kiemelt színpad és a technika rendezvényteremként való működtetést tesz lehetővé.
A hosszúkás szentély Duna felőli részén eredetileg egy kis kápolna készült a szerzetesek számára, ide két szint belmagasságú, faburkolatos könyvtárat terveztek, a Duna felőli falon újraépített barokk ablakkal. A maga nemében ritkaságnak számító modernista színháztér elbontása funkcionálisan magyarázható ugyan, de kihagyott ziccer egy lehetséges, szakmailag előremutató adaptációra. A visszaállított belmagasságú hajóban feszített arányú, nehezen belakható tér alakul ki a falsíkkal leválasztott szentély és a protestáns templombelsőket idéző új oldalkarzatok következményeként. A raktározáshoz lemélyített pinceszint viszont lehetővé tette a soha nem kutatott templomtér régészeti feltárását (III. András sírja azonban, akit a hagyomány szerint a korábban itt álló ferences templomban helyeztek örök nyugalomra, nem lett meg).

Kibontották a templomhajónak még a színházzá alakítás elején elfalazott oldalablakait, valamint a homlokzat Kempelen-kori vakablakaiba is valódi ablakszerkezetek kerültek. Emiatt viszont mennie kellett a bejárattól bal- és jobbra található, keskeny, egyes részleteiben még a 18. század végi állapotot őrző lépcsőknek. A palotaszerű főhomlokzat mögött most nagyobb méretű helyiségek találhatóak a kiemelt vendégek, illetve a sajtó számára. Ezek a kolostor csatlakozó szárnyában elhelyezett, spirális lépcsőtérből érhetőek el.
A tervek szerint az új Karmelita-termet időnként a széles nyilvánosság számára is megnyitják majd – az alaprajzi elrendezés legalábbis lehetővé teszi a szeparációt a védett funkcióktól. A homlokzat egyes elemei, mint a spaletták, a visszaépített kémények vagy a szolid színválasztás, részben vállaltan esztétikai alapú, tervezői döntések; más részletek, mint az új névfelirat vagy Szent Mihály bronzszobra, a megbízó szándéka nyomán kerültek fel.

Hillebrandt, Mózer, Zoboki
A budavári helyszín gazdag építés- és kultúrtörténete IV. Bélától ível napjainkig.
A most megújult épületegyüttes története egyben a budai Vár nyolcszáz éves históriája. IV. Béla ferences kolostort alapított itt, a Várhegy déli fokán; templomában temették el utolsó Árpád-házi királyunkat, III. Andrást. A kolostor helyén a hódítók a budai pasa palotáját építették ki; ennek romjai az egykori pasai magánfürdővel, a hamammal ma is a kolostor földszinti padlója alatt rejtőznek. 1686 után a romokat a karmeliták kapták meg, akik 1763-ra szép barokk templomot emeltek itt. Húsz évvel később azonban II. József feloszlatta a rendet és elkobozta tulajdonait. A kiürített templomot, amelynek főoltára kalandos úton a sárospataki vártemplomba került, 1786-ban építették át színházzá.
Az újabb kutatások szerint ebben Franz Anton Hillebrandt kamarai építésznek jutott meghatározó szerep, a korábban tervezőnek vélt királyi tanácsos, a sakkozógépéről híres Kempelen Farkas pedig inkább a munkákat irányíthatta. Ekkor bontották el a szentély mellett álló tornyot, és alakították palotaszerűvé a templom homlokzatát. A hajóba fadobozként illesztették be a háromszintes, páholyos, 1200 főt befogadó barokk 122 színháztermet. A színházat 1787. október 16-án nyitották meg, és 1790-ben itt tartott először magyar nyelvű előadást Kelemen László legendás társulata. Az itt fellépő, neves színészek névsorát hosszan lehetne sorolni, az épület leghíresebb előadója azonban más műfajból érkezett: 1800-ban itt koncertezett Ludwig van Beethoven.

A barokk színház egészen az 1940-es évekig fennmaradt – igaz, az utolsó évtizedekben már használaton kívül. Időközben a mellette álló kolostort többször is átépítették, jelenlegi főhomlokzata a 19. század közepén készült. A második világháborúban az épületegyüttes súlyosan megsérült: a födémek csaknem mindenütt elpusztultak, de a templom Duna felőli oldala is leomlott. A teljes rekonstrukció a hetvenes évekig váratott magára. A kolostorba irodák kerültek, a színházat pedig a KÖZTI építészei: Vajda Ferenc, Mózer Pál, Kékesi László újították fel, részben visszaállítva az eredeti barokk templomteret. A 350 férőhelyes új színház 2001 óta szolgált a Nemzeti Táncszínház otthonaként, amely most a Millenárisra, egy szintén a ZDA tervei szerint megújult csarnokba költözött tovább.
Tervezés: 2014 – 2016
Kivitelezés: 2016 – 2018
Alapterület:
Új épület: 5000 m2 (bruttó)
Régi épületegyüttes: 12 600 m2 (bruttó)
Generál tervező: Zda-Zoboki Építésziroda
Felelős tervező: Zoboki Gábor
Projektvezető építész: Silvester Csaba
Vezető tervezők: Csiszér András (új iroda épület), Reppert Béla (műemléki épületegyüttes)
Építészek: Finta Endre, Lasztóczi Péter, Somogyi András, Fekete Attila, Sztankó Gerda, Rutkai Pál, Kovács Eszter, Scheibl Lilla, Vision Építésziroda, Tripartitum Építész Műhely
Belsőépítészet (új irodaépület): Zda-Zoboki Építésziroda, Szlabey Balázs; Mádiláncos Stúdió, Sárosdi-Mádi Krisztina, Pallai Patrik
A műemléki épületegyüttes belsőépítészete a Miniszterelnökség megbízásából:
Felelős tervező: Dragonits Márta
Tervezők: Kruppa Gábor, Butora Tamás, Czina Réka, Furmann-Né Horváth Júlia, Klenk Blanka
Művészettörténész: Bugár-Mészáros Károly, Kernács Gabriella
További képek és rajzok a cikk végén található galériában!
Ha tetszett a cikk, és szeretnél előfizetni magazinunkra, itt teheted meg.



