A hajdani Habsburg-sárga, Pogány Móric által is áttervezett, sokáig elhagyott emlék a 3h építésziroda kezei között született újjá és bővült kolostorrá. Erről szóló írásunkat a 196-os, 2024/8-as lapszámunkból közöljük.
Egy város folytonosan változó szövetében mindig akad egy-egy zárvány, amely meglepő módon őrzi az idő relikviáit. A Városmajor utca sodró forgalmában gyalog vergődve, vagy a dugóban ácsorogva bizonyára sokaknak feltűnt egy sárga, málló, földszintes épület, valaha fehér romantikus ablakokkal és gazdag romantikus csipkézettel tarkítva. Talán el is tűnődtek, mi történhet a kirívó falak mögött, aztán a Város megállíthatatlan áramlása elmosta a felbukkanó kíváncsiságot.
Az erdélyi születésű Pogány Móric a nemzeti stíluskeresés felől indult, pályája derekán már modern ízlésű épületeket alkotott, akinek irodájában Kós Károly is dolgozott. Ő már nem az első tulajdonosa volt az 1847-ben, eredetileg is lakóháznak épült, szóban forgó kis palotának. A korábbi tulajdonosok már végeztek különféle átalakításokat az „U” alaprajzú, bensőséges hátsó kerttel büszkélkedő épületen, amely 1930-ban került Pogány birtokába. Ő meglepően drasztikus módon nyúlt az addig stílusát és léptékét őrző földszintes építményhez, persze tanult építészhez illően csak az udvari oldal képét formálta át. Itt ízlésének megfelelően megszabadult a romantikus külsőtől, és az egyik kertbe nyúló szárnyat magastetős, emeletes szárnnyá alakította.

A múlt század elején még nyaralóövezetnek számító Kis-Svábhegy felőli oldalon kezdetben formás villák alkottak lezárást, e beépítés léptékét máig őrzi több épület is. Ahogy nőtt a város és a tehetős polgárainak vagyona, úgy nőtt a szintszám és zárultak össze a térfalak. A budapesti elit építkezett itt, példa rá a Barabás-villa, de itt épült fel Vida Jenő felsőházi képviselő terjedelmes neobarokk otthona is, nem is beszélve az Árkayakról, akik szintén ebben az utcában leltek otthonra – máig egy leszármazott él immár több lakásra osztott villájuk egyik részében. Az egészségesen zöld területen helyet kaptak közcélokat szolgáló intézmények: iskola, szanatórium – utóbbiban, amely ma már szívkórház, olyan hírességek kerestek gyógyulást, mint Babits vagy Ady Endre.
Ezeket, ahogyan a villákat is, mind jeles építészek tervezték, legismertebb Kós Károly iskolája, de az utca a nagyváros felől például Preisich Gábor kevésbé ismert, többemeletes bérházával indul. A második világháborúban a zsidóüldözések idején dicstelen szerepet játszó utca több háza is megsérült, a háború utáni beépítéseket pedig ismét saját koruk építészeti irányzatait magas színvonalon képviselő hozzáállás jellemzi. Mára ez az építészeti skanzennek is felfogható utca Budapest legélhetetlenebb, benzingőzben fuldokló közlekedési csatornája.

Ebben a közegben valódi zárvány, értékes relikvia a földszintes gótizáló épület, amely puszta létével felkiáltójel. Amely felhívja a figyelmet a hely topográfiai karaktere és használati módja közt feszülő ellentmondásra, a nagyváros mohó és önpusztító burjánzására. Ilyen viszonyok között kellett a 3h építészeinek megtalálni a romantikus épület megújulásának és bővülésének kortárs lehetőségét, ráadásul egy nem mindennapi funkció számára, amely végképp kiáltó ellentétben áll a folytonos mobilitást hajszoló nagyvárosi léttel. A ház ugyanis Pogány Móric 1942-ben bekövetkezett halála után a Keresztes Nővérek kongregációjának birtokába jutott.
A szent keresztről elnevezett, svájci alapítású irgalmas rend a 19. század közepe óta végzi küldetését, az 1913-ban alakult magyar tartomány székhelye pedig Zsámbékon volt. 1949-ben még belső felújítást végeztek a Városmajor utcai épületen, amelyet 1952-ben államosítottak, és csak a rendszerváltás után, 1992-ben került vissza a nővérek birtokába. Az 1948-as feloszlatáskor 466 tagot számlált közösségük, ma négy nővér él a házban, akik folytatják a szolgálatot. Az átalakítás célja a bővülni szándékozó rend központjának kialakítása, rendház és közösségi központ létrehozása volt.

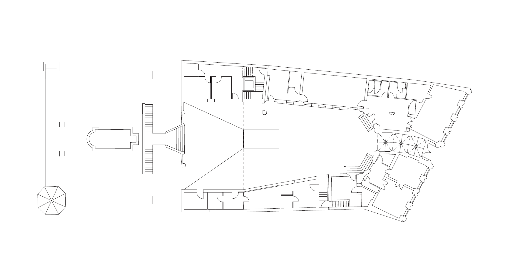
A tervezés már 2012-ben elindult, az iroda által szerelemprojektnek is tekintett munkának azonban nem vált kárára az idő és ráfordított gondolkodás. A rend puritán és tiszta lelkiségre törekvő karaktere közel áll a 3h tervezői attitűdjéhez. Kis túlzással fogalmazva nem érte meglepetés a kritika íróját a fehér falak között, a feladatot mintha pontosan rájuk szabták volna. A történeti építészeti értékek elemzése egyértelművé tette a Pogány-féle utólagos hozzáépítés gyengébb minőségét, így annak elbontása mellett döntöttek. Ezzel teret nyitottak az udvar felé egységes megjelenésű új szárnyak kialakítására a gótizáló homlokzatok felújítása, illetve helyreállítása mellett.
A tervezők eredeti koncepciója, az udvari szárnyak hátsó összekötése – és ezzel zárt kolostorudvar létrehozása – nem nyerte el a műemlékes tervtanács támogatását, ők az „U” alakú alaprajzhoz ragaszkodtak. A végeredmény láttán elmondhatjuk, hogy helyesen: a romantikus utcai keresztszárnyat magunk mögött hagyva, az „U” két szárát képező kortárs szárnyak kapuzatként foglalják keretbe a lankásan emelkedő, szépen kialakított kertet, amely mintha egy másik világba vezetne.

A fehér tömbök a konzekvens formálásnak köszönhetően szoborszerű kiegészítései a szolidan újjávarázsolt gazdag architektúrának. A megdöntött falak és az enyhe dőlésszögű, különböző síkokban megtört tetőzet azonos felülettel jelenik meg, a fal eresz nélkül fordul át tetőbe, csiszolt sziklatömbök hatását keltve, egyszerre idézve ősi és kortárs asszociációkat. A szimmetrikus beépítés keleti oldalán, az alacsonyabb, földszint plusz egy szintes szárnyba kerültek a nővérek lakrészei és közös helyiségei, a másik oldalszárnyban három szinten további közös és lakóegységek találhatók.
A felújított műemléki részbe kerültek az utcával is kommunikáló helyiségek, amelyek a rend nyitását szolgálják a tágabb közösség felé. Ennek kulcseleme a felújított kápolna, amelynek egyszerű, téglalap alakú terét egy komplex téri eszközökkel, fénnyel és áttört térfalakkal megalkotott szentélykialakítás emeli spirituális magasságba. A tervezők vallomása szerint előképük Fra Angelico Angyali üdvözlet című képének kápolnatere volt, az ott ábrázolt fény, a zárt és nyitott, védett és határtalan tér kontrasztját egy zajos utca menti szimpla szobában létrehozni valóban bravúr.

A belső kialakítás magas minőségben rímel a külső puritán megfogalmazására. A nővérek lakrészei egyszerre elmélkedésre szolgáló zárt cellák és kényelmes minimálterek a zöld udvar látványával. Számomra, akihez közelebb áll Assisi Szent Ferencnek a természettel szoros egységet alkotó felfogása a teremtés mibenlétéről és működéséről, furcsa, hogy a majdnem padlóig érő nyílásokon át nem léphetünk ki az idilli kertbe, de ez a tervezők és az építtető tudatos döntése nyomán alakult így.
A konzekvensen kortárs eszközökkel megfogalmazott, középkoriasan zárt kolostori asszociációt erősítik a fehér homlokzatba mélyen süllyesztett nyílások. A történeti építészetet képviselő, klasszikus szerkesztésű, szabályos utcai szárny és az organikus természet között a szabálytalan tömegekkel, változatos dőlésű síkokkal szerkesztett kortárs bővítmények jelentik a fizikai és spirituális átmenetet. A megvalósult állapotot nyugodtan nevezhetjük geometrikusan organikusnak, ahol az épített struktúra a természetes kristályszerkezetek formavilága felé mozdul.

A kolostorkert kialakítása finoman rímel a hajdani kolostorudvarok szerkesztettségére, miközben helyzeténél fogva a naturális természetet is idézi. A dombra felkúszó, szabálytalanul határozott tömegek, a teraszosan emelkedő kert, a hátsó telekhatár felé kinyíló beépítés mind a transzcendencia érzését erősíti, amely a hely és funkció alapja. A puritán megfogalmazás és az emberi lépték azonban visszaránt a földre és emlékeztet a 21. századi kereszténység számára követhető viselkedésre. A kolostorépület abszurd városi beágyazottsága ezt tovább erősíti, emlékeztet az individuum és közösség viszonyának ellentmondásaira. A 3h építészeti válasza konzekvens, magas minőségben megvalósult reakció napjaink kínzó kérdéseire.
Tervezés: 2012 – 2021
Kivitelezés: 2022 – 2023
Terület: 1072 m2
Vezető tervező: Csillag Katalin, Gunther Zsolt (3h Építésziroda)
Projektvezető építész: Békesi Tamás
Munkatársak: Novák Veronika, Rab Sarolta, Mokos Mariann Ágnes, Tóth Annamária, Guilherme Leick, Mihály Mirtill
Tájépítészet: Kapás Enikő
Műemléki Szakértő: Branczik Márta
Fitout fővállalkozó: Arrabona Konstrukt Kft.
További képek a cikk végén található galériában!
Ha tetszett a cikk, és szeretnél előfizetni magazinunkra, itt teheted meg.


