Lakóépület vakoknak a Svábhegyen.
Vakok Batthyány László Római Katolikus Gyermekotthona Óvoda, Általános Iskola. Ez a kiírás áll a XII. kerületi Mátyás király úton lévő intézmény bejáratánál, és ha körbenézünk, rögtön látszik, hogy nem egy átlagos ingatlanhoz érkeztünk. A svábhegyi villák között buja a tavaszvégi vegetáció, de valami furcsa elhagyatottság is érezhető, miközben bent, ahol a hegyoldalban haladunk lefelé az új épület felé, korrétegeken is áthaladunk. Mintha már nem is lennénk a térképen.

Anna nővér még a nyolcvanas években kezdett el olyan sajátos nevelési igényű, látássérült, illetve látás- és mozgássérült gyerekek óvodai, általános iskolai nevelésével foglalkozni, akik a többi gyermekkel nem foglalkoztathatók együtt. Itt, a valahai főúri villanegyedben (ami az ötvenes években értelemszerűen lett a káderdűlő), a rendszerváltáskor kapták meg az első épületüket, ami állítólag a Dréher család egyik villája volt, bár ebből ma nem sok látszik. Lejjebb, a hozzá kapcsolódó második épületet a kilencvenes években maga Makovecz Imre (vagy az irodája) tervezte, ami egy zárt folyosóhíddal csatlakozik az új épülethez.

Míg a Makovecz szárny vörös téglás, alpesi tetős, és sokféle szögből és ferde tetőből összeálló bonyolult egység, az új egyszerű fehér tömbjével virít ki a zöld lombok közül. Magas téglakubus, amit a színesre keretezett, változatos ablaknyílások és az északnyugati (a külső bejárat feletti) sarok perforált rézborítása ellenpontoznak. Ami a Vasas Pasaréti úti vívócsarnokánál néhány éve híressé tette a tervezőket Kendik Gézát és az A4 Stúdiót (OCTOGON 2013/5), azaz az ottani régi, edzőtermi tömb napfényben aranyló lemezbe csomagolása, itt jóval visszafogottabban tér vissza. És funkciókkal, mert a lemezlapok Braille-írásos perforációi szűrt, de határozott fényt is engednek az épületbe (a vakokat és gyengén látókat főleg az erős fények zavarják és zavarják meg).

A bejárat feletti sarkon pedig az épület születésének egy másik különlegessége kapott vizuális jeleket: az új tömböt ugyanis közös, azeri-magyar finanszírozással hozták össze, így itt Rubik-kockák motívumai keverednek az azeri lángokkal. (A magyar állam mellett az azeri elnök, Hejdar Alijev alapítványa állta a költségeket, a beruházás összköltsége félmilliárd forint volt, ennek majdnem a felét, /240 millió forintot/ állta az azeri alapítvány.)

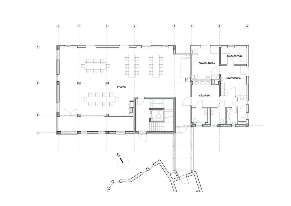
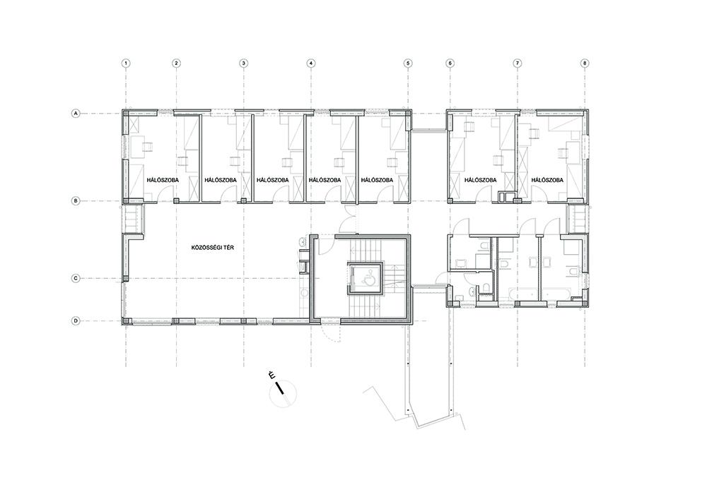
Az új épületbe az intézetnek olyan növendékei költöznek majd be, akiknek korábban már nem jutott hely: akik betöltötték ugyan a 18. életévüket, de halmozottan sérültek, felügyelet illetve segítség nélkül szinte képtelenek az önálló mozgásra, életre, és nem foglalkoztathatók együtt a többi gyermekkel sem. A felső három szint nagyméretű lakószobáit a lehető legegyszerűbb, hosszában futó tengelyfolyosóra, illetve kisebb keresztfolyosókra szervezték, alul pedig foglalkoztatók lesznek –, valamint a már említett folyosóhíd, ami a főépülettel köti majd össze őket, ahonnan az étkeztetést és a terápiás ellátásokat lehet majd akadálymentesen oldani.

A három épület azonban itt nemcsak három különböző korú, állagú és minőségű házat és korréteget jelenít meg, de ahogy lefelé haladunk, kissé az utcán még érezhető kertvárosi realitásoktól is eltávolodunk. Az új épület magas fák között, telke szinte összeolvad a Béla király úti korábbi gyerekszanatórium területével, amit lassan két évtizede zártak be, a pusztuló pavilonépületek között pedig burjánzó természet vette át a hatalmat. Nem ritka itt a kószáló vaddisznó – és az a kölyökróka is csak egy friss, esőmentes helyet talált magának, amikor a főbejárat melletti sarokba vackolta be magát.

Ez tényleg egy külön világ.
Vezető tervező: Kendik Géza (A4 Építésziroda Kft.)
Építész tervezők: Papp Zoltán, Dóczy Viktória, Maza Orsolya Studio (A4 Építésziroda Kft.)
Kert- és tájépítészet: Preszter Márta
Tervezés éve: 2012-2014
Átadás éve: 2015
Összesített alapterület (bruttó): 1500m2

Szöveg: Torma Tamás
Építész: Kendik Géza
Fotó: Bujnovszky Tamás

A cikk nyomtatásban megjelent az OCTOGON magazin 2015/5-ös lapszámában.
Ha tetszett a cikk, és szeretnél előfizetni magazinunkra, itt teheted meg.


