Kortárs megoldásokhoz is nyúlt az építész az Eger közelében található kis kőház újratervezésekor. Erről szóló írásunkat a 193-as, 2024/5-ös lapszámból közöljük.
Alább olvasható cikkben arra teszünk kísérletet, hogy egy olyan épületről beszéljünk, aminek léptéke, építészeti problémái, megjelenése, karaktere meglepően hathat magazinunk olvasói számára. Olvasóinkat ugyanis általában a modern progresszió hazai csúcstermékeivel, léptékében, (köz)funkciójában megkerülhetetlen építészeti történéseivel, az építészeti örökség védelmének, rehabilitációjának látványos megnyilvánulásaival kényeztetjük. Ez esetben azonban valami másról van szó. Két fogalom kapaszkodik írásunkban össze és jár érzéki táncot, ami nem techno és nem tangó, hanem valami légiesen megfoghatatlan és egyben húsosan megragadható koreográfia.

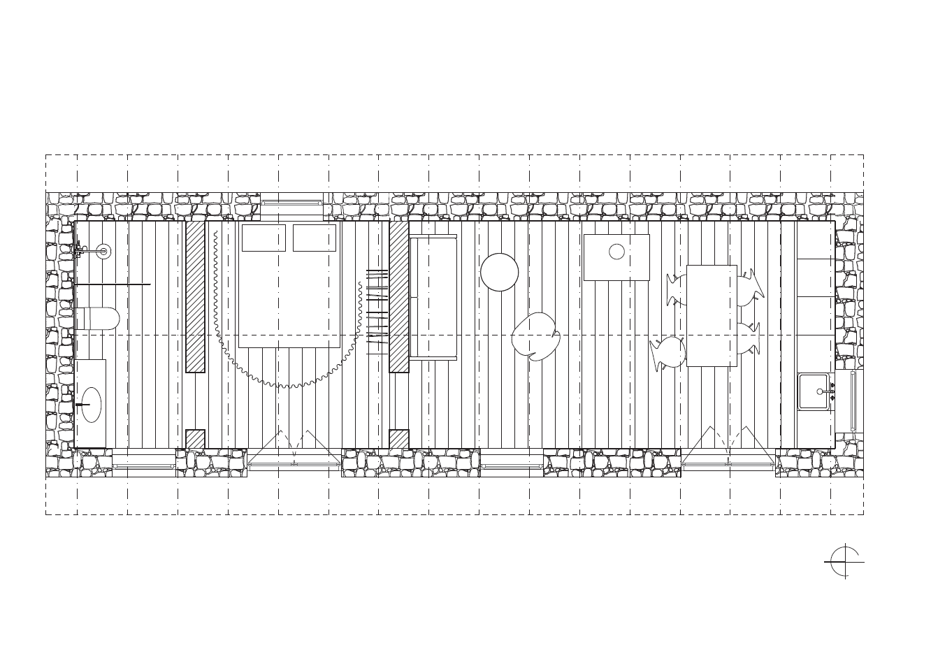
Régen az egri érsekség almáskertje, ma hétvégi házas környék – vadregényes erdőszéle. Valószínűleg az almáskert egykori kőből épült gazdasági épületét az eredeti tetőzet nélkül, tákolt félnyeregtetővel, viharvert nyílászárókkal „találták” új tulajdonosai: a hobbiasztalosként is jeleskedő nyugdíjas tanár és az egri Arkt építész stúdióban dolgozó tervező – apa és lánya. Elgondolásuk szerint a jövőben akár négy évszakos vendégapartmanként is kiadható – állandó lakhatást biztosító – házon csak a szükséges és elégséges, minimális szintű beavatkozást szerették volna végrehajtani. Kortárs elemként a korcoltfémlemez-borítású új nyeregtető és a nappali felett áttört nyitott mennyezet jelent meg, míg a nappali-háló-fürdő hármas osztását az eredeti tégla válaszfalak választják el, illetve itt megmaradt a hagyományosan zárt födém.

E leírás után most lépjenek színre főszereplőink, hogy előadják kétlényegű táncukat. A koreográfia vaskosabb, húsosabb elemét nevezzük az egyszerűség kedvéért kézművességnek, míg a légiesebb mozdulatokat mágiának. Több példát sorolhatnánk fel az Arkt stúdió munkái közül, amiben a bonyolult, technokrata, a modern építészet túlszerkesztett modelljéhez képest a szinte végletekig leegyszerűsödő, a kis számú beépített anyag megfoghatóságából, alakíthatóságából, az anyagokkal elvégezhető kísérletekből fakadó koncepciót látunk. Fábián és Fajcsák munkatársaként Molnár Virág Csenge is abban a gondolatkörben mozog, amiben a megértés és cselekvés, az építészeti tett sok egyediséget, kísérletet és improvizációt tartalmaz.
Ezek a tervezői aktusok és gondolatok – szemben a ráció és praktikus hidegségével, kiszámíthatóságával – a kézművesség alkotói horizontján értelmezhetőek. Ebből következik például az a megoldás, ahogy a tervező a mi éghajlatunk hideg időszakában szinte lakhatatlanná áthűlő, inkább állattartásra, istállóként, mezőgazdasági épületként használható kőház „téliesítését”, hőszigetelési problémáját megoldotta. A negyvenöt centiméter vastag kőfalra tapasztott belső szigetelővakolattal történő kísérletezés végül elvezetett egy olyan megoldásig, ami nem gátolja a fal szellőzését és a padlón is optimális átszellőzést eredményez.

A négy-öt centiméter vastag kendervakolat (más néven kenderbeton) homogén, természetesen texturált felszínt eredményezhet, de a kender darálása, a mészhidrát-keverékkel történő összeállításának aránya, a zsaluzatba, keretvázba töltése, döngölése, a látszó felület szemcseméretének megtalálása valódi kézműves folyamat. Olyan ősi koreográfiának a megidézése, ami rendelkezik ugyan korunk szakértelmével és elvárásaival, mégis képes megidézni az ember és anyag ősi kapcsolatát, az emberi hajlék építettségének eredeti koncepcióját.
Az írásunk gondolati keretét jelentő tánc-metafora testi, erőteljes, lendületes, „kézműves” koreográfiaeleme után talán nehezebben megfogható a légiesebb, elvont, éteri elem, amit „mágiaként” neveztem meg. Úgy érzékelem ugyanis, hogy főképpen a fiatalabb építész-generáció – értsd! negyven alatti, negyven körüli – fontosabb képviselőit rendkívüli módon foglalkoztatja az, amit Max Weber „varázstalanított világnak” nevez híres tanulmányában. Weber a „modernitás drámájában” elvesző mágikus elem hiányára mutat rá ezzel a fogalommal, arra az állapotra, amikor a vallásos világkép mágikus összetevője helyébe a tudomány, a ráció hegemóniája, végső soron a kapitalizmus gazdaságtanának célelvűsége lép: a „varázskert” helyébe az „acélkalitka” lép.

Úgy vélem tehát, hogy a jelen építészetében bizonyos tervezői aktusok az építészet mágikus dimenziójának megértésére tett kísérletek anélkül, hogy ezeket az aktusokat ideologikus rendszerré formálná. Megcsinálni, megépítve megérteni szeretné az építészetet és nem társadalomkritikaként vagy politikaként felhasználni. Irtózik mindattól a haszonelvű és manipulatív, doktriner, zárt és fogalmi kizárólagosságtól, amiben a lényeg elveszik. Ez a kis ház egy apró lépés az új építészet felé. Ezért gondoltuk azt, hogy az olvasóközönségünk számára is fontos tanulságokkal bír. Ja! Még egy fontos dolog: Legyen tánc!
Tervezés és kivitelezés: 2020 – 2024
Bruttó alapterület: 50 m2
Nettó alapterület: 41 m2
Építészet: Molnár Csenge Virág
További képek a cikk végén található galériában!
Ha tetszett a cikk, és szeretnél előfizetni magazinunkra, itt teheted meg.


