A kínai Nantou városában 11 szobás szállodává alakított át egy korábbi lakóépületet a Neri&Hu.
A Lyndon Neri és Rossana Hu által 2004-ben alapított Neri&Hu Design and Research Office tevékenysége az általános építészettől a belsőépítészeti, bútortervezési feladatokon át, a grafikai munkákkal bezárólag globális szemléletüket tükrözik, és ezt erősíti az iroda több mint 30 féle anyanyelvű, multikulturális csapata is. A sanghaji stúdió építészei a társasház átalakítása során célzottan keresték annak karakterét, korábbi rétegeit – a jellegzetes részleteket eredeti formájukban mentették át, és őrizték meg a Nantou City Vendégházban is.

Szabadon álló betonfalak, gerendák és a födémszerkezet is a korábbi építésből maradtak meg. Ezeket kortárs bútorokkal, berendezési tárgyakkal, változatos felületkezeléssel, valamint biofil elemekkel állították kontrasztba. Az épület teljes homlokzatát felújították, ám ezt követően körkörös, paraván jellegű takarást kapott, összeköttetést teremtve és egyben egyfajta válaszfalat is képezve a külső, nyüzsgő városi és a belső, intim környezet között.

![]() ![]() |

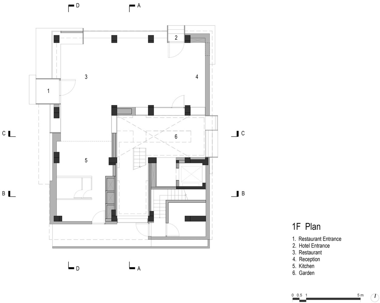
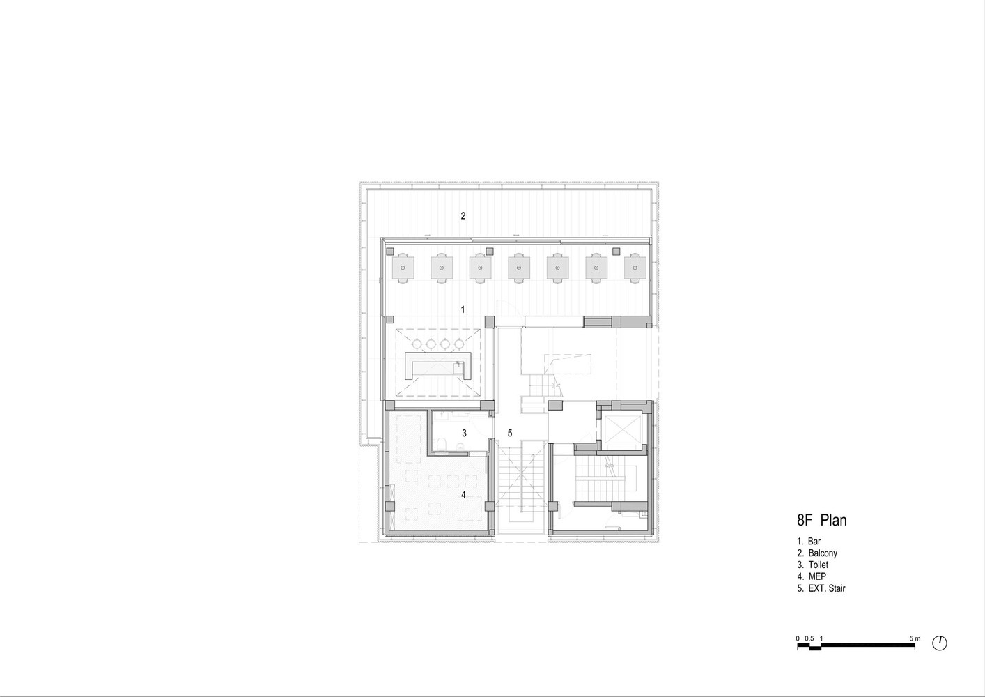
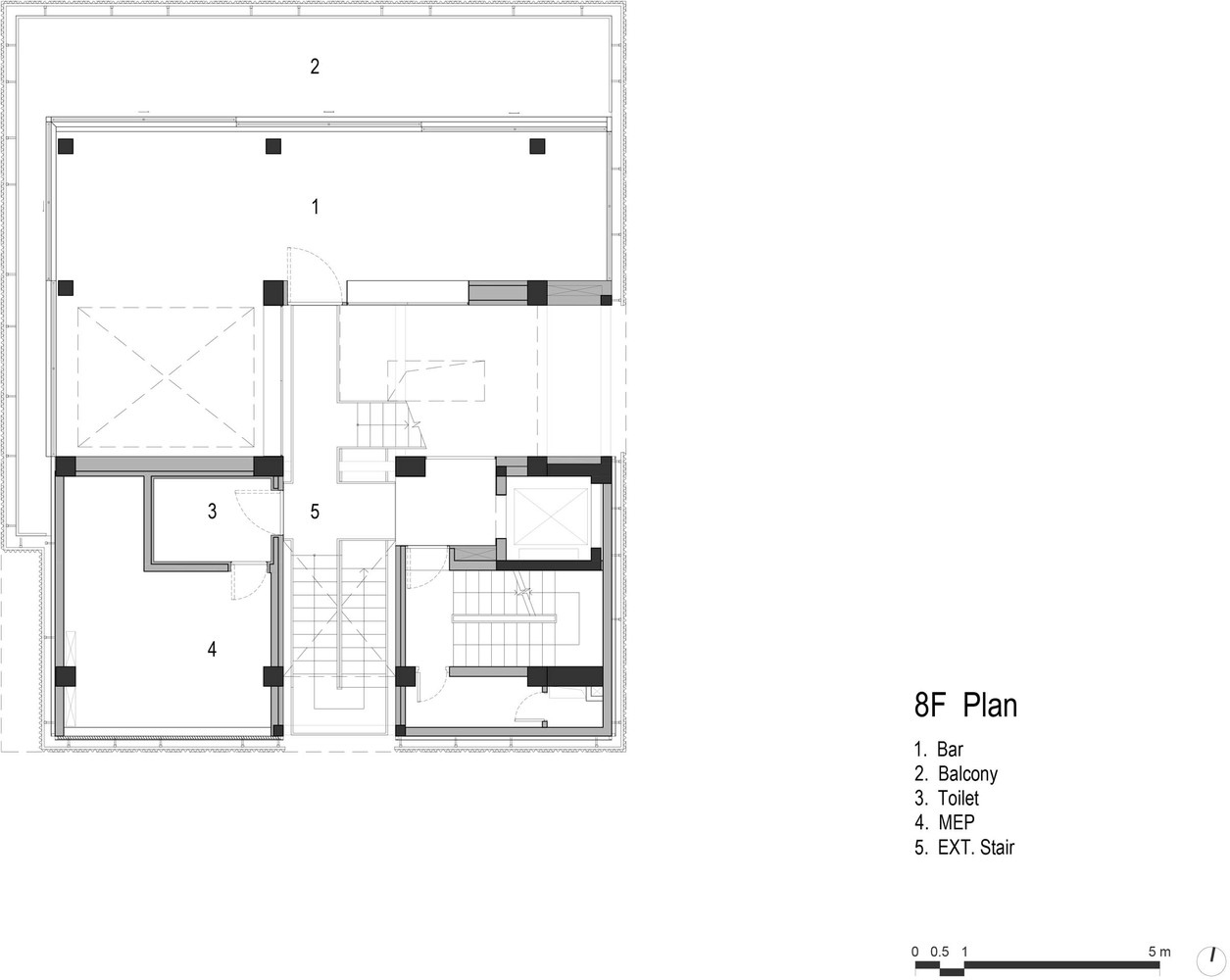
A látogatók közvetlenül az épület szívébe jutnak a mellékutcáról nyíló bejáraton keresztül, amely így egyfajta hídként kapcsolja össze a Nantou City Vendégházat a város szövevényes sikátorhálózatával és a városlakókkal is. A megújuló kilencszintes fém lépcsőház megjelenésében leginkább egy függőleges kertre emlékeztet, a fent kialakított átrium megszűri a tetőről bejutó természetes fényt.

![]() ![]() |

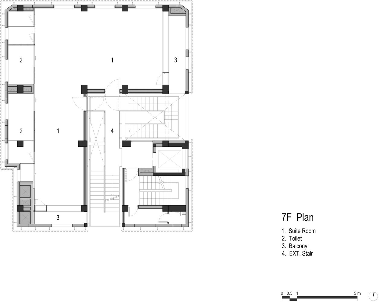
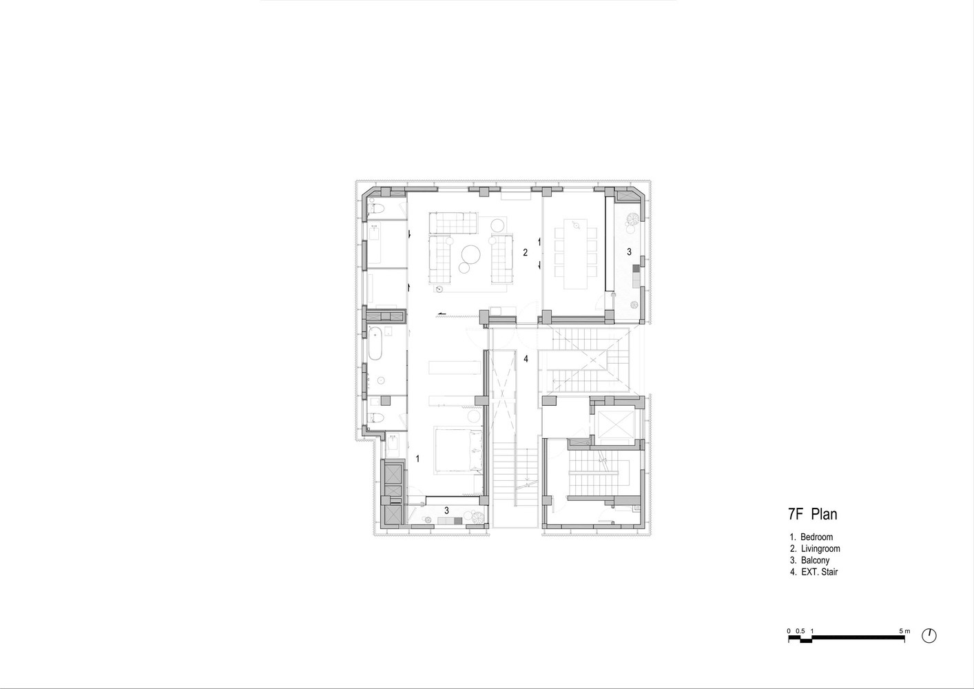
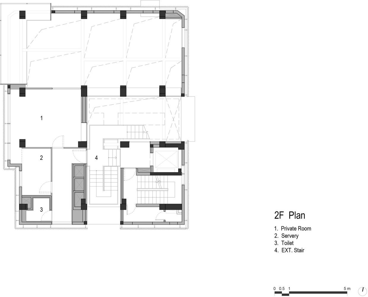
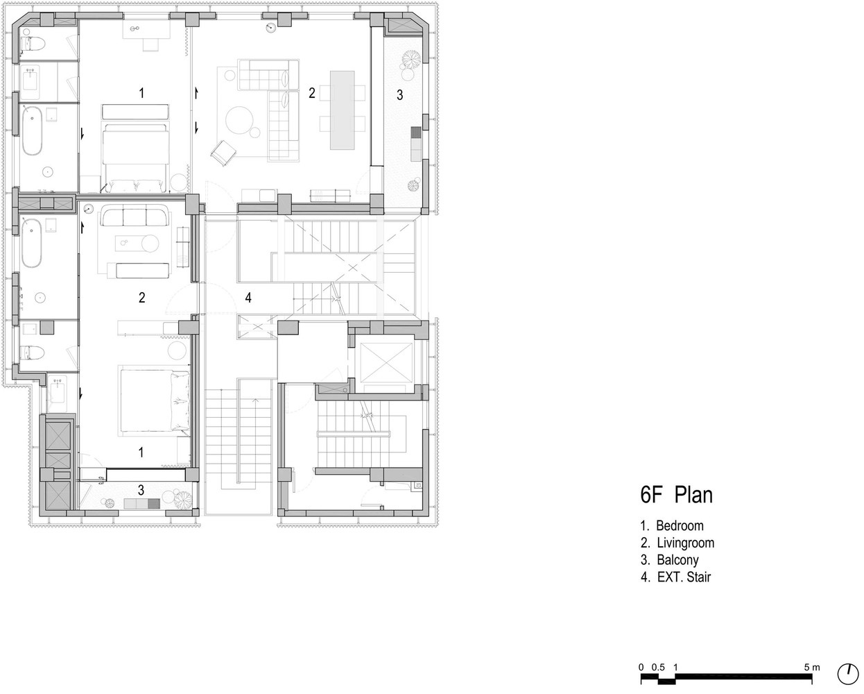
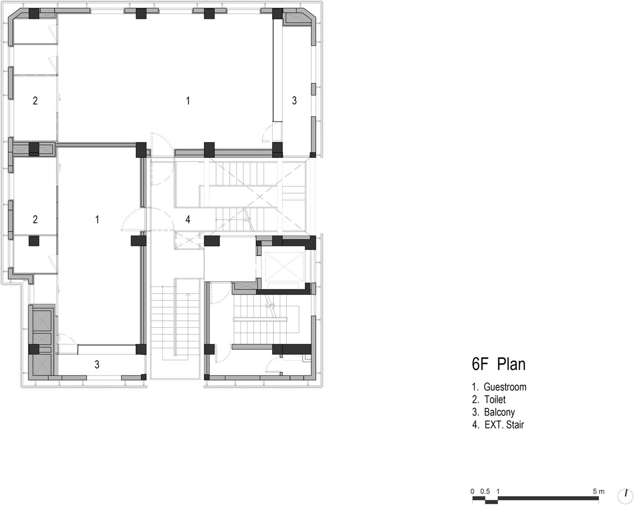
Minden egyes vendégszoba – a szálloda többi részével összhangban – saját arculatot kapott, méretes ablakaikból belátni szinte az egész várost. A legfelső emeletre „lebegő” tetőt építettek, amelyhez többek között szabadtéri kert, terasz és étkező is tartozik.

![]() ![]() |

Nantou City tökéletes példája annak, amit a Neri&Hu „cheng-zhong-cun”-nak (városi falu) nevez. „Az iparosodás előtti települések világának maradványai a maguk valójában újulnak meg és válnak részévé a modern metropolisznak” – magyarázzák a tervezők. Erre reagál a stúdió a vendégház esetében is az újat a kulturális örökséggel összekötő különféle megoldásaival.
Neri&Hu Design and Research Office | Web | Facebook | Instagram
Forrás: FRAME
További képek a galériában!
Ha tetszett a cikk, és szeretnél előfizetni magazinunkra, itt teheted meg.



