Önkormányzati hivatal Leopoldovban.
Leopoldov négyezer fős kisváros Szlovákiában, amely azzal hívta fel magára az építész-társadalom figyelmét, hogy jelentős közpénzből finanszírozott kulturális és egyéb közcélú beruházásait kizárólag építészeti pályázatok nyomán valósítja meg. Az elmúlt években öt pályázatot bonyolított le a városvezetés szakszerű építészeti moderálás mellett. A minőség önmagáért beszél; a pályázaton nyertes zerozero studio által tervezett, 2021-ben átadott Önkormányzati Hivatal épülete egyértelmű referencia arra, hogyan építsünk állami forrásokból. Hát úgy, mint Leopoldovban: hatékonyan, értelmesen és ráadásul kulturális hozzáadott értékkel...

A helyi várospolitika nyomán létrejött minőségi városkép kialakításában kulcsszerepet játszik a város fejlesztésének átfogó jövőképe, valamint az egy választási cikluson túlnyúló projektek szisztematikus alkalmazása. A projektek közös nevezője a nyílt építészeti pályázat, amelyre az Önkormányzati Hivatal esetében 51(!) pályamunka érkezett. A nyertes zerozero stúdió designja „átgondolt visszafogottságával” lenyűgözte a zsűrit. Az eperjesi műterem építészei úgy döntöttek, hogy nem bontják le a korábbi hivatali épületet, hanem könyvtárat helyeznek el benne. Mellé új, hangsúlyozottan kortárs megjelenésű városházát terveztek, a két épületet pedig úgy helyezték el, hogy köztük a funkciókat bővítő és kiszolgáló városi köztér alakuljon ki.
![]() ![]() |
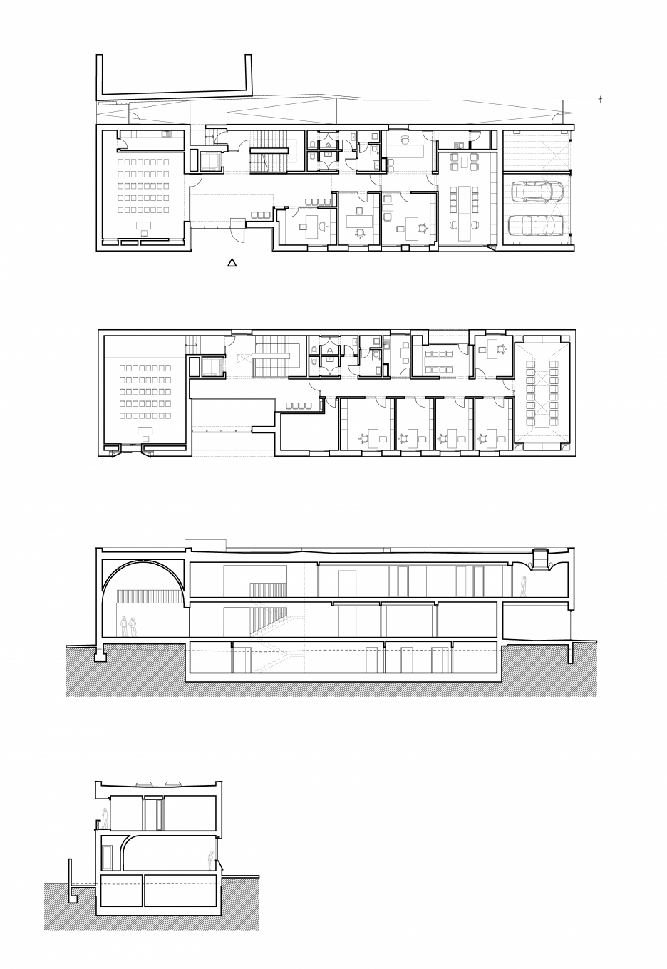
Az új közigazgatási és kulturális központ egyértelmű rendet teremt a város központi övezetében, újradefiniálja a fontos közteret. A középületek bejáratai az új és régi épület között kialakított udvarból nyílnak. Az első pillantásra puritán építészeti nyelvezet izgalmas és váratlan meglepetéseket tartogat. Minden bizonnyal ide sorolható a boltíves látszóbeton födémek variálásával fedett terek triója, amelyek a ház legfontosabb reprezentatív helyiségeit fogadják be. A megvalósítás minősége magasra teszi a mércét a területen található középületek számára.
A hivatali épület utca felé zárt, hasáb alakú tömbjében a bejáratot karakteres, befelé szűkülő, tölcsérszerű bevágás emeli ki, amely rímel a hivatali helyiségek ablakainak rézsűs parapetjére. A bejárati homlokzat dísze a városházák elmaradhatatlan kelléke, az óra, amely egyúttal a házasságkötő terem körablakaként is funkcionál. A hivatali traktus ablakainak szabálytalan ritmusát a hosszfalas épületben harántfalakkal szabadon alakítható helyiségkiosztás határozta meg.
A racionális alaprajzi elrendezés már a bejárati előcsarnokból átlátható. A hivatali helyiségek hosszirányú közlekedőre vannak felfűzve, amely galériával nyílik a világos előcsarnokba. A reprezentatív helyiségek – a házasságkötő terem, valamint két tárgyaló – a fekvő hasáb két végébe kerültek. Karakteres kortárs esztétikájukban a főszerep a látszóbeton boltozatoké, amelyek a különböző helyiségek funkciójához igazodva változatos kialakításúak és szerepűek. A házasságkötő termet világítással áttört féldonga boltozat fedi, költői megjelenésűvé varázsolja a puritán berendezésű teret. A nagy tárgyalóban negyed-dongákból szerkesztett felülvilágítót komponáltak a középen elhelyezett tárgyalóasztal fölé, így a természetes megvilágítás kizárólag felülről érkezik, nem zavarja az elmélyült munkát. A kisebb tárgyalóban szintén negyed-dongás lefedést alkalmaztak.

![]() ![]() |
A hivatali helyiségek berendezése épp olyan racionális, mint az épület működése. A közlekedők vizuális megjelenését szintén a látszóbeton határozza meg. A hűtés-fűtés hőszivattyús megoldású, a mennyezeti hőleadó rendszer kellemes klímát biztosít. A belső vízelvezetés révén az esővíz is hasznosul. A történeti épület értékmegőrző felújítás mellett belső átalakításon esett át, a könyvtár mellett klubhelyiséget alakítottak ki benne. A Leopoldovban felépült új közigazgatási központ példa arra, hogy történeti idéztek nélkül, pusztán a kortárs építészet minőségével is hangsúlyozhatja egy mégoly kicsiny város is a maga történelmi rangját.

![]() ![]() |
![]() ![]() |


Közreműködők: Ing. Martin Ratkoš (kivitelezés), Ing. Vladimír Durbák (statika), Ing. Viliam Hrubovčák (statika), Light Lab (világítástervezés), Marcel Benčík (vizuális kommunikáció)
Beruházó: Leopoldov város
Telekterület : 1988,5 m²
Beépített terület: 428,93 m² + 306,13 m² (új építés)
Beruházási költség: 2, 4 millió €
Terv: 2015 - 2018
Megvalósítás: 2019 - 2022
Helyszín: Leopoldov, Szlovákia
Fotó: Matej Hakár:
forrás: archinfo.sk
További képek és rajzok a galériában!
Ha tetszett a cikk, és szeretnél előfizetni magazinunkra, itt teheted meg.


