15 év munkája után elkészült a francia Nemzeti Könyvtár épülete.
A párizsi Atelier Bruno Gaudin Architectes’ stúdiót 1998-ban alapította Virginie Brégal és a névadó Bruno Gaudin, akik a középületekkel kapcsolatos építészeti feladatok területén idővel igen nagy és sokrétű tapasztalatra tettek szert. Csapatuk 2007-ben kapta meg a Quadrilatère Richelieu kizárólagos projektmenedzseri feladatát. A munka során a Bibliothèque nationale de France Richelieu (Nemzeti Könyvtár) számára kellett egy hatalmas, erősen leromlott állagú, klasszikus kőépítményt átalakítaniuk.

Az eredeti épület radikális átalakításával járó munkálatok 2007-ben kezdődtek. Az új, kortárs igények miatt a létesítményt megnyitották a város felé, és felkészítették a nagyközönség és azon belül a fiatalabb generáció fogadására. Az architekturális feladatok menedzselésében az EGIS designiroda, a 8’18” világítástervező szakemberei, valamint a biztonsági konzulens, Casso segítette a Gaudin csapatát. A díszítések restaurációs munkálatait a Historic Monuments (Történelmi Műemlékek) két főépítésze, Jean François Lagneau és Michel Trubert végezte el.
![]() ![]() |
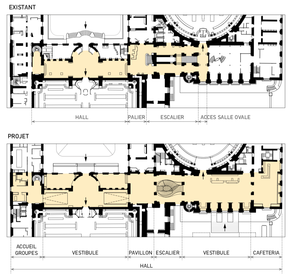
A teljes projekthez alapvető változást, átfogó koherenciát adott a vízszintes és függőleges terek arányainak megváltoztatása. A tervezők első lépése az volt, hogy megnyitották a homlokzatot, és kialakították a Vivienne Garden idilli kertkompozícióját. A hall így átjárhatóvá vált, ez pedig lehetővé tette a csarnok központi elemeként egy új, lenyűgöző főlépcső létesítését. A bejárat három, egykori „hátsó” homlokzatot egyesít, melyek egyúttal a Vivienne és Roux Spitz termek bejárati frontjaivá is váltak. A beléptetést a növényzettel körbevett, apró, átlátszó „bódéból” alakították ki.

![]() ![]() |
Az építészek munkája az egész Quadrilatère-re kiterjed. Gaudin szakembereinek a feladata a különböző terektől függetlenül ugyanaz maradt: megérteni a helyszínt, meghatározni a szerkezet, a tér és a történelmi vonatkozás építészeti minőségét, elfogadni a határokat, értelmezni a meglévő struktúrákat azok megszakítása, átalakítása nélkül. Azt is mondhatjuk, hogy minden egyes helyiség, vagyis a termek, az olvasók, a kerengők, a 19-20. századi kötetek megőrzésére rendszeresített régi, vagy a jelenben létrehozott új raktárhelyiségek, irodák, műhelyek mindegyike egy-egy önálló feladat volt a projekten belül.

![]() ![]() |

Ami – látszólag egy napja – még hatalmas, pompás, magába zárkózó, töredezett, kopott, sötét és düledező kincsesláda volt, ma már – 15 év elteltével – világos pompában álló önálló, új identitássá fejlődött. Az Atelier Bruno Gaudin Architectes' aprólékos, odaadó munkájával a magába roskadt múlt pezsgő, élettel teli jelenné, vibráló, építő jövővé nőtte ki magát. A könyvtár boltozatos mennyezetén lévő festmények alatt, a régi-új szellemében merülhet mélyre a tudomány világában a könyvtárlátogató.
Atelier Bruno Gaudin Architectes' | Web
Forrás: Metropolis Communication
További képek és rajzok a galériában!
Ha tetszett a cikk, és szeretnél előfizetni magazinunkra, itt teheted meg.



