Erről szóló cikkünk a 143-as, 2018/3-as lapszámunkból közöljük.
Ifj. Kistelegdi István, az energiatudatos építés egyik hazai úttörője, akinek Active House Award-ot nyert pécsi családi házát az Octogon 2017/5. száma mutatta be, rövid időn belül újabb kiáltványszerű épülettel jelentkezett.
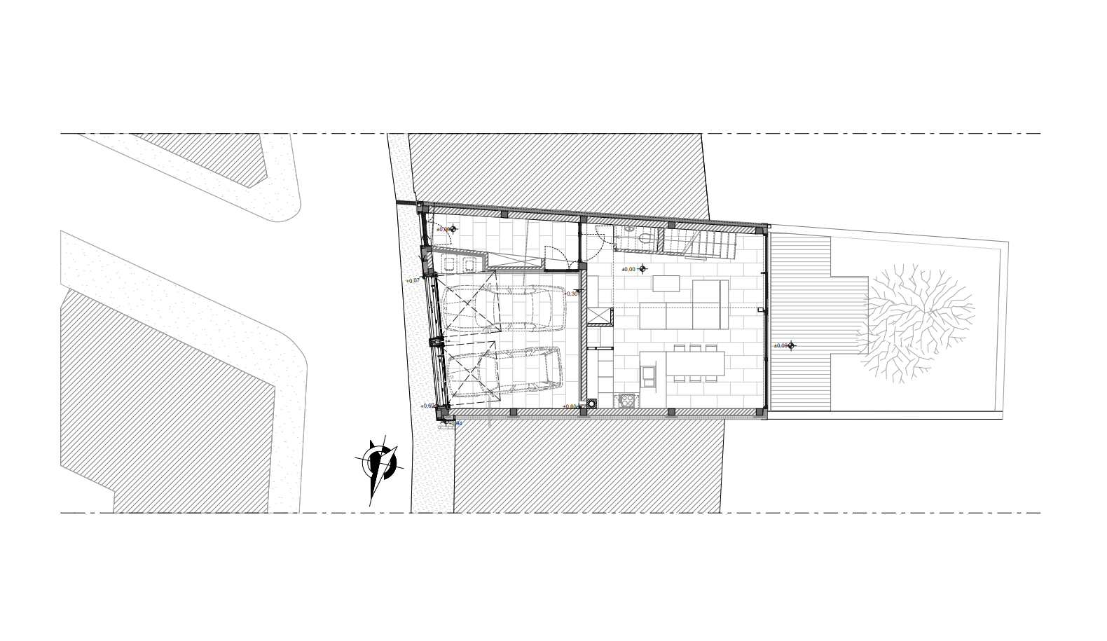
Ezúttal a pécsi óváros legizgalmasabb topográfiájú és településszerkezetű városrésze, Tettye nyugati határát kijelölő Szőlő utca egyik foghíjtelkén épült fel a környezethez való viszony radikális átértékelését tükröző lakóépület. A fiatal építtetők mértéktartó, mégis elegáns, egyúttal energiahatékony és környezettudatos otthont szerettek volna. A telek adottságai és az építési előírások igen intenzív beépítést generáltak: a mindössze 167 m2 alapterületű építési telken a 167 m2-nyi hasznos alapterület csak a telek maximális, 60 százalékos kihasználásával volt biztosítható. A szabályozás zártsorú, magastetős kialakítást írt elő, így alakult ki a földszint + emeleti szintből álló kb. 12,5x7,5 m méretű, kb. 6 méter magas, kétoldali szomszédjainak tűzfalaihoz tapadó, kompakt épülettömeg.

A sűrű beépítés miatt csak az utcai homlokzatnak van valódi városképi jelentősége, amelyet Kistelegdi igyekezett egyetlen, hatásos jelként megfogalmazni: a fal és a tető homogén, antracitszürke fémlemez burkolóelemekkel történő „becsomagolása” szakít a környezethez való alkalmazkodás szentimentális értelmezésével, és futurisztikus karakterével új életre kelti az ódon városi utcát. A sötét színű fémpáncélnak köszönhetően a homlokzati megnyitások (gyalogos bejárat, két garázskapu, emeleti hálók ablakai) ellenére az utca felé szinte bástyaszerű elzárkózást sugall. A szűkszavú külső lélegzetelállító kontrasztot alkot a zöldterasz felé néző nyugati oldal totális megnyitásával, a vertikálisan felnövelt belső terek szinte monumentális hatásával.
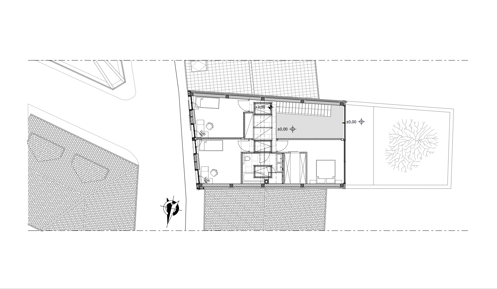
Az apró kert, vagy inkább zöldterasz felől pazar kilátás nyílik a belváros tetőtengerére, a szemközti Kálvária-domb gyümölcsöseire. A publikus felület és a privát szféra szigorú elkülönítésének egyébként megvannak a történeti előképei a városnak ebben a részében, ahol az egykori bosnyákházak élete szintén az utca felől magas, tömör kerítésfallal elrejtett, zárt belső udvarokban zajlott. A kerti oldalon, a földszinten a nappalit, a konyhát és étkezőt egyesítő multifunkcionális tér, az emeleten, az utcafronti oldalon két lakószoba, az északi tűzfal mentén a fürdő, a nyugati, kert felőli oldalon a hálószoba helyezkedik el.
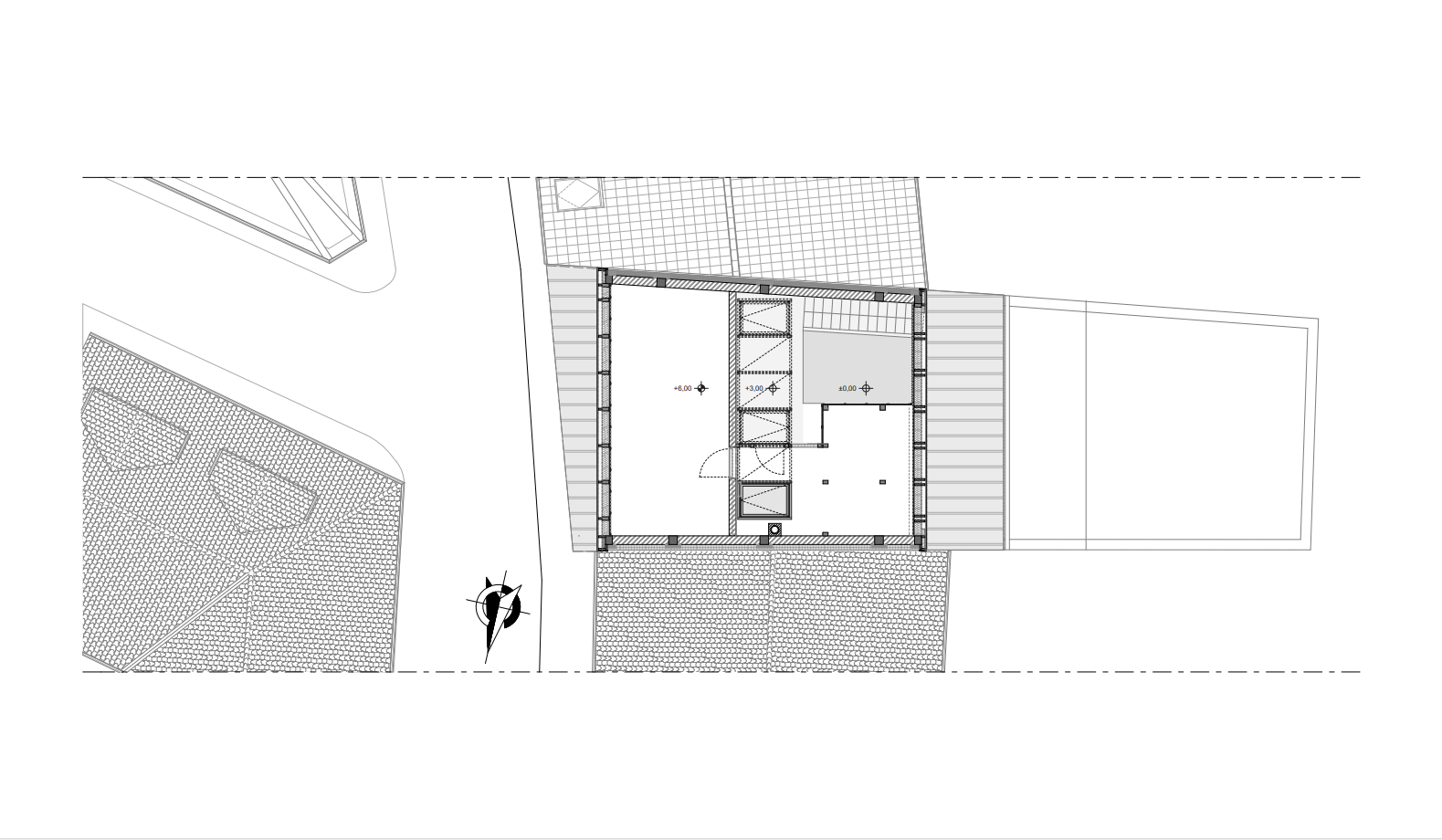
A két szinten kialakított helyiségek működése, természetes megvilágítása és szellőztetése, valamint a belső közlekedés szempontjából a nappali tér fölötti galéria és a födémáttörés révén létrejövő kürtő kulcsszerepet kapott. A három szintet összekapcsoló, a felülvilágítókból áradó fénnyel átitatott függőleges tér szinte templomszerű atmoszférát teremt az enteriőrben. A környező komplex tetőszövethez való illeszkedés követelménye miatt a tetőszerkezet geometriájának kialakítása gondos mérlegelést igényelt. Mivel magastetőt ír elő a szabályozás, így az utca felől egy klasszikus nyeregtető indul, a terasz felőli oldalon pedig egy megtört vonalvezetésű, lapos dőlésszögű tetősík mellett döntött a tervező, felfelé kónikusan szűkülő szellőztető kürtő keresztmetszettel.

„A projekt az energiadesign alapelveire épül – tudjuk meg az építésztől –, a térszervezést, a homlokzat és a tető formáját, szerkezeteit ezúttal is épületfizikai szimulációk segítségével teszteltük A tetőszerkezetbe integrált kürtő aerodinamikai elgondolások alapján nyerte el formáját.” A meleg évadban a passzív szellőzési, gravitációs áramlási elv alapján működő kürtőszerkezet gondoskodik a sokfunkciós központi tér kiszellőztetéséről. A kisebb kubatúrájú tetőforma kialakításakor a fűtendő légtérrel való takarékoskodás szempontja is sokat nyomott a latban. „Fűtési időszakban – teszi hozzá a tervező – hővisszanyeréssel működő légtechnika biztosít komfortos légcserét és jelentős fűtési igény-megtakarítást. Levegő-levegő hőszivattyú gondoskodik az épület padlófűtéséről és mennyezeti hűtéséről.” Az emeleti hálószoba fölött a lapos dőlésszögű tetőszerkezeti rész zárt, fűtetlen puffertérként szolgál, a tetőkürtő feletti felülvilágító üvegsáv pedig a természetes megvilágítást erősíti az épület középső, sötétebb zónáiban.
A gépészeti rendszer az utcafronti oldal feletti magastető padlásterében kapott helyet. Az épület energetikai programja nem olyan teljes körű, mint a korábban bemutatott Kistelegdi-féle aktívházé (OCTOGON 2017/5), amelynek külvárosi szituációja és költségvetési keretei nagyobb mozgásteret biztosítottak az energiatudatos tervezői gondolkodás számára.

Bár a földhő hasznosítása helyett itt levegő-levegő hőszivattyú gondoskodik az épület temperálásáról és napkollektorok sincsenek, a projekt, mint a fentiekben a tervező is utalt rá, az energiadesign alapelveire épül: a nappali, konyha és az emeleti háló hatalmas üvegfelületei a téli időszakban a napenergia passzív hasznosítását teszik lehetővé, a nyári időszakban külső árnyékolók védenek a túlmelegedéstől.
Az épületbelső koncepciója, a letisztult, minimalista formák, minőségi anyagok használata, a fehér falak, a bútorok és padló tölgy felületei, a textilek meleg szürkéi és az élénk sárga kiegészítők a mértéktartó, mégis nagyvonalú terek karakterét hangsúlyozzák, és az enteriőr talán legfontosabb hatáselemét, a fényt engedik érvényesülni.
Generál tervező: Prof. Dr. Kistelegdi István DLA, PHD - Kistelegdi 2008 Kft.
Tervező munkatárs: Dr. Baranyai Bálint
Belsőépítész: Mátrabérci Zsolt - Attract Kft.
További képek a cikk végén található galériában!
Ha tetszett a cikk, és szeretnél előfizetni magazinunkra, itt teheted meg.



