Cikkünk a 203-as, 2025/7-es lapszámunkból közöljük.
A Magyar Tejgazdasági Kísérleti Intézet (MTKI) jogelődjét, a Magyar Királyi Tejkísérleti Állomást 1903-ban alapították. A hazai agrárium termékeinek minőség-ellenőrzése és a fejlesztések tudományos intézményi támogatása ma is kiemelt feladata a 122 éves, a Magyar Agrár- és Élettudományi Egyetem felügyelete alatt álló intézetnek. A Mosonmagyaróvár belvárosában található – amúgy patinás műemléki – központjuk már semmilyen szempontból nem felelt meg annak az elvárásnak, ami egy, a nemzetközi piacon is számottevő eredményeket felmutató cégtől reprezentáció és kutatói-potenciál szempontjából elvárható lett volna. Így egy új, a cég fejlődését támogató telephely kialakításába kezdtek. A következőkben egy tízéves tervezői munka folyamatait igyekszünk áttekinteni, amelyek végeredményeképpen az MTKI beköltözhetett a 21. századi minőségű, ultramodern, minden piaci és tudományos elvárásnak eleget tevő innovációs központjába.
A rendszerváltozás óta önfenntartó gazdasági társaság tevékenységével ma már nem csupán a tejgazdaságot, hanem az egész élelmiszeripart szolgálja. A profitábilis működés megerősítése, valamint a kutatói laborkapacitás racionális fejlesztése pedig kiemelkedő színvonalú intézményi hátteret igényelt.

A bonyolult technológiájú ipari létesítmények tervezésében és kivitelezésében már rendkívül imponáló portfólióval bíró TECTON építész irodát [lásd pl.: Feszegetett határok – A Jysk logisztikai központja Ecser határában, OCTOGON, 2022/8., 180. – a szerk.] 2015-ben kérték fel a munkára. A kiviteli tervek 2018-ra el is készültek, ám itt nem részletezendő okok miatt a megbízó elhalasztotta a beruházást, majd 2020-ban egy, a 2015-ötössel megegyező kubatúrájú, ám szűkebb költségvetésből megvalósítható épületet rendelt a TECTON-tól.
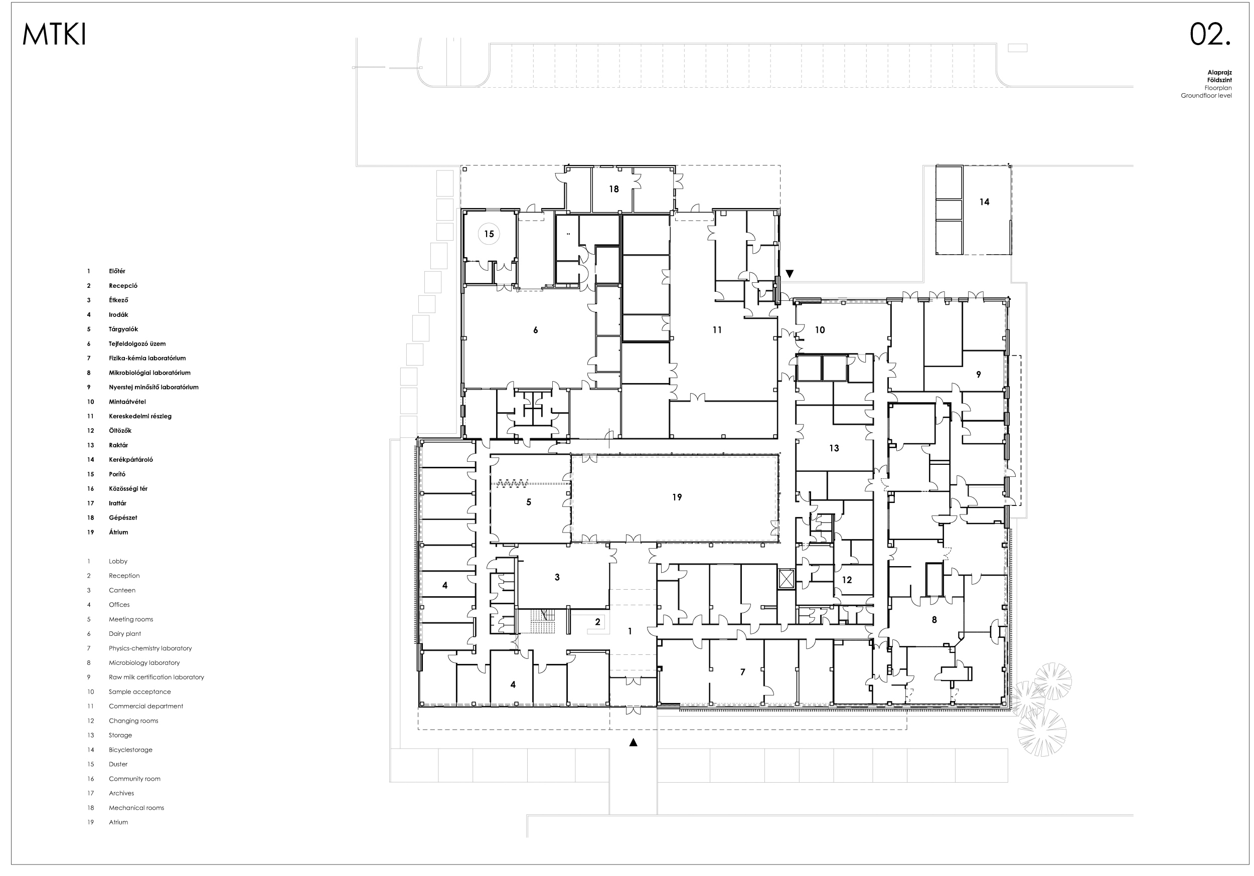
Az áttervezett, majd’ 4000 négyzetméter hasznos alapterületű épületegyüttes három fő funkció köré szerveződik: a kutatás-fejlesztést is szolgáló, részben tisztatéri – vagyis egy teljesen zárt, gépészetében is önálló rendszer – követelményeknek megfelelő szolgáltató laboratóriumok; a gazdasági és kereskedelmi adminisztrációs központ és raktár, valamint a kísérleti üzem. Ebből a listából is sejthető, hogy az összetett, egymáshoz lazán kapcsolódó funkciókból következik egy alapvető tervezői dilemma: milyen legyen az épület alapkaraktere? Az ipari, a kereskedelmi vagy esetleg a reprezentációs célokat előtérbe helyező irodaépület-funkció szabjon irányt a tervezői gondolatnak?

A Varga Béla, Jakab Tamás, Ükös Tamás, Pindes Ákos és Bálint Katalin alkotta team egy huszárvágással, a homlokzatkialakítások egyéniesítésével oldotta meg a feladatot, így végeredményben a három homlokzat egy karakteres középülettel, egy harmonikus, L alakú, tulajdonképpen másfél homlokzatot átfogó labor-területtel, valamint egy hagyományos raktározás-szállítás funkcióval fordul a látogató felé. A kék, a szürke és a fehér látványos kombinációjával, valamint a lamella-kiosztások ötletes variációival kialakított homlokzat-átmenetek egységes keretbe foglalják a kiegyensúlyozottságot sugárzó épületegyüttest.
A három egység tömege – igazgatásépület, raktár és üzemterület, illetve laborterület – egy belső udvar köré szerveződött. A délkeleti tájolású főbejárat, a recepció és a lobbi, beleértve a földszinti és az emeleti irodaszárnyat is, hatalmas üvegfelületekkel nyit a fő közlekedési útvonal, illetve a vendégparkoló felé. Ez a homlokzat – az emeleti és a földszinti lamellasor ritmusával – egyértelműen a tömeg középület-jellégét erősíti. A ház fő frontja – kiegészülve az emeleti tömeg megmozgatásával – határozottan lebegő érzetet kelt.

Ezt a vizuális hatást csak nyomatékosítja az ablaksáv és a homlokzat finomra hangolt arányrendszere, valamint az ide tervezett árnyékoló expresszív lamellasora. Mivel építéstechnológiailag a lamella kerül fel utoljára a homlokzatra, a ház valójában ezzel a gesztussal nyerte el a most látható, igen egységes, mégis változatos tömegstruktúráját. A homlokzati nyílászáró-sor által kiadott klasszikus házkép ezáltal valamiféleképp szoborszerűvé, monumentummá transzponálódott.
Az ablaksáv és az egyedi lamellasor északkeleti irányba, színátmenetekkel fordul tovább a laborterületeket rejtő, egyszintes épületrészre. A rafinált vizualitásra a színátmenetekkel erősítettek rá a tervezők. Ükös Tamás koncepciója szerint az árnyékoló lamellasor a szürkéből tart az egységes kék felé egy egyedi vonalkód-struktúra mentén: a finom színátmenetek egységnyi mennyiségek – az egytől az ötös csoportig – variálásával fogynak el az ablaksor végéig. Hatásos és eredeti ötlet, kétségkívül az egyik látványossága a többstílusú háznak.

Az északkeleti frontot uraló, egyszintes lepényépületben találhatóak a különböző kutatóhelyek és vizsgálók, köztük a tisztatéri mikrobiológiai laborral. Erre érdemes részletesebben is kitérni, hiszen a nem szokványos épülettípus tervezői szempontból is sok kihívást rejt. A tisztatér lényege a ház a házban rendszer: nemcsak a belső terek vannak légmentesen leválasztva, de a labor gépészeti rendszere is teljesen önálló. A belépés csak a zsilipkapukon át megengedett, sőt, a 3 méteres belmagasságú tér fölött létre kellett hozni még egy 2,5-3 méteres járható álmennyezeti teret, mert a zárt gépészeti és elektromos rendszerek csak felülről javíthatóak. Ezeknek a nagyon szigorú követelményeknek való megfelelésre az intézet nemzetközi laboratóriumi akkreditációja miatt van szükség.
A szellős, az átriumra sok átlátással megnyitott, világos tudományos és kísérleti munkaterületek tervezését és berendezését nagyon konkrét technológiai utasítások alapján végezték el a TECTON munkatársai, ebben a legmeghatározóbb szerep Bálint Katalinnak jutott. Ugyanez vonatkozik a kísérleti üzemre is, ahol a kutató-fejlesztő csapatok eredményeit tesztelik különféle új tejipari és egyéb élelmiszeripari, takarmányipari termékek előállításával, gyártmánytechnológiák kipróbálásával. A belsőépítészet az igényes funkcionalitás szókapcsolattal írható le. Az anyaghasználat paralel a reprezentatív funkciójú terekével.

Az épületegyüttesben egy több mint 70 négyzetméteres kantin-hidegkonyha áll a munkatársak rendelkezésére. A higiénés szükségleteket minden funkciócsoportban több női/férfi zuhany és öltöző szolgálja ki. Szükséges és illő megemlíteni, hogy a teljes tervezési folyamatot áthatotta a Tejkutató munkatársainak támogató együttműködése, legyen szó funkcionalitásról, belsőépítészetről vagy tájépítészeti elemekről. A különböző funkcionális egységek tervezésében egy-egy szakterület vezetői aktív részt vállaltak.
Minden ipari épület tervezésénél elvárás a bővítés lehetőségének biztosítása. Az MTKI esetében ez a feldolgozóüzemet érintheti, ezért a tartószerkezetek úgy lettek kialakítva, hogy az üzem területe majdnem megduplázható legyen. Az irodarész bővítési lehetőségére is kitért a megbízói igény, ott az emeleten lehet majd új kutató-fejlesztő részlegeket kialakítani.

Hosszú vajúdás után végül egy olyan épület született, amely látványában és funkcionalitásában is a lehető legtöbbet hozta ki a valójában rendkívül különböző feladatok megkívánta adottságokból.
Tervezés: 2015 – 2018 (engedélyezési + kiviteli terv); 2020 (módosított kiviteli terv)
Építés ideje: 2021 március – 2022 december
Nettó alapterület: 3950 m2
Generáltervezés: Varga Béla, Jakab Tamás, Ükös Tamás, Pindes Ákos és Bálint Katalin (Tecton Kft.)
Belsőépítészet: Tecton Kft.
Kert- és tájépítészet: OPEN AIR DESIGN Kft.
Statika: KONZOL 2006 Mérnökiroda Kft.
Épületgépészet: Lanterv Kft.
Elektromos tervező: Artrea Kft.
Tisztatéri gépészet: Nickel Klíma Kft.
Generálkivitelező: STRABAG-MML Kft.
Műszaki ellenőr: Zalaber Vállalkozási Kft.
Soós Zoltán (építészet),
Takács László (gépészet),
Sándor József (villamosság)
Beruházó: Magyar Tejgazdasági Kísérleti Intézet Kft.
Ha tetszett a cikk, és szeretnél előfizetni magazinunkra, itt teheted meg.


