A Datong Művészeti Múzeum épülete a Foster + Partners irodától.
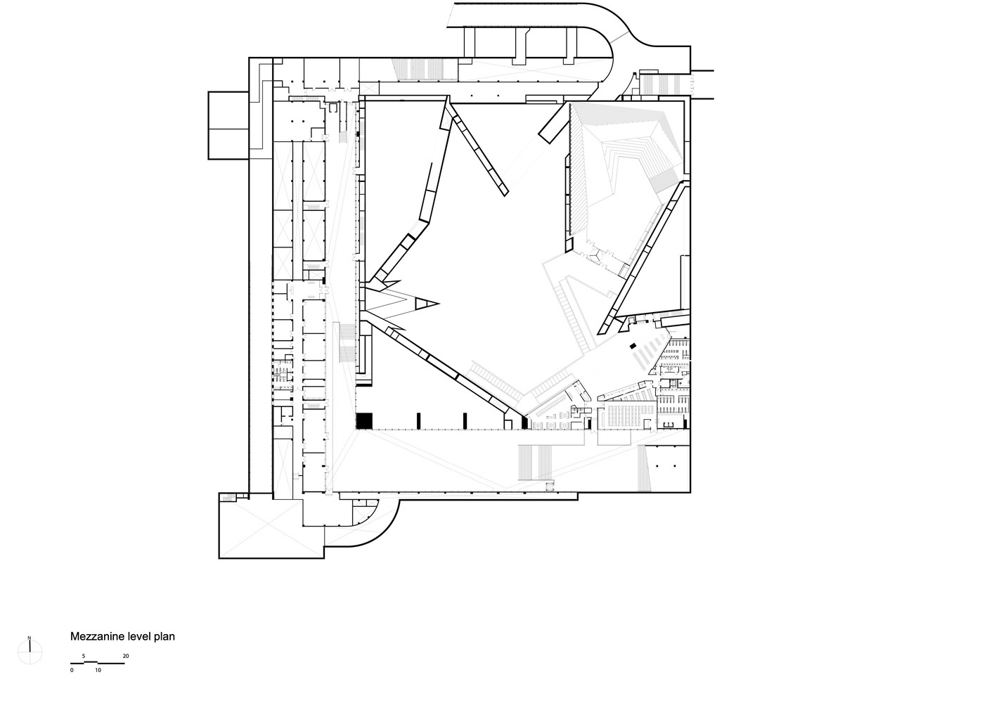
Datong város új Művészeti Múzeuma térszint alá süllyesztett kialakításával léptékében kapcsolódik a szomszédos kulturális épületekhez, betartja a területre vonatkozó általános városképi rendelkezéseket, és közben maximalizálja a belső térfogatot. Mindez a piramis alakú, legyezőszerűen szétnyíló, plasztikus megformálású tetőnek köszönhető, mely egyszerre ikonikus jel és hasznos szerkezet. A Foster+ Partners által tervezett új múzeum Datong New City kulturális centrumán belüli a négy fő épület egyike, a régió kreatív iparágainak új központja lesz.

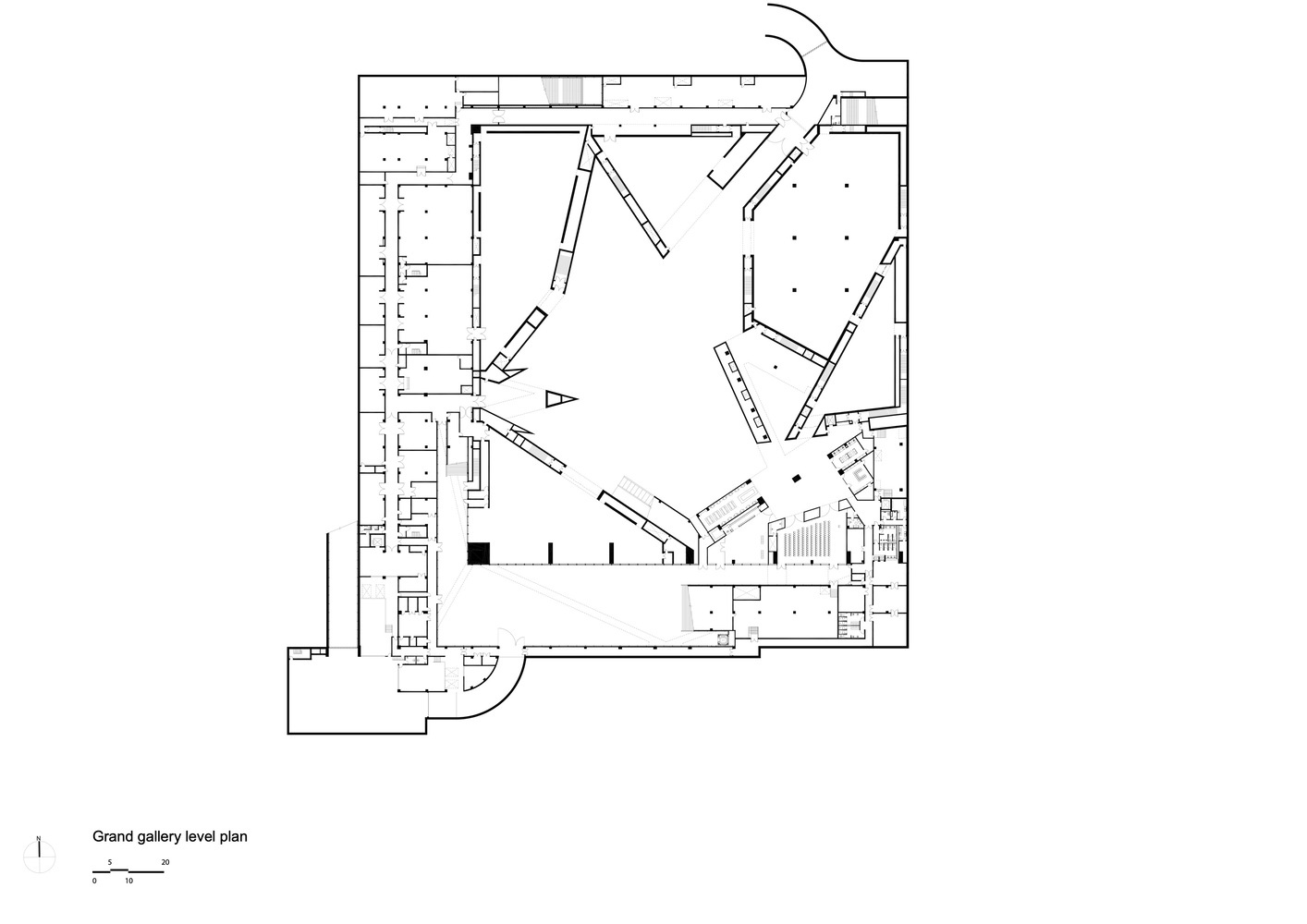
A látogatókat a téren átlós ösvények kalauzolják a múzeum felé. A bejárat kanyargós rámpákon keresztül vezet le a térszint alá, egy nyitott, térbe, amely egyben amfiteátrumot biztosít a szabadtéri előadásokhoz. Az épületbe belépve egy köztes szintre érkeznek a látogatók, ahonnan látványos kilátás nyílik a 37 méter magas és csaknem nyolcvan méter széles múzeum szívének számító Nagygalériára.
A központi kiállítótér körül, amely extrém méretű tárgyak befogadására is alkalmas, az épület kerülete mentén további klimatizált kiállítóterek helyezkednek el. Minden egyetlen szinten található, ami megkönnyíti a múzeumi tér használatát. Az épület egyik kulcsfontosságú eleme az oktatásra és tanulásra szolgáló gyermekgaléria, amelyet a magas, déli fekvésű ablakok napfénnyel árasztanak el.
A tetőforma, illetve a belőle adódó szerkezet lehetővé teszi, hogy középen alátámasztások nélküli nagy kiállítótér jöjjön létre. a többi helyiség az épület szélei mentén kapott helyet. A hájazat oxidált fémlemez, melynek léptéke és plasztikussága az épület méretéhez igazodik. A piramis alakzatok közötti, északi tájolású felülvilágítók természetes fényt engednek a kiállítótérbe.
Az épület hatékony passzív kialakítása reagál Datong éghajlatára. A felülvilágítók kihasználják az épület északi és északnyugati tájolását, minimalizálják a napsugárzást, és optimális környezetet biztosítanak a műalkotások számára. Az épület földbe süllyesztése a nagy teljesítményű hőszigeteléssel együtt tovább csökkenti az energiaszükségletet. A tető az építési előírások kétszeresének megfelelően szigetelt.

![]() ![]() |
![]() ![]() |

Forrás: az ArchDaily cikke nyomán
Rajzok a galériában!
Ha tetszett a cikk, és szeretnél előfizetni magazinunkra, itt teheted meg.


