Letisztult vonalú, tájjelegű házat tervezett a Presicci + Pantanella D'Ettorre Architetti Orbetellóban.
A Casamanda toszkán farmházat Carlo Pantanella D’Ettorre és Valeria Presicci építészek tervezték. A tervezőpáros jellemzően vidéki magánházak tervezésével foglalkozik. A nyugalmat árasztó orbetellói épület kívül egyszerű kőburkolatával, belül letisztult vonalaival tárja elénk a minimalizmus alapvetéseit. A kétszintes otthon formavilága, anyag- és színpalettája jellegzetes toszkán jegyeket hordoz.

Léleksimító kilátással fogadja tulajdonosait a Toszkána tengerparti részén, Maremma térségében álló ház. „A Casamanda viszonylag kicsi, modern tanyaház, ahol a környezet földtónusai és a növényzet zöldje egyesül a felületekkel” – ismerteti a projektet a Presicci + Pantanella D'Ettorre Architetti.

![]() ![]() |

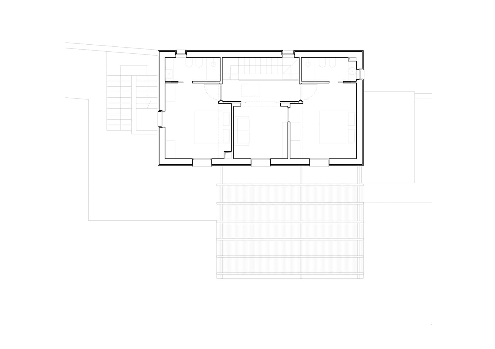
A ház burkolatát a mellette álló homokkőfal ihlette. Az északi homlokzat keskeny, magasra nyúló ablaka természetes fénnyel tölti meg a lépcsőházat. A nyugati oldalon két részre osztott, külső lépcsősort találunk: az alsó részt nyitott betonfokokkal, fém korláttal tervezték meg, míg a felső szakasz terrakotta burkolatú falazatot kapott. Ez utóbbi lépcső az egyik fürdőszobás, emeleti hálóhoz vezet, a másikat az épület közepén kialakított dolgozószoba túloldalára pozícionálták a tervezők. „Az emeleti helyiségek jól kihasználják a magas, gerendás tető előnyeit, ráadásul innen páratlan kilátás tárul elénk a közeli lagúna vizére is” – teszik hozzá az építészek.

![]() ![]() |

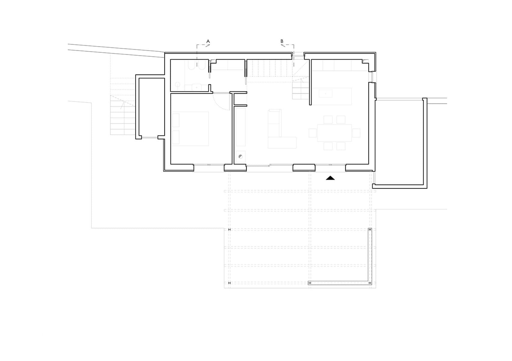
A földszint egyterű, letisztult formákkal, tompított tónusokkal, természetes felületekkel operál. Itt található a konyha, az ebédlő és a nappali. Ez utóbbi a kertre néz, ahová francia típusú, valamint üveg tolóajtókon át juthatunk ki. A padló anyaga beton, ami benyúlik egészen a nyugati oldalon lévő, gardrobe-os-zuhanyzós hálószobába is. Jól illeszkedik a ház minimalista jellegéhez a belső lépcső fehérre festett, légies fém szerkezete, amelyen fa lépcsőfokok emelkednek.

![]() ![]() |

A Casamanda natúr, világos terei, természetes, letisztult vonalai láthatóan már csak arra várnak, hogy tulajdonosaik élettel töltsék meg azokat. A ház ezért cserébe, jól érzékelhetően, a végtelen nyugalmat és a természet karnyújtásnyi közelségét ajánlja fel.
Presicci + Pantanella D'Ettorre Architetti | Web | Instagram
Forrás: DeZeen
További képek és rajzok a galériában!
Ha tetszett a cikk, és szeretnél előfizetni magazinunkra, itt teheted meg.








