Erről szóló cikkünk a 198-as, 2025/2-es lapszámunkból közöljük.
A XI. kerület kellemes, zöldövezeti részén működik a Slachta Margit Kollégium, az egyetemisták elit intézménye, amely a kényelmes szálláslehetőség mellett az önképzéshez, a vezetői ambíciókhoz is lehetőséget biztosít. Az oktatás a jövő nemzedékébe fektetett lehetőség. Különleges a helyzet akkor, amikor a bővülő szellemi tér az építészeti térformálás korszerű és felelősségteljes elképzelésével párosul. Ez történt a Slachta Margit Kollégium új épületének kialakításakor is, amelyet a városi épületek életciklusa változásainak figyelembevételével, a funkcióváltás követelményének gördülékenységével újított meg a KÖZTI Zrt.
Az Aga utca és Tardoskedd utca találkozásában, az IPARTERV színeiben, Rimanóczy Gyula vezetésével készült el egy laborépület terve 1975-76-ban. Az elsősorban a levegőszennyezési és vízminőségi méréseket végző laboratórium fénykorát az 1990-es, 2000-es években élte, amikor az egykori Környezetvédelmi Minisztérium döntéshozást segítő háttérintézményei működtek benne a legkorszerűbb méréstechnikát biztosító technológiával és berendezésekkel, eszközökkel. Az épület lassan elnéptelenedett, a laboratóriumi funkció megszűnt, s közel tíz évig üresen állt.

Ebben az épületben került elhelyezésre a szakkollégium – kihasználva a kellemes, csendes pihenést, tanulást segítő, fákkal övezte környezetet, ahonnan az inspiráló városi kulturális forgatag is azért hamar elérhető. Ideális lokáció és ideális, felelősségteljes gondolkodás vezette az építészeket, amikor finom beavatkozásokkal, a fenntarthatóságot szolgáló és biztosító megoldásokkal mediálták az átépítést, a szükséges funkcionális átváltozást. A környezetvédelemmel foglalkozó egykori laboratórium szellemisége szintén tovább él, látva, hogy a lehető legkíméletesebb eszközökkel végezték el az átalakítást.
Az eredeti terv szigorú szerkesztettsége megfelelt funkciójának. Az IPARTERV, amely jelentős szellemi műhelyt jelentett a ‘60-as és ‘70-es években, az idősebb és fiatalabb építész és mérnök nemzedék együttlétén túl befogadta a kiteljesülő avantgárd mozgalmakat is. Építészei előregyártott szerkezetű házat terveztek, amelynek kötöttségét feldobta félköríves vonalú lépcsőháza. Ez az elrendezés lehetőséget adott arra a KÖZTI építészeinek, hogy az új használat befogadása csak minimális átalakítással és bővítéssel járjon. A terv az épület egyedi stílusjegyeit figyelembe vette, eredeti karakterét a korszerűsítés mellett is óvta. A párkánymagasság megtartása, a tetőidom formája és a homlokzati architektúra visszaidézése kiemelten fontos pontok voltak a tervezés során.

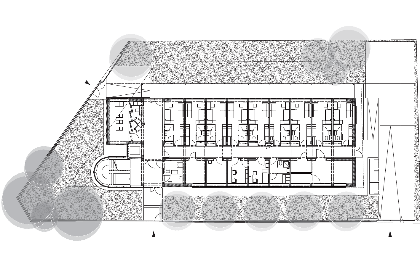
Az új funkció kialakításához elsősorban belső épületszerkezeti elemeket volt szükséges bontani, áthelyezni – a legnagyobb léptékű beavatkozás a liftakna áthelyezése volt, amely lehetővé tette a privát és közösségi terek elválasztását egy-egy emeleten. Így a földszinten és minden emeleten helyet kaphatott egy tágas, egybefüggő tér, ami alkalmas a publikus, közösségi funkciók befogadására, illetve közvetlenül kapcsolódik a vertikális közlekedőmaghoz. A földszinten, a bejárathoz közel, kiemelt pozícióban az épület közös használatú kápolnája kapott helyet, a további szinteken konditerem, konyha, könyvtár, illetve közös tanulószoba szolgálja a lakók kényelmét. A negyedik emeleten egy 50 fős előadóterem létesült.
A kollégiumban 55 fő elhelyezésére van lehetőség egyágyas, saját fürdőszobával rendelkező szobákban, illetve kétszemélyes, fürdőszobás, korszerűen és kényelmesen berendezett helyiségekben. Sőt a korszerű esélyegyenlőségi követelményeknek megfelelően egy szoba mozgáskorlátozott diáknak is adekvát felszereltségű lakhatást biztosít. Az épület hosszanti tömegében az aszimmetrikus középfolyosóra két oldalt felfűzve kaptak helyet a szobák. A meglévő, viszonylag sűrű szerkezeti raszter és a folyosó mentén futó aknasor felhasználásával kialakítható volt a logikus, cellás elrendezés. A lakószobák a teljes homlokzaton végigfutó új, falazott parapetes alumínium sáv nyílászárókat kaptak.

Ez a homlokzati rendszer az eredeti homlokzatosztás arányrendszerét és karakterét követi a funkciót szolgáló módon, a lehető legtöbb természetes fényt biztosítva. Ahogy funkcionálisan és alaprajzi elrendezésben, úgy a homlokzatképzésben is könnyedén megkülönböztethetőek a privát zónák, lakóegységek vagy a közösségi terek struktúrái. A karakteres lépcsőházi blokk üvegdoboza az épület értékes attribútuma, ezt filigrán, aluprofilos függönyfal teszi még inkább az épület attraktív elemévé.
A ház gépészeti egységei az épület tömegébe süllyesztve, eltakarva kerültek kialakításra, beépítésre. Az így kapott rendezett állapot településképi szempontból javított az eredeti ház állapotán. Az egykor kissé kaotikus, több periódusban felszerelt gépészeti elemek megszüntetésével és rendezésével nemcsak az épület külső összképét formálták a tervezők előnyösebbre, hanem lehetőség adódott a kollégium munkatársai részére irodák kialakítására, amelyekből pompás kilátás nyílik a Gellérthegyre, és összeköttetésben van az újonnan létrehozott tetőterasszal.

A Slachta Margit Kollégium épülete kreatív és tökéletes példa arra, hogy a gazdasági-társadalmi változásokból következő épületfunkció-váltások nem radikális beavatkozásokat igényelnek feltétlenül, hanem figyelmes, átgondolt, innováció általi megoldásokkal biztosítani lehet velük a fenntartható környezetet.
Tervezés éve: 2021 – 2022
Kivitelezés: 2022 – 2024
Átadás éve: 2024
Nettó/bruttó terület: 1695 m2/2023 m2
Generáltervező: Közti Zrt.
Építész vezető tervezők: Peschka Alfréd, Öcsi Gabriella DLA
Építész munkatársak: Libertiny Anna, Szabó László (DOB60 Építész Kft.)
Belsőépítész tervezők: Libertiny Anna, Öcsi Gabriella DLA
Generálkivitelező: a Fejér-B.Á.L. Zrt. és az Épkar Zrt. konzorciuma
További képek a cikk végén található galériában!
Ha tetszett a cikk, és szeretnél előfizetni magazinunkra, itt teheted meg.



