Tudományos központ a fenntartható fejlődésért.
Vannak épületek, melyek előtt gyanútlanul sétálunk el, nem tűnnek fel, mert annyira illeszkednek az utcaképbe, a miliőbe, amit elvárunk tőlük. Ilyen az Úri utca 72. is a Várban. Elsőre nem kapja el tekintetünket, mert ilyennek kell lennie. Egy szép, történelmi épületet látunk egy nagy múltú helyen: klasszikus, nyugodt arányú homlokzatot, barokk elemeket, és pont ezt várjuk el egy várbeli épülettől. Így hát elégedetten sétálunk tovább a Tóth Árpád sétányon, miközben mit sem sejtünk arról, mi mellett haladtunk el. Cikkünk az OCTOGON magazin 174-es (2022/2-es) lapszámából.

Erről a képzeletbeli jelenetről eszembe jutott egy másik: E.T.A. Hoffman, ez a 18. századi német író, karikaturista, jogász, zeneszerző és híres alkoholista számos misztikus és rémtörténetet írt. Az egyik novellája „Az elhagyott ház” címet viseli. Egy romos, lakatlan házról szól, ami örökkön zárva van, ablakai sötétek. A város lakói ismerik az épület kitartó hallgatását, de együtt élnek vele. A főhős, egy fiatal diák is mindennap elmegy mellette, hisz szem előtt van, a város legforgalmasabb utcájában áll. Egy idő után az épület képe beférkőzik a gondolataiba, kutatni-vizsgálni kezdi az épületet, majd teljesen megdelejezi, amikor meglát az ablakban egy női kezet. A házról kiderül, hogy nem lakatlan, és falai között misztikus dolgok történnek.
Az Úri utca 72. sem egy átlagos épület, már ha lehet ilyet mondani egyébként a várbeli házakra. Habár misztikus jelenésekről nem hallottam falai között, de története épp annyira delejes. Az épület a Magdolna torony átelleni szomszédja, eredete a középkorra nyúlik vissza és a templom plébániájaként funkcionált eredetileg. A mai épület helyén két épület állt, ezt a kettősséget más formában, de a mai napig megtartotta. A 18. század végén nyerte el maihoz hasonló formáját, késő barokk, klasszicista homlokzatát és a sétányra néző épületrészt is.
Az épület tömege, valamint az Úri utcai homlokzat osztása és kőkeretes kapuja őrzi mai napig a ház ezen korszakát. A következő változást a történetében már egy 1939–41-es átépítés hozott. Az épület tulajdonosa, Scossa Géza a Magyar Nemzeti Bank igazgató-helyetteseként vásárolta meg az épületet. A ház ekkor kívül-belül és alul-felül is átalakult. A sétány felőli homlokzatot átszabták, ablakkiosztása megváltozott, kapott egy sarokerkélyt és két zárterkélyt, a korban jellemző klasszicizáló-romantizáló hatásokkal. Bent az eredeti térrendszert átalakították, közlekedőit is beleértve, a tetőszerkezetet és a födémeket úgyszintén.


Az épülethez mindig is tartozott pince, egyrészt becsatlakozott a Vár alatt húzódó barlangrendszerbe: ezt a kétszintes barokk pincét, mely 7–10 méter mélységű volt, bővítették 15–30 méter mély rendszerré. Csarnokokat, trezortermeket alakítottak ki a Magyar Nemzeti Bank aranytartaléka számára, és óvóhely is készült a háborúra. A koronázási ékszerek elhelyezése is felmerült a korabeli tervekben. Az ostrom alatt erőteljesen megsérült az épület, homlokzata és falszerkezete is sok helyen leomlott. Az 1950-es években a Magyar Villamos Művek Tröszt Országos Villamos Teherelosztó központja került a pincerendszerbe. Felszíni területén, az 1969-es felújítások után a teherelosztó munkatársaik kaptak lakást. Később a teherelosztó átköltözött a már lebontott, Virág Csaba-féle későbbi épületbe. Az épület a 2000-es évek eleje óta állt üresen, míg a Magyar Nemzeti Bank Pallas Athéné alapítványa (PADME) meg nem vásárolta 2014-ben. Az épület felújítására meghívásos pályázatot írtak ki, melyen a műemléki épület tervezését a Ginkgo-Zöld Építész Iroda Kft. nyerte el. A közel húsz éve használaton kívüli épület állaga romos volt, az építészi munka 2015-ben kezdődött meg és 2021-ig tartott. Az épület a PADME tudományos központjaként épült újjá, melyben kutatóközpont, irodák, könyvtár kapott helyet. Programja alapján a központban – a kutatói együttműködések keretében – a tudományos világ élvonalába tartozó professzorokat látnának vendégül.
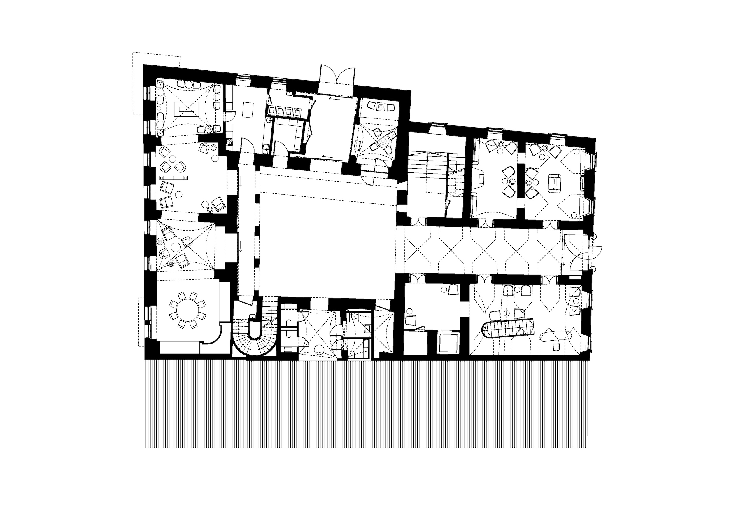
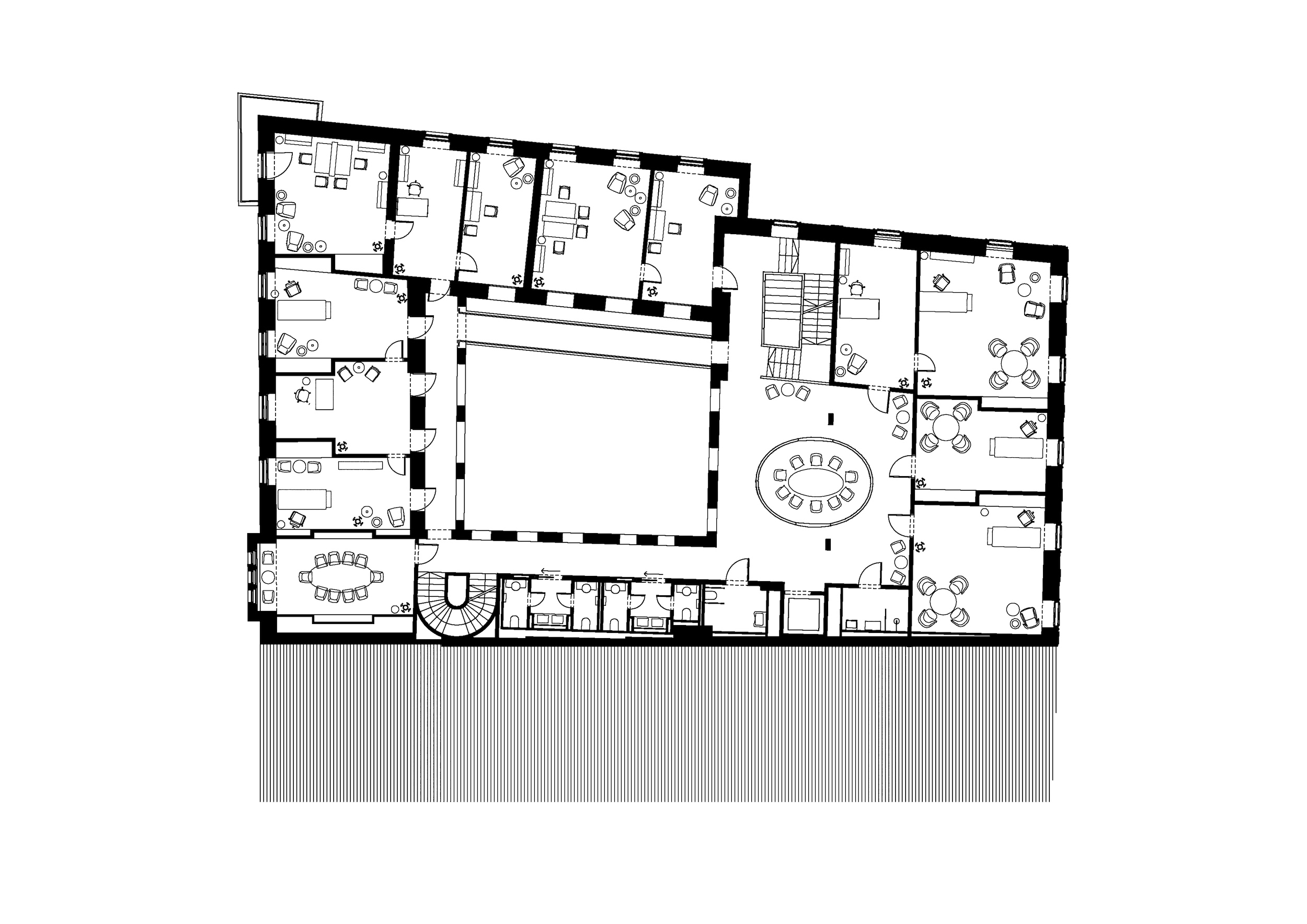
Az építészek alapkoncepciója az épület „többhomlokzatúságának” megtartása, a történetéből fakadó két épületszárny belső térbeli összekapcsolása, de homlokzati elkülönítése lett.
A generáltervezés kortárs elemeit konzekvens anyaghasználattal emelte ki a Losonczi Júlia és Oroszlány Miklós vezette építész csapat. Az Úri utcai tömbről fellelhetőek voltak a késő barokk állapotokat dokumentáló fotók, így ennek a szárnynak a homlokzatán a cél az eredeti ablakkiosztások és keretezések visszaépítése volt. Az ablakkiosztást és a kőkeretek visszaépítését a homlokzat eredeti párkányosztásának figyelembevételével hozták létre. A kapuzat különleges csillagmintáját is felújították.

A sétány tömbjét minden egyes korszak a maga képére szabta, így az építészeti karakterét nehéz lett volna meghatározni. Az építészek ezért úgy döntöttek, finom gesztussal kortárs elemeket adnak a homlokzatnak. Az átalakítások során létrejött erkélyeket és ablakbeosztásokat megtartották, illetve a Kapisztrán tér felé kaput nyitottak egy régen jelzett bejárat helyén. A homlokzatokon megjelenő új építészeti elemek a sétány felőli nyílásokon megjelenő fém perforált zsaluk, melyek véletlenszerű finom mintát kaptak. A lakatosmunkákat a Molnár Steel Design Kft. szakemberei készítették. A homlokzatnál figyeltek arra, hogy túlságosan ne válasszák el a két épület karakterét, így a homlokzat színe egységes, a lábazati burkolat egyik szárnyról a másikra folyik és az ablakok mérte és belső osztása is egységben áll egymással.
A belső terekben a legnagyobb változást az udvar üvegtetőzettel való lefedése jelenti. A nyitott udvarból zárt, belső helyiséget alakítottak ki. A belsők egységesen fehér színt kaptak, ezt az egységet csak az építészeti elemek törik meg, a falkutatások során ugyanis nem találtak freskó vagy stukkó díszítést. A tér három szintre osztódik, a térszervezés vezérgondolata az volt, hogy mindhárom szint be legyen kapcsolva az épület használatának mozgásfolyamába és az udvar is minden szinten be legyen ágyazva a térrendszerbe. A tervezési feladatot egyébként kiegészítette egy környezetpszichológiai kutatás is, melynek eredményei segítették a tervezők munkáját. A földszinten több boltozatos helység is megmaradt, csehsüveg-boltozatuk karakterét igyekeztek jobban hangsúlyozni a síkfödémek mellett.

![]() ![]() |

A földszinten találhatóak a fogadóhelyiségek, tárgyalók, a kutatók nappalija, melynek pozíciója az épületen belüli mozgást indukálja. Az építészeti munkálatok a pincerendszert nem érintették, de lejáratát átalakították egy esetleges későbbi bekapcsoláshoz, utalásképpen a föld alatti világra. A háború előtti átalakítás során árkádíves falsávot hoztak létre, ezt a tervezők megtartottak. Az első emeleten egy új híd köti össze a két épületrészt, bevonva a szint életébe az udvart. A tetőtér helyiségeit egy körbejárható kerengő kapcsolja össze, vagyis a kutatószobákat, előadót és a könyvtárt. Lényeges volt, hogy az eredeti tetősík és -forma megmaradjon, de látható legyen a Magdolna torony, ahogy az is, hogy az új üvegszerkezetű fedés ne nőjön túl a tetősíkon, az utcáról ne legyen látható. Ez a bonyolult feladat végül egy kedvező térhelyzetet, vagyis a kerengő megvalósítását eredményezte. Az udvart fedő üvegszerkezetet, a fémmembrán szerkezetű üvegtetőt láthatatlan, finom elemnek szánták a tervezők, ezért arra törekedtek, hogy minél vékonyabb struktúrából álljon, és fehér színe is láthatatlanságát, illeszkedését támogatja.
Két új lépcsőház létesült azzal a céllal, hogy a térhasználat során lehetőleg minden elem vertikálisan is be legyen kötve az épületben. Az új építészeti elemeket visszatérő motívumként egyedileg öntött terazzo-burkolattal fedték, így például a lépcsőházakat is. A terrazzo-burkolat pettyezésszerű mintája visszaköszön a külső zsaluk pontszerű mintázatában. A tervezők a színek harmóniáját is igyekeztek tartani a burkolat keverésével, a filigrán bronzkorlátok tudatos anyag- és színhasználatával. Sok apró, finom összhang rejtőzik az építészeti koncepcióban, s áll össze mutatós egésszé.

A vár lakónegyedének mai utcahálózat-szerkezete már a középkor folyamán kialakult. A jól dokumentált ingatlan-kataszteri változások számunkra igazán érdekes eseménye 1936. július 16-án történt, amikor a Magyar Nemzeti Bank titkos megbízásából Scossa Géza, a bank igazgató-helyettese vette meg az ingatlant, 105000 Pengőért. A bank az épületen végrehajtott – Scossa nevén futó – építkezések után 1942. december 23-án íratta a nevére (azaz vásárolta meg az igazgató-helyettestől) az ingatlant. A vételár ekkor is 105000 Pengő volt.
A hivatalosan folyó építkezés egy nagyobb, titkos munkát takart. A Scossa-féle vásárlás mögött álló Magyar Nemzeti Banknak különleges céljai voltak az épülettel: óvóhelyet, trezortermeket szándékoztak a ház alá építeni, biztosítandó a háborús események alatti bankjegyforgalmi működést, a vezetőség és családtagjaik védelmét. Ennek előzménye az az 1884-es geológiai kutatás, amely az ingatlan alatt egy hatalmas kiterjedésű barlangrendszert tárt fel. A műszaki tervezést a bank hivatala végezte. A kapubejáróból balra nyíló földszinti helyiségeket átalakították, a második ablakot vakablakká alakították, és egy liftet építettek elé, mely 15 méteres mélységbe szállította az utasokat és terheket. A helyiségből egy fekvő légóajtóval lezárt, meredek boltíves folyosót is nyitottak a négy méter mélyen épített házi pincébe, a szomszéd 70-es ház téglaboltozatos barokk pincéjét is használatba véve.
Az építkezést több egymás alatti szint kialakításával egészen 30 méteres mélységig folytatták. A 15 méteres szinten két trezor-termet alakítottak ki, a szóbeszéd szerint az egyik Magyarország aranytartalékának elhelyezésére, a másik a Szent Korona védelmére szolgált volna. Valójában mindkettő általános értékmegőrző céljára készült. A 30 méteres szinten hatalmas, háromszintes trezort építettek. A pincerendszer teljes kiépítése 1942 decemberére készült el Kadics Ottokár, Jáky József és báró Reichlin-Meldegg Tibor mérnökök irányítása mellett. Hogy az épületegyüttes Budapest ostroma alatt rengeteg találatot kapott, az annak volt köszönhető, hogy a 22. (Mária Terézia) SS-hadosztály katonái is itt találtak alkalmi menedékre.
A banki trezor-funkciók végül az ’50-es években szűntek meg, amikor a Magyar Villamos Művek Tröszt Országos Villamos Teherelosztó központja vette használatba az épületet. Ám a pincerendszer alakítgatásával továbbra sem hagytak fel a tulajdonosok. Végül 1967-re alakult ki a mai, 1534m2 alapterületű, majd’ 450 méter hosszú folyosó- és üregrendszer.
Kivitelezés: 2019–2021
Nettó alapterület: 1 595 m2
Pinceszintek nettó alapterülete: 1 850 m2
—
Történeti előzmények:
Építés ideje: XVIII. SZÁZAD (?); 1938–1941 (LEHOCZKY GYULA, REICHLIN-MELDEGG TIBOR); 1946 (TATTAY[?])
Átépítések: 1960–1967 (SZABÓ J., VÁRBÍRÓ GY.) és 1986 (TÓTH ÁRPÁD)
—
Generáltervező: GINKGO-ZÖLD ÉPÍTÉSZ IRODA KFT.
—
Vezető tervezők: LOSONCZI JÚLIA, OROSZLÁNY MIKLÓS
Építész munkatársak: DÁNYÁDI SÁRA, INCZE ÁDÁM, KOVÁCS ZSUZSANNA, KURUCZ ATTILA, TOLNAI LINDA
Belsőépítész tervezők: PREISICH ANIKÓ, SOMLAI TIBOR
Belsőépítész munkatárs: MOLNÁR ANDRÁS
—
Műemléki felügyelő: DELI SÁNDOR
Műemléki szaktanácsadó: BALIGA KORNÉL
—
Előzetes szakvélemények:
Épületkutatás: BOR FERENC, FARBAKY PÉTER, TÓTH TÍMEA
Régészeti kutatás: TEREI GYÖRGY, VÁRKÁR TIBOR
Falfestés kutatási dokumentáció: SPRINGER FERENC
—
Generálkivitelező: RAW DEVELOPMENT KFT.
Kivitelező: LAKI ÉPÜLETSZOBRÁSZ ZRT.
—
Építtető: PALLAS ATHÉNÉ DOMUS MERITI ALAPÍTVÁNY
Még több fotó és rajzok a galériában!
Ha tetszett a cikk, és szeretnél előfizetni magazinunkra, itt teheted meg.


