Prof. Puhl Antal DLA Ybl-díjas, Wéber Antal-díjas építész 72 éves volt
Dr. Puhl Antal, Ybl-díjas építész, a Puhl és Dajka Építész Iroda vezető tervezője, egyetemi tanár, a debreceni építészképzés megújítója, a Debreceni Egyetem professor emeritusa, a Cseh Építőművész Szövetség tiszteletbeli tagja, a Magyar Filozófiai Társaság és a Széchenyi Irodalmi és Művészeti Akadémia tagjának emléke előtt az oldalunkon megjelent munkájával tisztelgünk.
Az Erzsébet híd pesti hídfőjét kapuként övező két karakteres palota déli darabja, a köznyelvben csak Matild néven forgó épület, akárcsak a túloldali társa, luxusszállodaként kezdett új életet. A déli Klotild-palota Puhl Antal és Dajka Péter tervei által újult meg. Cikkünk az OCTOGON magazin 168-as (2021/4-es) lapszámából.

„Van egy régi szájhagyomány, mely szerint József főhercegnek két lánya közül az egyik Klotild, a másik Matild volt s róluk nevezték el a palotákat. Mi szívesen élünk ezzel a két névvel, mert így legalább meg tudjuk különböztetni a két egyforma épületet” – írja az V. kerületi Házkezelőségi Igazgatóság 1962-ben a Lúdas Matyi megkeresésére megküldött válaszlevelükben. Ugyanis a közkedvelt vicclap felháborodott az Esti Hírlap egy korábbi rövid cikkén, amely a két Klotild palota egyikét lematildozta. Noha valóban hivatalosan „Klotild-palotákról” van szó, a szájhagyományt felkapva a korabeli sajtótól kezdve máig rajta maradt az Erzsébet híd pesti hídfőjét kapuként körbefogó, egymásra szimmetrikus két meghatározó épülettömb déli darabján a Matild elnevezés.
„Új köntöst kap a Klotild- és a Matild-palota” – írta például a Magyar Nemzet, szintén 1962-ben.
Noha az épületet korábban hivatalosan ugyan sosem viselte a Matild nevet, most azonban, bő évszázaddal megépítése után „legalizálódott” az elnevezés, és felújítva Matild Palota névvel nyílt meg luxusszállodaként. 1893-ban egy kormányrendelet nyomán elindult két új budapesti dunai híd, a mai Szabadság és Erzsébet hidak előkészítése. Az eredeti elnevezés szerinti Eskü téri híd építéséhez egy jelentős átrendeződésen ment keresztül a kapcsolódó belvárosi térség. Az átalakulás egyik legfőbb eleme a híd átadásával egyidőben elkészült, azt két oldalról szegélyező impozáns ikerpaloták megépítése volt. Az épületek alapját adó két, kiemelt pozícióban levő telket Klotild főhercegnő, József főherceg felesége vásárolta meg a Fővárosi Közmunkák Tanácsától, a Kígyó tér – a mai Ferenciek tere nyugati felének – rendezése után. „Lukits Adolf királyi tanácsos, a főhercegi uradalmak és javak igazgatója 1898. április 27-én kérvénnyel fordult a Fővárosi Tanácshoz, Klotild főhercegnő megbízásából. Közölte, hogy a délebbi, Duna utca által határolt, »A« jelzésű telken és az északabbi, Kígyó utca által határolt, »B« jelzésű telken »két pendant jellegű 4 emeletes bérházat« szándékozik építtetni a főhercegnő.”

A délebbi palota tervei készültek el előbb, azokat Korb Flóris és Giergl Kálmán építészek készítették és a megrendelői igények értelmében egy pompás, a kor szellemében kiemelkedő, elsőrangú épületet kellett megfogalmazniuk. „Mindkét épület a helyi viszonyok teljes tekintetbe vételével, első rangú kivitelben, mint árúházak, díszes boltkapuzatokkal és kőhomlokzattal, jellegzetes sarok felépítményekkel terveztettek és fognak készíttetni.”
Többszöri nekifutás és tervmódosítás után végül a Fővárosi Mérnöki Hivatal műszaki véleménye és a Fővárosi Közmunkák Tanácsa javaslatai alapján, és azok kikötéseivel 1898. június 15-én adta meg az építési engedélyt a főváros a Klotildpaloták I. épületére. A toronnyal ékesített, három emeleten kialakított impozáns belmagasságú és alapterületű – öt-hat szobás lakásoknak, alattuk két szinten kávéháznak és üzlethelyiségnek helyet biztosító – épület végül alig két év alatt, 1901-ben készült el. A szemben levő, azzal szinte teljesen szimmetrikus párját, az északi tömböt egy évvel később adták át. Az épületeket középen egy kocsiátjáró passzázs metszi keresztbe, eredetileg ezzel osztották ketté a kereskedelmi egységeket: a mai Ferenciek terei oldalon kávéház, a Duna felé üzlethelyiségek nyíltak.

A megépült házak szerkezeti érdekessége, hogy a földszinti és a mezzaninon folytatódó kereskedelmi részek tartópilléreit és gerendázatát vasból készítették, amit faragott kőburkolattal gondosan takartak. Ezen a szerkezeten nyugszik a további három emelet és a saroktornyok téglából épült, szintén faragott kőburkolattal felöltöztetett tömege. Az első lakószinten található termeket eredetileg különböző társulatok és egyletek vették birtokukba, így a tényleges lakások csak a második emeleten kezdődtek. A tetőtérben pedig idővel maga Korb Flóris és Giergl Kálmán nyitott építészműtermet, noha az ehhez szükséges építési engedély beszerzése elé szintén számtalan akadály gördült. Míg a ház külseje az eklektika jegyeit hordozza, a belső kialakítást már egyértelműen a szecessziós hatások uralták.
Az üvegablakok Róth Miksa műhelyében készültek, a lakásokban a pécsi Zsolnay csempegyár szállította a kályhákat és itt létesült Budapesten először lift az OTIS jóvoltából.
A palota keleti szárnyában nyílt meg a Belvárosi Kávéház szellős terével, kovácsoltvas korlátos galériával. A kávéház konyhája ismert volt, a vendégek között rendszeresen fordult meg Krúdy Gyula, aki itt írta a Szindbád-történetek jelentős részét. Az államosítás után a kávéházból egy ideig diákmenza lett, majd 1956-tól ismét visszanyerte eredeti funkcióját. A kávéházhoz presszó és grill is csatlakozott, ahol akár hajnalig lehetett mulatni. Majd ismét visszalépés történt, amikor önkiszolgáló étterem nyílt a térben. 1984-ben felújították és nyílt meg a Lido Belvárosi Kávéház, amit a rendszerváltás után hamar kaszinóvá alakítottak át. Az elnevetés maradt, a funkció az ezredfordulón megváltozott, akkor diszkóvá alakították át, néhány évvel később pedig korhű felújításon esett át, majd nem sokkal később bezárt. A Duna felőli oldal is számos átalakításon ment keresztül, a Bálnába való átköltözésééig itt működött a Budapest Galéria, mellette változó profilú üzletek váltották egymást.

![]() ![]() |
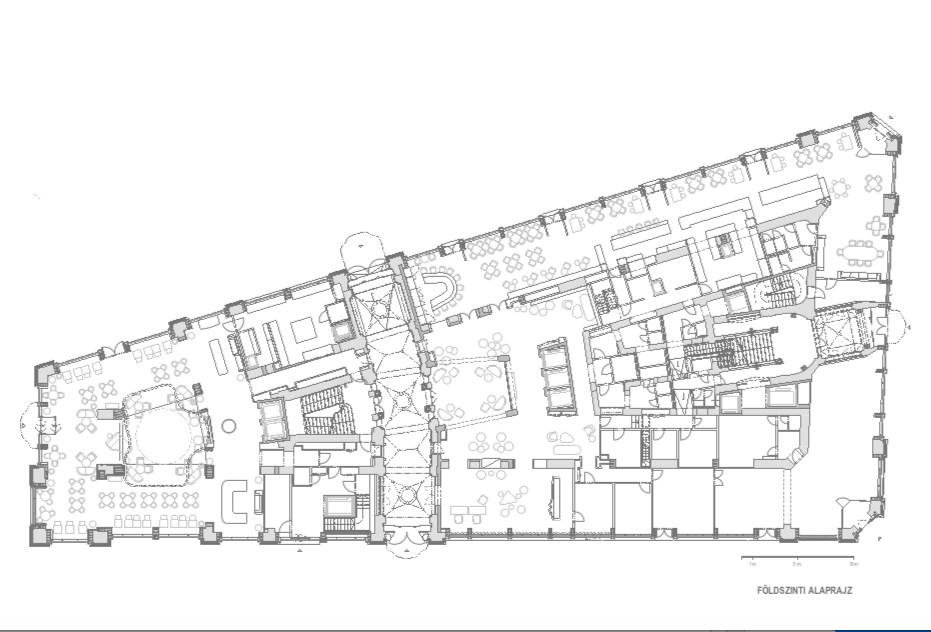
Az épületet megvásárló új tulajdonos 2015-ben kezdett neki a teljes felújításnak. A palota jelentős funkcióváltáson ment keresztül: a lakásokból szállodai szobák és lakosztályok lettek, a közös terekből lobbi, a korábbi üzlethelyiségekből és kiállítóteremből étterem és konferenciatermek. Mindez a terek és a közlekedési útvonalak teljes mértékű újragondolását igényelte úgy, hogy közben érvényesíteni kellett az épületre vonatkozó műemléki szempontokat is. Részben mintául szolgálhatott az ikerépület pár évvel korábbi, szintén szállodává történő átalakítása is.
![]() ![]() |
Az immár ténylegesen Matild néven futó projekt során a palota luxusszállóvá alakult át, amely külső megjelenésében korhű módon újult meg, belső kialakításában megtartva az eredeti épület DNS-ét: alapvetését, szellemiségét és legfőbb térelemeit az új igények szerint alakították át. Sikeresen visszakaphatta megkopott pompáját, korabeli eleganciáját. A külső szemlélő alapvetően az épület rendbetételét, megtisztulását veheti csak észre, a részletek inkább az utcáról nem látható belső terekben rejlenek. Az átépítésnek ötvöznie kellett a műemléki igényeket a Marriott szállodalánc The Luxury Collection brandje által állított magasfokú szolgáltatási elvárásokkal.
A legmagasabb igényekre vágyó vendégek a Szabad sajtó út felől léphetnek be az épületbe, ahol a korabeli kocsibejáró passzázs nyújt számukra „aha” élményt. A világos, magas légterű, szecessziós hatású díszítésekkel és némi modern, de a múlttal jól harmonizáló elemmel kiegészített térség felett két, decens, üvegkorlátos híd lebeg keresztül, amelyek a galériaszinten kötik össze a két épületszárnyat. Mivel maga a passzázs a recepció kialakítására nem volt alkalmas, így a vendéget át kell vezetni a Duna felőli szárny belső udvarába, amely felfelé átriumszerűen nyitott, üvegtetővel fedett, így kellőképpen világos, egyben jól örökíti át a gangos térszerkesztés hagyományát.
![]() ![]() |
A Puhl Antal és Dajka Péter által megalkotott építészeti tér alapvetően arra törekedett, hogy az épület eredeti sémáját úgy formálja át, hogy az új funkció a korábbi karakterisztikát megtartva épülhessen bele a házba. Az újonnan belekerülő, teljesen modern elemek pedig, például a gyorsliftek, ahol lehet, kellőképpen visszalépnek a háttérbe, akár transzparensek is maradnak.
Kivételt képeznek a teljesen új térképzések, például a korábbi padlásszinten elhelyezett loft szobák, amelyek az első három emelet klasszikus kialakítású lakosztályaival ellentétben ténylegesen maibb megfogalmazást kaptak. A kellő terek kialakításához a tetőt némiképp meg is kellett emelni, az utca felől pedig lamellák rejtik a szobákat úgy, hogy a külső összhatás ezáltal csak a legkisebb mértékben sérüljön.
![]() ![]() |
A másik kortárs hozzátoldás az épülethez a tetőn elhelyezett tetőtéri bár The Duchess néven, amely a mai szállodák elengedhetetlen kelléke. A körpanorámát kínáló, decensen elhelyezett üvegkubus óvatosan lép ki az épület kontúrjából, látványa a perspektíva miatt csak távolról – például a Duna túlpartjáról – vehető ki.
A keleti szárnyba ismét kávéház költözött, középen kiemelhető körszínpaddal, amely éjszaka lokállá alakulhat át. A kávéház, akárcsak a Duna utcai fronton végighúzódó Spago étterem nem csak a szállóvendégek, hanem a városból érkezők számára is nyitott, látogatói jóformán független életet élhetnek az épületen belül. Az étterem az utcai oldalon masszív árnyékolórendszerrel ellátott teraszt is kapott. A vendéglátótereket az alagsorban kialakított konyhák látják el, a földszinten csak egy előkészítő és egy üvegablakokkal feltárt látványcukrászat segíti azok működését.
![]() ![]() |
A szobák és lakosztályok vezérmotívuma a hagyományos, leginkább a szecesszióra épülő hangulatba némi kortárs gondolat ötvözése egy-egy bútordarabbal, kiegészítővel, festménnyel. A fürdőkben következetesen vonul végig a budapesti fürdőkultúrát idéző keleties hatás a mozaikokkal dekorált fülkékben kialakított káddal vagy zuhannyal. Nagysága ellenére kellőképpen tagolt, emberléptékű lett az új belső tér, amely jól bevonja a korábban már meglévő elemeket: függőfolyosókat, belső udvarokat.
![]() ![]() |
A Váci utca felől nyíló díszlépcsőház például új értelmet nyert azzal, hogy a galériaszint konferenciatermei innen a szálloda működésétől függetlenül is kellő eleganciával érhetőek el. Emellett számos intim tér és zug oldja fel a belső teret, amit a luxusszálloda-iparban nélkülözhetetlen elegáns és megnyugtató – főleg a sötét tónusokra, visszafogott mértékű aranyhasználatra építő – színvilág és süppedős, meleg textúrák erősítenek.

Befejezés éve: 2021
Nettó alapterület 11923,21 m2
Szintterület 14267,40 m2
Generáltervező: PUHL ÉS DAJKA ÉPÍTÉSZ IRODA KFT.
Vezető építész tervezők: PUHL ANTAL DLA, DAJKA PÉTER
Projektépítész: TAKÁCS GABRIELLA
Belsőépítészet: MARIA VAFIADIS (MKV DESIGN, London) és GABRIELLA KOVÁCS
Művészettörténész szakértő: BOR FERENC
Épületszerkezetek: DR. BECKER GÁBOR
Generálkivitelező: LAKI ÉPÜLETSZOBRÁSZ ZRT.
Lebonyolító: CÉH ZRT.
Beruházó: MELIS INVESTMENT KFT. (szállodaigazgató: MR. EMRE PASLI; projektmenedzser: MR. TOLGA M. DEMIRTAS)
Ha tetszett a cikk, és szeretnél előfizetni magazinunkra, itt teheted meg.














