CabinBalaton a Béres Építészirodától.
Hamarosan fogadhatja majd a városi tempótól elszakadni vágyó látogatóit a Vonyarcvashegyen épülő CabinBalaton. A „természetbe illesztett hotelszoba” tervezésekor fontos szempont volt a tradicionális épületforma újraértelmezéséből eredő építészeti megformálás, illetve a hatékony energiafelhasználás, a magas minőségű, természetes anyagok alkalmazása és a magas műszaki színvonal. Az épületet a tervező Béres Építésziroda mutatja be.
„A civilizált emberiség elvesztette a mozdulatlanságra való képességét, leckét kell vennie csendből a vadontól” – Karen Blixen

A Cabin Balaton ötlete 2019-ben született meg. A Balaton Next Kft. megbízása alapján egy olyan mini-nyaraló vagy vendégház prototípusát igyekeztünk megalkotni, ami a Balaton-felvidék építészeti hagyományaihoz úgy illeszkedik, hogy akár több helyszínen is megépíthető legyen. Első lépésként Vonyarcvashegy északi részén, egy részben még érintetlen természeti területén két ütemben egy-egy korszerű építészeti gondolkodáson alapuló, kortárs arculatú szállásépületet valósít meg a beruházó.
Fontos tervezési szempont volt a tradicionális épületforma újraértelmezéséből, továbbgondolásából eredő, kissé talán feltűnő, de letisztult építészeti megformálás.
A praktikus kialakítás, a hatékony energiafelhasználás, a magas minőségű, természetes anyagok alkalmazása és a magas műszaki színvonal is a vezérelveink közé tartozott. A tervezés során kiemelt figyelmet fordítottunk a különleges adottságú telek értékeinek kihasználására, a kilátás látképre hangolására.
![]() ![]() |
Esztétikai szempontból egyik alapelvünk a tárgyszerű, elegánsan természetbe illesztett épület megformálása volt, egyben igyekeztünk korszerű eszközökkel, friss tömegformálással és részletképzéssel a házat a mai kor lenyomataként is értelmezni. Az egyszerű geometriai formák, a könnyed terepbe és tájba illesztés valamint az időtálló idomok, anyagok és burkolatok használata is ide vezethető vissza.
Az épület tervezési programja talán legjobban egy természetbe illesztett hotelszobaként írható le.
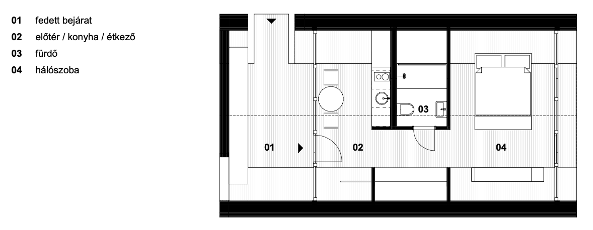
A szállásépület fő helyiségei egy élére fordított, négyzet alapú hasáb alakú tömegben helyezkednek el. Az épület legkedvezőbb tájolású homlokzata teli üvegezésű. Itt kapott helyet a vendégszoba. A túloldalon hasonlóan nagyvonalú üvegfelület mellett található az étkező, melynek védettségét egy részben fedett terasz biztosítja. Az itt leírt két fő helyiség között egy központi blokkban helyeztük el a fürdőszobát, melynek falai mentén található egy beépített mini-konyha és a gépészeti fülke is.
Az első épület várhatóan 2021-ben készül el, így hamarosan fogadhatja majd a városi tempótól elszakadni vágyó látogatóit.

CabinBalaton
helyszín: Vonyarcvashegy, Magyarország
projekt dátum: 2020
elkészülés ideje: 2021
terület: 25 m2
típus: erdei szállás
megrendelő: Balaton Next Kft.
építész tervezők: Béres Attila, Baráth Éva
tartószerkezet: Fazekas Zoltán
épületgépészet: Téglás Zsolt - Komfortdesign
épületvillamosság: Horváth Gábor
További képekért kattints a galériára!
Ha tetszett a cikk, és szeretnél előfizetni magazinunkra, itt teheted meg.




