Erről szóló cikkünk a 200-as, 2025/4-es lapszámunkból közöljük.
Az épületet a Pécsi Építész Iskola korábbi növendékei, mai oktatói, vezetői tervezték. A munkafolyamatba a Doktori Iskola építész kollégái is bekapcsolódtak, a projekt pedig több doktori mestermunkát is indukált.
Története: a Pécsi Tudományegyetem Műszaki és Informatikai Karának építész képzés oktatása éveken át két helyszínen zajlott. Egyik része a hegyen elhelyezkedő fő campustól külön, a Rókus utcai épületben működött. Itt voltak a konzultációk és a műhelyfoglalkozások, míg az előadások, gyakorlatok a Mecsekoldalon lévő campuson voltak. A hallgatóknak és az oktatóknak folyamatosan mozogni kellett a két épület között, amely kissé megtörte az oktatás dinamikáját. 2006 és 2008 között felújították a MIK campus épületeit, kollégiumát és új előadótermeket is kapott az intézmény, de akkor építész műhely még nem készült. Időközben a növekvő hallgatói létszám miatt szükségessé vált egy új helyszín az oktatásra, és 2017-ben adódott végül egy lehetőség, hogy a Pécsi Tudományegyetem a Modern Városok Program keretében, a Boszorkány úti kari campus területén építhessen végre egy építész műteremházat. Így a kar régi álma valóra válhatott: egy campuson belülre kerülhetett az építész képzés minden eleme.

Megvalósulás: az első tervek még egy egészen más architektúrához készültek, de 2017-ben, amikor a beruházás elkezdődött volna, az építőipari árak annyira elszabadultak, hogy az eredeti koncepciók már nem voltak reálisak a rendelkezésre álló fix költségvetésből. Emiatt egy új, kisebb forrásigényű épületet kellett tervezni, de immáron flexibilisebb hozzáállásban is kellett egyúttal gondolkodni. Egy esetleges újabb hirtelen áremelkedés miatt olyan tervezési módszerrel álltak elő, amely a kivitelezési fázisban komolyabb újragondolás nélkül tud változni mondjuk kisebb alapterületre, de az elképzelt
funkció mindeközben nem sérül vagy ad le az igényeiből. Ezt a tervezés során úgy sikerült megoldani, hogy egy előre gyártott elemekből álló, szendvicspaneles csarnoképületet terveztek, melyből egy-egy ötméteres rasztert leszedve az épület méretét két oldalról bármikor csökkenteni lehetett. Ezzel a módszerrel az épület struktúrája nagyon könnyen változtatható volt komolyabb tervezési újragondolás nélkül, akár a kivitelezés közben.

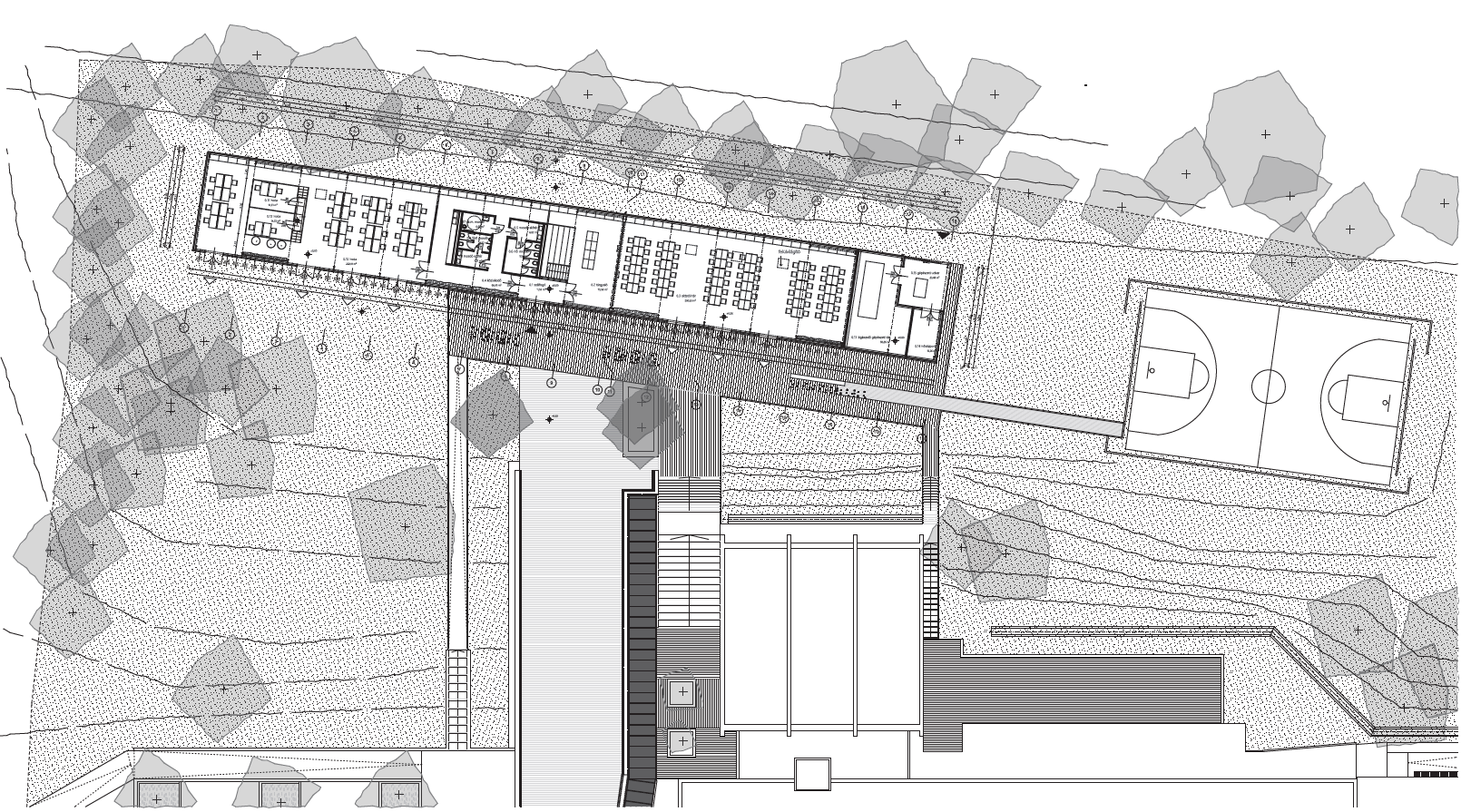
Építészeti koncepció: az É81-es épület tulajdonképpen a pécsi építész képzés arculatának is meghatározó része, ezért fontos volt, hogy a meglévő épületekre is reflektáljon, és a campus egészébe is beilleszkedjen. Szintén fontos szempont volt, hogy a telek felső részére, azaz kiemelt helyre kerüljön. Az épület egyszerre épült meg a G56-os gépészeti műhelycsarnokkal. A két új épület két hasábként definiálja és térfalként határolja északról és délről a mecsekoldali campus meglévő épületeit. Mindkét új csarnok a meglévő campus felé nyit.
A tervezés folyamán az épületnek egy egyszerű formát szerettek volna, mely egy egyenes, fekete hasábként jelenik meg, és ami egyetlenegy metszettel megrajzolható, és megépítéséhez nincs szükség rengeteg bonyolult csomópontra. A szendvicspaneles épületnek fekete burkolatot választottak, mert ugye „minden építész szeretne egyszer egy fekete épületet tervezni”, azonban ez a magyarországi időjárási körülmények és hőtechnikai terhelések mellett nem minden esetben optimális.

A műhely csak egy irányba, dél felé van megnyitva egy hosszú, vonalszerű nyílászáróval szinte a teljes déli homlokzat mentén. Így az épület a campus többi épülete felé néz és kilátást biztosít a város irányába. A csarnok traktusmélysége tízméteres, mely megfelelően bevilágítható egy irányból a rendelkezésre álló belmagassággal. A műhelytér a biztonság kedvéért tetőbevilágítókat is kapott a hátrafelé alacsony lejtésű tetőn. A homlokzati nyílászárói előtt szövet árnyékolókat alakítottak ki, melyekkel akár teljesen zárttá is tud válni a tömeg.
Iroda és műhely: belépve az épületbe balra a Breuer Marcell Doktori Iskola irodájának shared office irodatere található, ahol a kar oktatói és a doktori iskola hallgatói közösen tudnak dolgozni. Jobbra az oktatói és a tanulói tér található. Az épület végében kaptak helyet a gépészeti helyiségek. Hallgatók: az oktatói teret úgy tervezték, hogy egy teljes, körülbelül 120 fős építész évfolyam egyszerre kényelmesen beférjen konzultációs órára, laptopokkal, rajztáblákkal. A terem műhelyházként is funkcionál, ahova a hallgatók bármikor bemehetnek tervezni, tanulni vagy közösen dolgozni.

A jövőben bővíthető: az épületet a „Research by Design” elv alapján tervezték, ami azt jelenti, hogy a tervezést kutatásként is kezelték a tervezők. Ez egy kísérleti épület, a fókuszában pedig az állt, hogy egy magyarországi egyetem hogyan tud olyan épületet alkotni, amelynek költsége és mérete a kivitelezése alatt is csökkenthető akár, viszont később rugalmasan növelhető a hallgatói létszám változása vagy a jövőben rendelkezésre álló keret függvényében. A csarnok bejárata mellett található konyha és vizesblokkok falai fixek, a tér többi fala módosítható, alakítható, amennyiben a későbbiekben szükséges az áttervezés. Az épület tereiben a térelemek, objektumok szintén mozgathatók, így igény szerint alakíthatók át folyamatosan egy kívánt funkcióhoz.
Belső tér: mindent úgy terveztek, hogy az építészek képzésére fókuszáljon, és a hallgatók több igényére is megoldást nyújtson. Az oktatási térben lehet kiállítást, bemutatót vagy akár szakestet is tartani. A hátsó falon egy szekrénysort alakítottak ki, ahol hallgatói maketteket és munkákat mutathatnak be, de
egyben tárolóként is funkcionál. Az oktatói tér mellett helyet kapott egy előadó, benne egy kis mobil lelátóval. Az épületben igyekeztek egyszerű anyagokat használni, többször feltűnik az ún. „zöld polc” is, ahol acélszerkezetű állvánnyal egy növényfüggönyt hoztak létre – évszaktól, időszaktól függően változtatva bennük a növényeket. Az irodában és az oktatási térben is látszó gépészet lett kialakítva, indusztriális dizájnt adva a fekete-fehér csarnoktömegnek. Az irodai oldalon a co-working tér ketté lett választva egy beúszó lábakon álló polikarbonát irodával, ami mögött egy tárgyaló kapott helyet.

Komfortmérés, optimalizálás: gépész hallgatókkal együttműködve az épületben több mérést és optimalizálást is elvégeztek. Kifejezett szándék volt, hogy különböző kutatásokat is el lehessen majd végezni itt. A gépész hallgatók egy ember formájú termikus mérőbábuval mérték végig a teret. A méréseket elvégezték az épület több részén, még a munkaállomásoknál is, így fel tudták térképezni, hogy a különböző munkaállomásokon milyen körülmények, behatások vannak. Ennek eredményeként egyéni komfort szerint választhat asztalt az ott dolgozó, a saját hő-, fény- és akusztikai igényei szerint.
Egy jól használható, karakteres közeg jött létre, melyet az oktatók és diákok is szeretnek. A tervezés folyamán az építészek abszolút kihozták a maximumot a rendelkezésre álló fix keretből és egy előregyártott szerkezetű csarnok épülettípusból, annak érdekében, hogy oktatási és kutatási szempontból is egy érdekes példát hozzanak létre. Az É81 előtti füves területről az iskola alapítóját, prof. Bachman Zoltánt ábrázoló mellszobor (prof. Rétfalvi Sándor, Munkácsy-díjas érdemes művész 2019-es alkotása) figyeli tekintetével az épület jövőbeli, egyetemi napjait.
Tervezés éve: 2016 – 2017
Megvalósulás éve: 2019
Bruttó összterület: 1483,48 m2
Tervező: Pécsi Tudományegyetem, Műszaki és Informatikai Kar
Építész tervezők: Medvegy Gabriella DLA, Bachmann Bálint DLA, Veres Gábor DLA, Sike Ildikó DLA, Greg András DLA, Kokas Balázs DLA, Paári Péter DLA, Tárnoki István DLA
Statika: Aradi Ferenc
Beruházó: Pécsi Tudományegyetem, a PTE Modern Városok Program keretében
További képek a cikk végén található galériában!
Ha tetszett a cikk, és szeretnél előfizetni magazinunkra, itt teheted meg.


