Újpesti Főplébánia kialakítása a zeneiskola régi épületében.
Új helyre, a híres újpesti zeneiskola Szent István téri épületébe költözött az Egek Királynéja Főplébánia. A jövőbe mutató módon felújított ház tavalyi átadása óta várja a lelki otthont és közösséget keresőket.

Újpest megújuló főterét meghatározza az 1875-1881 között Bachmann Károly helyi építész tervei alapján épült, az Egek Királynéja tiszteletére szentelt neogótikus templom. A tér nyugati oldalán, a Károlyi István és a Liszt Ferenc utcák közötti területen állt eredetileg a plébánia földszintes, hosszan elnyúló, 1873-ból származó épülete (a tervező kilétéről nincs adat – szerk.). A kerület vezetésének régóta célja a tér jelentős részét elfoglaló vásárcsarnok és bódésor áttelepítése, a terület felszabadítása; ez a szándék most szerencsésen találkozott és összehangolhatóvá vált több intézmény bővítési igényével. Sikerült minden érintett számára a korábbinál kedvezőbb feltételeket teremteni: az 1922-től kilencven éven át itt működött Erkel Gyula Újpesti Zeneiskola megfelelő méretű próbateremmel rendelkező helyre, az Újpesti Ifjúsági Sport- és Szabadidőközpontba költözhetett, a plébánia egy korszerű, jól használható, teljes körűen felújított épületet kapott a régi házért és telekért cserébe, ahol az önkormányzat a jövőben a vásárcsarnok végleges elhelyezését tervezi.

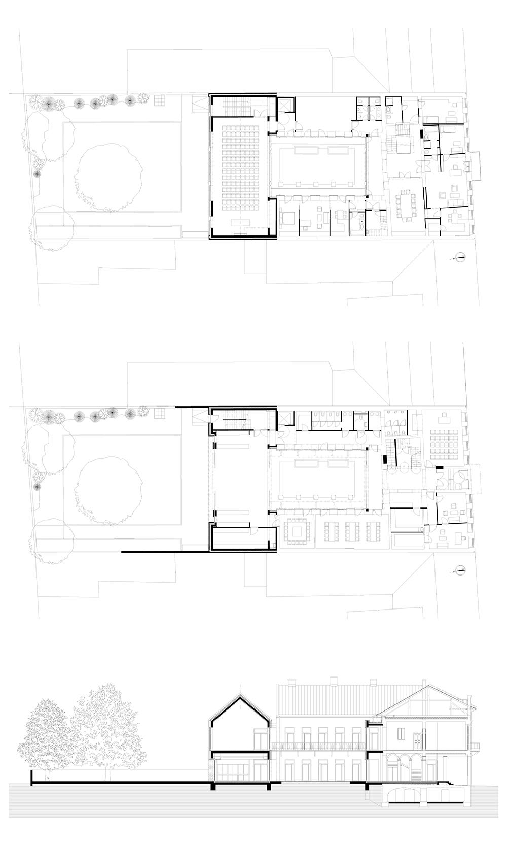
A városközpont-megújítás programjába illeszkedő fejlesztés több meglepetést tartogat. Az eredeti tagozatait és nyílásrendjét visszakapott, szolid eklektikus főhomlokzat fehér tónusa üdítő látvány az északi térfal ütött-kopott történeti házsorában. Az előtérbe lépve szinte azonnal feltárul a ház alapképlete, a középtengely mentén haladva fokozatosan láthatóvá válnak a beépítés rétegei. A funkcionális elrendezés az építészet nyelvén az ide látogatók egyházhoz fűződő kapcsolatát képezi le: ha valaki hivatalos ügyben, vagy valamilyen jeles családi esemény, szertartás megbeszélése céljából érkezik ide, akkor az előtérből nyíló földszinti irodáig, vagy a főlépcsőházon keresztül az emeleti plébánosi fogadótérig kell mennie. A rendszeres alkalmakra járók a földszinti hittanterembe, a könyvtárként is működő kápolnába, a pincei ifjúsági terembe, esetleg hátrébb, az emeleti baba-mama szobába, vagy az ovisok ermébe igyekeznek. A legnagyobb befogadóképességű terek a ház súlypontjában, az új keresztszárnyban találhatók, az emelet elérését külön lépcsőház és lift biztosítja. A közlekedők kisebb-nagyobb teresedéseire építő elrendezés kellő szeparáltságot nyújt az eltérő használatú helyiségek számára. A rendeltetésből adódóan a házban jelentős a közösségi terek aránya, emellett az emeleti plébánosi és gondnoki lakás képviseli a másik fő funkcionális egységet.

Az elnyújtott téglalap alakú telken elhelyezkedő, 1870 tájáról származó, U alakú épület udvari traktusainak kismértékű visszabontá-sával a tervezők egy új, a meglévőtől markánsan különböző keresztszárnyat alakítottak ki. Ez a nyeregtetővel fedett bővítmény rejti két szinten a plébánia sokoldalúan használható közösségi tereit. Az emeleti „nagyterem” metszetében a hagyományos házformát idézi, a letisztult, világos enteriőr kortárs szakrális tér hangulatát sugallja – bár az „igazi” kápolna a földszinti oldalszárnyban található. A homlokzatok méretes megnyitásai révén az új tömeg megjelenése átláthatóvá, rendkívül könnyeddé, szinte hídszerűvé válik – ez a földszinten, az előtérben, vagy az udvaron állva érezhető igazán. Az eltolható üvegfelületek révén könnyen létrejöhet a fizikai kapcsolat az udvarterekkel, kiváló terepet nyújtva szabadtéri rendezvényekhez is.

A bővítmény anyaghasználatában és a tető szerkesztésmódjában egyaránt határozottan elkülönül a történeti épülettől, a halványszürke eternitpala és a fehér szálcement burkolat tónusában viszont kapcsolódik a vakolt felületek árnyalatához. A rendezett, hátsó pihenő-udvar felé néző homlokzat peremeit az oldalszárnyak szélességében nyerstégla burkolatú felületek keretezik, finoman utalva a visszabontott traktusokra. Az emeleti nagyterem játékosnak tűnő, valójában magyaros hímzésminta szerint perforált, kihajtható árnyékoló táblái oldják a szimmetrikus elrendezés szigorúságát, időben folyton változó arculatot adva a homlokzatoknak. Ezek a terek esti használatakor „felizzó” minták jelennek meg az új szárny belső átrium-udvar felé néző oldalán, sőt a meglévő épület középső traktusán is, erősítve a régi és új kapcsolatát.

Megmaradtak az oldalszárnyak konzolos, kovácsoltvas korlátos függőfolyosói, eredeti közlekedő funkciójuk mellett az újonnan létrejött, intim hangulatú belső udvar pihenő-levegőző erkélyeiként is szolgálnak. Az egymással szemben lévő homlokzatok azonos kezelése, a régi és új felületek találkozása sajátos légkört teremt, amelyben az új elemek át- és átszövik a történeti épület megmaradt részeit. Az U alakú ház belső térosztása teljesen átalakult, a múltra csupán az előtér árkádjai és a megőrzött, míves kiképzésű főlépcsőház emlékeztet. Az udvar felé néző nyílások mellvédjeit egységesen elbontották, így a helyiségek bőséges fényhez juthatnak. Ez a szokatlan világosság jellemző a csuklópontokban található, felülről (is) megvilágított, meglévő és új lépcsőházakra egyaránt. A fehér felületek – a tisztaság és a fény ősi egyházi szimbólumán túl – a régi plébániáról származó, értékes szobrok és berendezési tárgyak hátteréül is szolgálnak. Ezek sűrűsége és elhelyezése gondosan megtervezett, így nem válik az épület múzeummá, mégis jelzik a gyökereket, a történeti folytonosságot.

Újabb meglepetés a történeti épületszárny utcai traktusa alatt húzódó pince, amely közösségi és tároló funkciót kapott. A vakolattól megszabadított boltozatok és falak letisztított tégla-kő felületei maradandóságot sugallnak, évszázadok építőmesteri tudásába engednek visszatekintést. A csekély szintsüllyesztéssel kialakított új padlót és lábazatot az oldalszárnyak visszabontásából nyert címeres-monogramos téglák alkotják, erősítve az újjászületett tér homogenitását.

Az épület határozott rendje a zöldfelületek kezelésében is tükröződik: a belső átriumot kőburkolatú sávok tagolják, a hátsó udvart széles „terasz” és geometrikus vonalvezetésű ösvény keretezi. A falikúton és a kocka-ülőkéken egyaránt feltűnik a kereszt szimbóluma, finoman jelezve a hely szellemiségét.
A friss és határozott tervezői szemlélettel végigvitt átalakítás nyomán egy korszerű, sokoldalúan használható közösségi ház, lelki otthon jött létre, amit szemmel láthatóan szeretnek a használók. Kis léptékű, de példamutató beavatkozás: új érték létrehozásával párosítva is meg lehet menteni az épített örökséget.

Építtető: Budapest Főváros IV. kerület, Újpest Önkormányzata
Képviseli: Wintermantel Zsolt
Építész tervező: Berzsák Zoltán (4 plusz Építész Stúdió Kft.)
Építész munkatársak: Konyha Katalin, Stanisewszki Andrea
Kertészet: Open Air Design Kft.
Tervezés éve: 2012-2013
Átadás éve: 2014
Összterület (bruttó): 1240m2
Szöveg: Garai Péter
Építész: Berzsák Zoltán
Fotó: Albertszki Tamás
A cikk nyomtatásban megjelent az OCTOGON magazin 2015/03-as lapszámában.
Ez a cikk nyomtatásban is megjelent az Octogon magazin 119 - 2015/03. lapszámában
A lapszám tartalmából:
Ekler a szőlőhegyen, Soproni Gyógyközpont, Corvin Corner, Bad Girlz, KÉK Építészeti Filmnapok
Megnézem Előfizetek
Ha tetszett a cikk, és szeretnél előfizetni magazinunkra, itt teheted meg.


