A Dezeen Awards 2022 díjra pályázik Rotterdam vízen lebegő irodaháza.
A Nanne de Ru vezetésével működő Powerhouse Company munkáiban a forma és funkció összjátékával „ad értelmet a térnek”. A 2005-ben alapított, rotterdami székhelyű iroda tevékenységi köre gyakorlatilag felöleli az építészeti tervezés teljes spektrumát. Az iroda nemzetközi szakembergárdája elkötelezett híve a fenntartható építészetnek. Portfóliójuk különleges, a maga nemében egyedülálló épülete a Dezeen Awards 2022 díj egyik jelöltje, a Floating Office Rotterdam (FOR).

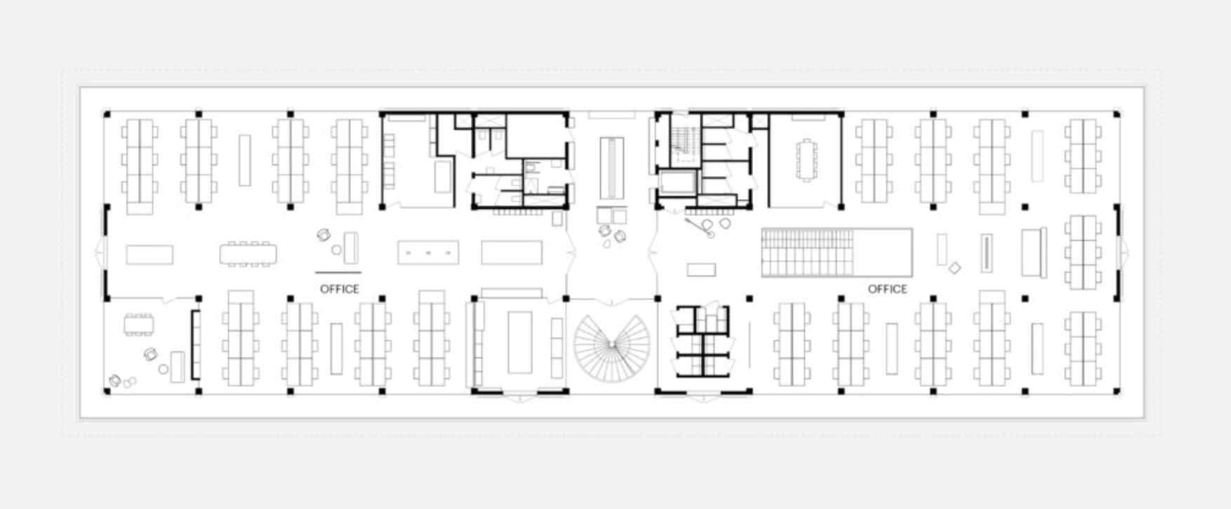
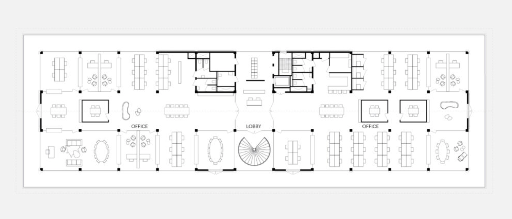
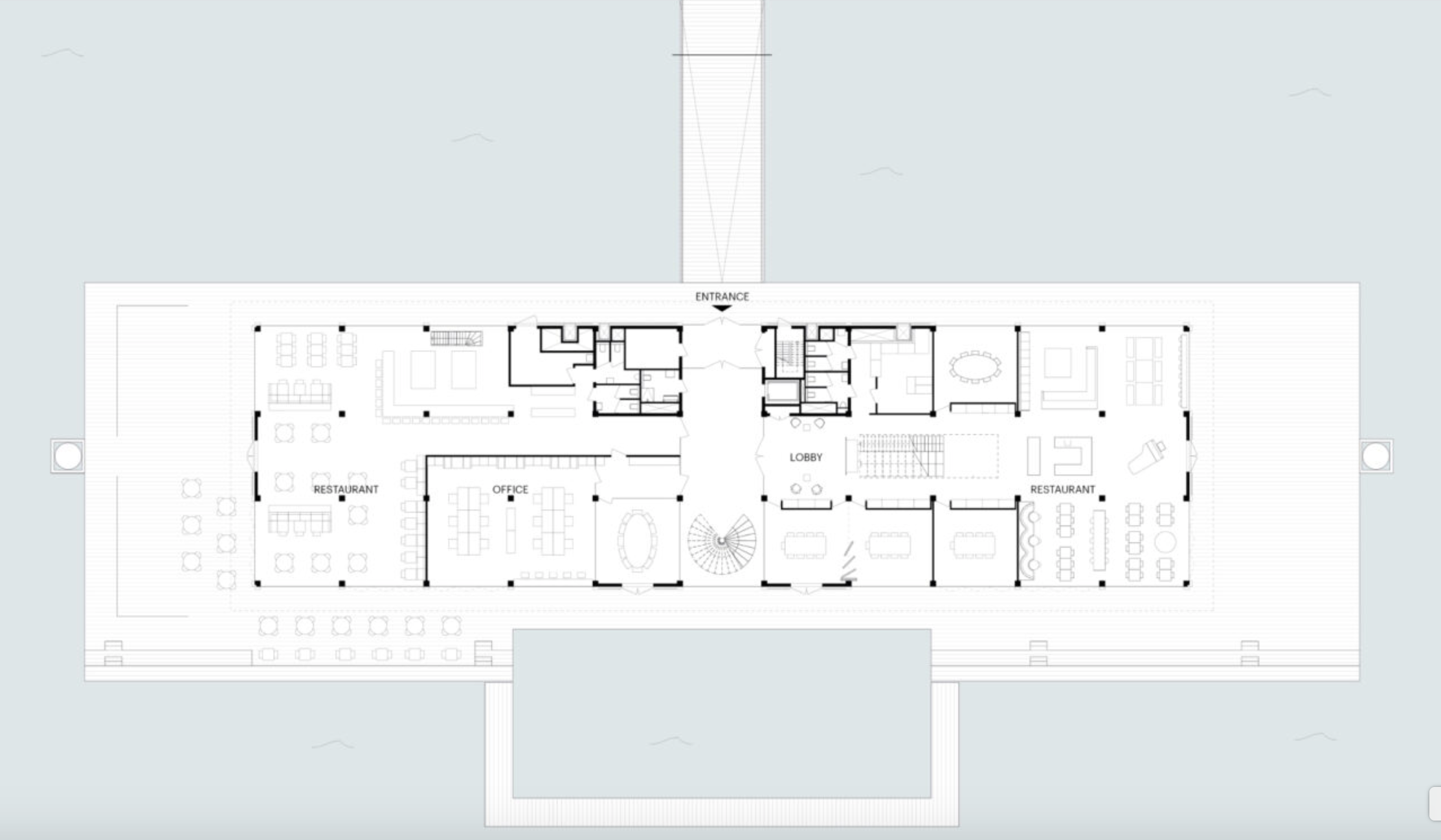
A rotterdami Rijnhaven felújítási programját elindító munka nemcsak a világ legnagyobb és legfenntarthatóbb irodaháza: a terjedelmes lebegő szerkezet egyúttal a városi vízi építészet úttörő darabja is. A Global Centre on Adaptation (GCA – Globális Adaptációs Központ) szervezetnek otthont adó FOR az intézmény szellemiségét is híven képviseli. A létesítmény ellenálló a klímaváltozásból várható terhelésnek, energiahányadosa pozitív, CO2-mérlege negatív. A lebegő épület arra is képes, hogy az éghajlati tényezők miatt esetlegesen megnövekedő vízszinttel párhuzamosan emelkedjen.



A Floating Office Rotterdam a fenntartható építészet megelevenedett víziója. Moduláris faszerkezete vízen úszó alapon nyugszik. Vízhűtő rendszere, napelemei és számos más, csúcstechnológiát alkalmazó megoldása mellett olyan egyszerű praktikákkal operál, mint például a mélyen kilógatott magastető és a kiugró teraszok által biztosított, passzív árnyékolás.



A tervezők különböző, előremutató megoldásainak kombinációja teszi az épületet olyan természetessé. A fa struktúra, a zöldtető, az egyszerű vonalak és a letisztult design barátságos, emberi építészetet eredményez. A saját étteremmel is büszkélkedő FOR tömbje és a frissen létesített uszoda a Rijnhaven új arculatát is megalapozza: a kikötőt az átalakulás további szakaszait követően minden bizonnyal Rotterdam hangulatos, élhető, lakóövezeti városrészeként üdvözölhetjük ismét.
Powerhouse Company | Web | Instagram
Forrás: DeZeen
További képek és rajzok a galériában!
Ha tetszett a cikk, és szeretnél előfizetni magazinunkra, itt teheted meg.


