Erről szóló cikkünk a 200-as, 2025/4-es lapszámunkból közöljük.
A Balaton és környéke immár több mint egy évszázada kedvelt nyaralóhely. Festői szépségét, kellemes klímáját, vizének frissítő hatását évtizedenként változó díszletek között (épületek, vízisport-kellékek és ruhák) élvezik az odalátogatók. A 19-20. század fordulóján a déli vasút kiépülésével először a déli partja népesült be, s épültek meg változatos formavilágú villái, illetve a már Csokonai által is megénekelt tihanyi echo, vagy a Széchenyi, Wesselényi vagy Jókai népszerűsítette füredi lankák voltak az eredői az egyre szélesedő nyaralóövezet kiépülésének. Építészeti arculatát ekkor a historizáló, eklektikus épületek, az udvarház-stílus, illetve a '20-as években néhány modernista villa határozta meg.

A Balaton északi partjának vulkanikus talaján, napsütötte lejtőin évszázadok, sőt a régészeti leletek szerint már Pannónia provinciában is szőlőt termesztettek. A gazdálkodási tevékenység épületállománya erősebben meghatározta a Balaton-felvidék arculatát: hegyoldalba vágott pincéi, parasztházai szervesebben illeszkedtek a tájba, és maradtak fent, mint a déli part hamar eklektikus épületarzenált felvonultató, hol ötletes, hol elképesztő vagy elrémisztő nyaralóházai. A keszthelyi Georgikon alapítása szintén a terület fejlett mezőgazdasági kultúráját erősítette, oktató mintagazdasága nemcsak a gazdálkodást, hanem az épített környezetet is befolyásolta.

A Vergilius költeményében is megénekelt idill felfedezése és nyaralóhellyé alakítása az 1970-es években kezdőik, ekkor elsősorban a fővárosi életből gyakorta politikai okokból kiszakadó vagy kiszakadni vágyó művészértelmiség találja meg a vidék értékeit, de igazi funkcióváltása – paraszti településből üdülőövezet – a 2000-es évek elejétől kezdődik és tart a mai napig is. A festői környezet ihlette élmény, az elvonulásra alkalmas tagolt táj predesztinálja a vidéket a benépesülésre, és sajnos sokszor a kisajátításra. Kisajátítás, mert az egyre nagyobb számban „bebírók” ízlés és/vagy pénz hiányában alaposan beleszóltak, átalakították a házak és települések arculatát, amely a műemlékvédelem összeomlásával, megszűnésével még szomorúbb példákat hoz(ott) elénk. A „népieschség” látszatmegoldásai, túlzó szörnyszülöttjei dúlták fel a hagyományos mintákat, hamis skanzenné változtatva a népi építészetben gazdag és értékes lelőhelyet.

Különleges, igényes és erősen követendő példa az a kővágóörsi 250 éves parasztház, amelyet az A Fiúk Építész Stúdió formált át a „megszüntetve megőrizve” gondolat legnemesebb értelmében lakó-gazdasági funkciójából családi nyaralóvá.
A háznak szerencséje volt, a düledező épületben először Komjáthy Attila építész, a műemlékvédelem kiváló szakértője látta meg a lehetőséget, s mentette meg a teljes pusztulástól. Az ő nyomdokain haladva, munkáját kiteljesítve, 21. századi technológiával és gondolatokkal kiegészítve, „felturbózva” mintaértékű ház született.

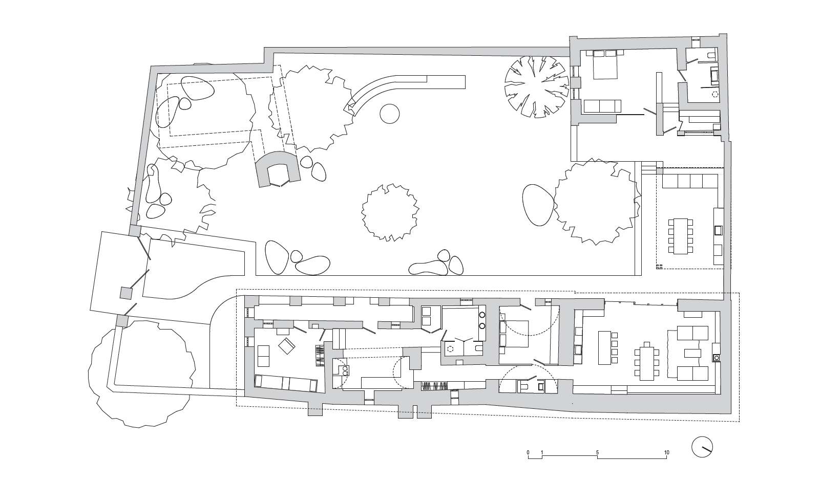
Egy parasztház szervesen fejlődik, alakul, bővül az idők során. Sokasodik a család, gyarapszik az állatállomány, amely újabb és újabb kiegészítéseket, hozzátoldásokat kíván, esetleg melléképületeket eredményez a telken. Építészeti szempontból tehát a változások megmutatása-elfedése egymásra épülő, egymásból következő dialektikus periódusokra tagolható. Ezt vették észre, és építették be tervezési programjukba az építészek, amikor finoman merész megoldásokat javasoltak (majd szerencsére meg is valósítottak) az új tulajdonosnak.
A kiindulópont, a műemléki értéket képviselő 250 éves füstös konyha volt, ami alacsony belmagasságával, eredeti, természetes állagát visszakapó gerendáival az ökonomikus falusi építészet jellegzetes példája. Mára azonban magasabbak és kényelmesebbek lettünk, ezért konyha funkciója nem volt tartható tovább. Tulajdonképpen a tradicionális értékek megőrzése és megmutatása indította be az építészek fantáziáját, hogy minimális beavatkozásokkal hogyan lehet ma is működő épületet alkotni a folyamatosan változó parasztházból, hogyan lehet a függelékeket átalakítani és egységesíteni úgy, hogy ne hamis múltat eredményezzen.

A lényeg a „változtatás” fogalom mély és helyes értelmezésén alapul, amely amúgy is szerves része volt a parasztházaknak. Átgondoltan bátor gesztussal kívülről egységessé alakították az évtizedeken, sőt évszázadokon keresztül folyamatosan bővült házat, s ezzel lehetőség nyílt belső helyiségei funkcióinak radikális megváltoztatására úgy, hogy az építészeti szerkezet értékei megőrződjenek. Két remek ötletre alapul: a konyha-étkező áthelyezése és a belső közlekedési út racionális kialakítása. Egyszerre radikális, de szerves megoldás, átszervezés.
A műemléki szempontból értékes füstös konyhából a főzési-étkezési funkció kikerült, és a korábban talán raktárnak vagy állatok tartására használt, de már az első átalakításkor önálló lakrésszé alakított, nem műemléki értékű tágas helyiségbe került, kiegészülve nappali és kényelmes étkező funkcióval, hatalmas, látványos fényáradatot biztosító üvegfelülettel. A hálószoba, a gyerekszoba, a fürdő pedig átkerült a ház elülső szakaszába, megfordítva tulajdonképpen a parasztház belső szerkezetét.

A változtatást pedig elfedi a külső egységesítés: a nádfedés kiterjesztése, a nyílászárók egységes szín- és stíluskombinációja. A parasztházak nyílásai az időjárási viszonyokhoz alkalmazkodva kicsik, zártak voltak, addig a most kinyitott felület egyáltalán nem bontja meg ezt az egységet, mivel áttetsző, légies, hatalmas üvegfelülete tolóajtós megoldásával tulajdonképpen az egykori, talán magtár, esetleg istálló funkció bejáratának korszerű átfogalmazása. Az egységes vakolás, a tornác megtartása horizontálisan egybefogja, harmonikusan ritmizálja a hosszan elnyúló udvari homlokzatot. A ház helyiségei az átalakítással kényelmessé, otthonossá váltak. A parasztház féltett értéke és egykori építészeti magja, a füstös konyha egyfajta „múzeummá” vált, amely szerkezeti elemeit a maguk szépségében, hagyományos megoldásainak feltárásban mutatja meg, jelenlegi pihenő funkciója igazi lehetőséget rejt a szemlélődésre.

A belső közlekedő igazán kényelmes kialakításában az építészek szerették volna a szintkülönbséget megszüntetni, amely azonban csak részben sikerült, mivel az épületet a vidék jellegzetességére, egy hatalmas szikla így-úgy legyalult tömbjének felszínére emelték. Részbeni kiegyenlítése megmutatja a falusi építészet történetét, természet és ember együttműködését, az adottságok ötletes felhasználását. A 21. század a korszerű gépészet telepítésével jelenik meg a házban, de rejtve marad, csak a kényelmet szolgálja. Nem látványában, hanem komfortjában „high-tech” ház született Kővágóörsön. A hűtő-fűtő berendezések, kábelkötegek a padlástérbe kerültek, láthatatlanul szolgálva a 21. század nyaralójának igényeit.
A remek építészeti megoldásokhoz nemcsak a rendkívül kreatív építészek járultak hozzá, hanem az igényes, fogékony megrendelő is. A 21. századi technológia telepítése mellett számos aprólékos kézműves megoldás, finom belsőépítészet és tárgykultúra adja vissza a parasztház egykori hangulatát. A járda faragott tégla használata, a visszafogott, természetes színű és anyagú burkolatok, az egyedi, ízléses bútorok a visszafogottságról, a tradíció valódi megértéséről, értékeinek megmutatásáról tanúskodnak. Az idilli hangulathoz hozzájárul még a kert visszafogott harmóniája is.

Igazi bukolikus ház született, amely a falut, a természeti idillt kedvelő, elvágyódó városi ember már az ókori kultúrában és művészetben megfogalmazott igényét és igényességét, újragondolt, természethez és építészeti tradícióhoz való harmonikus viszonyát fejezi ki.
Tervezés éve: 2023
Kivitelezés: 2024
Hasznos alapterület: 246 m2
Szintterület: 325 m2
Felelős építész tervező: Varga N. Dániel és Kabdebó Zoltán | A Fiúk Építész Stúdió
Építész munkatársak: Ambrusz Vivien Emese, Székely Lajos, Nagy Olivér
Belsőépítészet: Bogár Róbert és Szombathy Lívia
Kert- és tájépítészet: Fehér Gábor és Fehér-Kvasz Rita
Kivitelező:
Laterex Építő Zrt.
Munkatársak: Baranyai Zoltán, Bodó Péter, Verbőczi Szabolcs, Lukács Gyula, Mózer Norbert, Szigeti Milán, Rideg Panna
Ha tetszett a cikk, és szeretnél előfizetni magazinunkra, itt teheted meg.


