Cikkünk az Octogon 202-es, 2025/6-os lapszámából közöljük.
Kétszáz éves jubileumát ünnepli idén a Magyar Tudományos Akadémia: 1825. november 3-án, a pozsonyi országgyűlésen ajánlotta fel gróf Széchenyi István birtokai egy évi jövedelmét egy magyar tudós társaság alapítására. Széchenyi saját bevallása szerint ekkor 24 szónál nem tudott többet magyarul, de rendkívüli fontosságúnak tartotta a magyar nyelv, tudomány és művészetek intézményesített ápolását. Negyven évvel később, 1865‑ben megépült a bécsi Friedrich August Stüler építész tervei szerint az MTA székháza. A pompás neoreneszánsz palota főhomlokzata ma a kezdeményezőről elnevezett térre néz, maga az épület pedig a magyar historizáló építészet egyik kezdeti ikonja lett.

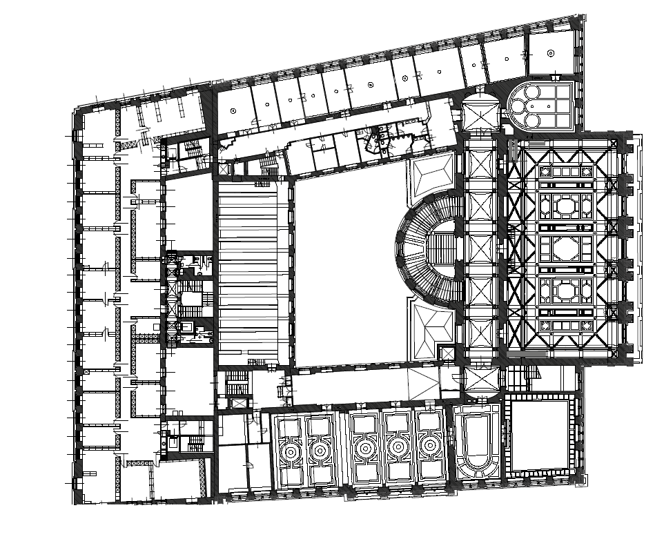
A tudományt immár 160 éve szolgáló MTA székház felújítása most először történik átfogó koncepció alapján. Korábban a háborús sérülések, tűzvész, helyhiány, technikai modernizálás, vagy akár hatalmi-ideológiai szempontok indokolták a kisebb-nagyobb beavatkozásokat; most azonban az MTA tudatosan fogalmazta meg, milyen elvek mentén tekint a jövőbe, és ehhez rendelte el a székház, valamint a szorosan hozzáépült, jó ideje könyvtárként működő, Ybl Miklós tervezte egykori akadémiai bérház együttesének megújítását.

A koncepciót a „kultusz és nyitottság” hívószavakkal foglalták össze: a tudományos munka tisztelete, a tudós közélet szolgálata és nyitottság a jövő kihívásai felé. Az átalakítás tervezőitől ennek alapján a történeti értékek megőrzését, ugyanakkor a terek minél könnyebb átjárhatóságát, a technikai berendezések korszerűsítését, a funkcionális rend zónákba csoportosítását, valamint a műemléki értékű, és mai tereket harmonikusan összefogó belsőépítészeti újrafogalmazást kívánták.

A rendkívül komplex feladat összefogását a KÖZTI építészei, Kelemen Bálint és Makay András készítették el. Novemberre az I. ütem munkálatai fejeződnek be, amelyben sor került az emblematikus jelentőségű Díszterem restaurálására, gépészeti terek, raktárak kialakítására, a tetőrendszer újragondolására, valamint a homlokzati nyílászárók cseréjére és a megújult terekhez kapcsolódó gépészeti berendezések korszerűsítésére. Hamarosan lezárul a Régi Képtár történeti teremsorának megújítása is, valamint ugyanazon a szinten az Akadémia gyűjteményének gyarapodásával szükségszerűvé válik az Új Képtár kialakítása. A II. ütemben a teljes homlokzat felújítása, a Könyvtár átalakítása, a két tömb közötti térkapcsolatok és közlekedők újradefiniálása kap helyet. A felújítás tehát belülről halad kifelé, a „szívtől” a „bőrig”; egyelőre azok a részek készültek el, amelyek műszaki szempontból és a tudós élet számára is elsődlegesek, miközben a városlakók csak állványokat, építkezés-nyomokat látnak.

Mi is történt az elmúlt két évben? A pesti Belváros igen forgalmas pontján, egy kiemelt, ráadásul sok szempontból is a figyelem középpontjában álló épületnél –, amely átlagosan évi 300 eseménynek ad helyet – úgy kellett nekifogni a tervezésnek, hogy a programokat ne zavarják meg a kutatások, falroncsolások, műszaki vizsgálatok, állapotfelmérések, majd a konkrét építkezések és restaurálási munkák. (A II. ütemben pedig, amelyben a tértisztítás, a reprezentatív terek nyilvánosság szerinti csoportosítása és bizonyos funkciók áthelyezése is szerepel, ez várhatóan még nehezebb lesz.) Mérhetetlen alázat, odafigyelés és kreativitás kell az itt végigvitt folyamatokhoz.
Az elöregedett szerkezetek és beázásra hajlamos tetőrészek cseréje, kiigazítása ugyanis építészeti szempontból nem túl látványos, de annál fontosabb és érzékenyebb feladatok egy ilyen korú épület esetében. A reprezentatív terek megtisztítása, a hulladékterek leleményes kihasználása mind-mind csak úgy kivihető, ha a teljes komplexumra érvényes elvekhez illeszkedik. Nem beszélve a szerkezeti kiigazításokról: a felmérések alapján volt olyan falrész, amelyre a korábbi átalakítások következtében 200%-os terhelés jutott.

Amit a mai tervező tehet itt, az az együttműködés és a megértés fogalmaival ragadható meg. A megörökölt, megtartandó részletek, és a megörökölt, de eltüntetendő hibák bonyolult láncolatában kell rendet teremteni. A Lotz Károly-szekkókkal, Schickedanz Albert-féle díszítőfestésekkel, aranyozott kariatidákkal, ablakkeretekkel, oszlopokkal együtt kivételes összművészeti alkotásként megnyilvánuló Díszterem egyszerre korhű és mai megfogalmazása olyan aprólékos, de jelentős döntéseket vetett fel, mint például a fűtést és hűtést ellátó, nagyméretű fancoilok eltávolítása az ablakok alatti részből, az ötvenes években felszerelt díszcsillárok leszerelése, vagy a túl alacsony mellvéddel ellátott karzat funkciójának meghatározása.

A Díszterem megújítását tulajdonképpen a gépészeti és elektromos rendszerek korszerűsítése indokolta, de lehetőség nyílt a teljes rekonstrukcióra, a padló átgondolására és új világítási rendszer kialakítására is. A légtechnikai rendszerhez felhasználták a meglévő, eredeti kürtőket – a hajdani és a mai építéstechnika itt szépen egymásra talált. Az újonnan beépített tölgyfa padlóba finom réz padlórács-sávok kerültek, ezek rejtik a hőleadó berendezést és az elektromos végpontokat.

Különösen érzékeny téma lett a tűzvédelem, a freskókban gazdag teremben ugyanis nem lehetett vízzel oltó rendszert alkalmazni, cserébe a bútorokat és függönyöket lángállóvá tették. A történeti térben a bútorozás abszolút kortárs: a modul elemekből többféle módon összeállítható pódium, mellvéd, elnöki pulpitus, szónoki emelvény és 4 méter magas vetítőfelület változatos programtípusokra alkalmas, egyedi megjelenésű együttes lett.
A Díszterem rekonstrukciójával párhuzamosan, az I. ütem mostani szakaszában a tetőzet is megújult. A két épületet összefogó tetőzetben elbontották az utólagos felépítményeket, és bravúrosan elrejtették az új gépészeti egységeket a tetők sarkaiban és az egykori felülvilágítók helyén kialakított süllyesztékekben. Az azbesztes műpala helyett pedig visszaadták a tető eredeti, vörös kőpala anyagát.

Az átalakítás nyilvánvaló eredményei mellett, a projekt különleges hozadékkal is járt: a tervezők legelső lépésként elkészítették a teljes épületegyüttes 3D pontfelhő szkennelését. Erre a megmaradó és új szerkezetek pontos csatlakoztatása miatt is szükség volt, de egyben most először minden részletre kiterjedő képet kaptak a palota és a hozzá kapcsolódó könyvtár épületéről is. Ennek minden bizonnyal, a remélhetőleg hamarosan kezdődő II. ütemben is nagy hasznát fogják venni.
Tervezés éve: 2021. április – 2023. március
Kivitelezés éve: 2023. augusztus – 2025. szeptember
Első ütem átalakítása utáni nettó alapterület: 19 346,86 m2
Az átalakítással érintett területek: 3434,21 m2
Tervezőiroda: KÖZTI ZRT.
Építészet: Kelemen Bálint, Makay András, Peschka Alfréd, Pottyondy Péter, Patak Gergely, Virág-Nagy Diána, Weinhandl Noémi Kinga, Bognár Melinda
Műszaki koordinátor: Molnár Tibor József
Szakági koordinátorok (KÖZTI Zrt.): Máramarosi András (erősáram), Ritzl András (gyengeáram), Szakál Szilárd (épületgépészet)
Tartószerkezetek: Váczi Péter, Nagy Anna, Mihucz Levente
Tartószerkezeti szakvélemények: Baratta Egon, Dr. Dunai László, Dr. Dulácska Endre
Épületszerkezetek: Becker Gábor, Birghoffer Péter
Belsőépítészet: M. Gillemot Éva (DMSC Kft.)
Restaurátorok: Tóth Alexandra, Seres András, Osgyányi Vilmos, Kóbor Zsolt, Zágoni Péter, Gyarmati András, Dobai Csaba, Verebes Dóra
2017-es építéstörténeti tudományos dokumentáció: Dávid Ferenc, Bicskei Éva, Farkabyné Deklava Lilla, Hámori Péter, Lővei Pál, Mikó Árpád, Papp Gábor, Sisa József, Ugry Bálint
Építéstörténeti tudományos dokumentáció és értékleltár aktualizálása: Mentényi Klára, Mikó Árpád, Lővei Pál (MTA BTK MI)
Faanyagvédelem: Dr. Király Béla
Tájépítészet: Balogh Péter István†, Major József (s73 Kft.)
3D épületscennelés: Bátyi Tamás
Ha tetszett a cikk, és szeretnél előfizetni magazinunkra, itt teheted meg.


