Erről szóló cikkünk a 200-as, 2025/4-es lapszámunkból közöljük.
Mindössze egyetlen utcára a Balaton-parttól épült fel ez a könnyűszerkezetes, egész évben használható nyaralóépület. Eltolt félnyeregtetős felépítménye, vörösfenyő-lécezéssel burkolt homlokzata új, üde színt adott a környékhez.

Vízkelety Rita, a 2016-ban Lengyel Mártonnal közösen létrehozott URBA építészeti és belsőépítészeti stúdió tervezője a 2020-as évek elején kezdett a minimális lakótér és a típusház aktuális kérdéseivel foglalkozni. Rajzi kísérletezései, építészi töprengései közben mindvégig könnyűszerkezetes épületekben gondolkozott. „Ha jól emlékszem, 5x5-ös alapterületű kubosokat pakolgattam a legkülönfélébb kompozíciókba, és azt vizsgáltam, hogyan működnek. Ebből született egy konkrét tervezői anyag, és keresni kezdtem olyan embereket, megrendelőket, akiket ez a világ érdekelhet.

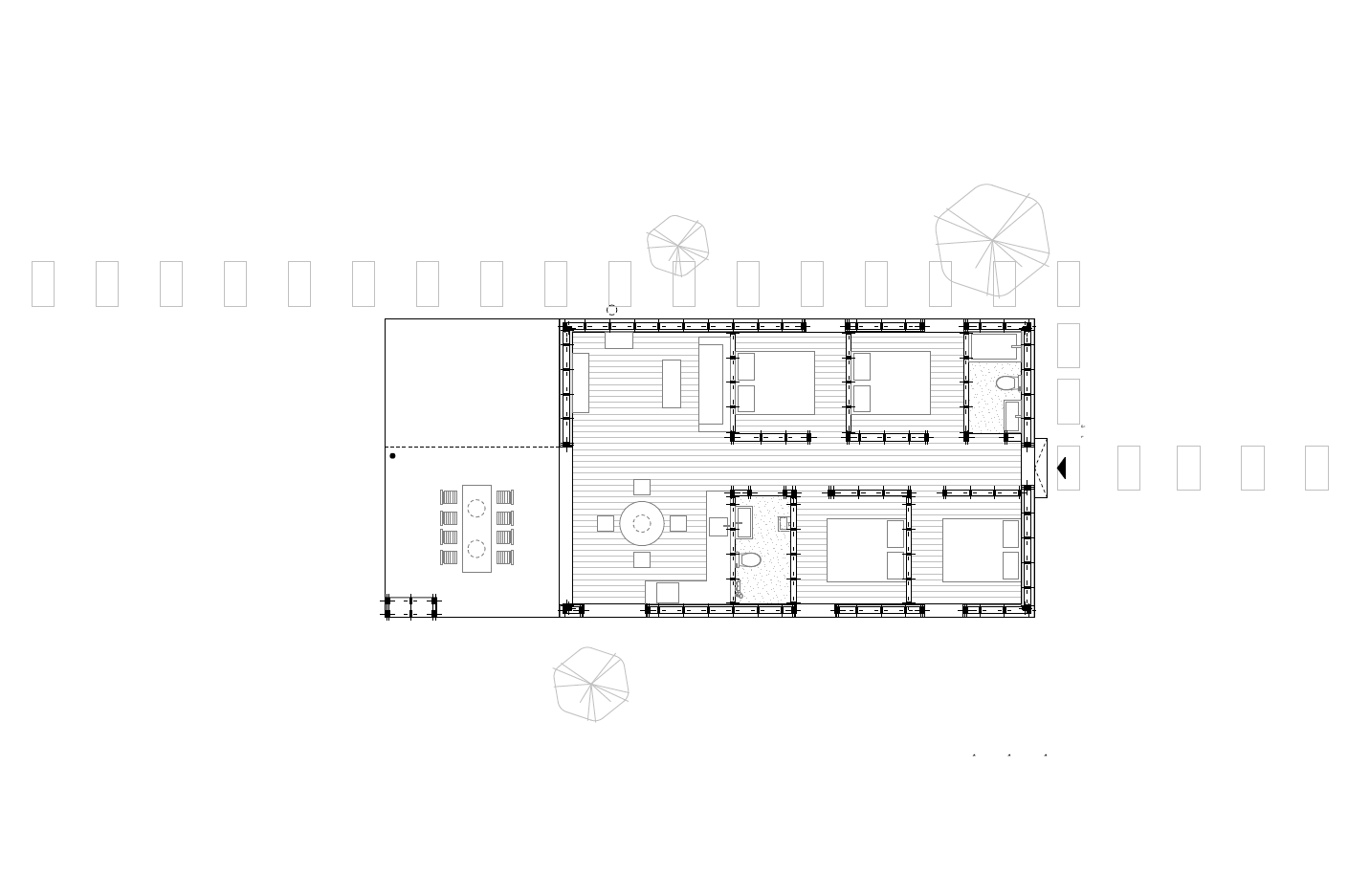
Így találkoztam azzal a megrendelőmmel, akinek végül ezt a házat megterveztük és kiviteleztettük” – meséli a találkozásról Rita. Végül a megbízás nem kubusos, nem típusházat, de könnyűszerkezetes rendszerű épületet eredményezett. Olyat, amiben sikerült racionalizálni a privát és a közösségi terek arányát – lásd az alaprajzot, 90 négyzetméteren négy hálószobát, két fürdőt és egy nyitott konyhát-nappalit sikerült elhelyezni. Vagy ahogy Rita fogalmazta meg: „ez a terv illeszkedett ahhoz a tervezői elképzelésemhez, hogy találjuk meg a minimálisan szükséges megoldást.”

Eredetileg nagyszülőktől örökölt kicsi hétvégi faház állt a kertben, azt elbontották, és mert nagy a családi jövés-menés a megbízóknál, a vágyott nyaraló száz négyzetméter körüli alapterülete már a startnál kiindulási alap volt. Ráadásul az élet a legnagyobb rendező: ahogy formálódott ház, úgy nőtt a család, mire elkészült, lett három gyerek. Talán emlékeznek az olvasók, hogy a könnyűszerkezetes technológia/technológiák óriási felfutását tapasztalhattuk, nagyjából a 2010-es évek második felétől. E ház esetében ez a klasszikus, amerikai pallóvázas technológiát jelenti, ami sok szempontból kifejezetten passzol is ide, ilyenek: a szabad formálhatóság, a gyors építés, az anyagtakarékosság és hazai anyagok használata.

A végeredményt tekintve pedig jó ár-érték arányú, a természeti környezettel anyagában harmonizáló, kiterjedésére és sziluettjére pillantva pedig a balatoni kultúrtájhoz illeszkedő nyaraló a Mikes 29. „Anyagtakarékos, kevés hulladék keletkezésével járó módszer ez, ezért is szeretem – fogalmazza meg a vezető tervező. – A kivitelező rengeteget segített nekem, például a csomóponti részletek megoldásában. Sok olyan dolog megvalósult, ami mondjuk egy sokkal magasabb költségvetésű épületnél nem tud megvalósulni, de az építő nagyon konstruktív volt, szerette ezt a projektet, kitalálta, hogyan oldható meg ez vagy az a bonyolultabb helyzet – mondjuk a szerkezet osztása, vagy hogy a szerkezethez hogyan igazítsuk a nyílászárókat stb. –, mindezt költségkereten belül.”

A két modulból álló, eltolt félnyeregtetőkkel fedett épület oldott térkapcsolatokat eredményezett. Az eltolt tetőkialakítással bevilágítók sora jöhetett létre – finom az a ritmusváltás, ahogy a külsőn, a bevilágítók előtt 45 fokban lamellaszerűen fel-/megnyílik a zárt, sűrű vörösfenyő-lécezés. A megrendelő nyitott volt a nem szokványos tömb- és térkialakításokra, engedett a tervezői elképzeléseknek, sőt ahogy Ritától megtudom, maga is karakteres elemmel érkezett: „már az elején azt kérte tőlem, hogy ez legyen AZ a piros ajtós ház!” Ez a legerősebb jel a házon, ami aztán párt követelt magának, így kapott a piros ajtós ház piros kéményt az oldalhomlokzatra.

„Anyaghasználatában, négyzetméterei tekintetében, megjelenésében, funkciójában is szerettem volna egy olyan épületet létrehozni, ami kielégíti a minimális szükségleteket, és illeszkedik a helyszínhez. De nem akartam imitálni valamilyen klasszikusnak mondott balatoni nyaralóépítészetet, vagy reflektálni rá. Egy könnyed, kevés, de természetes anyagból készült, letisztult és koherens házat szerettem volna megvalósítani. Ami nincs túlgondolva.” Ahol tehát a tervezői szándék, a keretezés hozza elő az illeszkedést.

Tudjuk, látjuk, hogy balatoni, Balaton környéki építtetői betegség a túlépítés. Legyen nagy, lehetőleg emeletes vagy hatalmas teraszablakokkal osztott, anyag- és ötletparádés. De hiába a sokaság, az egyéniség ritka. Ezért, amikor olyan, kevésbé bombasztikus drámai eszközökkel elmesélt házat pillantunk meg, mint amilyen a Mikes 29, akkor a vörösfenyőből készült burkolat – ami már most szépen érik az idővel – egy színhangsúly (piros), az aszimmetria erős jelenlétet, valódi építészeti minőséget teremt.
Tervezés éve: 2023
Átadás éve: 2024
Vezető építész tervező: Vízkelety Rita (URBA)
Építész munkatárs: Lengyel Márton (URBA)
Gépész: Pál József
Statikus: Pásztory Péter
Kivitelező: Prókai Gábor
Ha tetszett a cikk, és szeretnél előfizetni magazinunkra, itt teheted meg.


