Cikkünk a 83-as, 2010/10-es lapszámunkból közöljük.
Hogy elég-e egy város kulturális alapú fejlesztéséhez, új helyi azonosságérzet és új közösségi tudat kialakításához jó néhány köztér csinos leburkolása, még nem pontosan látszik. A pécsi EKF csúcsprojektjei csak komoly csúszással, az évad vége felé készülnek, készülgetnek el. A jelentős esélyt, amely Pécs, de az ország számára is Európa mentális és kulturális térképre kerülését volt hivatott beváltani, talán elszalasztottuk. Talán nem. Van, aki úgy látja: az EKF katasztrófák sorozata, és van, aki úgy, hogy ahhoz képest milyen rossz csillagzat alatt született, egészen komoly értékeket is sikerült megteremtenie.
Minden bizonnyal az a néhány igen jelentős nagyberuházás egyértelmű érték, amely nyilvánvalóan átrendezi Pécs eddigi súlypontjait. E sorban elsőként a Tudásközpont épülete készült el. Meglepő, hogy míg a korábbi kulturális fővárosok (Glasgow, Graz, Genova, Lyon, stb.) elsősorban építészeti csúcsprojektjeikkel, azok kommunikációjával üzentek az eseménysorozat minőségéről és szándékairól, a nemrégiben átadott új pécsi épület kommunikációja a nullával egyenlő.

Hogy a pécsiek miért szégyenlősek, teljesen érthetetlen, hiszen ez a ház, túl azon, hogy milyen tervezői és kivitelezési színvonalon készült el, szemben a központi helyszínnek szánt Zsolnay-negyeddel legalább még az esemény ideje alatt birtokba vehető. És ez az, amely évtizedek múlva is emlékeztetni fog arra, hogy volt itt egyszer valami EKF. S amely legalább a kulturális alapú városfejlesztés lényegét szolgálva, még alkalmat is teremthet új tradíciók megalapozásához.
Az EKF és a város vezetése e mostani házzal, majd a nemsoká elkészülő koncertteremmel, az ugyanezen a városi főúton kissé távolabb elhelyezkedő Zsolnay-negyeddel a következő évszázadra új fejlődési irányt jelölt ki Pécs számára. Nem logikátlan elgondolás, bár következetes végrehajtásához el kell, legalábbis el kellene tüntetni a környékről egy sor olyan objektumot és funkciót (benzinkutak, gyorséttermek), amelyek miatt a város ezen szakasza egy amerikai településre emlékeztet, ahol rendre a legnagyszerűbb dolgok ütköznek a legköznapibbakkal. Így aztán Balázs Mihály életművének legújabb állomása, a Tudásközpont is egy körforgalom meg egy parkoló közé ékelve áll.

Aki kicsit is ismeri Balázs Mihály életművét, tudja, milyen összefogottan, feszültséggel teli fegyelmezett geometriák alkalmazásával tervez. Sokszor használ tégla felületeket, élve azok tűzégette melegségével, a felület érzéki és emberi hatásaival. Aki nagyon jól ismeri, akár másolhatná is személyes építészeti szókészletet. Ám, ha legújabb házát látogatja, bizony az ellopott stíluselemekkel semmire se menne. Balázs ebben a házban nem finomra csiszolt modorával, hanem intelligenciájával tüntet. A hely, a feladat szabta követelmények, a lépték vezették gondolatait. Ezért aztán kívülről nagyon nem „balázsmihályos”, ugyanakkor nagyon jó házat tervezett.
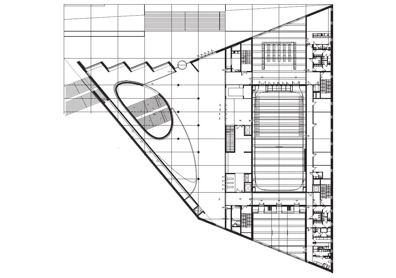
Különös feladat könyvtárat tervezni, ma. A plázák százezrével ontják az új tabloid számítógépeket. Ha akarok, Dantét olvasok a világhálón, érintőképernyőmön Mátyás Corvináinak egyikét lapozgatom, és Shakespeare LXXV. szonettje sem más már ebben a térben, mint bit, adat, elektronikus jel csupán. Könyvtárat most? Ekkorát? Ki fog odajárni? – kérdezném most kétkedőn, ha nem tudnám, hogy a könyvtárak látogatottsága az utóbbi években nőtt Magyarországon. Van tehát igény erre. És Balázs Mihály is megtalálta azokat a téri formációkat, amelyek jól szolgálják a könyvtár igényét.

Természetesen könyvtárat tervezett, a kialakult üvegbőrbe bújtatott tömeg és belső közösségi terei mégis többről szólnak. Sokkal többről! Ő a könyvhasználat funkciójáét kiszolgálja, de térképzése vezéreszméje mégis csak a közösség gondolata volt. Arra, hogy a ház, ha egyszer akár kikerülne belőle a könyvtár, olyan térszervező elvek szerint működjék, amely egy közösség megteremtését teszi lehetővé. Balázs csodát tett úgy, hogy semmi csodát nem talált ki. A racionálist házasította az irracionálissal.
A ház külső józan észelvű megjelenése belül egy logikai úton, strukturált érveléssel nem magyarázható érzelmi elemmel él együtt. Középen ugyanis egy különös formájú, minden épületszintet áttörő, s ezért elsődleges látványmotívumként működő hófehér kúpot helyezett el. Mint Jean Nouvel hatalmas üvegtölcsére a berlini Lafayette áruházban, itt is ez a méltóságteljesen terebélyesedő barátságos tömeg szervezi az életet maga körül. S nem véletlen, hogy a ház is e motívumról kapta a nevét: Kaptár. A földszinten ünnepélyes lépcsőház mozdul benne, s indul el fölfelé úgy, hogy a kaptár belső terét Nagy Márta hatvanezer darab szabályos hegyesszögű háromszögből komponált csodálatos majolika kupoladísze borítja.

Lechner óta ilyen nagy felületen nemes épületkerámiát nem igen használtak Magyarországon. S a kaptár belső felületének lenyűgöző ereje rávilágít arra is, hogy a magyar építészet milyen pazarló fantáziátlansággal mond le a magyar kultúra mélyrétegében élő tradíció korszerű alkalmazásáról. A kortárs holland és spanyol építészet – a helyi delfti, valenciai, stb – fajansz hagyományokra építve minden historizálástól mentesen, a legmaibb szemlélettel tartják életben épületkerámia kultúrájukat. S ha van valami, amiről a pécsi EKF-nek járulékosan szólnia kellene, hát éppen a helyi tradíció modern újraértelmezése. E tekintetben Balázs Mihály épülete példát mutat.
Tervező: Török és Balázs Építészeti Műterem – Balázs Mihály
Építész munkatársak: Tatár Balázs, Tarnóczky Tamás
Tervezés éve: 2008
Átadás: 2010
Alapterület: 13 000 m²
Ha tetszett a cikk, és szeretnél előfizetni magazinunkra, itt teheted meg.



