Cikkünk a 204-es, 2025/8-as lapszámunkból közöljük.
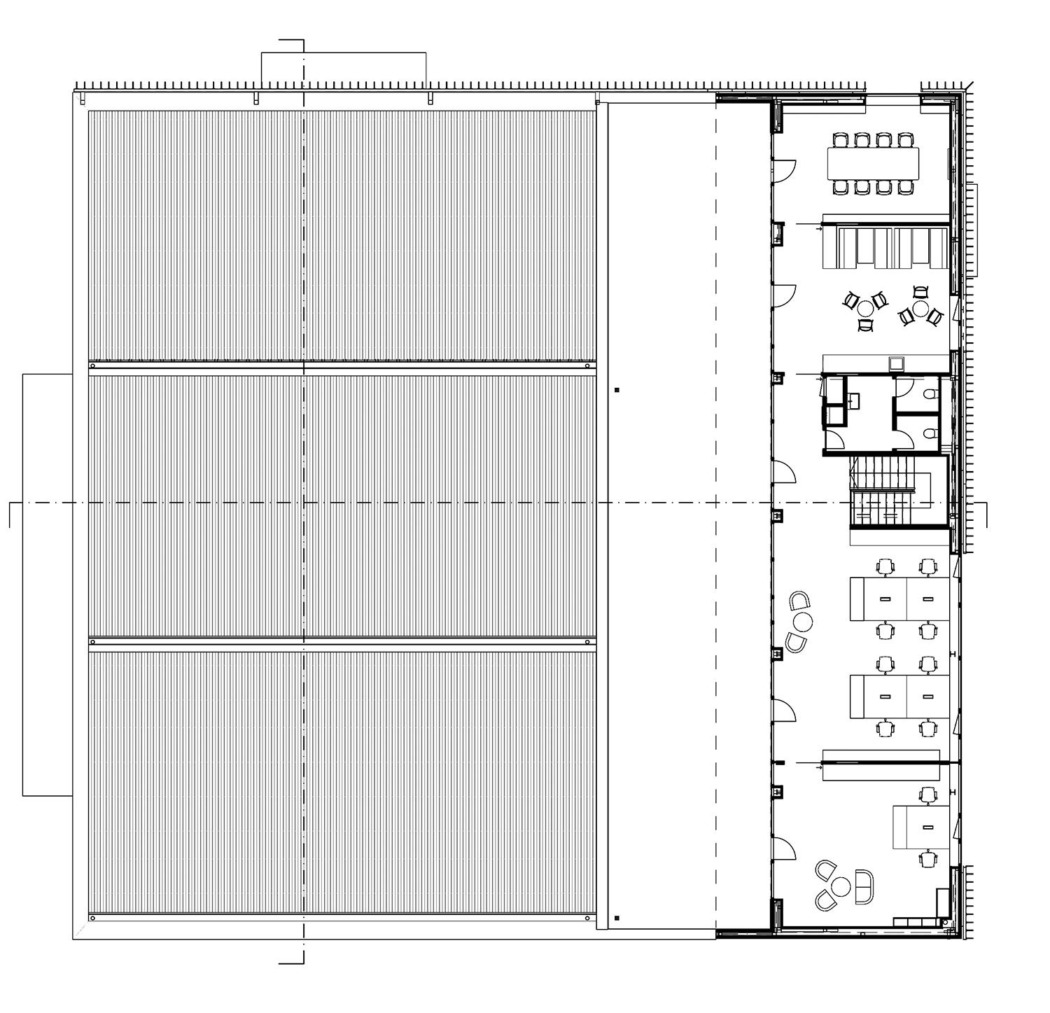
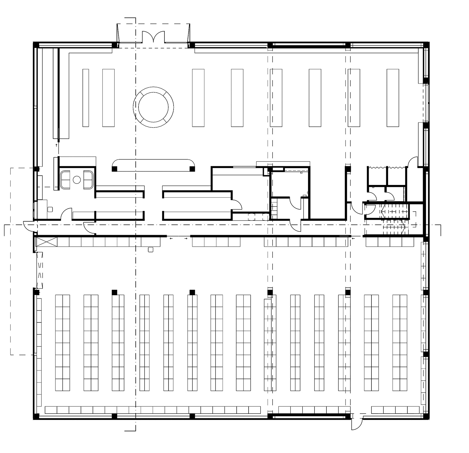
Óbuda vegyes karakterű – lakótelepek az egyik, ipari épületek a másik oldalról – területének határán, egy saroktelken épült meg a Hockeylab háromfunkciós III. kerületi egysége. Az utcafronti üzlet mögött található a raktár, az emeletre pedig irodákat tervezett a Minusplus csapata. A hagyományos, téglány alaprajzú, szépen becsomagolt doboz-forma a rendkívül figyelemfelkeltő, egyedi karakterét egy élénksárga, a korcsolya pengéjét idéző lamellasornak köszönheti.

A lamellasor frappáns válasz a helyi szabályozási előírásra, mely szerint az utcafronti homlokzatoknak – belső tartalomtól függetlenül – azonos magasságot kell elérniük. Végeredményben ez a kötöttség végül csak hasznára vált a tervezési folyamatnak, s lehetőséget adott a tervezőknek, hogy ez az összefüggő lamellasor jelölje ki a felerészben kétszintes épület közterületek – Bojtár és utca és Huszti út – felé néző homlokzatait. A vizuális játék nem elhanyagolható további előnye, hogy az épület így jóval magasabbnak mutatja magát a valóságosnál.

A lamellák mögötti emeleti irodák és terasz így a közlekedési csomóponttól elfüggönyözve, az utcasarokkal átellenes Hármashatár-hegy felé néznek. Az épület középszürke testéből nem csupán az élénksárga lamellasor ragyog ki, ugyanilyen optikai hatással bír a Bojtár utcai bejárat és a Huszti úti hatalmas ablak körbedobozolásának belső felületein megjelenő kék árnyalat is. A tervezők az épületen és az eladótérben megjelenő színeket a Hockeylab vezető márkája, a Bauer technikai szinteket jelölő színkészletéből merítették.

Az emeleti irodaterek berendezése józan átmenet a kényelem és a funkcionalitás közti amúgy elég széles sávon. A sárga és a szürke szelídebb változatai – mustár- és egér- – dominálnak. Az ipari jelleget az egyenfeketében tartott látszó gépészet vállalja magára. A Minusplus e munkája újabb bizonyítéka az iroda – típusfüggetlen – karakteres, bátor és eredeti látásmódjára, megoldásaira.
Építészet: Minusplus Generáltervező Kft.
Felelős tervező: Rabb Donát
Vezető tervezők: Dr. Alexa Zsolt, Rabb Donát, Dr. Schreck Ákos
Projektvezető építész: Szarvas Richárd Zoltán
Építész munkatárs: Lázár Dorka, Kis Balázs
Világítás: Török Ákos (Be Light Kft.)
Beruházó: Marczi Skate KFT.
További képek és rajzok a cikk végén található galériában!
Ha tetszett a cikk, és szeretnél előfizetni magazinunkra, itt teheted meg.


