A ház homlokzatát sötét tónusú holland tégla borítja, amelyet a különböző áttörések oldanak. Erről szóló cikkünket a 197-es, 2025/1-es lapszámunkból közöljük.
A művészetek alapvető jellegzetessége, hogy időről időre újragondolják az általuk létrehozott kereteket. Nincs ez másként az építészetben sem, amely a változó igényeknek megfelelően formálja a lakóterek sajátosságait csakúgy, mint a ház esztétikai karakterét, vagy épp anyaghasználatát. A Virányoson található lakóépület egy lehetőségekkel teli meglepő kísérlet, amely a társasház fogalmát kívánja újradefiniálni.
A nagyvárosi lét egyre általánosabbá válásának következménye volt azon épülettípus megszületése, amely főként a középosztály számára kínált lakhatási lehetőséget. A századfordulót követően egyre nagyobb számban jöttek létre olyan épületek, amelyek megfelelő lakhatási feltételeket kínáltak az emberek számára a városi létben, ugyanakkor kompromisszumként – a vidéki életmód helyett – egy épületben több lakás megvalósításával. A társasházak jogi kerete is megszületett az 1920-as években, amely iránymutatást adott a saját és a közös tulajdon kérdésköreiben. A 20. század végén az 5-6 emeletes társasházak mellett egyre inkább megjelentek azok kisebb léptékű változatai, amelyek 4-6 lakást foglaltak magukba.

Ebben a kontextusban válik érdekessé az a Virányoson található ház, amely az A Fiúk Építész Stúdió (Varga N. Dániel, Kabdebó Zoltán) tervei alapján valósult meg. Az épület valójában két háztípus – a társasház, valamint a villa – fúziójából jött létre, egyfajta kísérlet annak megvalósítására, hogy vajon lehetséges-e átjárás a kettő között. A két lakást magába foglaló, a megrendelő igényének megfelelően társasházként kialakított épület valójában arra is rákérdez, hogy hol vannak a társasház mint jelenség határai, illetve milyen módon lehet ezen épülettípust a luxus szegmensébe helyezni. Noha a 710 m2 hasznos alapterülettel bíró ház a legmagasabb színvonalú anyagokat, megoldásokat tartalmazza, ez ízléses mértéktartással párosul annak homlokzati esztétikumában.
Az utcafrontról nézve egy léptékében az épített környezetbe illeszkedő tömeg jött létre, amely a telek méretének vonatkozásában sem válik uralkodóvá, ebben a kontextusban is a mértéktartás jellemzi. A napjainkban jellemző, kubusokból összeálló házat a burkolat teszi igazán karakteressé és szerethetővé. A sötét tónusú holland tégla egyfajta klasszikus jelleget kölcsönöz a háznak, amely a különböző áttörések jóvoltából játékossággal párosul. Külön kiemelendő a megvalósítás igényessége, hiszen nem csupán a téglaburkolat képvisel magas minőséget, hanem annak homlokzati elhelyezése is kiváló szakmai tudásról árulkodik.

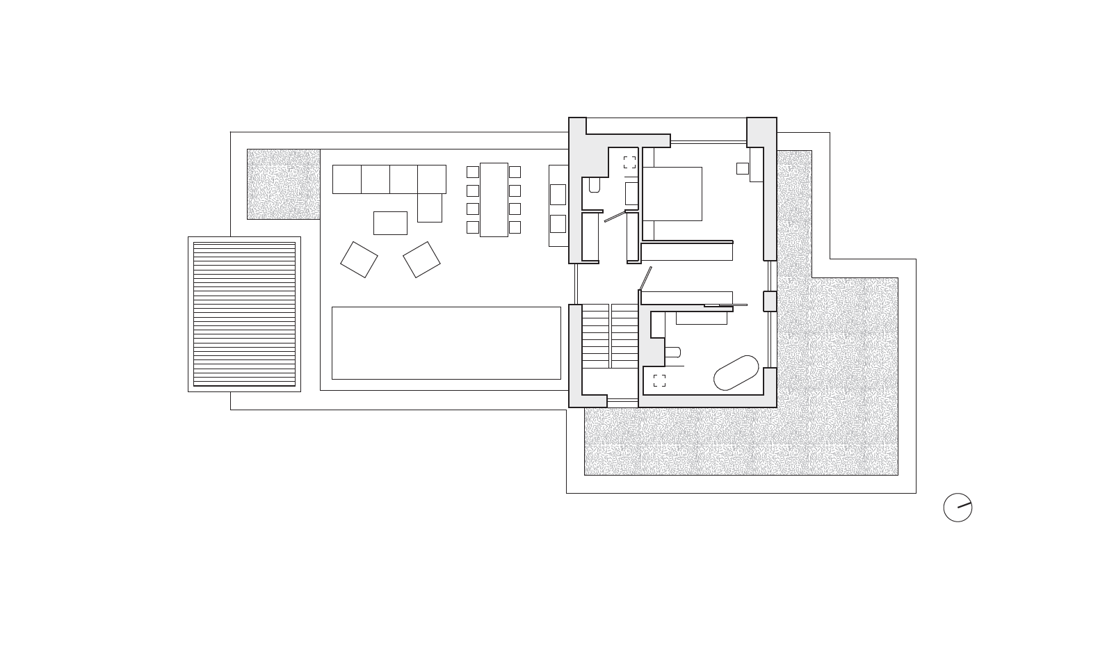
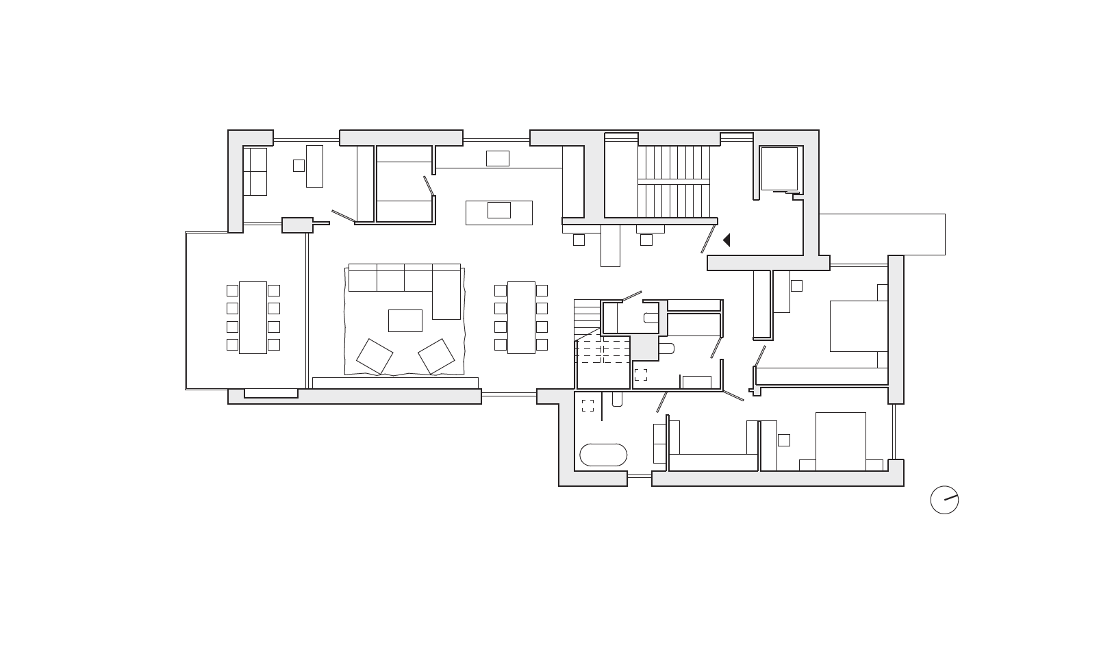
A három lakószintes épület egy garázzsal is kiegészül a pinceszinten, amely hét autó parkolását biztosítja, természetesen a jelenkor követelményeinek megfelelően elektromos töltővel is ellátva. Az utcafrontról a házba belépve találhatjuk a lakásokat összekötő lépcsőházat, amely szintén erőteljesen eltér a társasházak általános karakterétől, hiszen burkolataiban, belsőépítészeti minőségében felülmúlja ezen térrészeket. E lépcsőház köti össze a fölszinti és az emeleti lakást, utóbbi a tetőráépítés következtében egy hálórésszel, illetve a teraszon található szaunával is kiegészült. A két lakás nagyrészt hasonló alaprajzi elrendezéssel bír, anyaghasználatában, belsőépítészetében, illetve a konyhatechnológiájában, a beépített gépekben sokkal inkább a budai villaépítészet nívóját követi.
A két lakás sajátossága, hogy az egybefüggő nyílászáró üvegfelületei segítségével közvetlen kapcsolat nyílik a hátsó kertre, így a zöldfelületek vizuálisan is a lakás részeivé válnak. Noha mindkét terasz a hátsó kertre nyílik, a tervezők körültekintően ügyeltek arra, hogy a lakók intimitása megmaradhasson, így a felső szint teraszán tartózkodók vizuálisan nem sértik az alattuk élők nyugalmát. A hátsó kert nem csak vizuálisan szerves része a lakásoknak, hanem valódi lehetőséget nyújt a zöld környezetben lévő tartózkodásra, pihenésre. A megrendelői kívánságnak megfelelően olyan igényes tájépítészetet alakítottak ki, amelynek során a telepített növények, bokrok mérete nem is sejteti az épület és a kert megvalósulásának frissességét. De ugyanez a magas minőség igaz a belső terek kialakítására is, a konyhafelszereléstől kezdve a gardróbszobákon át a fürdőszoba-berendezésig, valamint a szaniterekig.

A megvalósult ház minden bizonnyal izgalmas kísérlet is egyben. Annak kutatása, hogy az egyes épülettípusoknak hol vannak a határai, illetve milyen módon lehet azok kereteit átrajzolni. A villaépületként is kiválóan működő ház a társasházi funkcióval karöltve többféle életritmus számára is lehetőséget teremt. A két lakás elkülönülése által két különálló család számára magas minőségű luxuslakásként is funkcionálhat, de akár egy többgenerációs modell is tökéletesen megvalósítható.

Az épület adottságai sokféle lehetőséget kínálnak, egy azonban bizonyos: a benne élők kompromisszummentesen élvezhetik a villaépületek nívóját egy olyan házban, amely anyaghasználatában és építészeti minőségében is kiemelkedő, így minden bizonnyal a környezetére is impulzív hatást gyakorol. Tekintettel arra, hogy egy-egy színvonalas ház milyen pozitív példát tud mutatni a lakott környezet számára, nem lenne meglepő, ha ezen épület a jövőbeli épített környezetet is formálná. Ez pedig talán az építészet egyik legizgalmasabb adottsága – hatással lenni a jövőre, formálni azt. Ezen esetben pedig nem csupán újfajta gondolat született, hanem szerencsés módon egy ház képében testet is öltött.
Tervezés éve: 2021
Kivitelezés: 2022 – 2024
Hasznos alapterület: 710 m2
Szintterület: 870 m2
Felelős építész tervező: Varga N. Dániel, Kabdebó Zoltán (A Fiúk Építész Stúdió)
Építész munkatársak: Boros Noémi, Székely Lajos, Kádár Sebestyén Énok
Belsőépítészet: Bogár Róbert és Szombathy Lívia
Kert- és tájépítészet: Fehér Gábor és Fehér-Kvasz Rita
Nyílászárók: Foorst
További képek a cikk végén található galériában!
Ha tetszett a cikk, és szeretnél előfizetni magazinunkra, itt teheted meg.


