Erről szóló írásunk a 201-es, 2025/5-ös lapszámunkból közöljük.
Paloznak a Balaton közigazgatási értelemben vett zárványtelepülése, amelyet a tó szerelmesei köteles tisztelettel, a bebírásból kizártak pedig cifra jelzős szerkezetekkel emlegetnek. Ugyanis 2021-ben a település polgármestere – élve a COVID-járvány kínálta egyszemélyi döntés lehetőségével – „változtatási tilalmat” rendelt el a településszerkezet és -kép védelmében. Nem kell még aktív hírfogyasztónak sem lennünk ahhoz, hogy tisztában legyünk vele, milyen következményekkel járt, hogy a kivagyiság és a tőke fölfedezte a kistelepülésekben rejlő nagy lehetőségeket, úgymint: elysiumi nyugalom, csend, idilli táji környezet.
A Balaton környéki új bebírók kétféle markáns viselkedésformát hoztak magukkal: az egyikről e helyt – mivel tárgyunk szempontjából irreleváns– nem ejtünk szót, a másik: kísérlet egy óvatosságot és odafigyelést igénylő viselkedésmód elsajátítására, amelynek során talán bebocsáttatást nyerhetnek egy többgenerációs közösség évszázadok során kialakult szociokulturális szövetébe. Erről az alkalmazkodásról és az ezzel járó – hosszú távon egyedül kifizetődő – alázatról szól valójában ez a szöveg.

A település vendégházát hosszú évek óta bérelte nyaranta a rendkívül akkurátus, több mint harmincéves vállalkozói tapasztalattal bíró self made man tulajdonos a feleségével. Lelkesedésük az évekkel nőttön nőtt. Az itt töltött idő nem csupán a kikapcsolódásra, de a kapcsolatépítésre is lehetőséget kínált: egy idő után már nem csak ők éreztek úgy, hogy évről évre a második otthonukba térnek haza. A döntésüket, hogy lehorgonyozzanak Paloznakon is, csak erősítette egy baráti beszélgetésen elhangzott tanács. Arról folyt a szó, hogy egy sikeresen felépített szakmai pálya egy idő után megteremti annak lehetőségét is, hogy több figyelem jusson az újabb generációval gyarapodó családra.
De mi kell ahhoz, hogy még egy összetartó család fiatalabb generációi is rendszeres vendégek legyenek a nagyszülőknél? Egy balatoni nyaraló – jegyezte meg ezen a ponton egy, már e téren jótékony tapasztalatokat szerző barát: ha azt akarod, hogy a karácsonyi ünnepeken kívül legyen még legalább egy biztos időpont, amikor rád bízzák az unokákat, építs nyaralót a Balaton mellett. Ennél példaszerűbb tervezési koncepcióhoz még nem volt szerencsénk.
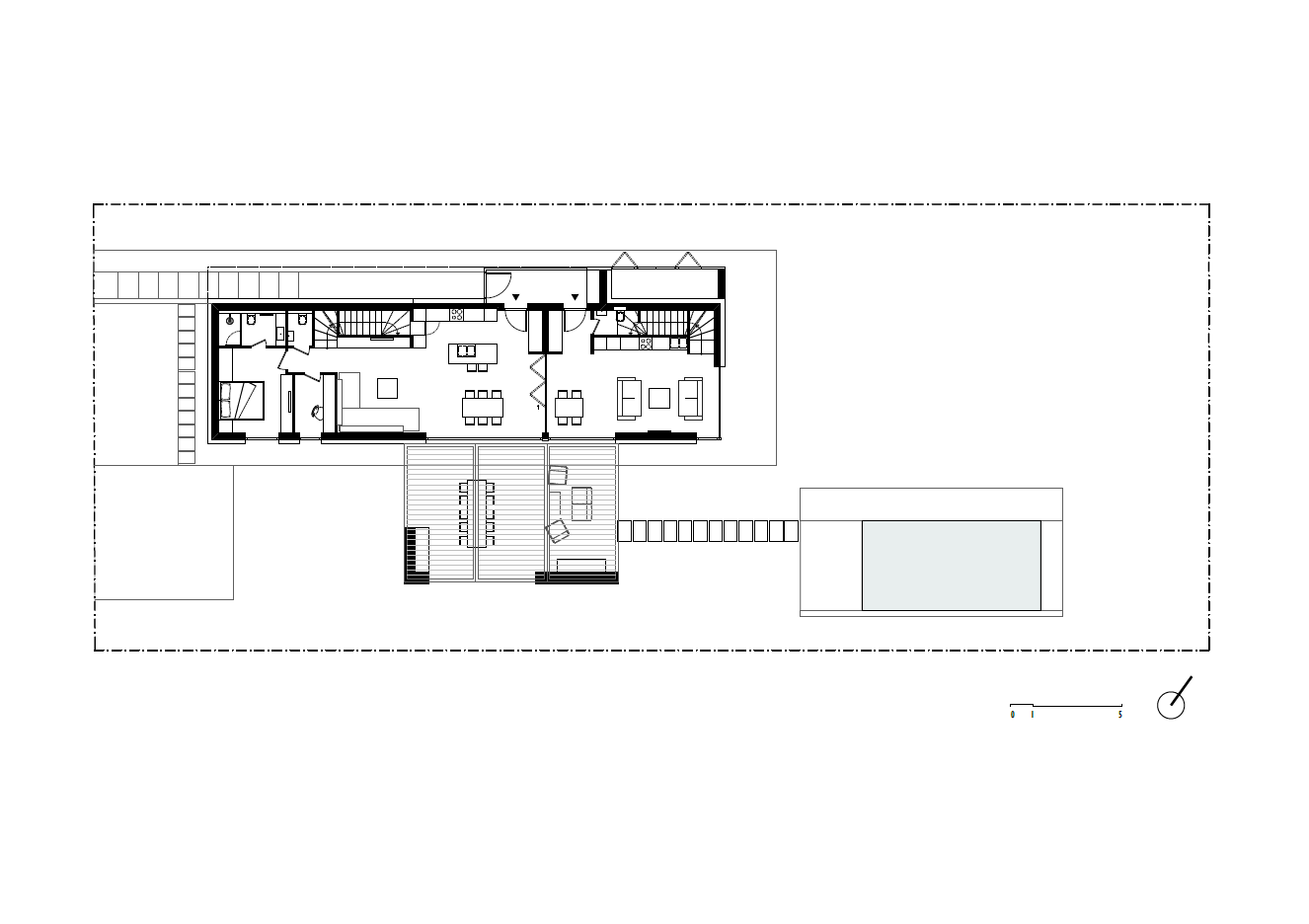
Tóth László neve nem volt ismeretlen a megrendelő előtt, hiszen 2013-ban a családi házuk építészetével is a Tóth Project Építésziroda vezető tervezőjét bízták meg. A tulajdonosok igen határozott elképzelésekkel vágtak bele az építkezésbe – igazodva persze a településképi szabályozás ugyancsak precíz előírásaihoz. Ekként egy háromgenerációs, esetenként akár 15-20 főt is kiszolgálni képes épületet rendeltek, amelyet – értelemszerűen – egyidejűleg több család is használhat, mégis mindenkinek megmarad az intim zónája.

Együttes tervezői és megélt megrendelői tapasztalat szülte az ötletet, hogy a hagyományos, többgenerációs hosszúházakat egy-egy közös használatú térrel válasszák ketté. Ez a földszinten egy elhúzható, hatásában roppant egységes harmonika-falat, míg az emeleten a mosó-szárító egységet jelenti. A földszinti nappali amúgy impozáns méretű tere az elválasztással gyakorlatilag csak optikailag csökken, kényelmi szempontból továbbra is elegendő szabad területet kínál használóinak.
Itt a ház egy igen lényeges sajátosságának említése szükségeltetik, ez pedig az illeszkedés, a lépték és a tömegarányok elegáns optimalizációja.
A homogén, vöröskővel burkolt, egyszemes utcafronti oromfalak nem is sejtetik, hogy a hosszanti elrendezésű ház valójában milyen tágas: az épület ugyanis több mint 200 négyzetméternyi lakóterületet rejt. A hagyományos, a településképi elváráshoz karakánul igazodó nyeregtető még inkább slankítja a tömeget. Ugyancsak ezt az optikai hatást erősíti a tervezőpáros kitűnő esztétikai érzékű designtervezőjének, Papp Lászlónak az ötlete az emelet dobozszerű ablakaival, de még inkább az udvari homlokzatra leforduló palaburkolattal, amely a háztól megkívánt puritán arányokat csak még inkább felerősíti. A leforduló burkolat elegánsan rejti az emeleti parapet megemelését, így viszont csak a házon belül érzékelhető a kiszerkesztett impozáns belmagasság.

A ház programszerűen vállalt puritanizmusa az anyaghasználatában is pedáns: természetes fa a belső terekben, fa hatású kompozitlemez-burkolat, kő, pala és üveg kívül. A kivagyiságtól mentes megrendelő nem volt rest felkutatni azonos minőségű, viszont még kevéssé divatos építőanyagokat. Ugyanez a praktikum érhető tetten a ház tereinek kihasználásában is, ezért minden beugrónak, saroknak és sutnak megtalálta a megfelelő funkciót. Akkurátus ember, írtuk korábban, és efféle karakterjegyekre gondoltunk: ha épp nincs gondja hivatásra, családra, keres magának hasznos tennivalót. Például a nyaraló kertjét ő maga gondozza, és nem kis büszkeségére említi, hogy az otthoni kertje egyike a város TOP 12 udvarának.
A belsőépítészet esztétikájában és anyaghasználatában követi a "minőséget takarékosan" elvét. A homlokzatok természetes színei elegánsan vezetnek át a belső terek világos tónusaihoz, a mobiliák, a beépített szekrények és a kiegészítők földszínei ezek kontrasztját képezik barnás és vörös árnyalataikkal. Ez a fajta rejtett esszencializmus ízlés, gondosság és aprólékosság elegyéből jöhet csak létre.
A nyaraló fontos közösségi pontja a fedett/nyitott pergola. A mobil árnyékolók szükség szerint szűrik vagy engedik át a fényt a teleüveg tolóajtókkal a teraszra nyitó nappaliba. A közös családi-baráti rendezvények, spontán összejövetelek egyik kitüntetett helyszíne ez a lélegző, áttört, filigrán toldalék-térrész.

A nagyjából egy évig tartó építkezést helyi generálkivitelező vezette. A megrendelők és a tervezők is egyöntetűen elismerő szavakkal nyilatkoznak a csapat teljesítményéről, külön is kiemelve a helyi vöröskőből készült, szárazon rakott falat, amely igazi mestermunka. A válogatással, faragással nagyjából egy négyzetméter/nap a munka optimális sebessége, tudván tudva, hogy az igazi babramunkával, a legnagyobb szakértelmet igénylő feladatrésszel, a sarokkövek megfaragásával csak egyvalaki, a brigád vezetője, egy idős kőműves vesződött naphosszat.
A láthatatlan részek, a házat működtető gépészet és elektronika tökéletesen egybesimulnak a design-elemek igényességével. Teljes körű okosotthon-rendszer gondoskodik a világítás, árnyékolás, fűtés és a biztonság automatizálásáról. A közel nulla energiaigényű ház egyetlen költségét a hőszivattyús rendszer elektromos betáplálása jelenti, egyébként az elektromos hálózatot napelemekről táplálják, még a gépkocsi töltése is erről a rendszerről biztosított. A csökkentett környezeti terhelés elvárásainak megfelelve nem kevésbé dicsérendő elem a sósvizes rendszerű, klór nélküli medence kialakítása (amelyre jórészt az eredetileg tervezett bádogfedés palára váltása teremtette elő a fedezetet).
Praktikum, elegancia és diszkréció a megbízó, míg hagyománytisztelet, pazar illeszkedés, valamint kiemelkedő építészeti minőség a tervezők részéről. Végül, de nem utolsósorban nagyszerű és hibátlan teljesítés a kivitelezőktől. Ha minden bebíró hasonlóképpen igyekezne belesimulni a vágyott közösségbe és környezetbe, jóval kevesebb bosszúsággal kellene szembesülnünk a Balaton környékén. Amúgy ezek alapvető és nem bonyolult összefüggések.
Tervezés: 2022
Kivitelezés: 2023
Nettó alapterület: 227 m2
Építész tervezők: Tóth László, Papp László, Tálosi Gábor, Tóth Gergő (Tóth Project Építésziroda)
Belsőépítészet: Taródy-Tóth Fruzsina
Kert- és tájépítészet: Hencz Helga
További képek és rajzok a cikk végén található galériában!
Ha tetszett a cikk, és szeretnél előfizetni magazinunkra, itt teheted meg.


