5 éve nyitotta meg kapuit az új uszoda Szegeden. Cikkünk a 168-as, 2021/4-es lapszámunkból közöljük.
Régóta hiányzott a Tisza-parti város lakóinak egy korszerű uszoda, amelyik versenyzésre és délutáni úszásra, oktatásra és edzésre egyformán alkalmas. Ott van ugyan az újszegedi oldalon a Városi Sportuszoda, de annak 50 méteres versenymedencéje kültéri, télen csak sátorral fedve használható, és nem mindenre alkalmas; ez akkor derült ki feketén-fehéren, amikor 2012-ben a város férfi vízilabda-csapata nem rendezhette meg ott a Bajnokok Ligája-mérkőzéseit. Az elkészült uszoda – amelynek nevét a városlakók szavazása döntötte el – tökéletes versenyhelyszín, a Nemzetközi Úszószövetség, a FINA minden előírásának megfelel a medence fölötti légtérmagasságtól a káprázatmentes világításon át a víz alatti kameraállásokig.
Tervezésére 2016-ban írtak ki pályázatot, amelyen a TSPC Mérnökiroda és a DPi Design javaslata nyert. A TSPC portfóliójában több sportlétesítmény is szerepel, amelyekben az anyaghasználatra, a tömegalakításra vagy épp az üvegfalakkal teljes átlátást adó küzdőterekre megvalósult példákat is találhatunk. A szegedi úszóközpont azonban lényegesen átgondoltabb, tisztábban formált, minden sallangtól mentes, majdhogynem iparinak mondható épület lett.

Maga a rendkívül bonyolult követelményeket hordozó funkció – egy csúcs sporteseményeket és a mindennapi városi úszásoktatást, ellazulást és kemény munkát egyformán kiszolgáló „üzem”, aminek egyszer tömegeket kell logikus és biztonságos rendben befogadnia, irányítania, máskor az óvodásoknak kell tájékozódniuk benne – nemigen engedi meg az építészeti finomkodást, a részletekre való rácsodálkozást, vagy akár a formai szimbolizmust, valami önmagán túli, esszenciális tartalom megidézését. Itt minden a vízről, a mozgásról és a láthatóságról szól. Nem az építészet kortárs eszköztárából ismert, hangulatokat és történeteket hordozó transzparenciáról, hanem arról, hogy ami az épület központjában, az 50 méteres versenymedencében történik, az mindenhonnan jó látható legyen. Eközben azok is jól eligazodjanak, akik nem élsport céljára használják az uszodát.
Látványban azonban így sincs hiány. Az uszoda kívülről tiszta formálású, esztétikus jelenség. A világos burkolatú földszintes rész és az abba beleúszó, sötétszürke fémburkolatba foglalt, két szint magas központi tömb együtt kiegyensúlyozott, mégis dinamikus kompozíció, a főtömb lendületes kiszögellése az úszás előrenyúló mozzanatát ragadja meg és rögzíti állóképpé. Az aszimmetrikus kontúrok, a sötétített üveghomlokzatok és a bejárati üvegsávon megjelenő színes embléma messziről szembetűnik. A régi sporttelepen, ahol áll, nincs mihez igazodni; láthatóan inkább az elöregedett kézilabdacsarnok és a lepusztult focipálya fog hamarosan felzárkózni az uszodához.

A szükséges parkolók (csaknem 260 gépkocsihely) kialakítása miatt viszonylag kevés környező zöldfelület maradt, ezt az emeleten napozóteraszokkal kialakított zöldtető egészíti ki, ahová a bejárat oldaláról széles lépcső vezet. A hátsó hosszanti fronton, ahol az alacsony és a magasabb tömb összeér, érzékeny megoldással a világos földszinti egység védő tetőfelületként úszik be a külső, melegvizes medence egy része fölé. Télen a víz páratömbje mintegy harmadik tömegként lebeg a két épületrész között.
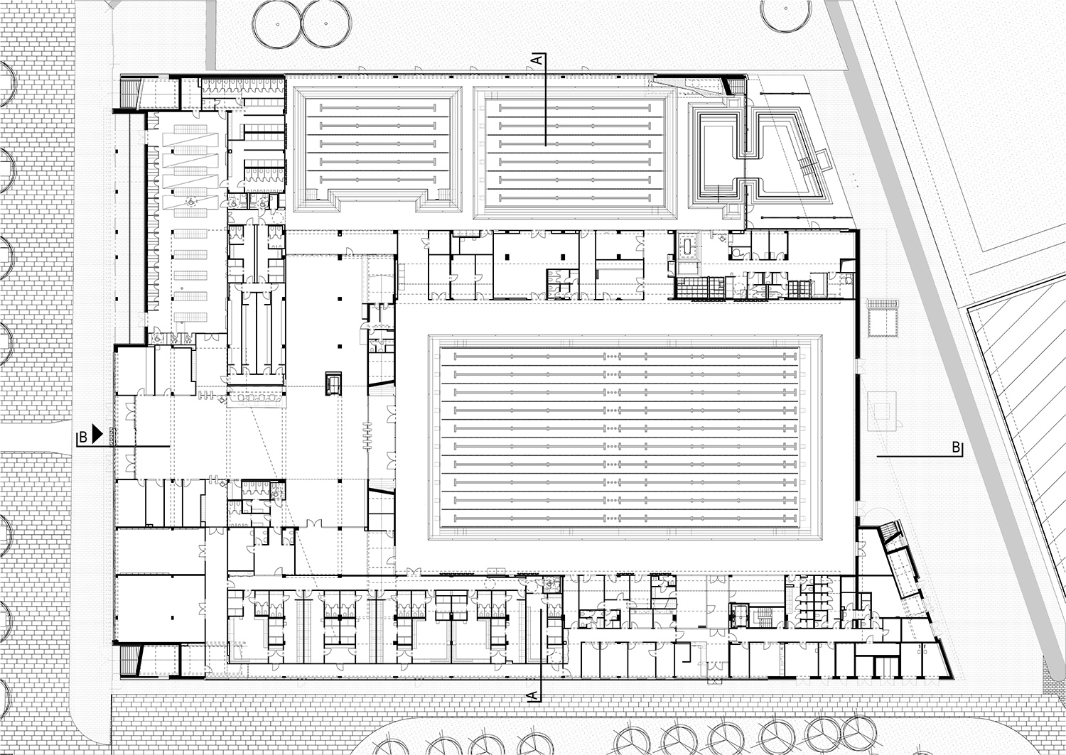
A bejárat csaknem teljes szélességben üvegfallal néz az utca felé, és ez az átláthatóság az előcsarnok, illetve azon túl a sportmedence egész hosszában megmarad; voltaképpen két üvegsáv fogja keretbe az uszodát, így az utcáról keresztirányban teljesen átlátni a központi belső teret. Az előcsarnok tágasságát a nagy sportrendezvényeket befogadó tömeg indokolja, emiatt kevés bútor került ide, az oldalt elhelyezett információs és jegyvásárlási pult tömege is nyújtott, nem gátolja a szurkolók áthaladását.

Az előcsarnok igazi látványossága az üvegfalon túl teljes hosszában feltáruló, két oldalán lelátókkal szegélyezett versenymedence. A lelátókra innen, az előcsarnok két szemközti végéből vezet egy-egy üvegkorláttal kísért lépcső. Az úszók is két irányból jutnak beljebb: az egyiken az óvodai és iskolai csoportok, illetve a hétköznapi úszók, a másikon a versenyzők érik el az öltözőiket. A két öltözőrész színeiben is markánsan különbözik egymástól: a sportolók számára kialakított helyiségek alaptónusa a sötétkék, ezt egészíti ki a szürke több árnyalata, az úszni tanulók és úszásra vágyók öltözője és zuhanyzója sárga burkolatú.
Az öltözői szekrények bütüfalán Szeged közismert épületeinek felnagyított fotói „honosítják” az összképet és nem utolsósorban segítik a tájékozódást. A fő attrakció persze a nagy medencetér. Az 50 méteres úszómedence körüljárható, korszerű felszereléséhez tartoznak süllyeszthető kötéltárolók és egy mobil elválasztó fal, amivel két, egyenlő felületű úszótérre osztható, ha az edzések ezt igénylik. Az emeleten összesen 1169 nézőt befogadni képes lelátót a láthatóság miatt üvegmellvéd határolja, az ülések sötétkékje az egyetlen karakteresebb szín ebben a térben – nincs is szükség többre, hiszen a vízfelület zöldes árnyalata az egész teret meghatározza.

A medencetér fölé boruló, hol kissé megemelkedő, hol lehajló, fémbordákból kialakított álmennyezet nem takarja el teljesen a fölötte húzódó gépészetet, de leveszi a látványról annak részleteit, ráadásul az emeleten, a lelátók melletti büfé fölött izgalmas lehetőséget ad a világítótestek elhelyezésére a fémbordák között. Az üvegfalakon három oldalról beáramló természetes fény áradását a tetőn felülvilágítók is segítik, de a teljes homlokzati üvegfelület árnyékolható.
A központi térhez több kisebb is kapcsolódik: ide nyílnak az erőnléti és konditermek, illetve innen vezet át a wellness részleg a bemelegítő, meleg vizes, illetve tanmedencéből álló kisebb uszodarész felé. Utóbbi közvetlenül kapcsolódik a parkhoz, ahogyan a tetőkerthez és a kinti lazítómedencéhez is. Ezen kívül a földszinti részben konferencia- és irodahelyiségeket, elkülönített bejáratú VIP-részleget, tanulószobát, gyerekmegőrzőt, büféket és üzleteket is kialakítottak.

A sportlétesítmény energiáját a tetőn elhelyezett napelemes kiserőmű adja, ami a napsütötte dél-alföldi városban gyakorlatilag szinte teljes önellátást jelent. Kompakt, jól funkcionáló és a kétféle – versenyzői és lakossági – használatot tökéletesen elkülönítő létesítmény született. Különösebben nem kötődik helyszínhez, hiszen felvállaltan mai és racionálisan kialakított – bármely városban állhatna. Mégis: a földszinti üvegsávon visszatükröződnek a környék házai, a focipályán játszó csapatok, az utca autóforgalma, azaz Szeged mindennapi élete.
Tervezés és megvalósítás éve: 2016 – 2021
Nettó hasznos alapterület: 13 300 m2
Generáltervezés: TSPC Mérnökiroda Kft.
Vezető tervező: Kádár Mihály, Huszár Attila
Építész kiviteli terv:
Felelős tervező: Kádár Mihály, Huszár Attila
Építész munkatársak: Ábrahám Krisztina, Bán Márton, Bélafi Károly, Csapó Máté, Fehér Orsolya, Izrael Anna, Kovács Dóra Judit, Nagy Gábor, Novák Eliza, Romhányi Lilla, Szalai Dóra, Vörös Eszter Veronika
Belsőépítészet és építész engedélyezési terv: DPI design kft.
Felelős tervező: Pintér Tamás, Dombi Miklós
Építész munkatársak: Oláh Gergely, Tarjányi Vivien, Fazekas Mihály, Hajdu Barna, Petrás Marianna
Tartószerkezet: TSPC Mérnökiroda Kft.
Megbízó: Szeged Megyei Jogú Város Önkormányzata
További képek és rajzok a cikk végén található galériában!
Ha tetszett a cikk, és szeretnél előfizetni magazinunkra, itt teheted meg.



