Erről szóló cikkünket a 200-as, 2025/4-es lapszámunkból közöljük.
Sopron büszke az országban szinte egyedülálló, a középkori (és barokk) városszerkezetet megőrző építészeti örökségére. Az utóbbi években számos elhanyagolt, rossz állapotú, egykor pompás épületet újítanak fel városszerte, amely nemcsak falaiban, szerkezetében jelent megújulást, hanem a házak (régi)-új funkciója is az örökség, az értékek megóvását szolgálja. Ez történt a Templom utca 17. szám alatt is, amikor a középkori falakra épült, ám végső formáját a 18. század végén elnyerő barokk lakóházat renoválták.
Az újjászületést megtervező és felügyelő Józsa Dávid építész, korábban a középkori városrészben végzett példás munkáihoz hasonlóan (Múzeumnegyed, [OCTOGON, 2024/1, 189.] és „Az élővé vált hitnek gyümölcsöt kell teremnie” - Az egykori Voss árvaház újjászületése Sopronban [OCTOGON 2023/5., 188.]) szigorúan ügyel az építészeti örökség értékeinek megőrzésére. A ház nemcsak építészeti értelemben született újjá, hanem a benne elhelyezésre került Berzsenyi Dániel Evangélikus (Líceum) Gimnázium mintegy kétszáz évre visszatekintő nagyszerű, számos értékes ritkaságot tartalmazó könyvtára is otthonra lelt. Az egykori evangélikus paplak, amely mindig közösségteremtő és a kultúra megőrzésére és átadására szolgáló „intézmény” volt, visszatért ehhez a funkciójához, várja a tudomány és – Kutas László szobrászműhelyének és alkotásainak befogadásával és kiállításával – a művészet után érdeklődő látogatókat is.

Visszatekintve a ház történetére, a 15. századtól vannak feljegyzések a telken álló épületről, amely 1770 körül nyerte el mai formáját, összefüggésben azzal, hogy ekkor került az Oertl-család tulajdonába. A számos soproni evangélikus lelkészt adó família által megrendelt átalakítások és freskók maradványai tanúskodnak az igényes otthon kialakításáról. A 20. század első évtizedeiben több felmérés és leírás is fennmaradt az ekkor már az evangélikus közösség tulajdonában levő épületről. Külcsínyben és alaprajzában alig változott a ház, annak ellenére, hogy tulajdonosai, lakói folyamatosan cserélődtek, nem sok figyelmet fordítva a ház állapotára, kizárólag az életveszély elhárítására koncentráltak.
Az 1960-70-es években az udvart borító felhalmozott rőzse, tűzifa és lom láthatatlanná tette az épület értékeit. A 2000-es évek elején az Evangélikus Lelkészi Hivatal nagyszabású felújításba kezdett, három lakást alakítottak ki az épület utcai részében, statikailag megerősítették a falakat, gáz-, víz-, villanyvezetékeit korszerűsítették. Komoly, a műemlékvédelmi előírásoknak megfelelő, az építészeti örökséget feltáró, megmutató és integráló felújítása azonban elmaradt a Templom utcai háznak.

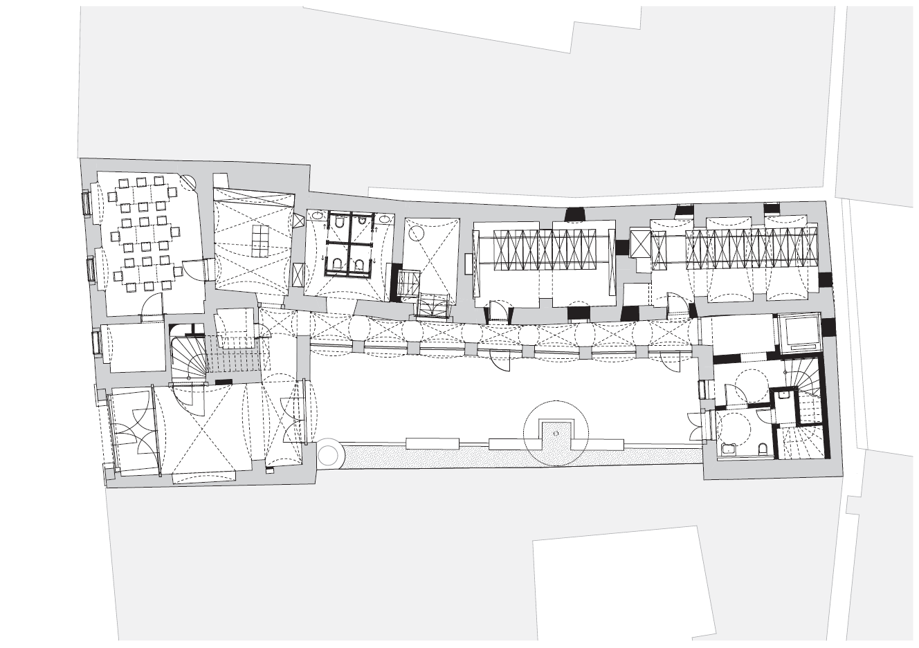
Ezt a húsz évvel ezelőtti renoválást gondolta teljesen újra szakszerűen és mintaértékűen Józsa Dávid és csapata, az Archi.doc. Tudva, hogy az épület új funkciója könyvtár és közösségi tér lesz, ennek megfelelően változtattak az U-alakú ház hosszanti tömbjében elhelyezkedő teremfűzéses szobák alaprajzi elrendezésén. Több fontos, statikai és látványbeli következményekkel járó változtatást hajtottak végre az épületen. Egy új feljáró – lépcsőház és lift – kialakítása vált szükségessé a már életveszélyessé vált hátsó szoba beszakadó boltozatainak helyén, amely most kényelmes és akadálymentes bejutást biztosít a könyvtár látogatói számára az első emeleten található olvasótermekhez, kutatószobákhoz, valamint a padlástérben kialakított könyvraktárhoz.
A felújítás során a ház közlekedési rendszerét, azon belül a lépcsőszerkezeteket korszerűsítették, amely beavatkozások funkcionálisan és esztétikailag is szorosan kapcsolódnak a történeti értékekhez. A különböző szintek között új vasbeton-szerkezetű lépcsők épültek a meglévő, elhasználódott vagy nem megfelelő kialakítású lépcsők helyére, miközben a tervezők gondosan ügyeltek arra, hogy ezek az új elemek ne bontsák meg az épület történeti rétegeit és térbeli hierarchiáját. A pince és a földszint, a földszint és az első emelet, valamint a padlástér között elhelyezkedő új lépcsők szerkezeti kialakítása a korabeli, tömör falazatú szerkezetekhez illeszkedve történt, helyenként az egykori boltozati nyílásokat felhasználva.

A kőlap-borítást kapott lépcsőkarok formai megoldása egyszerre idézi a barokk építészet határozott anyaghasználatát, ugyanakkor diszkréten simul a kortárs építészeti kiegészítések világába. A műemléki értékleltár is alátámasztja, hogy a ház közlekedőrendszere már a 18. században összetett, térkapcsolatokat meghatározó szerepet töltött be. A felújítás során nemcsak a térbeli rendet állították helyre, hanem a közlekedőelemek újraértelmezésével lehetővé tették, hogy a ház – történeti karaktere mellett – a mai kor követelményeinek is megfeleljen. A rétegzett történeti múlt (a barokk és kora modern átalakítások), valamint az ezekre adott kortárs építészeti válasz ebben a projektben példaértékű.
A lépcsők nemcsak közlekedési funkciókat töltenek be, hanem a térszervezés kulcselemeiként jelennek meg – mintegy vertikális tengelyei a múlt és jelen, funkció és forma közötti párbeszédnek. A kísérő kovácsoltvas korlátok egyedi tervezés alapján készültek, utalva az egykor volt barokk ornamentikára, anélkül, hogy azok történeti hűséget imitálnának. Ez a finom arányérzék jellemzi az egész épületfelújítást, amely egyaránt szolgálja a műemléki hitelességet és a kortárs használhatóságot.

A tetőtér/padlástér rendszeres, közösségi használatához (könyvtári raktár, valamint korszerű gépészet elhelyezése) a tetőszerkezet megerősítése, átalakítása vált szükségessé: a beépített helyiségekhez kapcsolódóan padlásfödémként vasbeton vendégfödém készült a meglévő boltozat felett, külön szigeteléssel és szellőztetett légréteggel elválasztva. A tetőszerkezet átalakítása során az épület történeti karakteréhez illeszkedve, ugyanakkor a korszerű épületfizikai és energetikai követelményeknek megfelelően történt meg a fedélszék teljes helyreállítása. Nem csak az új fedélszék integrálódik és reflektál a történeti szerkezetekre, hanem a kettős, egyenes vágású, natúrvörös agyagcserép is.
A tetősíkba helyezett ablakok és búvótér-nyílások gondosan integrálva lettek a rétegrendbe, hőhídmentes kialakítással. A részletek kidolgozásánál külön figyelmet kaptak a történeti karakterhez illeszkedő eresz- és oromkialakítások, a párkányok visszafogott megformálása, valamint a lefolyórendszerek diszkrét illesztése. Az így kialakított tetőtérbe többek között ide is befértek a Líceum könyvtárának egykori szekrényei. Ezen bútordarabok (újra) hasznosítása fontos belsőépítészeti szempont volt a hagyomány és értékmegőrzős szempontjából.

A másik látványos átalakítás a nyitott és üvegezett árkádok megcserélése volt. Míg korábban, még a 19. század második felében az emeleti árkádsort üvegezték be logikusan a lakófunkcióhoz igazodva, s a földszinti árkádok voltak nyitottak tároló funkcióval, addig a mostani felújítás során a földszinti rész került beüvegezésre, hogy kényelmes és védett eljutást biztosítson az árkádsor képezte folyosóról nyíló kutatószobákba, közösségi terekbe. Az első emeleten kibontották az üvegezést, lélegzethez juttatva, kikönnyítve az első emeleti árkádsort.
A felújítás tulajdonképpen visszaállította az épület egykori hierarchiáját: az utcai front földszintjét és emeletét a nagyvonalú lelkészi lakás helyiségei birtokolják, amelyek kiemelt helyét a feltárt és részben láthatóvá tett pompás freskó-díszítés is mutatja. Ezt követik az udvari tömb teremfűzéses helyiségei, amelyek egykor kiszolgáló- helyiségek, raktárak, cselédlakások voltak, most pedig az olvasótermeknek és kisebb közösségi helyiségeknek adnak teret, míg az U-alak hátsó, udvari traktusa tárolási helyiségeket rejt.
A finom, de szükséges beavatkozásokkal elkészült felújítással a Templom utcai ház visszanyerte városképi, építészeti örökségi szerepét úgy, hogy közben a 21. századi polgárság igényeit, értékeit, korszerű kulturális értékeit képviseli.
Tervezés éve: 2018 – 2019
Kivitelezés/átadás éve: 2021 – 2024
Nettó terület: 743 m2
Generáltervező: Archi.doc
Építész vezető tervező: Józsa Dávid (Archi.doc)
Építész munkatársak: Pamuk Lilla, Bartók Anita, Takács Norbert
Belsőépítész vezető tervező: Józsa Dávid
Belsőépítész munkatársak: Pamuk Lilla
Tartószerkezeti tervező: Varga László
Restaurátorok: B. Juhász Györgyi, Lángi József
Épülettörténet és értékleltár: dr. Kelemen István, Nemes András
További képek és rajzok a cikk végén található galériában!
Ha tetszett a cikk, és szeretnél előfizetni magazinunkra, itt teheted meg.


