Ennél a társasháznál az erős lejtés is nehezítette a terepviszonyokhoz és a környező párkánymagasságokhoz való illeszkedést, de az építészek a nehézségekből előnyt kovácsoltak. Erről szóló cikkünk a 196-os, 2024/8-as lapszámunkból közöljük.
Bár a Cordia nevétől elválaszthatatlanok a nagy léptékű, teljes tömbökre kiterjedő ingatlanfejlesztések, portfóliójukban a sűrű városi szövetbe illeszkedő foghíjbeépítések is megtalálhatók. Az utóbbi feladat egész más kihívás elé állítja a fejlesztőt és a tervezőt egyaránt. A Gellérthegy és Naphegy utcák közötti telken még az erős lejtés is nehezítette az illeszkedést, a Dyer építésziroda tervezői azonban a nehézségekből előnyt kovácsoltak.
A telekre eredetileg a Puhl és Dajka Építésziroda készített engedélyezési tervet, az építtető ezen tervek átdolgozásával bízta meg a Dyer tervezőit. A megbízó kérése a homlokzat és a lakásmix újragondolására és a továbbtervezésre vonatkozott. A telek speciális adottsága az erős lejtés, a két határoló
párhuzamos utca közötti szintkülönbség mintegy hét-nyolc méter. A beépítés karakterét illetően a felső oldali Naphegy utca választóvonal; fölötte kertes-villás terület kezdődik, míg a Naphegy, illetve a vele párhuzamos Gellérthegy utca zártsorú, városias karaktert mutat, különböző, de többnyire a huszadik században épült többszintes házakkal.

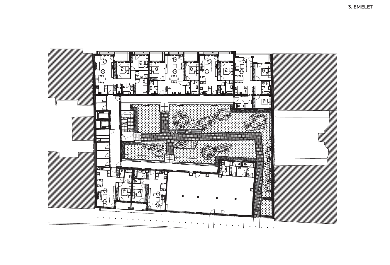
Az új épületnek ebbe kellett illeszkednie, felváltva a telken korábban álló, a környezeténél jóval alacsonyabb épületet. A korábbi telekösszevonás révén dupla méretű telken „U” alakú beépítéssel sikerült tágas zöld udvart kialakítani. A két párhuzamos utca mentén futó traktusokba kerültek az udvar felől nyitott folyosóról megközelíthető lakások, az „U” rövid, az utcára merőleges összekötő szárában a közlekedőmag kapott helyet.
A lejtés ugyan megnehezítette az alapozást, cölöpfalas munkatérhatárolást kellett alkalmazni, viszont lehetővé tette, hogy a parkolás a szokásos mélyépítési munka nélkül megoldható legyen. A lejjebb futó Gellérthegy utca felől nézve az alsó három szintet foglalják el a parkolók, és csak efelett indulnak a lakószintek, míg a felső, Naphegy utca felé még a harmadik parkolószint is terepszint alatti, a legalsó lakószint viszont már földszinti helyzetű.
A három parkolószint közül az alsó kettőt külön-külön rámpával, a legfelsőt gépjárműlifttel lehet megközelíteni. A parkolószinten a lakásokhoz saját tárolókat is kialakítottak. Az épület magassága is követi némiképp az utca lejtését, a felső traktus egy szinttel magasabb. A kissé bonyolult leírás is mutatja, hogy terepviszonyokhoz és a környező párkánymagasságokhoz az épület a lehető legrugalmasabban igyekszik illeszkedni.

A lakásmix is legalább ennyire összetett, 50 négyzetméter körüli egyszobástól 125 négyzetméteres ötszobásig terjed a kínálat. A helyszín legfőbb értéke a kivételes panoráma, amely a felsőbb szintekről körben élvezhető – premier plánban tárul fel például a Budavári Palota átépítése, de hamarosan a Körszálló kibelezése is szemlélhető lesz. Az erkélyek természetesen a manapság elvárt mélységűek, ami a hagyományos beépítésbe illeszkedő foghíjak esetében megoldandó homlokzattervezési feladat. Míg a kvázi-függőfolyosós elrendezéssel, a félig nyitott lépcsőházzal az új épület követi a hagyományos budapesti típust, a végig-erkélyes homlokzat óhatatlanul más struktúrát követel, mint a klasszikus lyukarchitektúra.
A történeti beépítésbe kerülő kortárs épületek esetében rendre felmerül az illeszkedés kritériuma, pedig helyesebb lenne ehelyett a harmónia fogalmát használni. Az illeszkedés ugyanis feltételez valamiféle hasonulást, másolást, azonos elemek használatát, még ha átirat formájában is. A harmónia viszont rejtett csatornákon keresztül valósul meg, asszociációk és mélyebb összeköttetések által. Itt a harmonikus beolvadást az anyag- és színhasználat gondos komponálásával érték el a tervezők. A két méter mély teraszok előtt végigfutó héj világos bézs téglával burkolt, ami egyrészt rímel a környező épületek színére, másrészt anyagával utal a klasszikus bérházépítészetre.

A téglaburkolat filigrán rasztert rajzol a homlokzatra, vízszintes irányban végigfut a födémek vastagságában, függőlegesen viszont ettől a síktól visszahúzott pillérek és fém betétek tagolják. A teraszkorlátok keret nélküli üvegből készültek, a bézs, homokszín, óarany színvilág a természetes vakolatszíneket idézi. A tömör és áttört felületek játéka elegáns arányossággal jelenik meg a homlokzatokon. A ténylegesen földszinti, a járdaszinthez közeli lakás esetében biztonsági okból kiegészítő zárható üvegezés került a homlokzatra, megelőzendő a berácsozás elterjedt hazai gyakorlatát.
Az épület belsejében, az „U” gyomrában kialakított udvar valójában zöldtető a parkolószintek födémén – átközlekedésre és pihenőkertként, közös használatú térként egyaránt funkcionál. Szintben a Naphegy utcához kapcsolódik, innen áttört rácsos kapun át lehet az udvar belsejébe jutni. A növényzet
árnyéktűrő cserjékből, gyeppótlókból áll, a megmozgatott felszínen az alacsony dombok kisebb fák felnevelésére alkalmas földvastagot biztosítanak. A hófehérre vakolt nyitott lépcsőház épületszoborként zárja le az elnyújtott téglalap alakú intim kertet. A lakásokat feltáró nyitott folyosókról feltárul a szépen tervezett udvar. A belső homlokzatok vakoltak, de színeik az utcai homlokzat színvilágát követik.

Tagolásuk is rokon, a lakásbejáratok előtt a belátást megakadályozó szintmagas tömör betétek, illetve növényfuttató fém keretek kaptak helyet. A folyosókon a növénytelepítésre alkalmas ládák eleve betervezettek, az összhatás komponált, mégis barátságosan idézi a gangos bérházak kellemesen kollektív jellegét. A Gellérthegy utca felől, három szinttel lejjebb nyílik az épület főbejárata, tágas, elegáns előcsarnokkal, amelynek belsőépítészetében következetesen ugyanazok az anyagok és színek dominálnak, mint a homlokzatokon. Az elegáns fogadótér nagyvonalú üvegfelülettel határolt, amely jelzi a bejárat kiemelt helyét a raszteres homlokzaton, az üvegen át feltáruló belső elegancia pedig megelőlegezi az épület magas esztétikai nívóját.
Az átgondolt kompozíció, a minőségi anyaghasználat, a nívós belső részletek révén úgy illeszkedik az épület a hagyományosan magas presztízsű környék színvonalához, hogy közben nem hivalkodik, csupán méltósággal viselkedik.
Tervezés: 2020 – 2021
Kivitelezés: 2023 – 2024
Nettó szintterület: 4549 m2
Generáltervező (építészet és belsőépítészet, szakági tervek): Dyer Kft.
Építész felelős tervezők: Domokos Balázs, Deilinger Tamás
Építész projektvezetők: Guzmics Gyula, Kiss Ernő
Főbb építész munkatársak: Borbély Adrienn, Kabay Zoltán, Pataki Ágnes
Beruházó: Cordia
A Naphegy12 társasház biztonsági, hanggátló és tűzgátló lakásbejárati acélajtajait a Delta Doors Hungary Kft. szállította és szerelte.
Delta Doors Hungary Kft. – A stílusba zárt biztonság
Telefon: +36 70 205 9793
E-mail: info@delta-ajto.hu
Web: www.delta-ajto.hu

További képek a cikk végén található galériában!
Ha tetszett a cikk, és szeretnél előfizetni magazinunkra, itt teheted meg.


