Jaksa Bálint cikksorozatát kiegészítve, a ház tervezéséről és megvalósulásáról Tótszabó Tamás / Pyxis Nautica, vagyis az építész nézőpontjából is olvashattok az OCTOGON online-on – íme a második rész.
A telek a Velencei-tó üdülőterületén található, viszonylag sík területű, téglalap alakú, hosszúkás, mély telken, sok fával. A birtokon volt egy meglévő épület, melynek esetleges újrahasznosítását végül több ok miatt a megrendelővel elvetettük. Egyrészt szerkezetileg nem volt túl állékony, jelentős költséggel kellett volna megerősíteni az épületet.

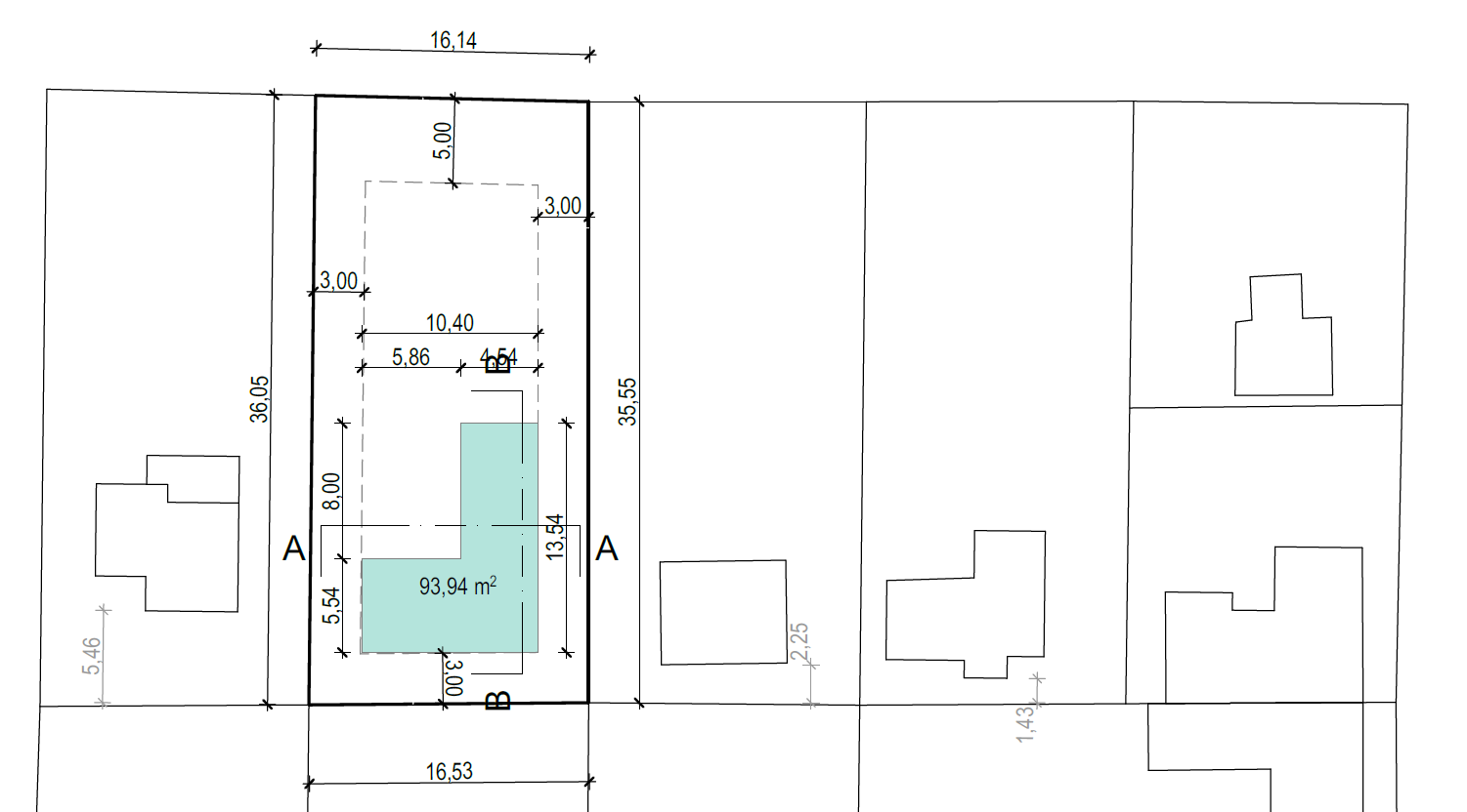
Másrészt a megbízó beleszeretett a CLT technológiába, melynek előnyei egy zöldmezős beruházás keretében jelentkeznek leginkább. Harmadrészt a meglévő épület nagyon hátul volt, körülbelül 1 méteres hátsókerttel. A jelenlegi szabályozás azonban lehetővé tette, hogy az új épületet a „kialakult telektömb” jellemző hátsó kert méretével telepítsük. Mivel a telektömbben 0 és 5 méter között fordultak elő hátsókertek, így megengedték egy köztes 3.0 méteres hátsókert kialakítását, mely az építtető számára biztosította a kellő mértékű körbejárhatóságot és benapozást.

Így a tervezett épület pozíciója a telek végébe került 3.0 méteres oldalkertekkel és hátsókerttel.
A telek ÉNy-DK irányú (az utcafront ÉNy felé fordul), így az épület telepítését a benapozás mellett a ház környezetének látványa befolyásolta. Már a megrendelő skiccein, vázlatain szerepelt egy L alakú beépítés, amelyből kilátás nyílik a gazdag növényzetű előkertre, ugyanakkor a délnyugati napból direkt bevilágítást kap a földszintre kerülő élettér. Mivel a megrendelő olyan fotós, aki bárhol jár, ellenőrzi a napjárást az adott földrajzi pontban, így építészként már elég konkrét kívánt tájolással szembesültünk, amin nem kellett számottevően változtatni. A végleges alaprajz így elég közel áll a kapott rajzokhoz.
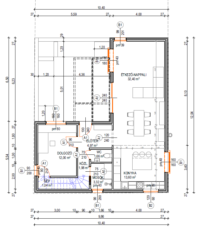
Az emelet a beépítési paraméterek (épületmagasság) korlátai miatt nem lehetett akkora, mint a földszint, így tudtuk, hogy lesz egy tetőteraszunk, melyet az utcavonal felé, szintén a nagy fák irányába pozícionáltunk, így tömegét tekintve egy kétszintes nyeregtetős és egy egyszintes lapostetős, teraszos épületet kaptunk. Az „L” alaprajzú épület így egy szélvédett, fedett-nyitott teraszt fog közre.
![]() ![]() |
Mivel az új ház a régi helyének környékére épül, nagy fákat nem kellett kivágni a telekről.
A településképi illeszkedésről nehéz értekezni, hiszen elég vegyes képet mutat az üdülőterület, lapostetős, nyeregtetős, kisebb-nagyobb épületek váltakoznak, valamint a telek végében elhelyezkedő épületek alig látszódnak a fáktól. Így gyakorlatilag a Településképi Arculati Kézikönyvben kikötött hagyományos színek, felületek és tetőforma (min. 30 fokos nyeregtető) kikötéseihez való alkalmazással illeszkedünk az utcaképbe.
A következőkben a tervezési programról és a CLT technológia sajátosságairól lesz szó.
A Ház a tónál című sorozat eddig megjelent cikkeit erre a linkre kattintva olvashatjátok.
Pyxis Nautica | Web | Facebook | Instagram
Jaksa Bálint | Web | Facebook | Instagram
Ha tetszett a cikk, és szeretnél előfizetni magazinunkra, itt teheted meg.





