Az épületet a tervezők leírásával mutatjuk be.
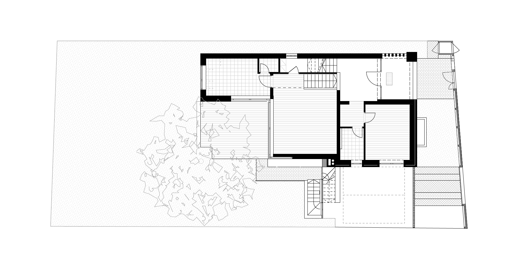
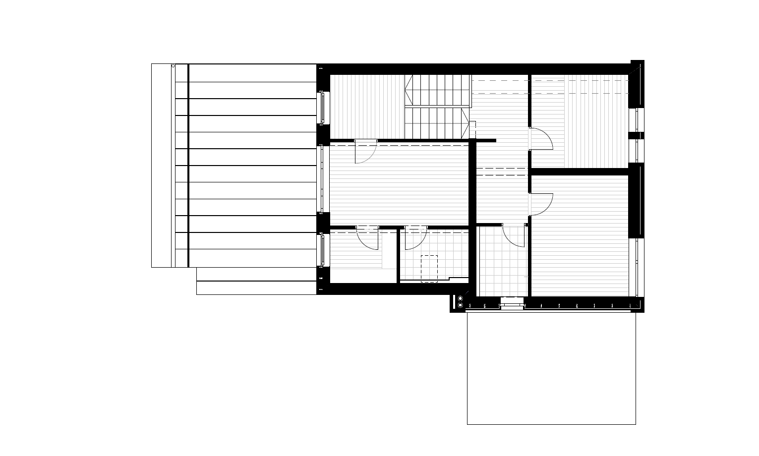
Tekintettel a lejtős terepre, a belső térszervezés a lépcsőzetes szinteken kézenfekvő választás volt. A lépcsősoron keresztül történő belépést követően fel lehet jutni a hálószobák szintjére, vagy le lehet ereszkedni a konyhát és az étkezőt magában foglaló nappali részre. Ezek a terek a fedett szabadtéri terasz köré szerveződnek, amely a kompozíciós és funkcionális középpont.

Külső sarkát egy hatalmas konzolos gerenda támasztja alá, elkerülve a nagy diófa melletti alapozást, és zökkenőmentes átmenetet teremtve a kerthelyiségbe. Teraszok és lépcsők sora segít vizuálisan elválasztani a privát hátsó udvart az utca felé eső, nyilvánosabb területtől, ahol téglakerítés zárja körül az ingatlant.

A tulaj építészirodánk megbízható munkatársa. Ingatlana Kolozsvár egykori vidéki külvárosában, barátságos környéken található. Az építési munkálatokat a megrendelő szoros felügyelete mellett végeztük. A bádogosmunka kiegészíti a ragasztott faelemeket, az asztalosmunkákat és a külső homlokzat látható téglafalazatát. Magában foglalja az ügyesen megmunkált bádog tetőfedést, burkolatokat, ereszcsatornákat és lefolyókat, míg ugyanez az átgondoltság és kézműves szellem az anyagválasztásban is megmutatkozik, mint például az újrahasznosított tégla és a faburkolat.
Vezető tervező: Tóthfalusi Gábor (TEKTUM ARHITECTURA & ARTA SRL)
Építész munkatárs: Visky Ágoston
Statika: Mihai Oltean
Gépészet: Aurelian Marian
További képek a cikk végén található galériában!
Ha tetszett a cikk, és szeretnél előfizetni magazinunkra, itt teheted meg.


