10 éve adták át a megújult Nyíregyházi Művelődési Házat.
Szinonimaszótárral a kézben érdemes elindulni a ház felé, nem fukarkodva a jelzőkkel a „nagy” körülírására. Árvai András írása előző lapszámunkból – írtuk az OCTOGON 119-es (2015/3-as) lapszámában Bán Ferenc ikonikus épületéről, a Nyíregyházi Művelődési Házról. Idézzük fel teljes egészében a cikket, amit koránt sem „csak” az épületről szól, de az építészről, a személyiségéről, a hitvallásáról és a mindig ellentmondó, csendesen kérdező, provokáló művészi attitűdjéről.

Bán Ferenc bevallása szerint képzőművésznek készült, véletlenül lett építész. A képzőművész habitusa, a képzőművész közelítése folyamatosan jelen van az építészetében, legyen szó akár a szóban forgó művelődési házról (mai nevén Váci Mihály Kulturális Művészeti és Gyermekcentrum – szerk.), tokaji nyaralójáról, megvalósult vagy tervszinten megrekedt munkáiról. Tegye a szívére a kezét bárki és mondja őszintén, hogy a csodálva ikonizált nyíregyházi művelődési ház egy funkcionálisan indokolt, klasszikus építészeti alkotás. Nem megy? Kérdések merülnek fel? Egyrészről minden eleme az épületszerkezettani nagy könyvben megtalálható – igaz, különböző fejezetcímek alatt, de ott van –, végiggondolt terek, végiggondolt városi elhelyezkedés, tudatos szerkezeti felépítés, az erők hierarchiája, ablakok, ajtók, szobák, mindene megvan ahhoz, hogy házról, építészetről beszéljünk vele kapcsolatban.
Másrészről irracionális szerkezeti megoldása, meghökkentő formája, utcányi konzoljai a korabeli, keleti kisváros cserépfedésű földszintes muskátlis házacskái, szélfútta udvarai felett egy képzőművészi aktusnak fogható fel. És felmerül a kérdés: a város, a házak, a szocializmus delelőjén pislákoló ország elmaradott megyéje kelléke-e a megastruktúra mindent behálózó víziójának vagy vajúdó szülőanyja? Magától értetődő mérnöki gondolat az, ami meghatározta akár a formát, akár a használt technológiát? A háttérként szolgáló építészetelmélet, az akkor élő metabolizmus, keretezi-e az épületet vagy Bán mindig ellentmondó, csendesen kérdező, provokáló művészi attitűddel felrajzolt felkiáltójele jelöli-e ki a határait?
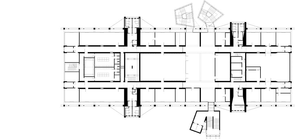
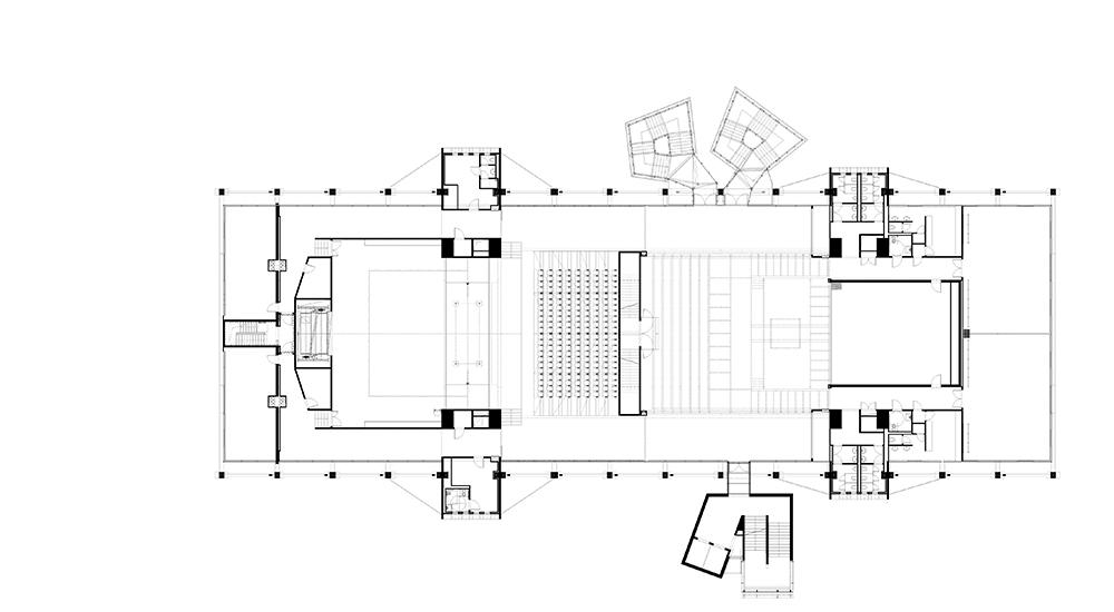
A forma megkerülhetetlen, gigantikus szerkezete, masszív, felfoghatatlan pilonjai, nagyszabású konzoljai, a már-már komikusan monumentális struktúra minden körülötte lévő tárgyat relativizált, a házak, az utcák, a kultúrára éhes emberek tömegei mint terepasztal kis elemei sorakoztak a művelődési ház árnyékában. Ugyanakkor a jelenléte mégis emberi léptékű, titokzatos maradt, elindítva a képzeletet, miként lehet mozogni a pilonok és hatalmas gerendák és tartók között, milyen az élet odabent és mi folyik ott kultúra címszóval? A titokzatossága miatt idegen maradt. Az épület eddigi története alatt nem illeszkedett be a városi tudatba, egyetlenegy kiadványba nem került bele, üdvözlőlapra nem került rá.
A város identitásában szünetjelként szerepelt. Ha nem szégyelljük a naiv használó pozícióját felvenni és antropomorfizáljuk az előttünk álló épületmonstrumot, azt érezhetjük, hogy a gigászi szerkezetek, a súlyos betongerendák és vaskos pilonok mögött egy olyan épület sejlik fel, ami megszületése óta a szeretetre vágyik, méretei és szokatlan formái miatt a beilleszkedési vágy szülte kisebbségi komplexus hatja át, mindezt az egyediség jelentette idegenség és ebben rejlő tökéletesség teljes tudatával.

Az épület eredettörténetében az idea, a metabolizmus mint világot látott, nyugati kiküldetésből hazatért nagybácsi szerepel, aki kötöttségek és gátlások nélküli szabad világ eszméjéről beszél kezében piros Marlboróval a konyhában, viaszosvászon-terítő mellett. Ez a szabadságvágyként, tóba dobott betondarabként értelmezhető építészetelméleti adaptáció olyan épület-előképeket jelöl meg, mint Kurokawa Odakyu Drive-in étterme (Otome, Japán, 1969) vagy Kenzo Tange tokiói olimpiai épülete (Tokio, Japán, 1964). Ezek az épületek az akkori iparpolitikai keretek miatt idehaza nem lehettek volna megvalósíthatók.
Alapvetően az előregyártott szerkezetek primátusa, a helyszíni építés elsorvasztása gyökeresen ellentétes volt a mintaként megjelenő japán épületek, valójában kényszer szülte – Japánban a földrengésveszély miatt használták elsősorban ezeket a szerkezeteket – monolit szerkezetek dominanciájával.
A nyíregyházi művelődési ház mégis megvalósult. Létrejötte gyakorlatilag rendszerhibaként is értelmezhető. Bán képzőművész énjének művészi aktusa ezzel le is zárulhatott volna. Az épület felépítése, későbbi viszontagságai, története immáron másról szólt: a jelentékeny tömeg mozgása során, mint lavina sodort maga alá, és vitt magával mindent, amit egy megyei pártértekezleten vagy egy tüzép hátsó udvarán össze lehetett szedni.
Ugyanakkor a rendszer meghekkelése mellett az épület megmutatta az esélyét annak, hogy az országban több pólus alakulhat ki, akár szellemi, egyetemi központ vagy az akkori aduászként működő ipari bázis által adott előnyök nélkül is. Mégis, az elmúlt harmincöt év története azt bizonyította be, hogy sem a pólusok lehetősége, sem az építőipar apoteózisa, sem az utópiák nem valósultak meg, mind madárürülék lepte, leginkább bontásra, korabeli kifejezéssel élve, szanálásra ítélt rekvizitumként maradtak ránk. Ezen még az sem segített, hogy az épület szellemiségében érezhető volt, illetve máig érezhető a kereteinken túlmutató vágy, az izgatottan várt nyugati folyóiratok nyomdaszaga, velük a lezárt határokon átszűrődő nemzetközi, progresszív hatások elérhetősége, azok lehetősége.
Az épület, a szakmai részről ikonizált státusza és a helyi közeg egyértelműen elutasító hozzáállása miatt a közöttük elterülő levegőtlen, ingoványos senki földjére került, ahol a teljes elmerülést megúszva, az EU Agóra pályázata nyújtotta anyagi szalmaszálba kapaszkodva végül megmenekülhetett és az eredeti tervezője, Bán Ferenc („A” Stúdió’90 Kft.) segítségével megújult.
A ház gyakorlatilag egy revízión esett át, ami esélyt adhatott a tervező számára a korabeli terveivel szemben megvalósult, kompromisszumokkal terhelt terek újbóli kibontására, az eredeti definíció szerinti újrarajzolására. De az eredeti tervek leporolásán túl más is történt, egy újabb művészeti aktus, ugyanazon a vásznon.

A házat fehérre festés által megfosztotta anyagiságától. A felszabadított tömeg zárójelbe teszi a múltját, a rárakódott rétegeket, a szituációt, amiben a ház, az idea eddig élt: kelet és nyugat között, vidék és a nagyváros között, képzőművészet és építészet között, funkció és forma között, és a helyzetet, amiben nem igaz rá egyik oldal törvénye sem. Ebbe a zárójelbe belekerül minden, ami az évek során rárakódott a házra, minden konfliktus, minden kudarc és siker. Az épület előéletét tulajdonképpen a legegyszerűbb módon szünteti meg, minden állítást, érzelmet és oda nem való külső elemet a szín eltüntetésével eliminál. Ezzel az aktussal az eredeti épület idézőjelbe tételét éri el, ugyanakkor kritikai élt is érzékelhetünk benne, ami egyúttal egy rituális megsemmisítésnek is felfogható, az elidegenítés eszközeként is értelmezhető.
Anyagától megfosztott épületet kapunk, amiből szándék szerint csak a lényeg marad meg. A felejtés vagy újraírás szükségességének determinisztikus árnyalata nem a korunkra jellemző, összeesküvés-elméleteket sem nélkülöző elhasználódás és mindig újat akarás szelleme miatt történt meg, hanem az eredettörténetnél jelen lévő idea, a vegytiszta építészetbe került idegen test eltávolítása a cél. A szükségessé vált épület-bővítményt felhasználva látszólag eruptív módon, a házat lekötözi, lehorganyozza a főtérre, a helyét pontosan kijelöli, ami által a történetet, az eddig eltelt időszakot lezártnak tekinti.

Természetesen szintén házról, építészetről beszélünk: a bővítmény a harminc-negyven éves építészetelméleti sűrítmény, építészettörténeti mementó mai magyarázatával szemben és lábjegyzetelés helyett, merőben más karakterű, a megvalósult hozzáépítés valójában bemutató, prezentáló és gyakorlatilag moderáló helyzetbe helyezkedik bele. Moderáló abból a szempontból, hogy az időközben intenzív városi, főtéri helyzetbe került, nem minden esetben értékelhető építészeti minőséget felvonultató teresedésen idegenül álló épület pőre és gátlástalanul megmutatott szerkezetét, gyalulatlan deszkazsalu mintázatú hatalmas betonfelületeit humanizálja, tompítja, valóságosan is takarja, kitakarja. A moderálás része a toronymotívum, ami archaikus főtéremlékeket ébreszt: főtéri óratorony, tűztorony, városháza-torony allúziók. A megformálás finomsága, ami különösen igaz a kapuzatot körítő síkok rajzolatára, az eredeti épület tudatos formálását idézi, immáron nem japán, hanem portugál előképekkel.

A felújítás után a nagyvonalú, magával ragadó, már meglévő terek a szorításukból kibomlottak, eddig rejtett perspektívákat mutatnak meg az épületből. A megjelenésében uralkodó konzolok és gerendák átlátható rendszere az előcsarnokból nézve átélhetővé válik, a bent tartózkodók a részeseivé válnak a tartószerkezetek fizikájának. A súlyos tömegek anyagtalansága akkor válik egyértelművé, amikor az épületben járva az erőrendszerek és szinonimaszótár segítsége nélkül is leírható művészet részeseivé válunk. Hát nem üdvözlőlapra való egy ilyen ház?
Felelős építész tervező: Bán Ferenc, Tenkely Szabolcs („A” Stúdió’90 Kft.)
Építész munkatársak: Eichinger Gyöngyi, Kótai Norbert, Nyitrai Norbert, Tomku Gergely
Környezetrendezés: Márton Péter – (Fő-Kert-Ész Bt.)
Eredeti terv (tervezés: 1969–74): Bán Ferenc (építész munkatárs: László Zoltán)
Átadás: 2014
Bán Ferenc díjai1
- Pro Urbe-díj (1984)
- Ybl Miklós-díj (1986)
- Kossuth-díj (1994)
- Pro Architectura-díj (1997)
- A Magyar Köztársasági Érdemrend középkeresztje /polgári tagozat/ (2003)
- Molnár Farkas-díj (2004)
- Prima Primissima díj (2004)
- A Nemzet Művésze (2016)
Legfontosabb épületei2
- 1974-78 MITÁSZ székház, Nyíregyháza
- 1979-82 Művelődési Ház, Nyíregyháza
- 1980-85 Városháza, Mátészalka. Hősök tere 4.
- 1983-85 Szakszervezeti székház, Nyíregyháza
- 1986-88 Kulturális és Művészeti Központ, Mátészalka Kölcsey u. 2.
- 1987 uszoda, Záhony
- 1990 napenergia-ház, Nyíregyháza
- 2000 Bán Ferenc lakóháza Tokaj. Bodrogkeresztúri út 6/a
- 2000 Nyíregyháza, Jókai és Nagy Imre tér beépítése, 1. változat (László Zoltánnal)
- 2001 Nyíregyháza, Jókai és Nagy Imre tér beépítése, 2. változat (László Zoltánnal)
- 2002 Nyíregyháza, Benkei László társasháza
- 2002 Nyíregyháza, Jókai tér beépítése, 3. változat
- 2002 Nyíregyháza, Saxum lakópark (Balázs Tiborral)
- 2003 Nyíregyháza, Jókai és Nagy Imre tér beépítése, 4. változat (Balázs Tiborral)
- 2004 Kisvárda, Művészetek Háza (elvi engedélyezési terv)
- 2004 Nyírbátor, Kulturális Központ
- 2008 Korzó Bevásárló és Szolgáltató Központ. Nyíregyháza
1, 2: Forrás: Wikipedia
A cikk nyomtatásban megjelent az OCTOGON magazin 2015/3. lapszámában.
Ha tetszett a cikk, és szeretnél előfizetni magazinunkra, itt teheted meg.


