Kutyabarát épületen osztozhat ember és eb Thaiföldön.
A bangkoki EKAR Architects csapata a tervezési szakasz előtt alaposan feltérképezi a megrendelő igényeit, mindenkori szokásait. Ezt a rendszert alkalmazták akkor is, amikor a kutyaimádó thai család otthonát és a hozzá kapcsolódó, ebek és gazdáik számára kialakított hotelt álmodták meg. Az ügyfél kérésére a Doxhouse névre keresztelt ház kialakítása egyenlő mértékben kedvez kutyáknak és embereknek egyaránt.

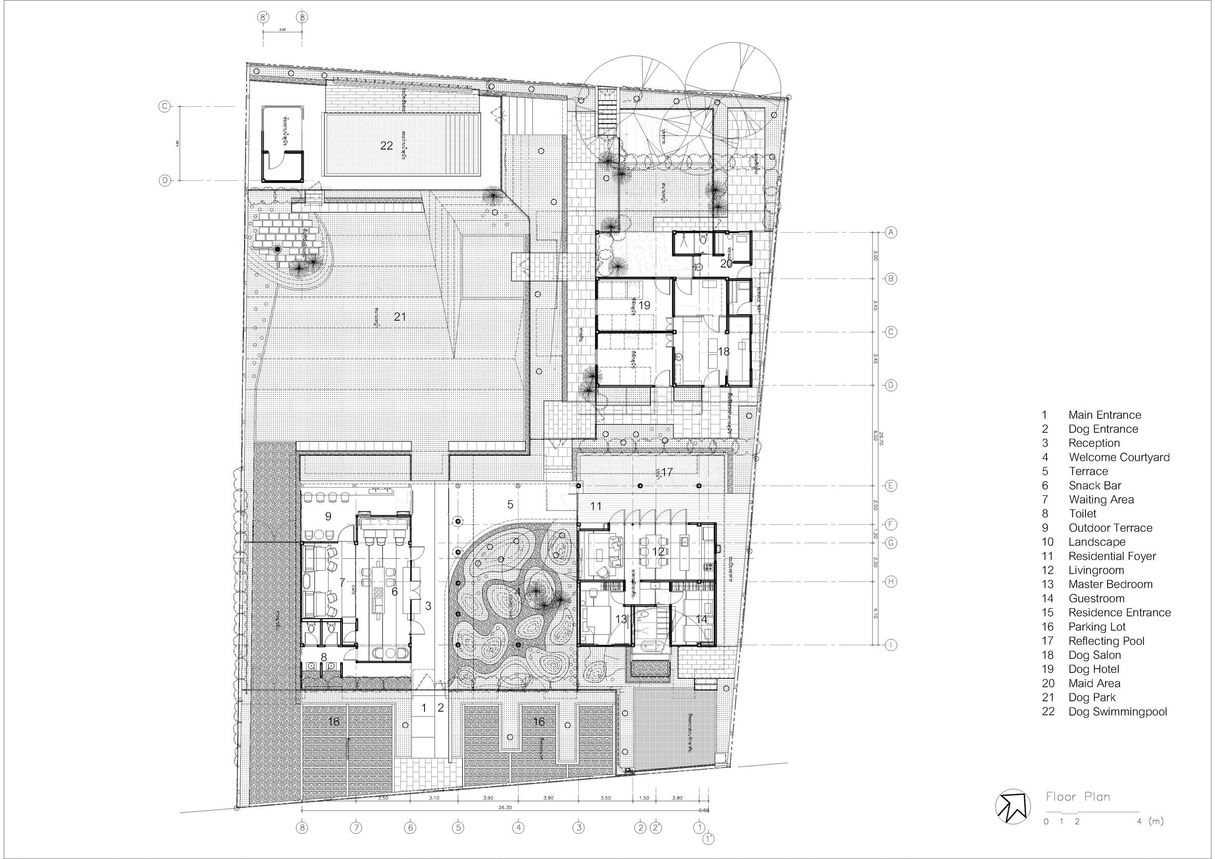
Az új otthonban kölyökkutya-gondozót, kutyaszállást és -szalont, valamint kutyafuttatót és -medencét létesítettek, ezt integrálták a klasszikus rendszerű, humán családi házba. Az épület műanyag és fém hullámlemez tetővel védett két volumene L-alakzatban fut össze a medence és a kültéri kutyafuttató körül. A négylábúak szekciója a ház északi, míg a megrendelők otthona a déli részt foglalja el. A közeli agrokulturális környezet hatására a tető pereme szinte a földet súrolja, ahol sűrűn elhelyezett, alacsony oszlopok tartják. A pilléreknek azonban nem csak ez a funkciójuk: szerkezeti szerepükön túl megteremtik az ebek számára a jelölés lehetőségét is.



„A kutyák, emberek és építészet közötti kapcsolatban létrehoztunk valamit, amit úgy hívnak, mérték. (…) A tető tisztán meghatározza, hogy hol tud járni, ülni, vagy épp merre lát ki az ember, és hol van az a kutyák számára elérhető rész, ahol ők futhatnak, fekhetnek” – részletezi a szakember. A ház déli oldala két különálló egységből áll, amit egy központi, parkosított kert választ ketté. Ezt a részt átlátszó, műanyag hullámlemez tető borítja, amin nyílásokat hagytak a magasabbra növő fák számára. Az udvarra néz a látogatók számára létesített váró, büfé és terasz, ahonnan rálátnak kedvenceikre.



A másik, „humán” tömbben kaptak helyet a tulajdonosi és vendég hálószobák, a nappali, az étkező és a konyha. A háznak ehhez a részéhez is kapcsolódik egy terasz, innen érhető el a sekély, kültéri medence. A ház egyszerű beton és acél szerkezetét mindenhol szabadon hagyták. A minimalista élettér meghatározó színe a szürke, az ablakkeretek és panelek anyaga sötét árnyalatú fa.



„A teljes design a kutyák és emberek viszonyáról, együttéléséről szól. A tér kialakítása közelebb hozza őket egymáshoz, lehetővé teszi, hogy közösen fejlődjenek, és sokkal elfogadóbbak legyenek a Föld többi élőlényével szemben is” – teszi hozzá az EKAR Architects. És valóban: akárhogy is nézzük, a Doxhouse paradicsomi körülményeket nyújt tulajdonosnak és négylábú családtagnak egyaránt.
EKAR Architects | Web | Facebook | Instagram
Forrás: DeZeen
További képek és rajzok a galériában!
Ha tetszett a cikk, és szeretnél előfizetni magazinunkra, itt teheted meg.


