Galambdúcnak nevezte a merész és különleges terveiről ismert Bord Építész Stúdió vezetője, Bordás Péter ezt a különleges alsóörsi nyaraló. Erről szóló írásunkat a 161-es, 2020/5-ös lapszámból közöljük.
Favázas szerkezetét tekintve tökéletesen illik e fantázianév a házra, ám inkább nevezném kilátónak vagy hasonítanám a középkori remeték, szerzetesek szirtfokra épített, egyszerre a világtól elzárt, másrészt a természet megfoghatatlan, lenyűgöző szépségére nyitott, a lelki elmélyülést szolgáló kolostoraihoz. Bár ma már nincsenek megközelíthetetlen, belakhatatlan helyek, mégis ennek imitációja fontos szempont akkor, amikor egy a családi együttlétre, elvonulásra, megnyugvásra, kikapcsolódásra szolgáló épület szerveződik. Ilyen ez a meredek hegyoldalon, zegzugos, tekervényes utcákon megközelíthető nyaraló.

A kis alapterületű, meredek lejtésű és szabálytalan formájú telek miatt az épület egyedi tervezést igényelt. A családi együttlét benső indíttatása mellett az elképesztő kilátás határozta meg a tervezést. Egyszerűen kiállni a hegyoldalba és csodálni a kissé lustán, mégis változékonyan elterülő hatalmas tavat, ennek a látványnak a birtokbavétele vezette az építészt. Kecses vázszerkezet, rengeteg a falat helyettesítő üvegfelület szolgálja azt, hogy a ház szinte bármely pontjáról a természet nagyszerűségét csodálhassák lakói. Még akkor is teljesen a természetben él, lélegzik a ház, ha nem a tó felé tekint, hanem az épületet övező buja, dús kertre, amelyből szinte szervesen nő ki a ház. E mesebeli kertben a tájra jellemző növények találhatók: levendula, mandula, délszaki, húsos levelű, mélyzöld cserjék.
A kíméletlenül meredek telken semmit nem változtattak, nem kezdtek átalakító földmunkákba, inkább az adott nehéz terepre, terepbe helyezték bele az épületet, kihasználva annak minden szabálytalan négyzetméterét. Ezért a ház tömegét egyetlen, a föld felett lebegő síkra, azaz egy hatalmas hajó fedélzetére szerkesztett, merészen ívelő nádtető alkotja. A hajó-szimbolika visszatérő eleme a tervezésnek, nemcsak a fedélzet-szerűség, hanem az árnyékolást biztosító, helyi vitorlakészítő mesterek műhelyeiben készült hatalmas, lebegő vásznak biztosítják. A „kapitányi hídról” (jelenleg háló) még pompásabb kilátás nyílik a Balatonra.

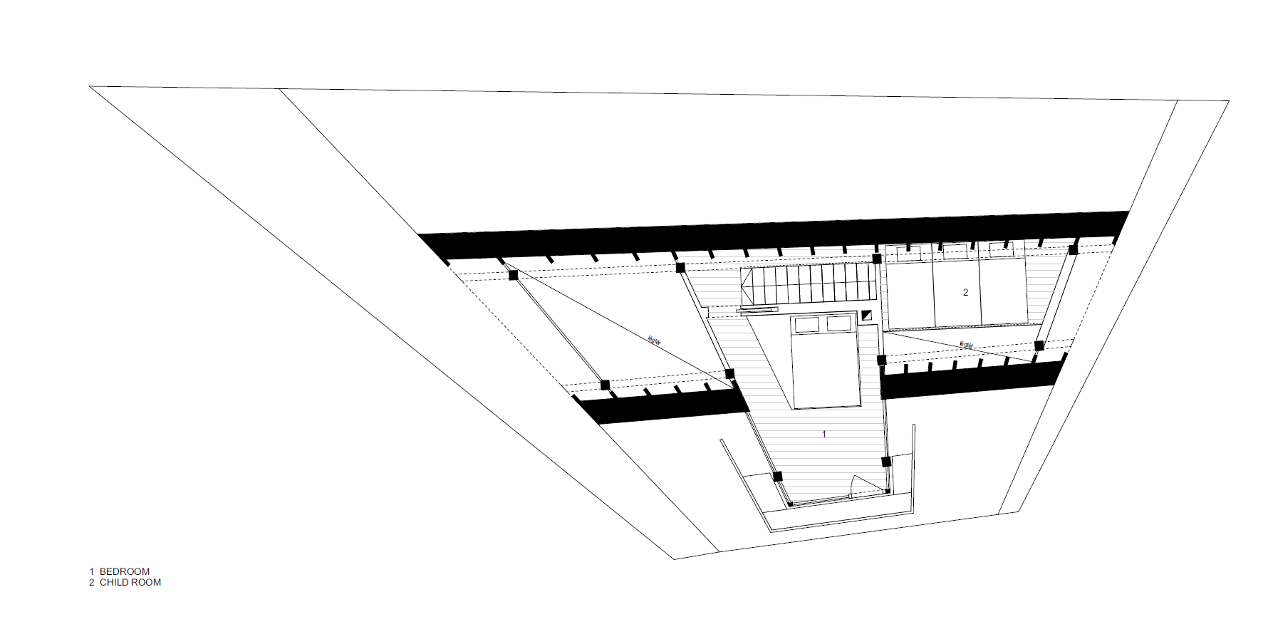
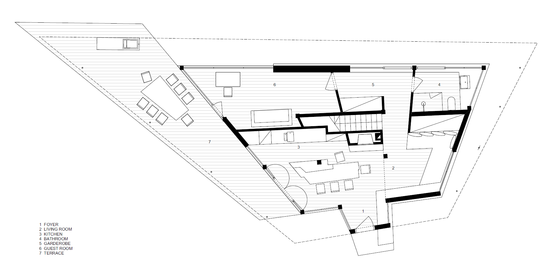
A ház belső kialakítása is a hajók praktikus designját és kabin-szerkezetét idézi meg. A belső egyetlen magas tér. A favázas tartószerkezet központi tere a konyha. Olyan benyomás keletkezhet, hogy az étkezés mint az összetartozás szimbóluma a központ, egy árbóc köré szerveződne. A belső tér vertikális játéka izgalmas, mesebeli hangulatot idéz. A nyolc méter magas térben felfelé tekintve a tetőszerkezet gerendái közt kis lebegő galériák, olvasósarkok, titkos búvóhelyek láthatók, melyekhez keskeny falépcsők vezetnek. Ezek a kuckók egyszerre alkalmasak részbeni elvonulásra, intimitásra, miközben szemmel tartható, elérhető a család. Másrészről az egyterűség lehetőséget nyújt a közös családi együttlétre, élményekre: mozizásra, társasozásra, nagy beszélgetésekre. Ezt a célt szolgálja a hatalmas nádtető alatt megbúvó árnyékos, hatalmas terasz is.
A nyaraló nem csak a telek adottságából adódó egyedi, különleges, a tradíciót a kortársi gondolatokkal ötvöző szerkezeti megoldásokra kiváló példa, hanem ebből fakadóan a belső térkialakítás, a bútorok is átgondolt koncepciót követnek. Az egyedi tervezésű bútorok, a visszafogott, natúr színvilág, valamint az óriási üvegfelületek szintén a ház alapgondolatainak megvalósulását szolgáljak: a kilátás felé irányítják a tekintetet, és kényelmes, praktikus környezetet teremtenek az intim családi együttléthez.

Egy építész saját lakásába, házába, nyaralójába, sőt irodájába betekinteni mindig érdekes és izgalmas, hiszen önazonosságának, elhivatottságának személyes tereit járhatjuk be. A BORD Építész Stúdió együttes munkája nyomán született alsóörsi nyaraló koherens, elkötelezett építészeti identitást tükröz: a terep adottságainak maximális kihasználásával, a jellegzetes helyi építőanyagok újszerű használatával a lokális tradíciókat követő, környezetébe illeszkedő, mégis modern épület született.
Tervezés éve: 2016
Átadás: 2017
Nettó alapterület: 118 m2
Generál tervezés: BORD Építész Stúdió
Felelős építész tervező: Bordás Péter
Koordináló építész: Kiss Dalma
Gépészeti tervezés: Hollókövi Zoltán (BORD Építész Stúdió)
Kert- és tájtervezés: Waldmann Andrea (BORD Építész Stúdió)
Világítástechnika: BE LIGHT!
További képek a cikk végén található galériában!
Ha tetszett a cikk, és szeretnél előfizetni magazinunkra, itt teheted meg.



