Az utcafrontról visszahúzott, megtört tömege hatásosan elkülöníti és felismerhetővé teszi az irodaházat. Erről szóló írásunk a 194-es, 2024/6-os lapszámból közöljük.
Dél-Buda arculata és hangulata jelentős átalakuláson megy keresztül az utóbbi időben. A folyót használó és kihasználó 19-20. századi iparosítás során hatalmas gyártelepek népesítették be a területet. A gazdaság átalakulása, az új kihívások ismételten változásokat generálnak a főváros ezen szegletében. A korszerűtlenné vált üzemcsarnokokban kulturális központok és startup cégek rendezkednek be, a felszabaduló területekre hazai és nemzetközi ingatlanfejlesztő cégek álmodnak új épületeket. A fejlesztések két területre koncentrálnak: lakóházak és korszerű, a 21. századi gazdasági kihívásoknak megfelelő irodaépületek létesülnek az övezetben. Utóbbira példa az Artonic Design teljeskörű jogutódjaként működő ArtOne Architects iroda most elkészült munkája.
A belga ATENOR ingatlanfejlesztő cég negyedik budapesti projektjeként valósult meg ebben a dinamikusan átalakuló övezetben a BakerStreet irodaház. Nehéz műfaj, hiszen számos igénynek kell megfelelnie: a szabályozási tervek, az esztétikai követelmények, a környezettudatos megoldások és a szigorú költségvetés, valamint a megtérülés komplikált feladat elé állítja az építészt. E rendkívül bonyolult helyzet egy sikertörténete a BakerStreet-komplexum. A siker titka pedig a rugalmasság, a folyamatosan újra- és átgondolt megoldások, az észszerű kompromisszumok megtalálása.

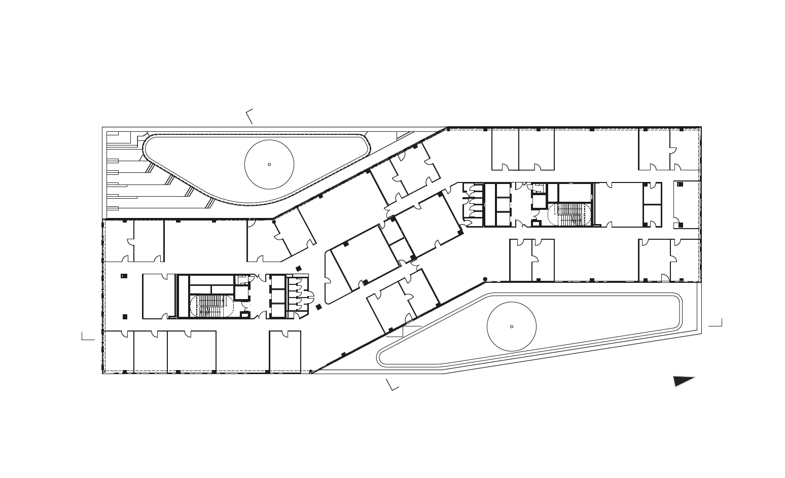
Ráközelítve a területre (Szerémi út – Hengermalom utca találkozása) látható, hogy a fejlesztés egyszerre illeszkedik és reflektál a Kopaszi-gát természettudatos rekreációjára, és a MOL Campus körüli irodaházakra. Tovább közelítve a területre figyelembe kellett venni a kerületi szabályozási tervet, amely jelentős zöldterületet, zöld-szigetet vizionált. Vagyis úgy kellett megtervezni az épületet, hogy a zöldfelület ne sérüljön és hozzáférhető, kellemes közeget teremtsen a sűrű beépítések között.
A hozzáférhetőség demokratikus elve is fontos szerepet játszott az épület tömegstruktúrájának a kialakításában. A Váci úti irodafolyosó sikeres megoldása a földszinti részen a nagyközönségnek megnyitott épületek, amelyeken keresztül gyorsan, kényelmesen és kulturált, kellemes környezetben elérhetőek a főútvonalról a környező mellékutcák lakóházai, illetve változatos kínálatot biztosítanak az átjárási útvonalak mentén sorjázó üzlethelyiségek. Logikus, praktikus mikro-városszervezési idea, amely könnyebbé, zökkenőmentesebbé teszi a lakosság életét. Ennek a megképzett városi térnek a gondolata jelenik meg tudatosan a BakerStreet irodaházon, amely határozottan kommunikál a környezetével. A viszonylag keskeny saroktelken a megtört és részben behúzott épülettömb a korábbi egyszerű útkereszteződésben valódi markáns városi teret alakít ki. Az így keletkezett törésvonal tökéletesen illeszkedik a szabályozási tervhez, megnyitja az átjárási lehetőséget a már kijelölt zöld folyosóhoz.

A (vásár)tér a (templom)tér történeti tekintetben lényeges térszervező erői a városnak mint településformának. Ez az a hely, ahol a városi közösség találkozik, portékát és eszmét cserél. Az átalakulás során születő új városrész építőkockáit lerakó tervező éppen azt a mélyebb strukturális gondolatot értette és jelenítette meg az irodaház kialakításakor, amely a korábbi ipartelepi, egyszerű négyzethálós struktúrát a 21. századi városi térhasználat követelményeihez igazította. Gesztusával az irányok diagonálisan is megnyíltak, a tér kitágult, átjárható, hozzáférhető, levegős lett. A munkára koncentráló, nyugalmat követelő irodaház felső szintjei teljesítik ezt a funkciót, míg földszintje mozgalmas, dinamikus, élettel teli közösségi tér.

Ezt a funkcióját és a zöldfolyosóval való kapcsolatát erősítik a dombokká megemelt, növénnyel borított felületek, az elültetett fák, bokrok frissessége. Egy konkrét fa jelenléte pedig rámutat a tervezés még egy markáns és érdekes megoldására, az előtetőre. Dinamikusan könnyed formájával kiemeli és megkülönbözteti az épületet a környék más architektúráitól, miközben a földszinti városi közösségi tér funkcióját erősíti – az egyre melegedő klímában enyhülést, védelmet nyújt az „átjáróknak”. Kecses, áttört formájába belenőhet a fa, idővel a vertikális tagolódás látványát pedig majd erősítik az égbeszökő fatörzsek. A plasztikusan áttört, mozgalmas előtető-megoldás (alatta zöld szigettel) kifejezetten kimozgatja a szigorú funkciójú és homlokzatú irodaházat.

A ház dinamizmusának legfőbb hordozója a tömegformálása. Az utcafrontról visszahúzott, megtört tömege hatásosan elkülöníti és felismerhetővé, összetéveszthetetlenné teszi az épületet. Ezt a játékos és különleges gondolkodást mutatják még az egyik utcafronton szabálytalanul kialakított loggiák, amelyek főleg a szigorú homlokzati struktúra ellenpontjaiként jelennek meg. A tervezők nemcsak a megtört formával, hanem a homlokzat sűrítés-ritkítás dinamikáját követő ablakkiosztásával is igyekeztek visszafogott mozgalmasságot vinni az épületbe. Világos homlokzati színei szintén a légiességét, könnyedségét, áttörtségét erősítik az épület megjelenésének. A BakerStreet irodaház határozottan és tudatosan és egyben kreatívan mutatkozik meg és alakítja át közvetlen mikrokörnyezetét, s egyben elegáns, hatásos példát ad a folyamatosan fejlődő, átalakuló dél-budai városrész újraformálásához.
Tervezés éve: 2019 – 2021
Átadás éve: 2024
Nettó/bruttó terület: 27360/31120 m2
Beruházó: ATENOR
Generáltervező: ArtOne Architects Kft.
Építész vezető tervező: Szőkedencsi Géza, Orlovits Balázs
Építész munkatársak: Kincses Ildikó, Lukács-Klein Andrea, Kiss Gábor Ádám, Krasznainé Csernai Krisztina, Lázár Dóra, Lukács Péter
Belsőépítész vezető tervező: Páll András
Belsőépítész munkatárs: Takács László
Iroda belső, fitout: MádiLáncos Studio Kft.
Környezettervezés: Majoros Csaba
További képek a cikk végén található galériában!
Ha tetszett a cikk, és szeretnél előfizetni magazinunkra, itt teheted meg.



