Erről szóló cikkünk a 81-82-es, 2010/8-9-es lapszámunkból közöljük.
A budai agglomerációban álló épület mellett nem lehet elmenni szó nélkül, oly mértékben különbözik a vulgármodern épületek tömegétől, amivel a környéken találkozhat a szemlélő. Nevetve meséli a tulajdonos, hogy szinte mindenki megáll egy pillanatra a ház előtt, és ki kíváncsian, ki egy kis felháborodással szemléli az antracit-krómsárga burkolatot, vérmérséklettől függően kéretlen tanácsokkal is ellátva a tulajdonosokat. (Ugye ez még le lesz meszelve? - kérdezik a konzervatív ízlésűek.)
Pedig nem, nem lesz. Ez a tudatos színválasztás egyfelől belehelyezi a tájba a házat – távolról nézve szinte feloldja az épületet a környező dombokban –, ugyanakkor a környéken uralkodó szeles időjárásra adott reakció, válasz a világos falfelületek legnagyobb ellenségére, a porra, az elkerülhetetlen koszolódásra. Tudatos volt a tulajdonosok választása, hiszen ez a színtónus volt az egyetlen, amely kellőképpen kiemelhette a tető- és homlokzatburkolat patinás jellegét és játékba hozta annak elemeit. A speciális, átszellőztetett homlokzatburkolatot egyébként a változatos táblaméreteknek köszönhetően minimális hulladékveszteséggel tudták kivitelezni. A ház külső burkolata nem csupán esztétikus lett, de a ház energetikai rendszerében is fontos szerepet tölt be.

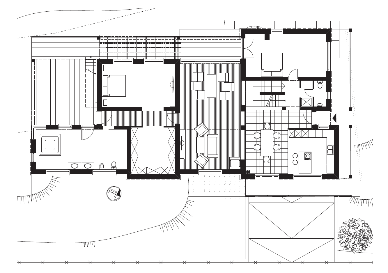
A dekonstrukcionalista formaképzés a telekadottságok reflexiója, a beépítési lehetőségek kihasználása egy elkeskenyedő telken. Az utcára néző hosszanti homlokzat három eleme, a fő épülettömb, az elnyúló oldalszárny, és az utóbbi síkjából kiugró, félnyeregtetejét hangsúlyosan megtörő kubus – töredezik szét a kert felé forduló intim oldalon. Terasz és a hatalmas üvegfelületek nyitják meg a teret vizuálisan a kert felé, míg ajtók és lépcsők kapcsolják össze a humán tereket. Külön figyelmet fordítottak a tervezésnél az emelet diszkrét megközelítési lehetőségére, ha a gyerekek megnőnek, meglegyen a lehetőség saját privát szférájuk kialakítására, így az épület használati időtállóságának a fokozására.
A belső terek színvilága és formarendje hangsúlyozottan elválik a külső látványtól. Uralkodik a fehér és a derékszög, de finoman ellensúlyozza kíméletlen ridegségüket a mintás tapéta, az azúrkék megjelenése a drapériákban, a bútorokon. A csillár szertelen vonalvezetése ebben a térben méltó helyre kerül, akadálytalanul bontakozhat ki, és önnön formájába zárt szabadságával tovább oldja a lakótér hangulatát.

Azonban a belső legnagyobb értéke nem a formák egyensúlya vagy valamilyen színharmónia, hanem a mindent átjáró természetes fény. Délelőtt az utcai homlokzat ablakain keresztül kap világítást a tér, a nap második felében pedig a kert felé néző homlokzat üvegfelületein beömlik a délutáni nap fénye, ami akadálytalanul haladhat tovább, élettel telivé téve a lakórészeket. A nyeregtető belső ferde oldala mint óriási fényvető szórja szét és szelídíti meg a pászmákat. Ennek a célnak rendelték alá a külső teraszra vezető és egyben az emeleti munkaszintet a mosókonyhával összekötő folyosót, melynek üveg korlátja és járólapja nemcsak átereszti a világosságot, de prizmaszerűen természetes szivárványt is varázsol a falakra. Szükségből erény.
Az oldalhomlokzati bejárattól induló tengely rendezi a földszinti alaprajzot, melynek nyilvános és privát tereit nem nyílászárók, pusztán jelzésértékű keretek választják el. Ezek méretbeli eltérése nem tudatosul, de hasonlóságuk miatt a bejárati ajtóból nézve perspektivikus torzulás lép fel, megnyúlik az épület. A tengely vége feloldódik, egy üvegajtó vezeti ki a tekintetet a kertbe. Az axis alaprajzi feloldása, a fürdőszoba, mely párhuzamosan fut vele, tőle balra, és ajtókkal nyitható a kertre, a szabadtéri medencére, összekapcsolva a külső és a belső vizeket.

Az egész épület rendkívül környezettudatos, a tulajdonosok számára alapvető fontosságú volt a fenntarthatóság. A természetes fényre való nyitottság egyben a hőfelvételt is szolgálja a téli hónapokban. Nyáron a beállítható árnyékolók gátolják meg a túlzott felmelegedést. Megújuló energiaforrásokat használ a ház: hőszivattyú, napkollektor segíti a zöld-energia hasznosítását, intelligens vezérlés támogatja a padlóba és a plafonba rejtett hűtő- fűtőrendszer minél gazdaságosabb üzemelését. És nemcsak a ház, de lakói is tisztelik a természetet: szelektív hulladékgyűjtéssel, újrahasznosítással csökkentik a környezetre gyakorolt negatív hatásokat.
Az épület a legapróbb részletekig tudatos. A gépészeti elemektől a formaképzésen át a színválasztásig. Lehet, hogy éppen ezért olyan kikerülhetetlen. Nem lehet elmenni mellette szó nélkül.
Tervezés: 2006 – 2007
Átadás: 2010. szeptember
Telekterület: 1216 m2
Beépített alapterület: 240 m2
Hasznos alapterület: 350 m2
Tervező: Karé Krisztián, Erdei László; HNA design – Hujber-Nagy Aletta, Nagy Károly
Kerttervezés: HNA design – Hujber-Nagy Aletta, Nagy Károly
További képek a cikk végén található galériában!
Ha tetszett a cikk, és szeretnél előfizetni magazinunkra, itt teheted meg.


