Kortárs elemekkel bővítettek ki egy vályogházat Velencén, megőrizve az eredeti hangulat és technológia előnyeit. Erről szóló írásunkat a 193-as, 2024/5-ös lapszámból közöljük.
Nyár van, 38 fok. Budára tartok a vonatállomás felé, hogy a szóban forgó házat megtekintsem. Gyalog megyek, de körülbelül minden második méteren kondenzvíz csöpög a fejemre. Mindenki járatja a klímát, amit persze illegálisan szereltek az utcaképileg védett főhomlokzatokra. Gyors megoldás ez a melegre – karbantartani magát a klímát azonban már nem sikerül a csöpögés szerint, ahogy azzal sem törődik senki hosszú távon, hogy e gépészettel csak még nagyobb meleget generálunk jövőre.
Karbantartás. Ez egy kulcsszó a fenti bekezdésben. Hívhatnám „törődésnek”, „gondozásnak” is, amely egy háznál magától értetődő kell legyen, bármennyire nem szeretnénk a legmodernebb technológiával, szigeteléssel ellátott családi otthonokhoz sem hozzányúlni vagy 20 évig. A halogatásnak ugyanis ára van, és kamatostul dől ránk vele a következménye. E megspórolni kívánt törődés miatt szorult háttérbe modern 21. századunkban a vályog építészeti kultúrája is. A téma ugyan hot topic – mindenki együttérzően bólogat is környezetbarát megoldására, ám a támogatók többsége köszöni szépen, e kalandba azért ő maga nem vágna bele, ha saját építkezéséről lenne szó.

Az ilyen házak ugyanis tudniillik lélegeznek, tágulnak, zsugorodnak, ami repedéseket von magával. Ez hajdan alaptudása volt a mindennapoknak, maga az építőanyag is a környékről származott, hogy a javításokat helyben lehessen eszközölni. Az állandó gondozás túlhajtott világunkban tehernek tűnhet, csakhogy amit az ember nyer vele a másik oldalon, az nagyon is számottevő. Bevállalós személyiségekre van szükség, hogy sarkalljanak minket az efféle kalandokra, látványos minták állítására pedig ideális lehet egy község történeti ófalujának kis vályogháza is. Pontosan egy ilyen megmentésére és mai újragondolására vállalkozott egy építész pár is esetünkben.
Pusztán a bátor szellem azonban nem mindig elég, a vevőn túl legalább ilyen sok múlik az eladó személyiségén és felelősségén is az értékmentéshez. A tulajdonosok – bár volt nagyobb ajánlattevő – mégis úgy döntöttek, hogy inkább hőseinknek adják el a vályogfalas kincset. Furcsa, de léteznek még ilyen történetek – az épületet ugyanis az eladók nagyapja emelte még, míg a másik vevőnek egy befektetési célú társasház építése érdekében első dolga lett volna bontani a régi házat. Egy otthont, amelyben lélek, több évnyi munka, értő és gondos kezek emléke van, nem mellesleg a település számára is kulturális érték.

A veteményes és a tornácos ház között egy burjánzó vadregénynek is megmaradt méretes helye virágaival, páfrányokkal, bokrokkal, szinte biotópként. Ezt az élővilágot még az eladók nagymamája ültette, közepén pedig ott áll az egyik nagyon fontos szereplő: a jó vízellátású kút. Ő az egész kert öntözését biztosítja, és a teljes épület be is szívja ennek hűsét este, hogy 4-5 fokkal kellemesebb hőmérsékletet nyújtson nyáron. Nem mintha a beltér ne lenne amúgy is kellemes a melegben – ezt egy vályogház gépészet nélkül is tudja hozni.
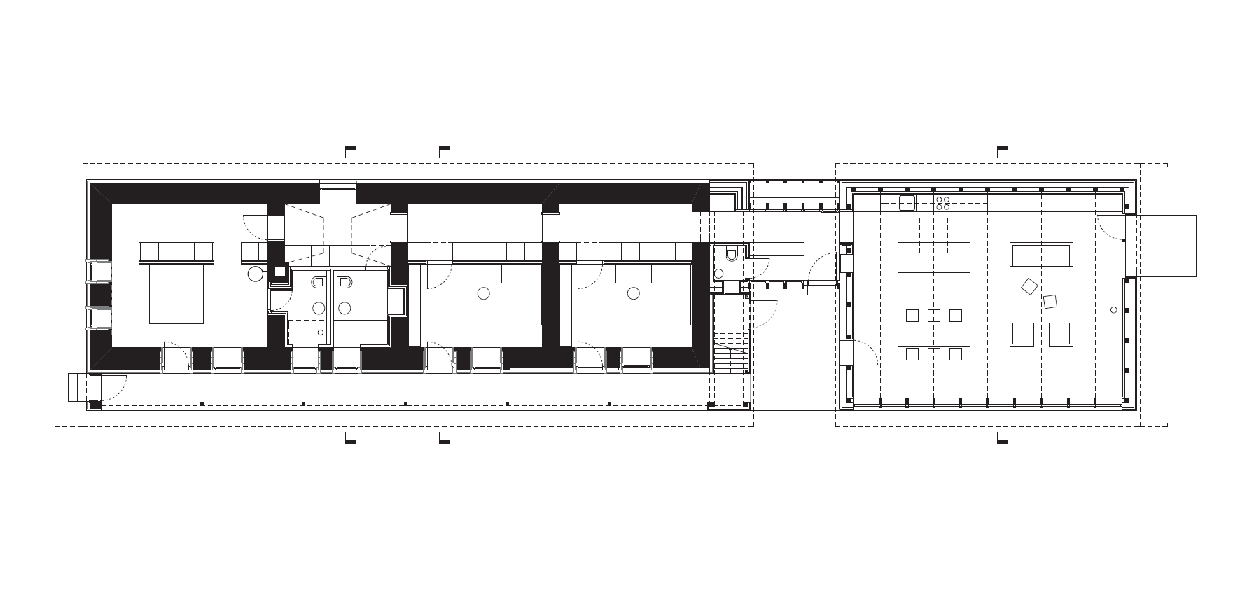
A „Öregházban” megőrizték az eredeti (háromosztatú + kamra) szobaosztást, nyugatról azonban létrehoztak egy közlekedő térsort egy új „okosfal” behúzásával. A szobáknak így is maradt elég komfort-szélesség, valamint ehhez az elválasztóhoz be tudták építeni az összes tárolót és rejtett kábelezést is. Tudatosan tehát a tényleges vályogfalakhoz sehol nem ér semmi, és cementalapú vakolat helyett eleve meszelve van felületük, a kültéri vakolat is vályog, úgyhogy a páradiffúzió zavartalanul működhet.

Ha hűtésre nem is, vizesblokkokra és annak gépészetére szükség volt, így minden ilyen helyiséget egy magba csoportosítottak a koncentrált beavatkozáshoz. Az elülső tisztaszoba után két vizes helyiség, valamint a mosókonyha foglal helyet, utóbbi ráadásul vagány és kortárs módon idézi meg az egykori kürtőt. Tetejét motorosan nyitható és árnyékolható ablak koronázza és amikor az a fényt beengedi, a hosszú folyosó fényhatása valami egészen váratlan, kisebb palazzók enfilade-jai juthatnak róla eszünkbe.
Ezt a karaktert fűszerezi meg az eredeti (!) robusztus fafödém, amit csupán lenolajjal kellett kezelni a felújítás során, 120 év elteltével különösebb probléma ugyanis nem volt vele. Az otthonos bútorok és a svéd fapadló mellett a nyílászárókat érdemes még kiemelni: egy eredeti tanúablak alapján tudták végigvinni minden szoba nyílását és fakeretezését is. Az ablakok mélységeiben hempergőzni lehet a 75 centiméteres falvastagság okán, emellett minden szoba közvetlen ajtóval nyílik az új tornácra.

Az itt élő család minden tagja hozzátett és tesz az épülethez: a feleség mint tervező, aki a gondolatokat elindítja, a férj mint építő, akinek a keze alatt megvalósulhatnak az elképzelések, a gyerekekkel kiegészülve együtt pedig mint tudatos és gondos használók. A lélegző ház megismerését, karbantartását, növényeinek éltét tehát minden nap együtt viszik tovább – e ház szó szerint lélegző élete ugyanis a tervezés és kivitelezés után kezdődik csak igazán.
Azonban. Mivel az Öregház megtelt a lakótérrel, létre kellett hozni a korabeli vendégvárás, azaz a régi tisztaszoba új változatát is. Ez egy hozzáépítéssel született meg, benne korunk modern attribútumaival díszes szőttesek helyett. A kortárs éleké, az egyszínű marmoleum padlóé és az üveghomlokzaté itt a főszerep. Homogén fehérség uralkodik, mely alól kibújnak a fa tetőszerkezet kötőgerendái, ahogy a modern konyha burkolatán is feltűnőek a megmentett műkőlapok. Ebben az osztatlan térben érezzük igazán, milyen nagy a vályogház hőtároló szuperereje. Transzparens homlokzata a hátsó kerttel teremt kapcsolatot, és az öreg, nagy diófa védett árnyékot is ad a benapozottság mellett. Az üveghomlokzat nem nyitható, úgyhogy az „Újház” egy kisebb ajtóval és terasszal kötődik a gyümölcsfák felé, ahol az északi szelek átsuhanása áldást jelent a tér számára olykor.

A kinti terasznak és minden külső burkolatnak murvás fehér csiszolt beton a matériája, mely szépen kommunikál a bővítés fehér pigmenttel kevert, olajozott faburkolatával. A hátsó homlokzaton ez a lécezés végigfut vertikálisan az oromzat csúcsáig, aszimmetrikusan elhelyezett nyílásával együtt pedig ez a nézet főhomlokzati erővel bír; szépségével itt teljesedhet ki igazán az új kor új fejezete. Feltűnő az Újház bádogozása is, főleg annak magas tarajépítménye, melyre a nagyobb légréteg miatt volt szükség.
Ez a jegy az Öregházon is végigfut, mivel a koncepció az volt, hogy olyan legyen, mintha kettejük tömege csak félbe lenne vágva. Köztük egy nagyon elegáns nyaktag teremt minél kisebb méretű összeköttetést, ez afféle kortárs pitvar, egy előszoba a lakótér és a közösségi tér között. Ötletes belsőépítészeti megoldásai között kitűnik a vadszőlővel befuttatott bevilágító a szomszéd felől, ahogy az üveghomlokzata előtt elterülő kis terasz is gyönyörű a növénnyel borított pergolájával.

A kört bezárva ki kell lyukadnunk újra az Öregház elemzésénél, csak ezúttal a külsőhöz érünk: hiába van szó olyan felújításról, amely nem keres túlzó vizuális konfrontációt modern részeivel, egy-két kortárs geg így is meghatározó. Merészségnek tudott felületet adni például a kerítés. Egy szegmensében ez kézzel kevert, rétegelt betonból épül fel, amely egy kültéri tárolót is rejt maga mögött. Az utcafrontról a dús növényzet, a bokrok, a futónövények tűnnek még elsőként fel, amelyek az egész családi otthon koncepciójának az építészeti faktorokkal egyenrangú résztvevői tulajdonképpen.
Mellettük azért felfedezzük a főhomlokzatot is, melynek megőrizték régi tornác ajtaját, a spalettás ablakpár kávái és a padlásnyílások viszont modern betonkeretezést kaptak. Ráfókuszálva még azt is látjuk, hogy profilozott a kialakításuk, csakhogy még precízebb részletekkel nyűgözzék le a járókelőt. Valami tényleg komoly újdonság mindig a régiből való okulásból, annak tiszteletével szokott születni. Most sem lett ez másképpen – ilyen speciális házakat ismerő tervezőktől tanulva remélhetően többen is merünk majd ehhez hasonlatos kalandokba vágni.
Tervezés éve: 2017-2019
Kivitelezés/átadás éve: 2019-2024
Nettó terület: 154 m2
Bruttó terület: 273 m2
Építész vezető tervező: Bordás Mónika
Építész munkatársak: Bordás Tamás
Belsőépítész vezető tervező: Bordás Mónika
Belsőépítész munkatársak: Bordás Tamás
További képek a cikk végén található galériában!
Ha tetszett a cikk, és szeretnél előfizetni magazinunkra, itt teheted meg.


