Cikkünk a 202-es, 2025/6-os lapszámunkból közöljük.
Megfogadtam, hogy nem írok többet lakópark beruházásokról. A 201-es lapszám szerkesztőségi cikkében kifejtettem már átlag millenniálként, miként lamentálunk korosztályommal a hazai viszonyokról. Az építészek felelősségvállalására, etikai szerepvállalására ott nem tértem ki nagyon, hisz a tervezők helyében nem vagyok. Nem kell fenntartanom egy tucat vagy akár 100 emberből álló irodát, nem kell megküzdenem a beruházói, excel-tábla stratégiákkal sem.
A most tárgyalt lakóberuházást a fogadalmam ellenére azért vállaltam el mégis, mert pont e felelősség témáját boncolgatja első ránézésre. Demeter Nóra a személyes beszélgetésünket rögtön saját, markáns véleményével is ütötte fel a hazai lakáshelyzetről, amely rögtön beigazolta kíváncsiságom legitimitását: a Lake 11 esetében pontosan arra akartak rámutatni a Coldefy tervezőirodával, hogy a bürokratikus, szabályozási és profitorientált hangsúlyok mellett az építésznek igenis van lehetősége ügyesebben járni a kompromisszumok kötéltáncát.

Demeter Nóra az Egyesült Államokban nőtt fel, ott tanult, most is tagja az Amerikai Építész Szövetségnek (AIA). Az AIA révén ismerkedett meg egy másik nemzetközi téren mozgó, ám Magyarországon letelepedett építészünkkel, Zoltán Nevillel, a Coldefy francia iroda egyik vezető tervezőjével. Pontosan két ilyen világlátott személy kell, hogy kicsit más modor üsse fel fejét az álló vízben. Ezt nem elitista kijelentésnek szánom: a közegen kívüli szemlélet egyszerűen inspiráló, nem pedig kioktató lehet egy magyar tervező számára.
A Demeter Design Studio a maga belsőépítészeti filozófiájával úgy akart közelíteni egy ilyen feladathoz, hogy ezúttal az emberek élettere ne szoruljon második helyre, hanem a profittal egyenrangú tényezőként törekedjen helyzetbe kerülni. Ehhez a Coldefy tapasztalata nyújtotta az urbanisztikai – és hát a sokszor elhanyagolt – infrastrukturális koncepciót. Kettejükhöz harmadik pillérként a hazai szabályozási környezetben és komplex műszaki projektekben rutinos játékos is kellett – ez lett végül az Ötelem iroda.

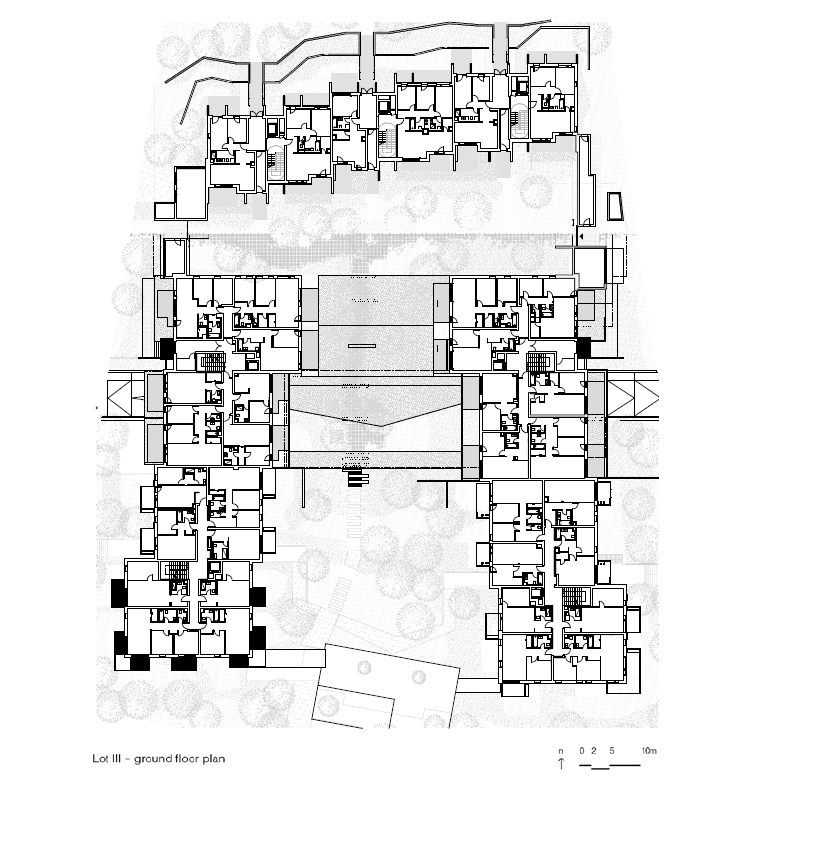
Felkutatva a projekt honlapját, elsőre talán kihívást jelent kiigazodni a területen és az ütemeken, így következzen egy gyors összefoglaló. Budaörs mellett, a Kána-tó mentén járunk, amely mellett már felépült a nem túl örvendetes sorsra forduló Tóváros Lakópark a 2000‑es években. Az előző tulajdonos hat ütemben gondolkodott, amelyet a 2008-as válság akasztott meg. A hitelező bank visszavette az ingatlant, amelytől az Atenor vásárolta meg a még üresen álló mintegy 8,2 hektárt.
A DDS és Coldefy irodák részt vettek, hat irodával együtt egy meghívásos pályázaton, ahol a megbízó az egész terület beépítésére várt válaszokat. A telek Budaörs felé néző határán éppen ezért lehetnének magasházak – hiszen mégis csak van egy városi veduta azon irányba is –, míg az ellenkező nézetet már a Kőérberek és a Kamaraerdő látványa uralja. A magasházak falától a tó felé ily módon lépcsőzetesen csökkenő architektúrák következnek, melyek egy-egy belső parkot fognak közre.

Közvetlenül a tó előtt, a Kánai út mentén a harmadik típus, az úgynevezett villa-tömbök válfaja sorakozna a természet felé legideálisabb kilátásokkal. A három épületfajta fokozatos magasság-süllyedése mindegyik tipológiának panorámát tud átengedni, különbözőségük pedig a „copypaste” szemléletű lakóparkoknak mutat tükröt. A pályázat alapján az Atenor négy építészirodának adott megbízást. A Demeter Design Studio-Coldefy 175 lakást tervezhetett meg a projekt indító épületeiként, így tulajdonképpen a fejlesztés irányadói, arculati elemei lettek. A beépítés megőrizte a pályázatban rögzített elveket.
Az elképzelésük meg is valósult, így a Budaörs felőli határon egy magasház-falsort látunk, de szokatlan tömegjátékokkal. Pontosabban mondva csak számunkra szokatlanokkal. Ha közelebbről megnézzük, eszünkbe juthatnak róluk Európa északnyugati országainak keskeny, vertikális történeti házsorai – csak éppen modern absztrakciókban. Ez a vertikalitás teret enged a tömegek előre- és hátraléptetésére, egy megmozgatott tagolásra, a kapafalakkal fény-árnyék hatásokra.

Ezen felül a szokásos lakásalaprajzok helyett a felső szinteken duplexeknek is kiváló ez a felépítés. A típus hazánkban még mindig nem terjedt el, leginkább a Coldefy francia attitűdje érhető velük éppen ezért tetten, pedig amúgy rengeteg előnye van. A poszt-COVID megmutatta, hogy a lakások tervezése teljesen átalakult napjainkra: sokunknak a munkahelyét is itt kell berendezni, a szétválasztás térben, de leginkább elmében pedig nem is olyan egyszerű. A duplex teret ad változatosabb belmagasságokra, jobb akusztikai hatásokra, és a szintkülönbség ezt a többrétű „leválasztást” is tudja segíteni.
A második épülettípus a csökkenő magasságokkal rendelkező, különböző homlokzati osztású lakótömb-csoport, amely a szintkülönbséget lekövető látványos park köré szerveződik. Ezen lakások esetében inkább a családi modellben gondolkodtak. Lélegző otthonérzet és térszervezés, több oldali megnyitások, a belülről kifelé haladó tömegfelépítés jellemzi őket. Unalmas, hosszú és sötét belső folyosó helyett az allék lekövetik a lépcsőzetes struktúrát.

A formák megmozgatása mellett jó ötlet volt a külső burkolatok heterogenitása is. Első pillantásra zavarosnak hathat, de elrendeződik a dolog fejben: a monotonitás megtörése vele a cél, a figyelem és felfedezés folyamatossága pedig a patinát is segítheti a jövőben, másrészt valóban kilépünk a kaszárnyaszerű, egymás után ismétlődő lakóparkok sivárságából. Ezt tetőzi a park tarkasága is biodiverz kertekkel, ami szintén jóleső világ a csupa gyepszőnyeg és egy-két csenevész fa ültetése helyett.
A váltakozó magasságokat igyekeztek egy egységgé kötni különböző nyaktagokkal, lapostetős, földszintes közösségi épületekkel. Mindegyik építésziroda célja volt ugyanis, hogy a lakófunkción túl egyéb szolgáltatások is szépen lassan befészkelődjenek a lakótömbök közé, hiszen ez a záloga egy élő, szinergiában lévő közösségnek. Ez úgy tűnik, sikerült is, legalábbis már nyílik az első kávézó, ahogy az épülő Kánai út is szép lassan lüktető promenáddá fogja kinőni magát, összeköttetésben az épületek közötti park sétányaival.

Az út túloldalán viszont elérkezünk a harmadik fajta épülettípushoz. Nem érdemes mellébeszélni – itt nyilvánvalóan a felsőkategóriás lakások értékesítése zajlik a legszebb kilátásokkal, szintenként egy-egy óriási ingatlannal. A tömegek síkjai meg vannak mozgatva, táncoló födémek segítik a mögötte lévő házak számára is a zöld látvány csatornáit megnyitni. A homlokzatokon átszellőztetett szálcement homlokzat, valamint textil árnyékoló jelenik meg, ami eltér a szokványos, fém lamellás megoldásoktól.
A többrétű tipológia, a sokszínű anyagválasztás, a tömegek és fény-árnyékok variálása, a szintkülönbségek, valamint a kerti növények tudatos ültetése az életminőséget helyezték jelentős súllyal a mérlegre, amelynek a profit ül a másik nyelvén. Ehhez persze kellett egy olyan beruházó is, aki akként maradt intelligens, hogy az irodapiac mellett valójában csak most teszi első lépéseit a lakóberuházások terepén. Egyszerűbb lett volna egyforma házakat tervezni és építeni. Egyszerűbb lett volna mindez kivitelezési szempontból is.

Egyszerűbb lett volna a 175 lakásnál alig pár típust kidolgozni majd’ 30 helyett. Egyszerűbb lett volna végig mélygarázst építeni, nem csak a lejtős terep magas szintjén, hogy aztán máshol se lehessen nagy és idősebb fákat nevelni. Egyszerűbb lett volna a biodiverz kert helyett végig angol pázsittal letudni a zöldet. Sok mindenben meg lehetett volna alkudni. Reméljük a jövőben a konkurenciának már érdeke is lesz, hogy kövesse az ittenihez hasonló alkotókat, akik nem az egyszerűbb, hanem a bonyolult utakat választják.
Tervezési év: 2021 – 2022
Kivitelezés éve: 2023 – 2025
Alapterület: c. 20.000 m2
Generál tervező: Demeter Design Studio
Építész tervező partner: Coldefy, Ötelem Kft.
Felelős tervező: Demeter Nóra (Demeter Design Studio)
Vezető építész: Zoltán Neville (Coldefy), Dobráńyi Ákos (Ötelem)
Projekt vezető építész: Kern Anita (DDS), Romhányi Tamás (Ötelem)
Építész- belsőépítész -DDS: Fehér Ibolya, Jobbágy Ágnes, Leits Miklós, Nenad Zoric, Pásztor Ivett, Polgár Tibor, Csigó Ákos, Dobó Magdolna, Majercsik Laura, Salgó Eszter, Simon Edina, Török Fanni
Építész- Ötelem: Parizán Borbála, Szász Judit, Csernák Dóra, Korompay Örs, Orosz Helga
Statika: Bimbó Gábor
Gépészet: Nógrádi Péter, Gast Gábor
Elektromos: Hegedűs Zoltán, Szelik Zsolt
Tájépítészet: Urban Concept, Kontra Dániel, Király-Salgó Borbála
További képek és rajzok a cikk végén található galériában!
Ha tetszett a cikk, és szeretnél előfizetni magazinunkra, itt teheted meg.


