Az új létesítmény a szabadtéri piac műfaji kereteit a lehetőségek határaiig kitolva igyekszik kihasználni a rendelkezésre álló, korlátozott helyet. Erről szóló cikkünk a 195-ös, 2024/7-es lapszámunkból közöljük.
Pécsett jelenleg négy jelentős termelői piac működik, nagyjából a meghatározó városrészek szerinti elosztásban. Az utóbbi öt év során a város jelentős erőfeszítéseket tett ezek rehabilitációjára, bővítésére.
Az Uránvárost ellátó Hajnóczy utcai piac felújítása kezdte a sort 2019-ben; az országos, sőt nemzetközi figyelmet és elismerést keltő új központi vásárcsarnokot 2022-ben adták át [erről részletesen lásd: Piacozni jó! – Az új pécsi vásárcsarnokról, OCTOGON 177., 2022/5. – a szerk.], idén a Diána téri piac került sorra, és napirenden van a Vásártér átalakítása is.

A Diána tér, ahol a negyven éven át provizórikus körülmények között működő piac helyén 2024-ben adták át a Rádóczy (f) László tervei alapján készült új épületet, a történelmi várostól délre fekvő paneles lakótelep, a Kertváros egyik legforgalmasabb területe. Az 1970-es évek elejétől folyamatosan növekvő új városrész a szomszédos, családi házas övezet nevét örökölte meg, amely tisztviselőtelepként az 1930-as években kezdett formálódni a város egykori peremvidékén. A Kertváros név a régi városhoz való kapcsolódás igényét fejezte ki, és talán – némi szómágiával – éppen a „lakótelep” szó negatív konnotációit igyekezett feledtetni.
A paneles lakótelepi életformát a lakások tulajdonságain kívül a köztérhasználatnak a telepítésből következő sajátosságai határozzák meg a leginkább. Nyilván a lakótelepek között is vannak különbségek, de többségükről elmondható, hogy közterületeik használata drámai mértékben eltér a történelmi városokétól: a térfalakkal határolt, szervesen kapcsolódó utcák, a közösségi együttlét differenciált formáit lehetővé tévő terek, a rekreációt szolgáló parkok helyett laza kontúrú, parkolókkal szabdalt, a zöldterületekbe oldódó kvázi-utcákat, centrum nélküli tereket találunk, amelyek mindenekelőtt a közlekedést szolgálják. A zöldterületek funkcionális meghatározatlanságában felszámolódnak a városi tér és a park klasszikus szerepkülönbségei.

A pécsi Kertváros, és a Diána tér különösen, az egykori, mindenféle közösségformáló szándéktól tartózkodó urbanisztikai koncepciótlanság iskolapéldája. Lenyomatként rögzíti a kádári rendszer esszenciális ellentmondását: a közösséginek mondott társadalom ideológiai kulisszái mögött meghúzódó szándékot, amely az egyént a család és az otthon körébe szorítva nemhogy nem segítette, de tudatosan akadályozta a spontán közösségek kialakulását.
A Diána tér is ezen a diffúz módon tölti be városközponti szerepét a lakótömbök szövetében. Az új piac építésekor a zöldterületek, burkolatok, utcabútorok is megújultak, ám a padok zöme a kellemes szeptemberi napsütésben ma is üresen áll; a lakosság meghatározó csoportját kitevő nyugdíjasok nem etetnek galambokat, és nem sakkoznak a tereken, jellemzően a húzós bevásárlókocsijukkal, bottal a kézben róják útjukat a lépcsőháztól az OTP-fiókig, a lottózótól az orvosi rendelőig. És persze a piac irányába. Mert mégiscsak van valami ebben a centrum nélküli térben, ami ugyanúgy működik, mint a történelmi városokban: a piac, a környék egyetlen, klasszikus értelemben vett közösségi tere.

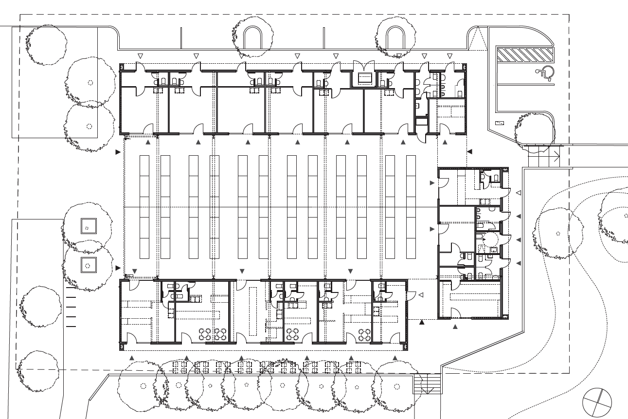
A negyven éven át működő, leromlott műszaki állapotban lévő régi piac rekonstrukcióját maguk az itt lakók sürgették. Ennek nyomán került sor az eső és a tűző napsütés ellen nagyobb védelmet nyújtó, nyitott elárusítótér mellett a korábban bódékban működő üzletek befogadására is alkalmas, építészeti igényű új létesítmény megvalósítására.
Míg a régi piac elrendezése a terep természetes lejtését követte, az átalakítás során a szintkülönbséget alacsony támfalakkal hidalták át. A csarnoképület az alsó telekrészre került, így a tér magasabban fekvő, keleti oldala felől közelítve olyan hatást kelt, mintha félig a földbe süllyedne. Tömege a terepre simul, megőrzi a tér topográfiai egységét, átláthatóságát. A déli oldalon a támfal és a csarnok falának védelmében kialakított járdára nyílnak az üzletek külső bejáratai, a pékségek, kávézók teraszai, életre keltve a történelmi városok köztérhasználati mintázatait. Az épület szabadon körbejárható, keleti oldalán a vizesblokkok és a kisebb bejárat kapott helyet, az árufeltöltés az északi oldalon történik.

Nyugat felől, az épület teljes szélességében megnyitott, az acélváz szerkezeti logikáját feltáró főbejárat városkapura emlékeztető gesztussal fogadja a vásárlót. A csarnok tengelye a Diána tér gyalogos közlekedési útvonalára illeszkedik, így a „kapu” nem csak a határozott vásárlási szándékkal érkezőket, hanem a téren keresztülhaladó járókelőket is természetes módon az eladótér felé tereli. A buszmegállótól hazafelé tartó kertvárosi anélkül térhet be, és haladhat végig az standok között, hogy kitérőt kellene tennie, hiszen a keleti és déli megnyitásokon keresztül akadálytalanul elhagyhatja a piacot.
Az új létesítmény funkcionális programja a szabadtéri piac műfaji határait a lehetőségek határaiig kitolva igyekszik kihasználni a rendelkezésre álló, korlátozott helyet. Az őstermelői és kiskereskedői standokat a három pavilon-blokk U alakot képező együttese öleli körül, összesen tizenöt, egységes arculatú kis üzlettel, melyek egy része – pékség, kávézó – kívülről is megközelíthető, vagyis a belső árusítócsarnok zárása után is nyitva tarthat. A központi tér az asztalok áthelyezésével rendezvényhelyszínné alakítható; a megnyitás óta több zenei és más esemény zajlott itt, a piac közösségi-kulturális célú használata új impulzust adhat a helyi kötődés erősítéséhez – az alvóváros urbanizálódásához.

A szabadtéri, nyitott, fedett piacok többségénél természetes módon a tetőzet kapja az építészeti főhangsúlyt. A Diana téri piac is él ezzel a lehetőséggel: az öt szegmensre osztott tető váltakozva északi és déli irányban dőlő síkjainak ritmusa éppen a kellő mértékig dinamizálja a teret, az ellentétes oldalon történő felnyitásokkal pedig az egyenletes, szűrt megvilágítást szolgálja. A függőleges felületeken opálszínű, légkamrás polikarbonát panelek engedik be a fényt és zárják ki a hőt. A teljes átszellőzésről a nyitható nyílászárók és a tető alatt végigfutó expandált lemez sáv gondoskodik. Az árusok elmondása szerint a régi piac fémfedele a nyári melegben gigantikus hősugárzóként működött, az új épület egyik legnagyobb előnyét szerintük a felső hőszigetelés és átszellőzés megoldása jelenti. Mivel a szomszédos épületek többsége 7-10 emeletes magasház, a tető mint „ötödik homlokzat” esztétikai szempontból is fontos szerepet kapott.
A hő- és hangszigetelési szempontokon túl a falvastagság csökkentésének igénye is indokolta, hogy a csarnokteret körülölelő pavilon-szekciók héjazata Kingspan hőszigetelt, könnyűszerkezetes szendvicspanelből készüljön – az így nyert teret az üzletsor bővítésére lehetett használni. Városi környezetben, homlokzaton szokatlan ez a homogén, higiénikus, puha felület, amely csomagolóanyagra emlékeztető hatásával visszavesz egy kicsit az építmény „épületszerűségéből”, emlékeztetve arra, hogy bármilyen közel kerül is ahhoz, hogy átlépje a műfajhatárt, a Diána téri piac mégsem vásárcsarnok.
Tanulságos, hogy bár a maga műfajában sokkal nagyobb védelmet, komfortot, széleskörűbb, differenciáltabb használatot kínál, mint a korábbi létesítmény, a használók, elsősorban az árusok mégis azt kérik számon rajta, amit jellegéből adódóan nem teljesíthet: teljes védelmet az időjárás viszontagságaival szemben, télen-nyáron egyforma kondíciókat, amit csak egy zárt épület nyújthatna. Pedig a Diána téri piac pontosan azt adja, ami a lényege: szabadon átjárható, funkcionális, mégis spontán teret, amely szinte észrevétlenül válik egy szervetlen közeg szervező elemévé.
Tervezés: 2022
Kivitelezés: 2023 – 2024
Bruttó / nettó alapterület: 929 m2/861 m2
Építészet: Rádóczy (f) László és Tóth Kata (Pécsépterv Stúdió Kft.)
Tartószerkezet: Maros Gergely, Bárczy Eörs
Kertészet: Tóth Réka
Beruházó: Pécs Megyei Jogú Város Önkormányzata
Ha tetszett a cikk, és szeretnél előfizetni magazinunkra, itt teheted meg.



