Az ország bölcsőjének történeti építészetéből is merít a Robert Gutowski Architects legújabb bővítése. Erről szóló írásunk a 197-es, 2025/1-es lapszámunkból közöljük.
A ferences rend a középkor óta elválaszthatatlanul kötődik Esztergom városához. A rend tagjai hosszú évszázadok alatt mindig is a város javát szolgálták. II. Endre hívta Esztergomba a ferenceseket, kolostoruk a török időkben elpusztult, így újjáépítették. 1931-ben alapították a Szent Antal Reálgimnáziumot, amely egybeépült a kolostorral, és elsősorban a rendbe jelentkezők világi taníttatására szolgáló intézmény volt. A szocializmus évtizedei alatt Temesvári Pelbárt Ferences Gimnázium néven működött. Bár a hivatalos elnevezés változtatását az államszocializmus kikényszeríthette, de a becenevét nem tudták tiltani, így hajdanán és most is Frankának hívják a testvérek és a diákok egymás között az iskolát. A nemrég elkészült új épületszárny, amelynek tervezésével a Gutowski Architects csapatát bízták meg, jelentős értéket ad hozzá az iskola életéhez. A nagy alkalmat megragadva az iskola visszatért a hagyományokhoz és újra Szent Antal nevét vette fel.
A kiegészített-befejezett épülettömb hatása az intézményen túlmutató, a bővítés városépítészeti tett, talán nem túlzás azt állítani, hogy Esztergom arculatához is hozzátett valamit, hiszen az iskola a Kossuth Lajos utcában helyezkedik el, amely a város főutcájának tekinthető. Tehát jelentős helyen áll az épület, és a bővítés után méreteit tekintve a város legnagyobb épületeinek sorába lépett. Az iskola évtizedeken át egy csonka, befejezetlen épületnek hatott, látványában az iskolai és a kollégiumi szárny két hatalmas tűzfala volt meghatározó. Az új épületszárny az iskolai és a kollégiumi tömböt immár összeköti, így az utcai térfal kiteljesedett. Az elkészült bővítés bátran, mai építészeti nyelven szólal meg a történelmi belváros házainak szomszédságában. Sötét téglaburkolat fedi a teljes épületet (talán még a szerzetesi ruha színére is utal), ezt ellenpontozzák több helyen a nyílászárókhoz kapcsolódó fehér mészkő betétek, illetve az udvari árkád fehér oszlopai. Mintha nagy tömbökből lenne kifaragva az épület, de az érzékeny gesztusok végül emberléptékűvé szelídítik.

A Kossuth Lajos utcai homlokzat egységes formai jegyeket mutat, nagy üvegfelületekkel fordul a város felé. A IV. Béla király utca sarkán egy apró városi teresedést találunk egy paddal, mintegy invitálva a sétában megfáradt városlakókat, hogy üljenek le egy percre a ferencesek háza mellett. A IV. Béla király utcai homlokzat lecsendesedve átveszi a meglévő iskolaszárny egyszerű lyukarchitektúráját. A Főapát utca felé több apró építészeti mozdulat jelzi a kapcsolatot a történeti város felé. A biciklitároló boltíves ablakai és ajtaja az iskola több száz éves történeti kontextusával keresik a kapcsolatot.
A sarok negatív kiharapásában is mintha egy régvolt kor házteteje elevenedne meg egy pillanatra. Az épülettömeg formai megmunkálása, az anyagváltások, az üvegfelületek arányai mind az épület funkcióit fejezik ki építészeti eszközökkel. A tornacsarnok, bár közvetlenül nem látszódik az utcáról, mégis mintha meg lenne „említve” azáltal, hogy tömbje az utcai síktól hátrahúzva kiemelkedik. Egy téglákkal függőlegesen sávozott bevilágító fut végig és hívja fel a figyelmet, hogy itt belül valami más történik.

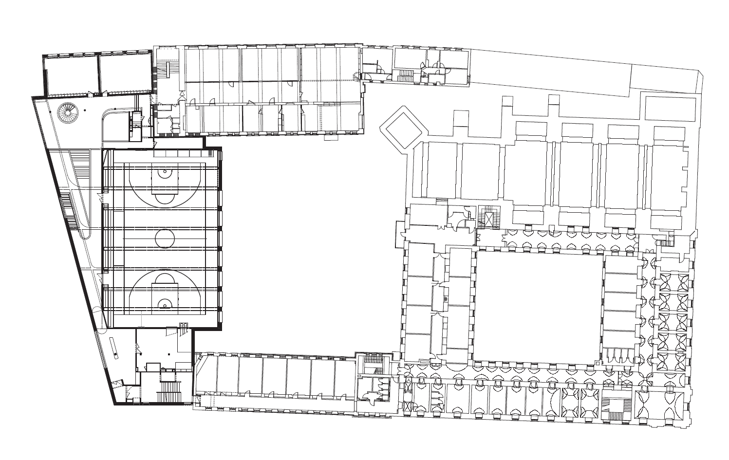
A főbejárat átkerült a Bottyán János utcából a Kossuth Lajos utcába. A homlokzat finom, plasztikus mozdulatával egy negatív teret formáz, így alakul ki egy fedett, nyitott szélfogó. Az előtéren keresztül juthatunk be a többszintes aulába, ami a fejlesztés fontos eleme, eleddig nem volt az iskolában nagyobb méretű közösségi tér. Az aula egyúttal egy komplex közlekedőrendszer is. Mint egy bonyolult képlet elegáns megoldása, úgy oldja meg az aula-közlekedő a kollégium és a gimnázium, a tornacsarnok, az udvar és az utca közötti minden irányú összeköttetést.
Az aula barátságos, de egyúttal dinamikus hangulatot közvetít. Megjelennek plasztikus elemek, hideg, meleg és semleges színek és fény, és mindez végül harmonikus egésszé áll össze.

A színek és burkolatok hierarchiájában az első és legdíszesebb a tornacsarnok fala, melyet tégla- és faburkolat is öltöztet. Semleges háttérként az utcai fal meleg betonszíne szolgál. Az ív mint motívum többször is megjelenik, horizontális és vertikális elrendezésben, összességében izgalmas térbeli formajátékot teremtve. Az ívesen záródó lépcsők és teraszos közlekedők tektonikusan épülnek egymásra, az íves motívumok a legfelső szinten az utcai falat hátrakötő vasbetongerendákban jelennek meg, amelyek tartószerkezetből díszítőelemmé nemesednek. Már a megérkezéskor kitágul és húz felfelé a tér vertikális dimenziója. Fent hatalmas bevilágító ablaksávon árad be a fény.
A közlekedőszintek teraszos elrendezése átláthatóvá teszi a teret, ugyanakkor a födémek több helyen közösségi térré szélesednek. A második emeletről a harmadikra szoborszerű csigalépcső vezet, valamint ezen a szinten nyílik átjárás a kollégium felé egy boltíves átjárón keresztül. Az épület mélyebb traktusaiba is világosságot tudtak hozni a tervezők egy vertikális fényakna segítségével. Az iskolai szárny bővítésével 6 új tanteremmel lett gazdagabb az oktatás. Igényes berendezést vehettek birtokba a diákok. A nagy ablakfelületeknek köszönhetően átjárja a fény a termeket.

Az építkezés kezdetén a régészeti feltárások során egy középkori lakóépület romjait fedezték fel, valamint egy középkori utat, amely akár a mostani főút elődje is lehetett. A régészeti leletek fontosságát felismerve az új épületben a biciklitároló és az autótároló padlóján üvegfödémen keresztül lehet megpillantani a romokat. A régészeti leletek védelme érdekében a teremgarázs a földszinten kapott helyet, a sportcsarnok pedig emelt szinten helyezkedik el.
Az új csarnokba professzionális NB II-es kosárlabdapályákat terveztek, így lehetőség adódik versenyek megrendezésére vagy bérbeadásra. A labdajátékok mellett az edzés is az új sportolási lehetőségek közé tartozik. Az új épületrészben az új konditeremben van erre lehetőség. A sportcsarnok kiemelése révén egy fedett átjáró is helyet kapott, amelyen esőtől védve sétálhatnak a diákok a gimnáziumból a kollégium földszintjén lévő ebédlőbe.

A Franka-udvar az új beépítéssel bezárult, most már minden oldalán térfal veszi körül, hasonlatossá vált a kolostor kvadrum kertjéhez. Annál azonban jóval nagyobb, így megmaradt egy jó arányú, napsütötte térnek, amelyen immár nem a parkoló autók foglalják a helyet, hanem kültéri sportpályákon tölthetik szabadidejüket a kollégium diákjai. A tornacsarnok kollégium felőli oldalán fedett-nyitott átjáró vezet ki a Kossuth Lajos utcára, ez egy vizuális kapcsolatot is teremt, ami korábban nem volt adottság. A másik átjárási lehetőség a Kossuth Lajos utca felé a tornacsarnok gimnázium felőli oldalán, az aulán keresztül vezet. Az új beépítéssel tehát igaz, hogy zártabb lett valamelyest az udvar, de ezt jól ellensúlyozzák az új térkapcsolatok az utca felé. Fontos eleme a bővítésnek a tetőkert, amely átveszi a korábbi, már nem túl jó állapotban lévő kert helyét. A tetőkert nagyszerű hely a kikapcsolódásra, és remek a kilátás a város és a Vaskapu-hegy felé.
Az új épületszárnyat már birtokba vették a diákok, és láthatóan szeretik. Fociznak az udvaron, jönnek át kosarazni a kollégiumból, vagy csak önfeledten bújócskáznak az aulában. Az egész épületet már átjárja az a barátságos légkör, ami a Frankára jellemző. Talán ezek az apró jelek mutatják a Gutowski Architects építészeinek jól elvégzett munkáját. A Szent Antal Ferences Gimnázium épületének méltó befejezésével nem csak az iskola, de Esztergom városa is erősödött.
A bővítmény nettó alapterülete: 3962 m2
Tervezés: 2020 – 2021
Kivitelezés: 2022 – 2024
Generáltervező: Gutowski Architects
Felelős építész tervező: Gutowski Robert
Építész tervezők: Bollók Gáspár, Dely-Steindl Barnabás, Kaknics Péter, Kovács Hunor László, Szokolay Béla Ákos
Munkatársak: Bánhidi-Kovács Anikó, Bársony Adrienn, Bebesi-Kovács Regina, Boronkay Gábor, Darida Dóra, Gácsi Zsuzsanna, Geigerné Czikk Krisztina, Horváth Norbert, Hunyady Márton, Kovács Eszter, Sipos Kornél, Tóth Árpád, Tóth Bence
Szakági tervezők: Horváth Sándor, Tombi Gergely, Mikus Ferenc, Dr. Hegyi Dezső, Lakner László, Turi Ádám, Csia Sándor, Kerek Gyula, Paragi László, Rátonyi Árpád, Balogh Zsombor, Macsinka Klára, Kocsis Anita, Sarkadi Gergely, Dr. Rabb Péter, Sütő Ferenc, Szabó Zoltán, Lődör Kristóf, Dr. Móczár Balázs
Generálkivitelező cégcsoport: LATEREX Építő Zrt.
További képek a cikk végén található galériában!
Ha tetszett a cikk, és szeretnél előfizetni magazinunkra, itt teheted meg.



