Házikó Portugáliában a BOX arquitectos irodától.
A Ponta Delgada központjában sűrű városi szövetben épült a rendkívül kicsi, kétszintes családi ház, amely bár mérete ezt cseppet sem indokolja, kiragyog közegéből, szétfeszíti a számára kiszabott teret.

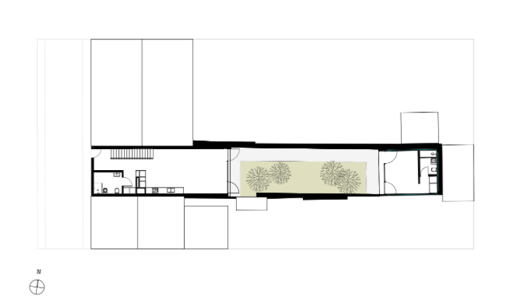
A Szélmalom-házban az alsó szinten egyetlen közös tér található, a két kis hálószoba fent kapott helyet. Az utcai homlokzat mindössze 4,20 méter széles, túl rövid, hogy gyaloglás közben észrevegyünk rajta bármit, így csupán annyiból áll, mint a gyermek képzeletében egy ház:... egy ajtó és egy ablak.
![]() ![]() |
A ház utca felé eső fala kizárólag a belső tér és a külvilág határvonalát jelzi, egyetlen értelme, hogy a külsőt a belsőtől elválasztja.
Bent nincsenek átmeneti vagy elválasztó terek. Az alsó szint osztatlan közösségi tere mélységében nyer dimenziót azzal, hogy a végén ott a kert. A kert teremti meg az egyensúlyt a ház és a telek végén található építmény között. Az emeleten a keleti hálószoba teraszáról a környékre oly jellemző városi házak panorámája nyílik.
![]() ![]() |
A ferde tetőben kialakított felülvilágítók révén azonban kitágul a tér, a fény szétterül a belső helyiségekben. A tetőablakok „membránként” viselkedve kitágítják a „vertikális perspektívát”.
![]() ![]() |
Helyszín Ponta Delgada
Építés éve: 2021
Alapterület: 110 nm
BOX arquitectos | Web | Facebook | Instagram
További fotók és rajzok a galériában!
Ha tetszett a cikk, és szeretnél előfizetni magazinunkra, itt teheted meg.








