A manga művész lakása.
Faház Tokió kellős közepén. Görbe vonalai mintha egyenesen a mesék világából léptek volna elő. A Tan Yamanouchi & AWGL által tervezett szinteltolásos lakóházban egy feltörekvő manga művész él a párjával és két bagollyal.

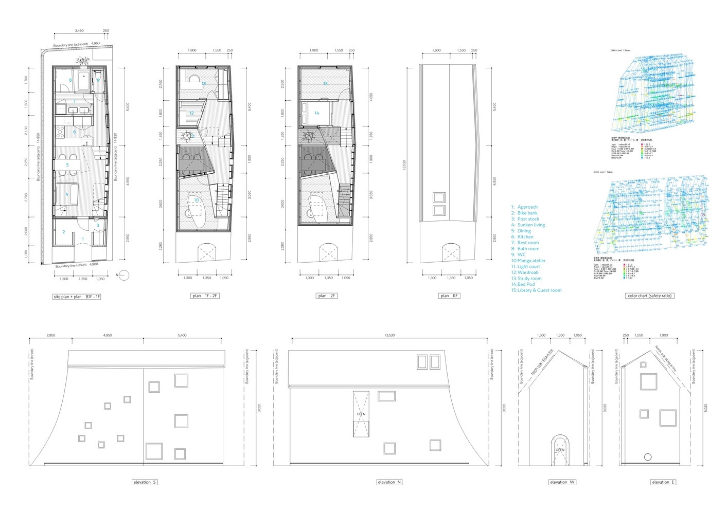
A tervezőtől három dolgot kért a szokatlanul kicsi és keskeny telken építkezni szándékozó művész: a lakás tudja szolgálni a teljes alkotófolyamatot a tervezéstől a megvalósításon át a sajtótájékoztatókig; a külvilág felé zárt legyen, belső kialakítása viszont minden szögletével a kreativitást inspirálja. Így született meg a zsúfolt tokiói utcasorban a sok szögletes épület között íves falával szinte a talajból kinövő iciri-piciri meseház, amely a régi japán elvet követi: kicsivel a föld fölött jár
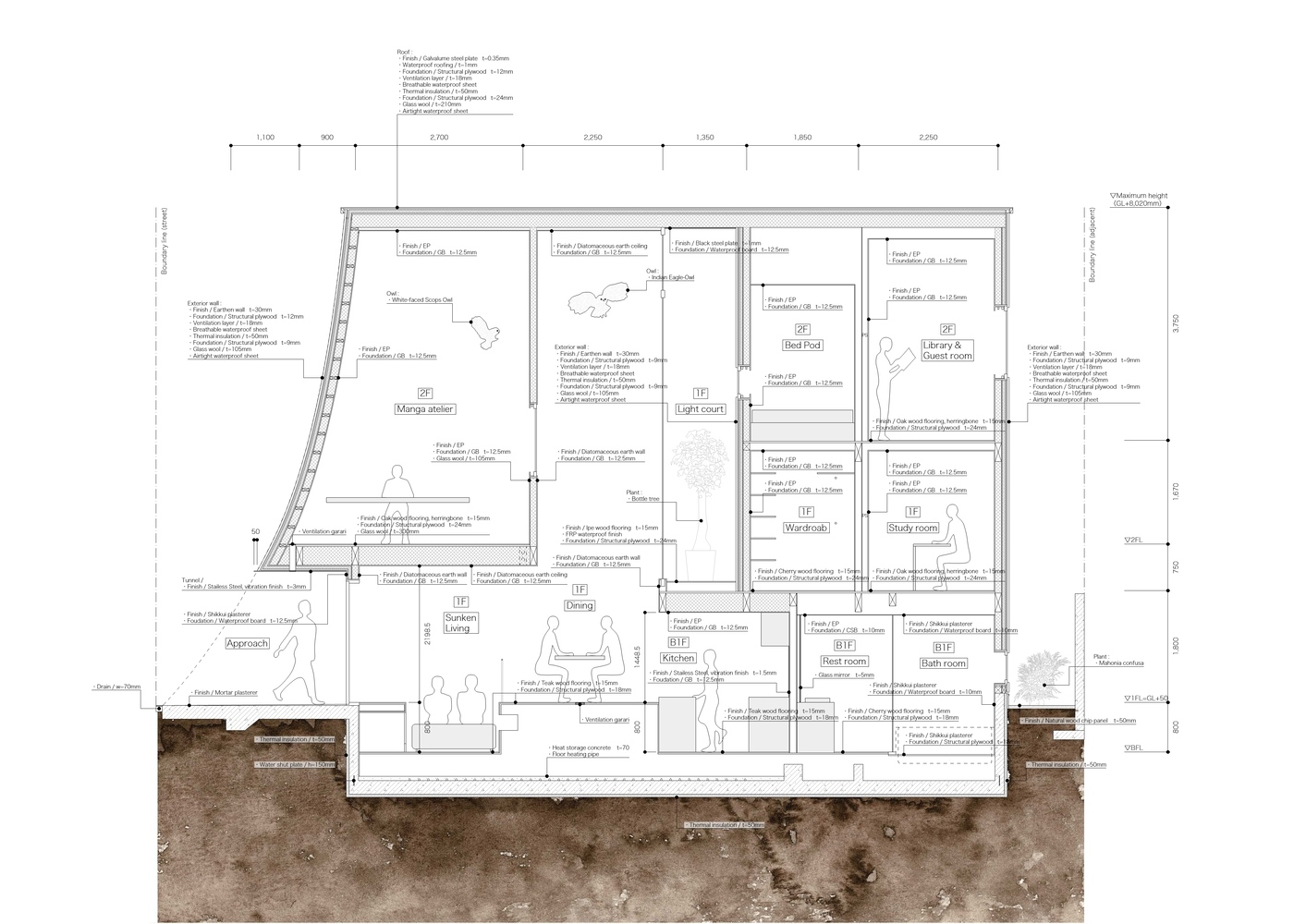
Tan Yamanouchi kreatívan újragondolta a térkapcsolatokat, hogy a kis alapterületen (44 négyzetméter) minden kívánt funkció megtalálja a helyét. A koncepció kiindulópontja a ház metszete volt, az utca felé zárt, lendületesen ívelt falával, az utcafronton két, a hátsó traktusban három szinttel, megmozgatott födémszintekkel. A rajzfilmbe illő utcai homlokzaton csak egyetlen íves átjáró nyílik, mely a ház bejáratához vezet. Az ablakok az oldalsó homlokzatokon is aprók, az északi oldalon viszont egy üvegezett világítóudvar kapott helyet.

A belsőépítészeti eszközök – a fény-árnyék hatás, a szintbeli elválasztás, a magasság és mélység játéka – határozottan kijelölik a különböző tereket. A ház magva egyfajta áramló „üresség”, amely amőbaként terjeszkedik a különböző funkciójú helyiségek között, biztosítva a vizuális és térbeli kapcsolatot. A központi üres térben falépcső köti össze a különböző szinteken található különféle helyiségeket.
![]() ![]() |
A ház kontrasztos hatásokkal izgalmassá tett áramló térbeli magjának feladata, hogy elkülönítse a privát és publikus tereket, aszerint, ahogy az épületben folyó művészi munkafolyamat épp megköveteli. A szeparálás nem falakkal történik, hanem a fény és árnyék, a térszintek váltakozásának eredménye. A flexibilis használatra lehetőséget adó térstruktúrát a tervező maga „medencék és partok” rendszeréhez hasonlítja. A ház nem csak az utca felől tűnik úgy, mintha egy mesekönyvből lépett volna elő, belül is Chihiró szellemországában érezheti magát a látogató: a tér ebben a házban testi tapasztalattá válik.


![]() ![]() |
![]() ![]() |


Építészet: Tan Yamanouchi & AWGL
Tervező: Tan Yamanouchi
Szerkezet: Graph Studio / Yuko Mihara Construction
Alapterület: 44,16 nm
Fotók: Katsumasa Tanaka
Forrás: designboom, Archdaily
További rajzok és képek a galériában!
Ha tetszett a cikk, és szeretnél előfizetni magazinunkra, itt teheted meg.








