Mintha egy fuvallat lebbentené meg a függönyt, úgy válik láthatóvá a belső homlokzati sík antracit függönyfala a hotel bejárati zónájában. Erről szóló írásunkat a 194-es, 2024/6-os lapszámból közöljük.
Kivételes műemléki környezet, zsebkendőnyi telek, szinte teljesíthetetlen megbízói program, mi ez, ha nem kihívás? Viszont mi „a lehetetlenben vagyunk a legjobbak”, legalábbis ezt szoktuk mondani a BORD Stúdióban. [Magazinunkban elvétve adunk teret szubjektív épületbemutatásoknak. Ezúttal azonban azt gondoltuk, hogy érdekes volna kivételt tennünk... – a szerk.]
A stúdió egyik alapító tagjaként évek óta dolgozom a projektjeink kommunikációján és követem fejlődésüket az első gondolatoktól a megvalósulásig. Most arra kaptam felkérést, hogy az építész szemszögéből mutassam be az egyik frissen elkészült debreceni munkánkat. A feladat megtisztelő, ugyanakkor zavarba ejtő is – kicsit mintha Columbo feleségét kérdeznénk a legfrissebb bűnesetekről –, de kétségtelen, hogy mint az építész felesége egész közelről látom az eseményeket, és ez is érdekes lehet.

Irodánk leginkább talán debreceni projektjeiről vált ismertté. A Nagyerdei Stadion (OCTOGON, 2014/5.) és a környező park rehabilitációja, az Aquaticum Strandfürdő (OCTOGON, 2020/5.) újragondolása egy teljes városrész megújulását segítette elő. A Békás-tó és a Parkerdő mára egy élhető, kikapcsolódásra, pihenésre alkalmas, sokoldalúan működő, gondozott városi park lett. A Nemzetközi Iskola (OCTOGON, 2019/7.), a Forest Offices (OCTOGON, 2019/2.) és az Innovációs Központ (OCTOGON, 2022/4.) szerepe Debrecen életében előremutató, karakteres megjelenésük ennek megfelelően hozzájárul az ütemesen fejlődő modern városképhez. A közelmúltban került átadásra a virágkarnevál élményét idéző könnyed, mégis elegáns Mercure Hotel (OCTOGON, 2022/6.) a Református Nagytemplom közelében. Innen csupán néhány perc séta távolságra, a Kálvin térről nyíló Darabos utcában található az éppen most elkészült Hilton Garden Inn.
Bejárni egy épületet sokszor izgalmasabb, ha az ember ismeri az építés teljes történetét. Mintegy hat évvel ezelőtt azzal a feladattal keresték meg stúdiónkat, hogy tervezzünk egy lakóépületet, eladásra és kiadásra szánt apartman funkcióval. Az utca szűk, a tömb beépítése zártsorú, szemben a Debreceni Református Hittudományi Egyetem meghatározó homlokzata. Talán ismerős lehet az érzés, amikor megértve a helyszínt és a programot, minden nehezítő körülmény ellenére az építésznek mégis van egy jó ötlete. Sajnos azonban a projekt időközben megszűnt, a megbízó a telek eladása mellett döntött. Az építész viszont nagyon hitt benne, hogy lehet egy jó házat tervezni erre a helyszínre, ezért megpróbált vevőt találni a még mindig üres telekre.

A további előtanulmányok azt mutatták, hogy a szálloda funkció talán sokkal inkább megtérülő lenne, bár a telek pici mérete miatt a potenciális beruházók többnyire nem láttak benne lehetőséget, még a különösen jó lokáció ellenére sem. Végül azért mégis megtalálta új tulajdonosát a fejlesztési terület és egy 101 szobás programmal meg is indult a tervezés. Ez az igény racionális, erősen funkcionális megoldást feltételezett. A beköltöző Hilton Garden Inn számára azonban ez éppen megfelelő volt, hiszen a márka elsősorban azon üzleti utazók igényeit hivatott szolgálni, akik magas minőségű szállás szolgáltatást keresnek jó ár-érték arány mellett.
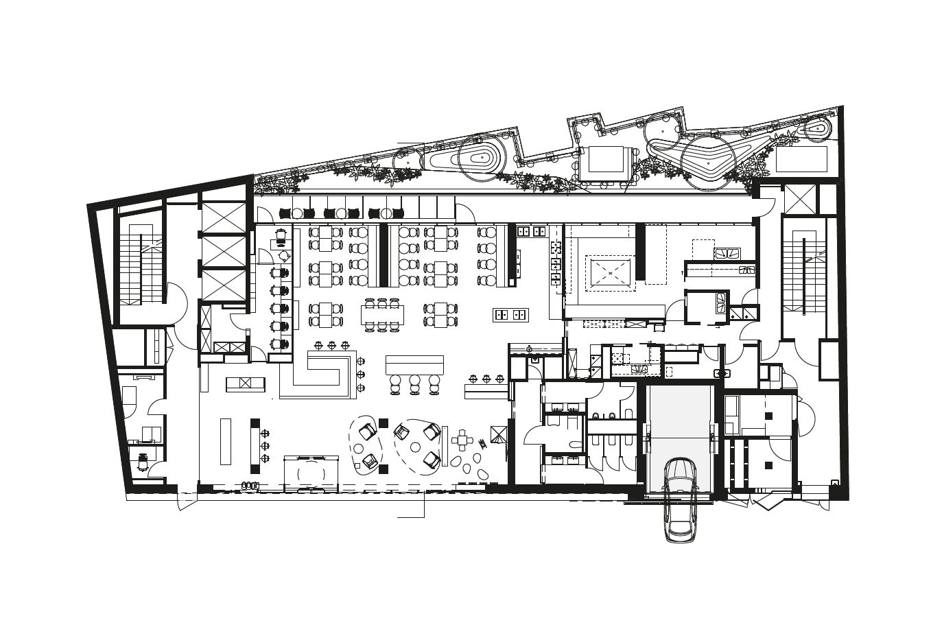
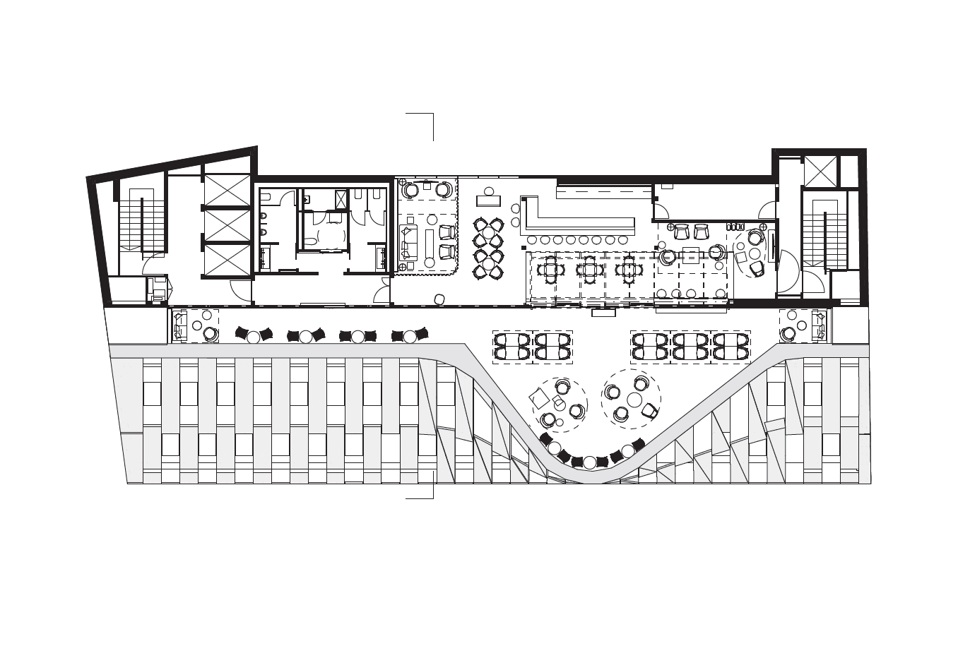
A földszint +7 emeletes épület alaprajzi szerkesztését illetően feszes, rendezett. Az utcáról belépve a földszinten kapott helyet a recepció, lobby, bár, étterem, konyha. Az üzemeltetési és vendégforgalmi útvonal az egyszerű téglalap alapterületű épület két ellentétes végpontján helyezkedik el. A felsőbb szinteken a két lépcsőházat összekötő középfolyosóról nyílnak a szállodai szobák. A legfelső két szint az utcafronttól visszahúzott módon lett kialakítva, a 7. emeleten pedig egy meeting room és a sky bár található, széles terasszal és kilátással a Református Nagytemplom tornyaira.

Az épület két szint mélygarázst is kapott, ahol egy fitness, előadóterem, gépészet, egyéb háttérterületek és a pakoló került kialakításra, melyet gépjárműlift segít. Az építtetői igényeket sikerült maximálisan kielégíteni, ami nem kis erőfeszítést jelentett a 670 m2 beépíthető alapterület és 16 méteres párkánymagasság mellett. Az egyetlen kompromisszum a szintek nettó belmagassága, amely 2,50-3,00 méter között mozog. Ám ezt a problémát feloldja a szobák kialakítása, hiszen teljes szélességben üvegfallal nyitnak az utca és a belső udvar felé.
A mérnöki pontossággal kiszerkesztett funkcionális rend alapfeltétele egy jól működő épületnek, a megjelenést azonban jelen esetben a környezethez való viszony határozta meg. A Kálvin tér felőli sarki szomszéd egy Mikolás Tibor által 1975-ben tervezett társasház, a Hunyadi utca felőli közvetlen szomszéd az OEP épülete, a hátsó szomszéd a Vojtina Bábszínház rendezetlen tömb belsőbe mélyen benyúló tömege, de a leginkább meghatározó szemközt a Református Kollégium épülete. A szűk utcában a klasszicista homlokzat, a kiemelt lábazati szinttel, vízszintes tagoltságával, erős párkányával szigorúan szerkesztett puritán egyszerűséget sugároz. A Kálvin tér felőli bejárat több szintet átfogó oszlopokkal, timpanonnal zárt sarokelemei az épület hangsúlyos részei.

Ezt a szerkesztési elvet viszi tovább a hotel utcafronti homlokzata. Az épület kéthéjú homlokzatot kapott. A belső függönyfal elé mintegy 75 cm távolságban egy alumínium fegyverzetű, fehér, kompozit paneles burkolati síkot helyeztünk el. A földszinti zónában folyamatos felületen, felette pedig hézagosan, sakktábla-szerű mintában. A párkánymagasságban átforduló homlokzatburkolat a korcolt fémlemez fedésű félnyereg tető vonalát követve folytatódik.
A külső homlokzati sík így mint egy rácsos mintázatú függöny borul rá a szerkezeti vázra, kiemeli a lábazati szintet, fentebb pedig érdekesen, plasztikus megjelenésével egybemossa a szintek határait. A bejárat és a tető egy szakasza itt is megkülönböztetett szerepet kapott, akárcsak a klasszicista szomszédnál. Mintha egy fuvallat lebbentené meg a függönyt, úgy válik láthatóvá a belső homlokzati sík antracit függönyfala a bejárati zónában. A sky bárhoz kapcsolódó tágas tetőterasz íve mentén pedig egyfajta hullám tűnik fel a homlokzaton.

A zártsorú beépítés egyik sajátossága, hogy egyetlen látható homlokzata van, és ezzel fordul a város felé. Ezért fontos, hogy illeszkedjen a meglévő épített környezethez, ugyanakkor finoman tegyen is hozzá valamit a jelen kor gondolkodásából. A debreceni Hilton Garden Inn épülete a funkcionális működést illetően egy racionális, precíz kis épület, melynek derékszögű hálóban megkomponált tömege jól alkalmazkodik a belváros épületeinek stílusához, mégis hoz valami újat. Látom benne azt a gesztust, ami a többi BORD-os épületre is jellemző, egyszerre józan, lendületes és izgalmas.
Sokszor vagyok szemtanúja annak a kimerítő küzdelemnek, amelynek során a megtérülés köré felépített megbízói igények, a város jövőjét szem előtt tartó szabályozás és az értékteremtésen alapuló építészeti gondolkodás kooperációjából végül megszületik az alkotás. Nem tudom megállni, hogy ne mondjam el, valóban szerencsés az az iroda, ahol az építész egyik erőssége, hogy a reménytelen helyzetekben is képes találni egy kreatív megoldást. Úgy érzem, ez a Hilton esetében is jól sikerült, és örülök neki, hogy a szeptemberi megnyitóval ismét olyan projektet zárhatunk le, ahol mind a beruházó, a város és az építész is elégedetten dőlhet hátra.
Tervezés éve: 2020 – 2022
Átadás éve: 2024
Összes nettó alapterület: 4800 m2
Generáltervezés: BORD Építész Stúdió
Felelős tervező: Bordás Péter
Építész csapat: Angi Ágota Melinda, Lente Kálmán Artúr, Lente-Papp Linda, Fábry András György, Méhes Andrea, Tóth Gábor
Belsőépítészet: BIS
Épületgépészeti tervezés: Hollókövi Zoltán (BORD Épületgépész Stúdió)
Hírközlési terv: KONTIPLÁN Kft.
Helyszín: 4026 Debrecen, Darabos u. 3-7.
Megbízó: Tetrecen Kft.
További képek a cikk végén található galériában!
Ha tetszett a cikk, és szeretnél előfizetni magazinunkra, itt teheted meg.



