Új városi kapu formálja át a közösségi tereket Kispesten.
A Kispesti Uszoda megújításának terve nem csupán egy új épületet jelent a főváros egyik legsűrűbben lakott kerületében, hanem egy városi léptékű rekreációs és sportközpont létrehozását is megcélozza. A területen álló, 1988-ban átadott, mára már műszakilag és funkcionálisan is elavult uszoda létesítményre vonatkozóan időszerűvé vált egy átfogó területfejlesztési koncepció megtervezése.
![]() ![]() ![]() |
A kerületi önkormányzat által kiírt pályázat eredményeként a tulajdonos az ENTERV Kft.-t kérte fel a XXI. századi igényekhez igazodó új, korszerű uszoda koncepciótervének elkészítésére. A tervezés során elsődleges szempont volt a meglévő városszerkezethez való illeszkedés, a fenntarthatóság, valamint a lakossági és sportolói igények egyensúlyba hozása.

„A forma nem öncélú játék, hanem egy új városi térszervezési logika manifesztuma. Az épület egyszerre keret és fókusz, határ és találkozási pont. Úgy alakítja a városi mozgásokat, hogy közben új közösségi helyeket is létrehoz. A karakteres tetőformálás nem csak ikonikus építészeti gesztus, hanem funkcionális elem is: védi a gyalogosokat, kijelöli a bejáratokat, és vizuálisan is egységbe foglalja a különböző funkciókat” – vallják épületükről a tervezők.
Kispest legnagyobb részén családi házak és utcavonalra épült, polgári földszintes épületek találhatóak, valamint a méltán híres Wekerle telep. Az Ady Endre utca és a Vak Bottyán utcák által határolt területen pedig 4 és 10 emeletes házgyári társasházak állnak.
A tervezési területet három oldalról utcák határolják. Az uszodát az egyirányú, rendkívül forgalmas Simonyi Zsigmond utcáról lehet megközelíteni, melynek túloldalán jelentős ingatlanfejlesztések történtek, illetve várhatók a jövőben.
A Móricz Zsigmond utca túloldalán parkoló szervizutat és földszintes garázsokat látunk, melyek az itt álló panelépületeket szolgálják ki. A telek legrövidebb oldala a szűk és alacsony forgalmú, családi házas Wesselényi utcához csatlakozik. Az ingatlant a negyedik oldalról a kispesti Károlyi Mihály Gimnázium határolja.

A telek tehát jelentősen eltérő karakterű területek találkozásánál fekszik. Erre a beépíteni tervezett tömegnek is reagálnia kellett úgy, hogy a Simonyi utca felől induló magasabb és intenzívebben beépítésű épülettömeg a Wesselényi utca felé lecsendesedik a földszintes magastetős épületek felé. A beépítés az előírásoknak megfelelően zártsorú. Ez a fajta térfalas lezárás teremti meg egyúttal a nyüzsgő városi élet felé a strandfunkció által igényelt intimitást is.



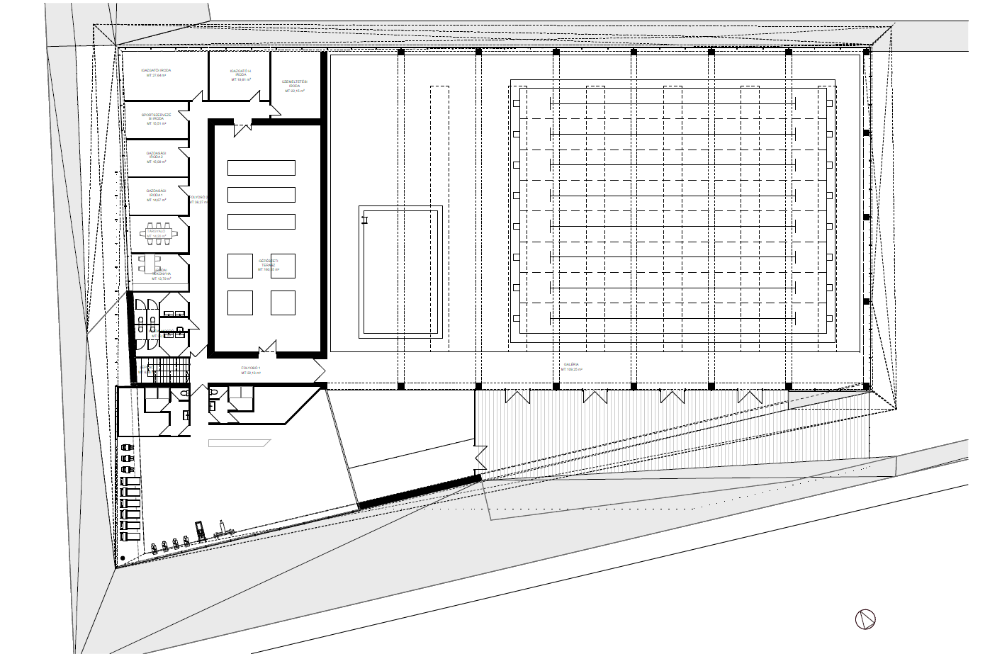
A tervezett beépítés fő eleme maga az uszodaépület, a városi uszodai igényekhez igazodó 25 méteres medencével, illetve a vele egy térben elhelyezkedő tanmedencével. Az épületben egyszerre 500 fő tartózkodhat. Szauna- és wellnessvilág is helyet kapott hidegvizes merülőmedencével a medencetérből nyílóan, illetve egy fitneszterem. A földszinten egy ki- és befelé is működő bisztrót alakítottak ki, így téve az épület körüli külső területeket is élettel telibbé, illetve az üzemeltetést rentábilissá.
Mivel az uszoda használatának nagy részét az iskolai úszásoktatás, illetve az úszóklub edzései teszik ki, ezért a medenceteret lelátó galériával tervezték, ahonnan a szülők a foglalkozások ideje alatt követhetik gyermekeik fejlődését. Mind a fitnesz, mind pedig a lelátó galéria kiegészül egy emeleti, fedett-nyitott tetőkerttel, tetőterasszal, kültéri fitneszgépekkel és pihenősarkokkal.

A beépítést kiegészíti egy strandépület a Wesselényi utca felől, ami a kültéri területek időszakosan működtetett öltözőit és szociális helyiségeit öleli fel az egyéb kiszolgálóhelyiségekkel. Ez az épülettömeg egyébként a strandterület zajterhelésének csökkentését is szolgálja a családi házak irányába.
Végül a harmadik, a főépülettől elkülönülő, de azzal koncepcionálisan egy egységet alkotó rész a Simonyi utcai oldalon kialakított strandpénztárak, vendéglátóegység és további két bérlemény épülete, melyek ki- és befelé is működőképesek, így akár az uszodától függetlenül is üzemeltethetőek.
Az épületek homlokzati kialakítása és anyaghasználata során egységes megjelenésre törekedett az ENTERV építész kollektívája. Anyagválasztásuk során fontos volt az időtállóság és az ellenállóság – mindamellett, hogy a dinamikusan alakított tömegforma burkolására alkalmas legyen – és valamelyest kapcsolódjon a vízhez mint fő elemhez. Így esett a választásuk a pikkelyszerű, „V” hornyokkal ellátott, átlagosnál kicsit nagyobb formátumú alumínium tetőzsindelyre mint meghatározó burkolati anyagra. Ezt egészíti ki az előtetők alsó síkján alkalmazott fehér sávos fém álmennyezet. A hővédő üvegfelületek a mai kor igényeinek megfelelően kerülnek kialakításra. Ahol az utcáról történő belátások nemkívánatosak, ott az üvegfelületek a tengervíz különböző árnyalatait idéző kék és türkiz színű opálfóliát kapnak.
A tervezés során cél volt, hogy a meglévő és még jó állapotú szoláris rendszereket felhasználják, amelyek az új főépület tetejére kerültek át, kiegészítve az új igényeknek és szükségleteknek megfelelően. Az építőanyagok kiválasztásánál a tervezők a minél nagyobb arányban történő későbbi újrafeldolgozhatóságot is igyekeztek figyelembe venni. A zöldfelületeket pedig kiterjesztették az épület függőleges részeire is, hogy a párologtató felületeket megnövelve csökkenjen a környezet felmelegedése!
Összességében kijelenthető, hogy formai szempontból egy letisztult épületegyüttes születik, drámai gesztusok nélkül. Városépítészeti súlya nemcsak építészeti értékeivel, hanem közösségi szerepével is komoly figyelmet érdemel. Az új városi központ egyszerre reagál a városi szövetre és a társadalmi igényekre, miközben építészeti eszközökkel teremti meg a nyitottság és összekapcsolódás tereit.
A tervezők éles, diagonális vonalakra és határozott tömegalakításra alapozták a koncepciót. A nagyméretű, „lebegő” tetőszerkezet egyszerre teremt védettséget és nyitottságot, míg az üvegezett homlokzat mögött világos, barátságos belső terek sejlenek fel. Az épület nappali és éjszakai arca markánsan eltérő: míg napfényben a karakteres forma uralkodik, estére a belső élet és közösségi működés kerül reflektorfénybe.

A projekt nem csupán esztétikai, hanem városépítészeti léptékben is értelmezhető. A dinamikus tömegformálás szándékoltan reagál a környezetére, közlekedési irányokra, vizuális tengelyekre és gyalogos-áramlásokra.
A tervezés során az uszoda vezetésének kérésére a tervezők megvizsgálták a meglévő belső medencék megtartásának lehetőségét is, amelyeket ez esetben kültéri strandfunkcióra tennének alkalmassá. Ez a megoldás nem csupán gazdaságilag ésszerű, de a telken belüli funkcionális szervezés szempontjából is előnyös.

A kispesti uszoda újragondolása példamutató módon ötvözi a múlt örökségének tiszteletét a jövő kihívásaival. A terv nemcsak egy sportlétesítményt kíván létrehozni, hanem egy közösségi tér új minőségét, ahol a rekreáció, az egészségmegőrzés és a városi életminőség egymást erősítve jelennek meg.
A látványtervek alapján egyértelmű: a cél nem pusztán egy funkcionális épület létrehozása, hanem egy olyan urbánus központ megformálása, amely új városi identitásponttá válhat. Egy olyan épületté, ami nem csak kiszolgál, hanem inspirál is.
Helyszín: H-1191 BUDAPEST, SIMONYI ZSIGMOND UTCA 31.
Tervezési terület mérete:
Telek: 11 560 m2
Tervezett uszoda nettó össz. alapterülete: 4516 m2
Strand és kiszolgálóépületek nettó alapterülete: 450 m2
Koncepcióterv: ENTERV Kft.
Vezető tervezők: Körtvély Zoltán, Geiszter Róbert
Építész tervezők: Papp András, Máté Orsolya
Építész munkatársak: Kun Nadin, Popovics Dániel
A projekt megrendelője: Budapest Főváros XIX. Kerületi Önkormányzat, Kispesti Uszoda (az ingatlan vagyonkezelője)
Ha tetszett a cikk, és szeretnél előfizetni magazinunkra, itt teheted meg.






